深圳深业世纪山谷网站丨深业世纪山谷欢迎您丨首页网站丨详情/地址/价格

搜狐焦点永州站 2024-11-02 07:55:00
用手机看
扫描到手机,新闻随时看

扫一扫,用手机看文章
更加方便分享给朋友

深业世纪山谷项目是一座位于深圳的城市综合体,为白石洲旧改单元,位于南山区沙河东路218号,占地面积约4.2万㎡,总建筑面积约38.9万㎡,容积率高达5.78。约380㎡4+1房4卫(3栋AB座C户型)小区里最…

深业世纪山谷项目是一座位于深圳的城市综合体,为白石洲旧改单元,位于南山区沙河东路218号,占地面积约4.2万㎡,总建筑面积约38.9万㎡,容积率高达5.78。该综合体集住宅、公寓、酒店、商业和办公等多种功能于一体,具备了完善的生活配套和商业服务。

项目整体分两期开发建设,一期东地块包含1栋酒店+商务公寓、1栋保障房、2栋包含一、二单元的住宅;西地块包含2栋高约250米的超高层住宅,另有1栋约50层高的商务公寓。该项目二期将规划1栋住宅建筑,地上69层地下3层,建筑高度超过247米。

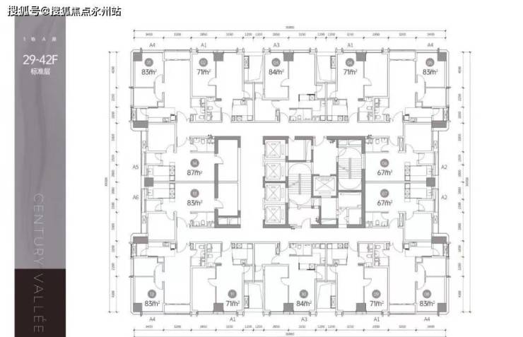
一期共两栋:分两座和ab单元,其中,1栋A座42层,结构高度149.5米高;1栋B座28层92.5米高;2栋1单元41层,结构高度137.65米高;2栋2单元41层,结构高度137.65米高。

二期由一栋4座组成,其中,3栋A座69层,结构高度243.55米高(装饰高度252米);3栋B座69层,结构高度243.55米高装饰高度252米)未来将成为南山最高的住宅建筑!;3栋C座50层,结构高度172.10米高;3栋D座4层16.9米高。

深业世纪山谷_售楼处_Vip Tel:400-992-0669 中介勿扰

二期回迁住宅:348套

3栋a座243.55米高,69层,回迁住宅54450平

3栋B座243.55米高,69层,回迁住宅54450平

3栋C座172.10米高,50层,商务公寓34061.14平

3栋D座16.9米高,4层,商务公寓2338.86平

『深业世纪山谷』公寓建面约67-87㎡湾岸资产,现房带精装

深业世纪山谷』二期131-190㎡ 大平层产品

建面约 131㎡3.7米超大开间+双阳台设计

此户型为3.3m 层高经典竖厅双套房设计,主卧 270°大空间宽视野,可享首排高尔夫景观,客厅/主卧景观视野俯瞰双高尔夫一线果岭景观,在华侨城片区为绿视率最高产品。

景观面上,拥有3.7m 开间、生活双阳台,且所有功能空间无任何暗空间(卧室/卫生间/厨房全名可采光)

建面约 153 ㎡4.1米开间+7.1米客餐厅

此户型为坐北朝南,3.3m 层高经典竖厅 3 房 2 卫设计,主卧步入式鞋帽间;三面宽南向(客厅/主卧/次卧),景观视野俯瞰深圳湾海景。

所有功能空间无任何暗空间(卧室/卫生间/厨房全名可采光),景观面上,拥有4.1m 开间尺寸、生活双阳台,优于市面 95%以上公寓项目,进深 达到了7.1m大尺度客餐厅。

建面约 190 ㎡ 3.3米层高+7.3米生活双阳台

此户型为南北通透端头位,仅 45 套 拥有3.3m层高 并且为8.8m 大横厅设计。

奢阔 3 房两卫主卧 270°大空间设计,步入式鞋帽间,卫浴,景观(7.3m)、生活双阳台,俯瞰深湾湾景观。

深业世纪山谷】大平层住宅,八梯三户,建筑面积约240-280-380㎡的3-5房户型

约240㎡3+1房3卫(3栋AB座A户型)横厅格局,阔绰3房+1保姆间,厨房带1个生活阳台,户型设计非常奢侈,但最小次卧在这户型里显得略小,西北朝向。

约280㎡3+2房4卫(3栋AB座B户型)横厅格局,阔绰3房+1小书房+1保姆间,厨房带1个生活阳台,户型设计非常奢侈,西南朝向。

约380㎡4+1房4卫(3栋AB座C户型)小区里最大的户型,豪华四梯设计,横厅格局,三面采光,景观无敌,厨房带1个生活阳台,双景观阳台设计,只做了4+1房,户型设计非常奢侈,西朝向。

项目毗邻沙河东路,950米达深南大道;驾车1.5公里进入北环大道,坐拥城市交通主轴,与总部经济圈紧密相连,近邻地铁1号线白石洲站,1站到达高新园,周边五轨环绕,纵横湾区主场,从容通达世界。

轨道交通:近邻地铁1号线白石洲站,一站抵达高新园、快速通达福田、罗湖、前海、宝安国际机场;周边 2、7、9、11号线环绕,驰骋交通,打破区域界限。

陆路交通:项目紧邻沙河东路,自北向南串联起京港澳高速、北环大道、深南大道、滨海大道,纵向由沙河西路、科苑路共同构成四横三纵的一体快速路网,构筑中心枢纽。

项目自带1.69万㎡商业,15分钟畅享8大国际商业中心生活圈,方大城、九方荟、欧洲城、益田假日广场、京基百纳广场、欢乐时光、万象天地、欢乐海岸等。距万象天地、益田假日广场约2.6公里,以项目为圆心,半径1.2公里范围内有万象天地、益田假日广场,实际步行距离约2.6公里,开车需10分钟左右。

项目未来会配建一个21班的幼儿园和南外教育集团的63班九年一贯制学校,可以跟住宅同步建成,现成的学校有“南外沙河小学”“南外第二实验”

项目处于深圳最顶级的地段——深圳湾 CBD,根据2023 南山国土空间规划,此片区与科技园,后海,超总基地共同组成深圳湾 CBD。

今年拍地深圳历史最高限价地也在于此,足以代表深湾当下以及未来顶级地段的占位。

其次,项目旁边还有白石洲旧改,总建面约 550 万㎡,两倍于华润大冲的旧改项目体量,堪称深圳航母级旧改,为区域乃至深圳提供超级配套集群,将增加约 40 万方商业空间,约 5 个深圳湾万象城,3 个益田假日广场,2 个华润万象天地体量。

另外,项目 3km 内有高新园、深超总以及后海等三大总部基地环绕,贡献深圳近 1/4GDP 总量,约 208家上市公司,超 115 万高收入人群汇聚于此,未来片区内,可谓一房难求,尤其是高品质产品,未来不是有钱就能买得到的。

看完以上介绍,如需了解更多关于我们南山深业世纪山谷楼盘最新消息、剩余楼层、房价优惠活动、户型结构等情况,欢迎来电咨询我们深业世纪山谷开发商售楼处电话/预约热线:400-992-0669 中介请勿扰。

在此感谢您的认真阅读,希望为您的购房置业选择上提供帮助。想咨询了解深圳深业世纪山谷认购优惠、按时签约优惠、贷款优惠、一次性优惠、团购折扣等信息,欢迎联系南山深业世纪山谷开发商售楼处400免费服务热线:400-992-0669 (中介请勿扰),另外温馨提醒一下,因近期营销中心看房人数较多,参观样板间采取了预约制,为了不影响您的行程,过来实地看房请记得提前拨打开发商400热线进行预约,预约看房的话还可以尊享楼盘内部额外优惠,最终价格包您满意!

声明:本文由入驻焦点开放平台的作者撰写,除焦点官方账号外,观点仅代表作者本人,不代表焦点立场。