2025南山新房 一文读懂深圳荔源雅苑优缺点!分析一下荔源雅苑值得买吗!
扫描到手机,新闻随时看
扫一扫,用手机看文章
更加方便分享给朋友
最新动态:南山同乐荔源雅苑已经是准现房,现推出322套房源,面积50㎡的2房1卫,89㎡的3房2卫,115㎡的4房2卫户型,主要还是以小户型为主,价格方面可以参考旁边2022年4月份入市的鸿荣源尚璟公馆,备案均价8.94万/㎡,不过按照当前的市场,开盘均价大概率会在7万多,总价不到400万就能上车买一套2房。
荔源雅苑_Vip Tel:400-992-0669 中介勿扰
项目位于南山区南头同乐片区中山园路与铁二路交汇处,项目东侧紧挨着同乐实验学校,西侧是同乐物联网产业综合基地,南侧是近期入市的安居房同乐馨苑。
从大区位来看,荔源雅苑位居宝安区跟南山区交界处,西侧是宝安中心区,北侧是南山TCL科学园国际E城,东侧是西丽交通枢纽,深圳超级总部基地,南侧是南山中心区。
总占地面积约0.63万㎡,总建筑面积约3.36万㎡,计容建筑面积约2.33万㎡,容积率3.52,共由2栋住宅组成,其中1栋A座住宅30F,1栋B座住宅28F。
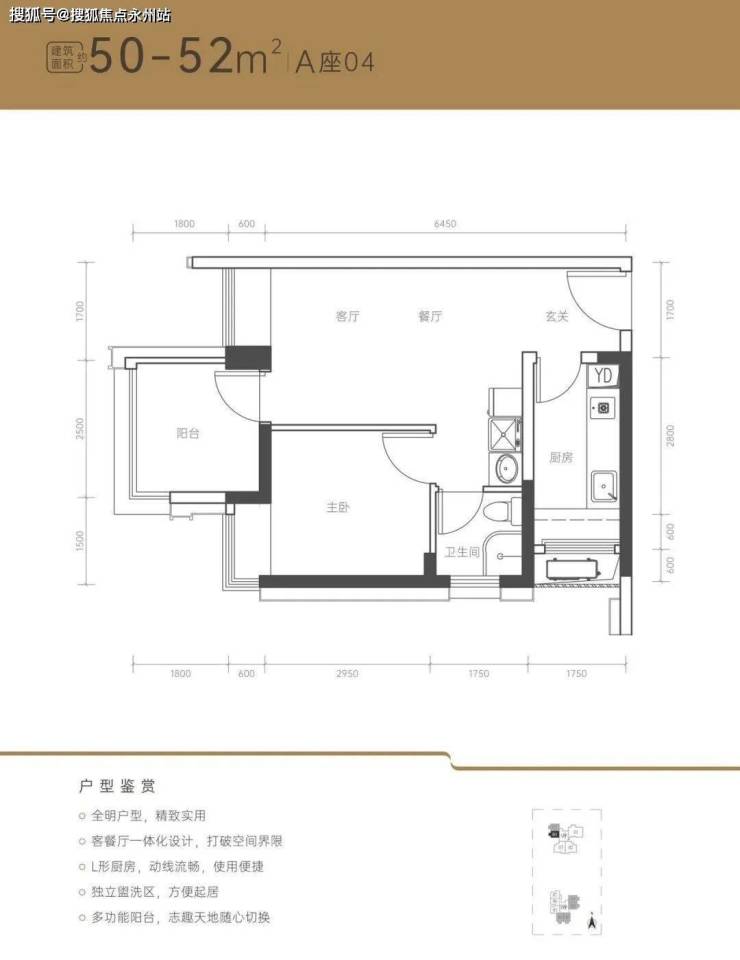
户型:50㎡-2房2厅1卫,共有238套、89㎡-3房2厅2卫,共有56套、
115㎡-4房2厅2卫,共有28套。Vip Tel:400-992-0669 中介勿扰
建面约50㎡上车小户(可售169套)全明户型:客厅带飘窗;三分离卫浴;无过道零空间浪费
建面约89㎡正南户型(可售54套)三开间正南朝向:LDKB一体化设计;动静分区
建面约117㎡楼王户型(可售28套)南北通透:中心楼王公园景观;三开间朝南;端头位且独门独户;卧室均带飘窗
项目南侧有已经开通运营的12号地铁线“同乐南站”,距离约1.3公里,步行需要20分钟,可以快速通达宝安中心区,南山高新园,深圳超级总部基地,前海自贸区。
周边还有南坪快速,南山大道,北环大道,京港澳高速等交通要道,出行便捷。
项目周边目前有成熟的社区底商,可以满足日常需求,在2.3公里范围内有海雅缤纷城,约6公里有前海壹方城,约7公里有深圳万象天地等大型商业综合体。
根据2023年南山区教育局公布的学区划分,荔源雅苑小中学区都是划分在南山区教育科学研究院同乐实验学校,该校于2004年创建,是1所九年制公办学校,现有48个教学班。
【人文配套】荷兰花卉小镇、南头古城、南山文体中心、南山博物馆、南山图书馆以及宝中重点配套,全配阵容艺术生活,涵养人文气韵。

南山同乐荔源雅苑新房现楼住宅,面积50-89-117㎡。家门口一站式优质教育,小学/初中:教科院同乐实验学校(直线距离约100m,项目目前已经封顶外立面做好是准现房状态了
深圳荔源雅苑售楼处电话:400-992-0669(1对1专线)欢迎来电咨询最新动态、房价、在售房源、交楼时间等信息,“请务必注意”甄别,我们营销中心只有一个号码,不需要转换分机。
看房请务必提前预约,避免临时无人接待, 感谢您的配合!
南山同乐·荔源雅苑欢迎您-预约看房,置业顾问一对一对接在售户型图丨项目介绍丨房源丨_周边配套丨详细解答
温馨提示:项目没有所谓的“分机号”注意保护个人隐私!谨防上当!看房请务必提前预约,避免临时无人接待,感谢您的配合!
声明:本文由入驻焦点开放平台的作者撰写,除焦点官方账号外,观点仅代表作者本人,不代表焦点立场。
