桑泰缙樾府(售楼处)首页网站-桑泰缙樾府营销中心欢迎您-楼盘百科详情-最新价格-在售户型@售楼中心2025.10.16
扫描到手机,新闻随时看
扫一扫,用手机看文章
更加方便分享给朋友
✨ 桑泰缙樾府预约通道开启,已认证,安全无忧咨询热线 ✨
✅桑泰缙樾府售楼处丨开发商丨营销中心统一热线:400-992-0669(全程认证,无分机号)
✅ 通话自动隐藏号码,保护个人隐私,谨防非渠道诈骗
南山桑泰缙樾府最新价格、户型信息,配套及交付信息,楼盘详情解析!
『缙樾府』项目是由【深圳市塘泰投资发展有限公司】和【深圳市南山荔源实业股份有限公司】共同合作开发。工商信息显示,深圳塘泰投资的母公司是桑泰集团,南山荔源实业是南山村村委企业,是比较常见的我有地,你有开发资质和经验的经典组合。
桑泰是深圳本土房企,创立于2000年,是一家集房地产开发、物业管理、城市更新、实业经营、产业园经营等产业于一体的综合性民营企业集团,目前在深圳已开发项目总建筑面积累计超200万㎡,还储备有超100万㎡待开发土地,预计建成总建筑体量超500万㎡。

『桑泰·缙樾府』位于南山南头街道同乐北片区,中山园路与铁二路交汇处东北侧,距离12号线同乐南站A出口步行约850米,与南山教育科学院研究院同乐学校相邻,旁边同期在建的还有荔源雅苑、乐源雅居、珑熙公馆、吉创中心等项目。
项目前身为“荔源实业股份中山园路征地返还用地”,与旁边的荔源雅苑、乐源雅居师出同门,占地面积约0.9万㎡,规划总建筑面积约4.78万㎡,规定容积率3.62,绿化覆盖率约30%,涵盖住宅、社区级文化活动中心业态,小区基础生活配套设施等业态。桑泰缙樾府__售楼处_Vip Tel:400-992-0669 中介勿扰
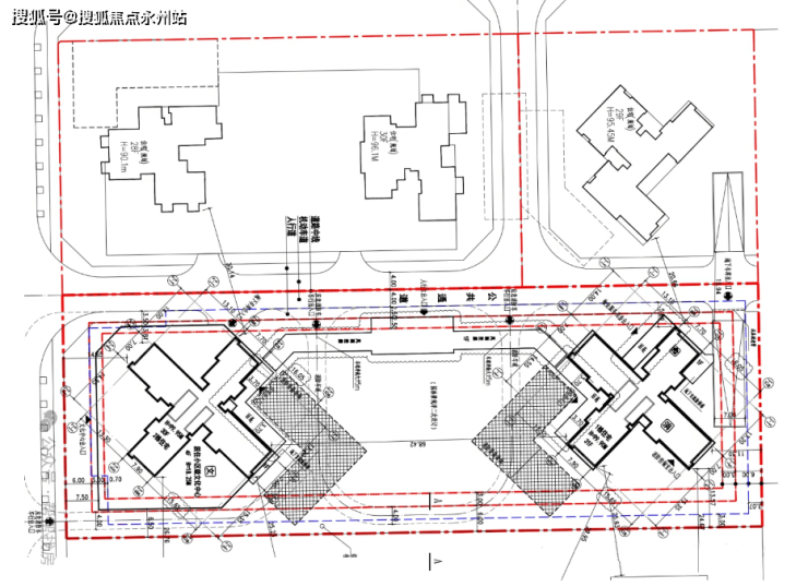
『缙樾府』地块似矩形,南北向布局,计容积率建面约3.28万㎡,含住宅约2.68万㎡,居住区级文化活动中心约5000㎡,另有其它基础生活配套设施若干,规划由2座30-31高的住宅楼组成,是一个体量的纯粹居住属性小区。
项目正在建设中,建筑主体已经封顶,施工许可证显示“缙樾府施工总承包工程”竣工时间是2025年05月31日,而合同约定的交房时间为2025年12月30日前,大概率会带装修交付。
项目由两座30-31层(约100米)高的住宅楼组成,标准层高都是3米,也都是都是3T4户梯户比,共220户,配300辆车位。
产品包括:建面约114㎡四房两厅两卫,约115㎡四房两厅两卫,约118㎡四房两厅两卫,约133㎡五房两厅两卫。售楼处_Vip Tel:400-992-0669 中介勿扰

项目的产品力是非常强,不仅是户型格局好,实用性、通透性、得房率、赠送面积、各功能间尺度等卖点也比较突出,加上自身小区又是纯居、纯大户、纯商品住宅属性,如果不是项目体量小了一点,作为改善盘,以它的条件是在市场上会非常有竞争力!
所有户型的所有功能间都有飘窗或阳台,且每个户型都报建了3个阳台,根据曝光的尺寸测算,它的产品得房率能达到81%左右,加上赠送面积使用率基本都能达到90%左右,属高拓型产品。
客厅阳台朝向以东南或西南为主,只有04户114㎡户型阳台是朝东北的,但由于它的产品都是双大面宽采光且整个餐客厅完全通透,所以即便是东北向,室内通风采光也不会有啥问题。
十字形建筑优点确实是挺多,但缺点也很明显,比如对视问题就比较突出,相邻的两条腿之间或多或少都存在对视可能,尤其是02户和03户,客厅阳台距离太近,对视问题比较突出!
如需了解更多详情,欢迎咨询桑泰缙樾府开发商售楼处咨询/预约电话:400-992-0669(中介勿扰),过来我们营销中心看房提前来电预约,而且最终的价格还能享受更多优惠。
桑泰缙樾府生活配套介绍
商业:项目周边以社区型商业为主,满足基本生活购物需求问题不大,但要享受优质商业需要前往新安中心或南山中心区,距离倒也不是特别远,就是对交通工具依赖性大,欠缺便利性!
地铁:距离地铁12号线“同乐南”站步行约850米,在此站乘车2站即可在灵芝站换乘地铁5号线。另外,地铁五期在建的15号线也会途经同乐北片区并在此设有“同乐关”站。
学校:根据南山区现行的学区划分,项目中小学对口正是相邻的“南山教育科学研究院同乐实验学校”,加上相邻地块规划待建的幼儿园和九年学校,未来可实现小孩全龄段的目送式教育。
医院:项目1.5公里范围内分布有宝安人民医院和南山中医院,两所三甲级综合公立医院,生活中如遇身体不适可就近就医。
休闲:项目北侧有一块占地约2.5万㎡公园用地,1.5公里范围分布有同乐体育公园、新安公园、中山公园、洪浪公园等多个公园,能够满足片区居民多场景、多样化休闲娱乐需求。
文体:同乐北片区目前有同乐体育公园和南联体育中心,虽然算不上市政级场馆,但日常体育活动就近能满足。同时距离宝安青少年活动中心、宝安1990文化中心也不算太远,借助短途交通工具约10分钟可达。
如需了解更多本项目信息,请拨打售楼处电话,现场销售会为您详细介绍楼盘。
桑泰缙樾府_开发商售楼处_Vip Tel:400-992-0669 (中介勿扰)
(更多项目动态| 欢迎来电咨询 | 请提前预约登记看房 | 1:1销售专业讲解)置业顾问一对一对接,来电尊享受额外优惠
*特别提示:本宣传资料所涉宣传内容,仅作为项目宣传推广使用,不在任何意义上构成开发商的承诺与要约,具体以政府部门审定的规划设计文件及商品房买卖合同的约定为准。本公司有权对宣传内容进行修改、调整,敬请留意最新宣传资料。
声明:本文由入驻焦点开放平台的作者撰写,除焦点官方账号外,观点仅代表作者本人,不代表焦点立场。
