中建鹏宸云筑(售楼处)首页网站-中建鹏宸云筑营销中心-中建鹏宸云筑欢迎您-中建鹏宸云筑楼盘详情-最新价格-户型图-容积率@售楼处最新发布
扫描到手机,新闻随时看
扫一扫,用手机看文章
更加方便分享给朋友
龙华『中建鹏宸云筑』西区8栋154套建面约102-139㎡四房取证,这是该项目第5次取证,西区地块首次加推。
预售证情况:8栋已于2025年8月25日取得预售许可证(深房许字 (2025) 龙华 014 号),并于8月26日启动线上登记(i 深圳APP)及冻资(10万元),8月31日正式开盘。
交房时间:8栋预计2028年4月30日带精装交付,配置全屋东芝中央空调,精装标准高于区域同类项目。
到访预约优惠:提前通过开发商售楼处电话预约看房(400-992-0669),可享专车接送+折上98折+额外家电礼包(限量房源先到先得)
价格详情与优惠政策
备案均价:备案均价6.12万元 /㎡,备案单价5.51-6.66万元 /㎡,总价566-928万元/套(含1套174㎡大户型)。
折后价格:开盘享93折优惠,折后均价5.69万元/㎡,折后单价5.13-6.19万元/㎡,总价526-863万元/套。具体户型价格如下:
103㎡户型:91 套,折后总价 526-604 万元,单价 5.1-5.9 万元 /㎡。
118㎡户型:31 套,折后总价 604-668 万元,单价 5.1-5.7 万元 /㎡。
139㎡户型:31 套,折后总价 756-863 万元,单价 5.4-6.2 万元 /㎡,高区单价较低区溢价约15%。
冻资优惠:冻资10万元可锁定开盘折扣,同时可参与砸金蛋活动,最高享3000元豪礼。
中建鹏宸云筑售楼处_Vip Tel:400 992 0669 中介勿扰,预约看房享受专属优惠大礼包(赠送物业管理费、赠送家电大礼包、额外购房补贴等)可享折上折优惠
中建鹏宸云筑,是龙华网红热销项目,曾经历4次开盘,开盘房源合计1015套,折后均价约5.5万,截至目前综合去化约91.5%,实际超95%,这个成绩在当今的市场环境可谓非常优秀,项目好不好?值不值得买?它已经用业绩证明了自身,消费者也用真金白银给出了答案!(深圳龙华中建鹏宸云筑售楼处电话:400 992 0669)
项目由中建集团打造,由总占地面积约4.33万㎡,总建筑面积约31万㎡,计容建筑面积约22.6万㎡,容积率5,绿化率40.01%,分2个地块开发,共由10栋总高32-47F的住宅组成,其中1栋住宅45F,2栋住宅44F,7栋住宅47F,3栋/5栋/6栋/8栋/10栋32F,11栋住宅46F,4栋规划商业,另规划有1所12班制的幼儿园。
整个项目规划户数为1992户,其中东区1016套,西区976套,全部都是规划的商品房,涵盖了多种户型设计。其中,6栋、8栋、9栋和10栋的高层住宅采用2梯5户设计,3栋和5栋为2梯6户,而1栋、2栋、7栋和11栋的超高层住宅则采用3梯6户设计。(深圳龙华中建鹏宸云筑售楼处电话:400-992-0669)
本次将推的是西地块8栋住宅,总高32层,2梯5户设计,总共154套,面积有102-118平的4房2卫,139平的4+1房2卫户型,均为纯四房设计,采用深圳建筑新规标准,综合实用率超100%
到访预约优惠:提前通过开发商售楼处电话预约看房(400-992-0669),可享专车接送+折上98折+额外家电礼包(限量房源先到先得)
103㎡ 3+1 房 2 卫(东南 / 西南朝向):
格局:竖厅设计,入户玄关收纳系统,约 6 米宽阳台连通客厅与次卧,主卧套房带独立卫浴。
亮点:LDKC 一体化(客餐厨阳台连通),分户 S 墙可灵活调整空间,得房率约 81%(不含赠送),实际使用面积达 107.29㎡。
118㎡ 3+1 房 2 卫(南北通透):
格局:横厅设计,约 4.6 米玄关收纳空间,南北双阳台对流,主卧套房带步入式衣帽间。
亮点:约 6.3 米横厅开间,可改造为五房,得房率约 81%(不含赠送),实际使用面积 126.62㎡。
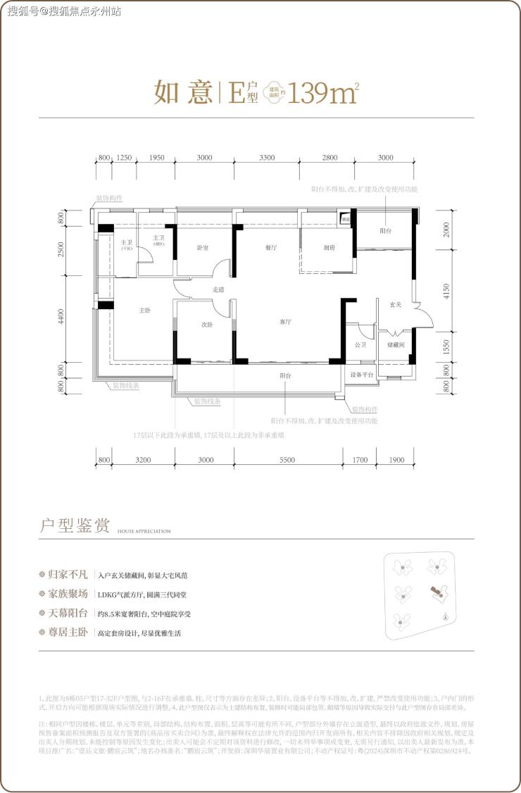
139㎡ 3+2 房 2 卫(南北通透):
格局:竖厅设计,入户玄关储藏间,约 8.5 米宽阔阳台连接客厅与次卧,主卧套房带 270° 飘窗。
亮点:得房率约 81%(不含赠送),实际使用面积 144.57㎡,可满足三代同堂需求。
生活配套信息简介
地铁:距离10号线南坑站C出口约600米,2站达福田冬瓜岭,4站到岗厦北,规划中的 22 号线横岭站约 700 米,预计2028年通车后可实现福田⇌观澜45分钟直达深圳市龙华区政府。
规划学校:北侧规划省一级标准的 72 班九年一贯制学校(预计2026年完工),周边现有华南实验学校(公立)、万科双语学校(民办)。
幼儿园:项目自带 12 班制幼儿园,可实现目送式教育。
核心商圈:500米范围内有8号仓奥特莱斯,1.5公里内覆盖星河 COCO City、龙华印象汇等,3公里可达红山6979、深业上城等高端商业体。
社区商业:项目自带2万㎡商业裙楼,满足日常生鲜、餐饮需求。
自然景观:楼下即民悦公园(升级改造中),近揽民治水库湖景,远眺塘朗山、银湖山,8栋楼王为一线前排无遮挡湖山视野。
文体设施:3 公里范围内有民治体育公园、红木山郊野公园、龙华文化艺术中心等。
龙华中建鹏宸云筑8栋楼王凭借稀缺湖山景观、高使用率户型及完善配套,成为龙华梅林关片区改善置业的标杆项目,具体信息以开发商公告为准,可通过“鹏宸云筑”公众号或售楼处(电话:400-992-0669)获取实时资讯。
如需了解更多详情,欢迎咨询龙华中建鹏宸云筑售楼处电话400 992 0669,过来我们营销中心看房提前来电预约价格还能更优惠。
【深圳中建鹏宸云筑开发商售楼处400免费咨询/预约电话:400-992-0669,中介请勿扰】
温馨提醒:欢迎致电开发商售楼中心,我们将竭诚为您解答疑问。为确保您的咨询安全,通话时号码将自动隐藏。请提前与销售团队预约,以确保您能顺利进入销售现场,避免不必要的等待。
声明:本文由入驻焦点开放平台的作者撰写,除焦点官方账号外,观点仅代表作者本人,不代表焦点立场。
