中化·凤鸣水岸花园售楼处(售楼中心)凤鸣水岸花园售楼处|楼盘详情
扫描到手机,新闻随时看
扫一扫,用手机看文章
更加方便分享给朋友
深圳宝安【中化·凤鸣水岸花园】
本项目推出约372套住宅产品,面积段约75-120㎡3-4房,总价510万起!户型使用率达81%,精装修样板房开放中!过来营销中心现场实地参观样板房,请记得提前拨打开本楼盘开发商售楼处电话:400-992-0669 进行在线预约!预约看房价格更优惠,谢谢配合!
项目基础数据:
◎项目名称:凤鸣·水岸花园
◎开发商:深圳市金桂商务信息有限公司
◎物业公司:佳兆业
◎项目地址:深圳·前海·尖岗山
导航地址:尖岗山大道与卧龙四路交汇处
◎占地面积:约2.1万㎡
◎建筑面积:约6.7万㎡
◎推售房源:372套住宅
◎推售产品:75-120㎡3-4房
◎开发商售楼处电话 4009920669
◎价格:510万起
◎车位比:1:1 共750个,其中充电桩车位225个
◎容积率:3.2
◎梯户比:1.2栋2梯6户,3.4栋2梯7户(人才房)
◎总层高:1,2 栋 32 层,3,4 栋 30 层
◎产权年限:70 年(2021 年-2091 年)
凤鸣水岸花园值不值得买?
凤鸣水岸,位于深圳宝安环境优美的尖岗山豪宅区,这里建筑密度小,有很好的自然风光!
实景航拍



1、豪宅居所,世界定位
五区叠加之地,前海、宝安双区核心,凤鸣水岸位于宝安、南山、福田、北站商务区、机场&空港商务集群“五中心”交叉片区的核心位置,享受五区发展利好。项目约7KM即达前海中芯,精英汇聚,潜力无限。
【世界第八大半山豪宅区,塔尖身份标签】作为“世界十大顶级豪宅区”之一(数据来源:美国顶级奢侈品权威杂志《ROBBREPORT》,尖岗山依托不可复制的山水资源,荟集中国曼哈顿——前海企业领袖,成为名副其实的世界富豪聚集地,已然成为塔尖圈层的身份象征。
2、交通配套
毗邻地铁 5 号线【兴东站】,4 站直达宝安中心,6 站直达深圳北站,7 站直达前海湾,可便捷换乘 1/11/13 号线,近享 9 号线(西延线二期规划中),可快速通达深圳各中心。
主干道京港澳高速、107 国道、南光高速,直线距离约 10KM 内可达宝安国际机场、蛇口港码头、深圳湾口岸,便捷全球
3、商业配套
商业:曦城 VIVITOWN 山地风情商业街、中洲πMall、海雅缤纷城、壹方城、万象天地
文娱:宝安滨海文化公园、宝安体育场、青少年宫、演艺中心
4、教育配套
深圳“大学区”政策出台,片区生源多为引进人才及高净值人群后代,更加优质、纯粹,营造更好教育环境的同时,也为孩子组建一个高端、优质的社交圈层。
项目楼下就是公交南方科技大学附属宝安学校,去到学校的距离可以准确的用步来测量,
家门口的学校和幼儿园未来无需为接送小孩上下学所烦恼
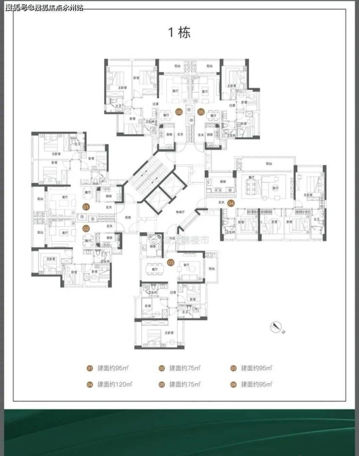
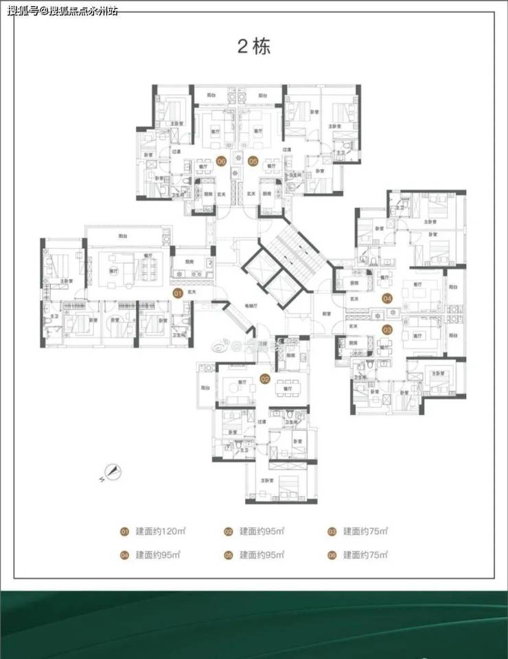
5、凤鸣水岸花园户型鉴赏:
户型分布图
(1、2栋是商品房,3、4栋为人才房)





【凤鸣水岸花园开发商售楼处电话:400 992 0669(中介请勿扰)】
✅ 过来营销中心看房,请记得提前拨打400热线预约,感谢配合!
✅ 看房预约可享楼盘内场优惠折扣,并安排现场销售一对一服务!
✅ 来电可了解楼盘最新消息、房价、在售房源、交楼时间等信息!
免责声明🔉:
以上所发布的关于深圳尖岗山凤鸣水岸花园楼盘信息仅供参考,所有图文资料及说明请以最终批文及双方在楼盘营销中心现场签署的买卖合同为准;本图文内容如无意中侵犯某方权益,请联系我们将会及时处理。
声明:本文由入驻焦点开放平台的作者撰写,除焦点官方账号外,观点仅代表作者本人,不代表焦点立场。
