深业中城(深业中城)首页网站丨深业中城欢迎您_房价_户型_楼盘详情
扫描到手机,新闻随时看
扫一扫,用手机看文章
更加方便分享给朋友
如果看完以上关于我们福田深业中城项目的介绍后,您还对如下问题想要深入了解的话:
问题如:最新推出的房源备案价格,小区在售的有多少栋楼,各个楼栋户型具体是什么朝向,每一层楼规划的是几梯几户,这一期卖的房小区里面有多少户,容积率多少,楼栋总共多少层,现在卖的户型具体交楼时间,这几种户型剩下的还有那些,小区门口离地铁近吗,该社区是怎么划分学校的,可以申请哪些小学和初中,交房后物业费怎么收?物业管理费每平米每月多少元,交房是精装修还是毛坯,停车位够吗?停车位有多少个?,小区周边未来有什么规划,楼盘展厅、营销中心在哪里?具体什么时候开盘?开盘多少钱一平米,周边配套,楼盘详情,值得买吗,潜力升值如何,升值空间大不大,营销中心地址怎么导航,坐地铁到哪个站下车过来楼盘比较近,周边近期有什么规划,周边商业配套怎么样,拿地批地时间,这几天楼盘现场最新优惠活动情况等。
建议您可以拨打我们楼盘内场400免费咨询电话与售楼处现场销售直接了解。
福田深业中城开发商售楼处电话:400-992-0669(中介勿扰)
深业中城 金融街原始股,城市都心,臻稀资产约49-286㎡现楼公寓
香蜜湖豪宅区,顶级资源 一面是繁华,一面是宁静。一步步入商场,一步回归生活!

深业中城
项目基础信息
【开发商】深圳市深业中城有限公司
【占地面积】约3.6万㎡
【建筑面积】约36万㎡
【公寓产权】40年
【标准层高】3.6米
【总户数】751户
【总层高】42层
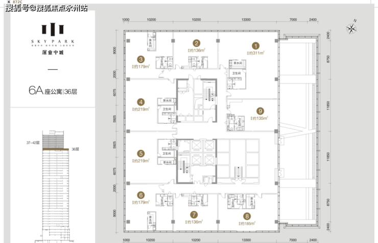
【公寓面积】6A栋约124-286㎡、6B栋约49-118㎡
【梯户比】6A栋4梯9户、6B栋9梯20-24户
【销售价格】约9-12万
【交楼时间】现楼
【交付标准】6A栋毛坯,6A栋精装
【管理费】9.9元/㎡/月
【项目地址】福田区红荔西路与农园路交汇处东南侧
项目核心价值
【区域—福田恒定中心】
三大新引擎,助推福田向新
① 湾区经济看深圳,深圳经济看福田
● 首善之区,深圳行政、金融、科创多元中心,以不到全市4%的土地面积,贡献了全市约1/6的GDP、1/5的税收
● 截至2021年底,福田GDP突破5000亿元,地均GDP达67.4亿元/平方公里,连续22年全市第一

② 三大新引擎牵引,福田CBD再出发
● 新引擎一:香蜜湖新金融中心,全球创新资源配置枢纽

● 新引擎二:环中心公园活力圈,公园与城市高度融合的综合开发模式

● 新引擎三:河套深港科技创新合作区,国际开放的科创中心

【封面—国际化香蜜湖】
—世界级金融街,再造新中心
① 总部聚集区,超强产业阵营
● 超200家企业总部,百余家世界500强、金融机构、上市企业进驻,引领蝶变
● 荣耀全球总部入驻深业中城5A超甲级写字楼,华为投资40亿进入香蜜湖,产业再添竞争力

② 高起点规划,傲领全球资本
● 香蜜湖新金融中心,福田三大新引擎之一,被誉为“深圳国际金融街”
● 对标美国硅谷沙丘路,打造大湾区首个创投街区——福田香蜜湖国际风投创投街区
● 继香港中环、上海陆家嘴、北京金融街之后面向世界的第四座国际金融城
● 深业中城一路之隔即香蜜湖新金融中心,坐拥CBD超强规划和投资前景

③ 一馆三中心,地标即未来
香蜜湖片区定位为大湾区国际文化交流中心,集萃四大地标建筑,以“世界眼光、国际标准”,带动城市焕新蝶变
● 深圳国际交流中心:国际交往平台,将成为全国WELL铂金级别会议中心和智慧化会议综合体标杆
● 改革开放展览馆:中国改革开放大型历史博物馆,将成为接待国内外政要的重要场所
● 深圳金融文化中心:国内外一流的综合性、新型的金融文化中心
● 深圳国际演艺中心:精研世界顶级演艺中心,探索未来新科技、新技术、新演出方式

【交通—都会黄金枢纽】
—执掌湾区,畅享“半小时生活圈”
福田之心、香蜜中央,项目坐拥多维立体枢纽,接驳全城,纵横湾区,通达世界
● 战略枢纽:近揽广深港高铁福田站高效跨城;深圳北站高铁纵横畅达全国;广深港磁悬浮香蜜湖站(规划中)迅捷往来(信息来源:鹏城城市更新)
● 轨道交通:毗邻深圳最大地下轨道交通枢纽车公庙地铁站(步行约500米),汇聚1/7/9/11号线4条地铁线
● 国际航空:深圳宝安国际机场、香港国际机场、广州白云国际机场覆盖全球航班
● 动脉路网:四横(红荔路、深南大道、滨海大道、北环大道)四纵(香蜜湖路、广深高速、新洲路、皇岗路)繁华路网,快速通达全城
● 深港口岸:近邻福田口岸、皇岗口岸,深港生活一键切换

【生态—香蜜绝版绿肺】
—六重景观,城市都心氧吧
项目尽享香蜜湖腹地“山湖园海高尔夫花谷”六重臻稀景观,堪称福田CBD的秘密花园
● 东览约120万㎡香蜜湖(约150米),超80公顷莲花山风光
● 西瞰园博园(约2km),安托山公园(约2.3km)
● 南观深圳高尔夫球场(约900米),远眺深圳湾海景
● 北望约15000亩塘朗山脉,约43万㎡香蜜公园(生态廊桥直达),深圳花艺地标香蜜湖·四季花谷(约350米)
项目周边众多公园环绕,于都心氧吧,享写意生活


【配套—中心繁盛优配】
—万象醇熟,举步精粹生活
项目于城市禀赋之地,执掌都会一站式醇熟配套,际会CBD写意生活场
● 繁华商业:项目自带约2万㎡Block街区商业,已醇熟运营;一街之隔即东海城市广场、东海缤纷天地,毗邻印力中心(约1km),畅享山姆会员店,驱车畅达欢乐海岸(约4km)、COCO park(约3km)、皇庭广场(约3.7km)等缤纷商圈;朗廷酒店、JW万豪酒店、深航酒店等五星级酒店群环伺周边(约1km内)
● 高端重奢:福田区政府与太古地产签订战略协议,太古地产首进深圳,或将为香蜜湖带来重奢购物中心,助力打造香蜜湖高端消费区、世界级地标性商圈
● 优质医教:项目片区深圳高级中学、东海实验小学、深圳外国语小学、东海培翠幼儿园等多所学校林立;深圳眼科医院、香港大学深圳医院、北京大学深圳医院等多所医院,护航健康美好生活(约3km内)


【设计—国际大师联袂】
—匠心独运,臻筑封面作品
澳大利亚PTW建筑师事务所、CCDI悉地国际、普利斯设计咨询place design group国际大师团队联袂执笔,定制都会品质空间,赋予时代人物对话世界的高阶视野和奢居体验

【产品—香蜜湖正席资产】
—值此一寓,进阶塔尖圈层
都会塔尖生活藏品,增值保值中心资产,总价约500万起入住香蜜湖绝佳时机,高净值人群趋势之选,地段之上,性价为王
● 3.6米层高,更多的空间特权
● 观景阳台,凭栏见不凡
● 品质臻装美寓,助您入住无忧
● 不限购不限贷,城市顶端资产


(项目实景图)
【现楼—好房眼见为实】
—供不应求,难得中心豪宅
● 深圳寸土寸金时代,未来香蜜湖豪宅区的高档物业将可遇不可求
● 新金融中心产生的高端租赁需求与日俱增,未来潜力真实所见
● 项目现楼真房源在售,即买即入住,租住两全,收益更快一步

(项目实景图)
【品牌—深字头国企】
—39载深业,匠筑品质典范
深业集团,国企标范,大型综合实力开发商,城市空间价值塑造引领者,39载与深圳同频共振,秉持“再深耕,共成长”发展理念,不断为城市筑造人居标杆作品,执掌即为典范











福田【深业中城】深业中城开发商售楼处电话:400-992-0669(中介勿扰)
来电可了解楼盘最新动态、房价、在售房源、交楼时间等信息!让你买的放心,住的舒心!
深业中城开发商售楼处直销_欢迎来电预约享受内部折扣_恭迎品鉴
◆提前来电-预约登记尊享售楼处销售专业讲解〢一对一热情服务〢◆
深业中城开发商售楼中心〢预约可享内部优惠〢匠心钜制-恭迎品鉴〢
温馨提示:项目没有所谓的“分机号”注意保护个人隐私!谨防上当!看房请务必提前预约,避免临时无人接待,感谢您的配合!
免责声明🔉:以上所发布的楼盘相关信息仅供参考,所有图文资料及说明请以最终批文及双方在楼盘现场签署的买卖合同为准;本图文内容如无意中侵犯某方权益,请联系我们将会及时处理
声明:本文由入驻焦点开放平台的作者撰写,除焦点官方账号外,观点仅代表作者本人,不代表焦点立场。
