沙井拾悦城楠园二期(宝安)拾悦城二期楠园首页网站丨拾悦城楠园楼盘折扣动态
扫描到手机,新闻随时看
扫一扫,用手机看文章
更加方便分享给朋友
沙井拾悦城楠园二期(宝安)拾悦城二期楠园首页网站丨拾悦城楠园楼盘折扣动态宝安-沙井《拾悦城二期楠园》2023年10月11日取证,首推b座、e座共计520套房源。面积86平方3房2厅1卫,100-103-107平方3房2厅2卫,115平方4房2厅2卫,140平方5房2厅2卫,备案均价50057元/平方,总价最低374万,最高总价851万。折后均价4.5万/平方,对比2017年拾悦城一期开盘均价4.3万/平方,只相差2000元/平方,预计2025年交房带装修。
售楼处营销中心电话_Vip Tel:400 992 0669
拾悦城楠园位于广东省深圳市宝安区宝安大道11号线沙井站B口/马安山站A口,宝安拾悦城二期楠园总户数约:2000套,可售约:1307套车位约:2300个,户型详细户型段:约86平(三房两厅一卫)约90平-107平(三房两厅两卫)约115平-125平(四房两厅两卫)约140平(五房两厅两卫)项目整体占地约3.54万㎡,总建面约17万㎡,共规划了14栋30-48层超高层住宅、4栋26-33F高端写字楼及部分商业配套组成,还规划了一所36班九年一贯制学校、一所18班幼儿园。
拾悦城楠园采用的是开发商直接在售楼处进行销售,并且通过网络平台进行推广
拾悦城楠园_开发商售楼处_Vip Tel:400 992 0669 (中介勿扰)
(更多项目动态| 欢迎来电咨询 | 请提前预约登记看房 | 1:1销售专业讲解)置业顾问一对一对接,来电尊享受额外优惠

拾悦城二期分为“楠园”和“沁园”,两个全新的住宅社区。率先入市的为楠园,居住属性纯粹,占地面积约3.5万㎡,计容建面约23.5万㎡。楠园由8栋建筑主体组成,分为1栋、2栋,其中1栋由A-G座组成,总房源1682套,其中商品房有1202户,回迁房480户。

项目户型介绍
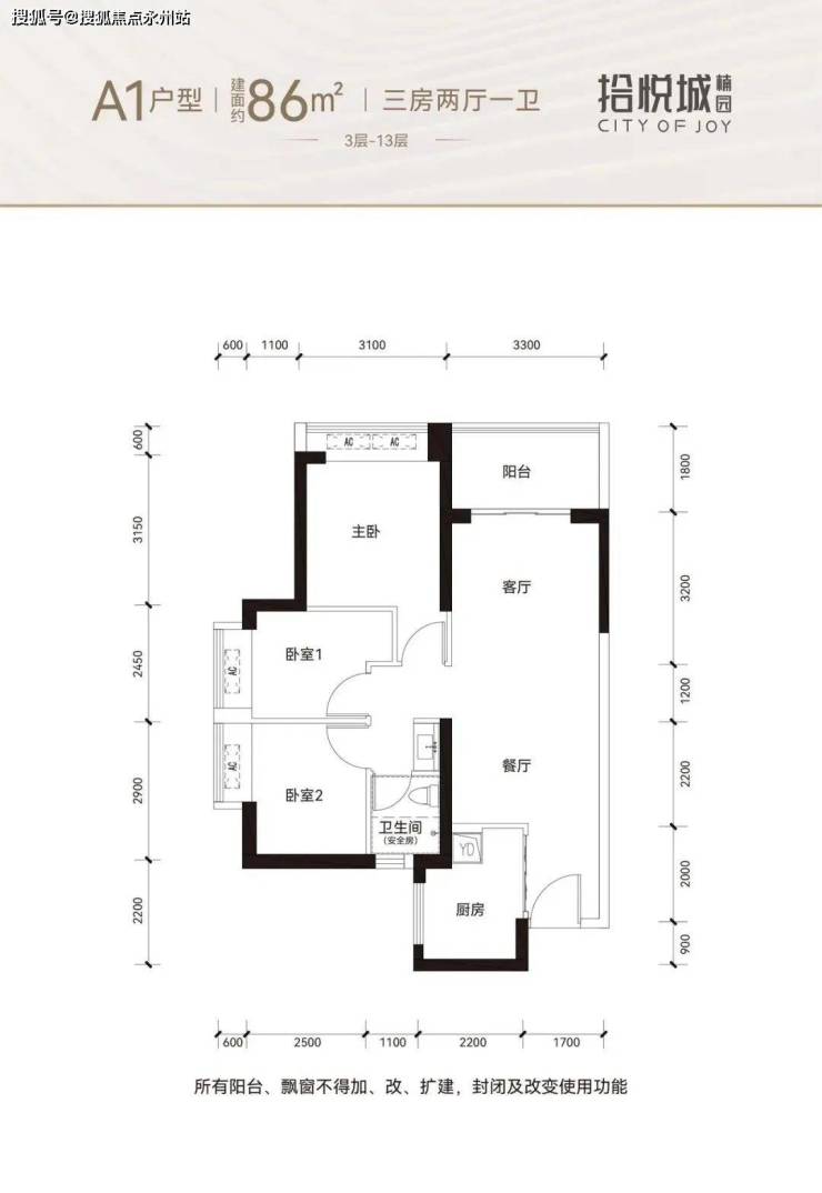
86㎡的3房2厅1卫:设计的竖厅格局,向套内面积66.26㎡,得房率77%左右,客厅3.3米开间,目前仅B座06户型有,东北朝
100㎡的3房2厅2卫:设计的竖厅格局,套内面积77.24㎡,得房率77.24%左右,客厅3.4米开间,有西南及东南朝向
103㎡的3房2厅2卫:设计的竖厅格局,套内面积79.4㎡,得房率77.09%左右,客厅3.4米开间,目前仅B座07户型有,东北朝向
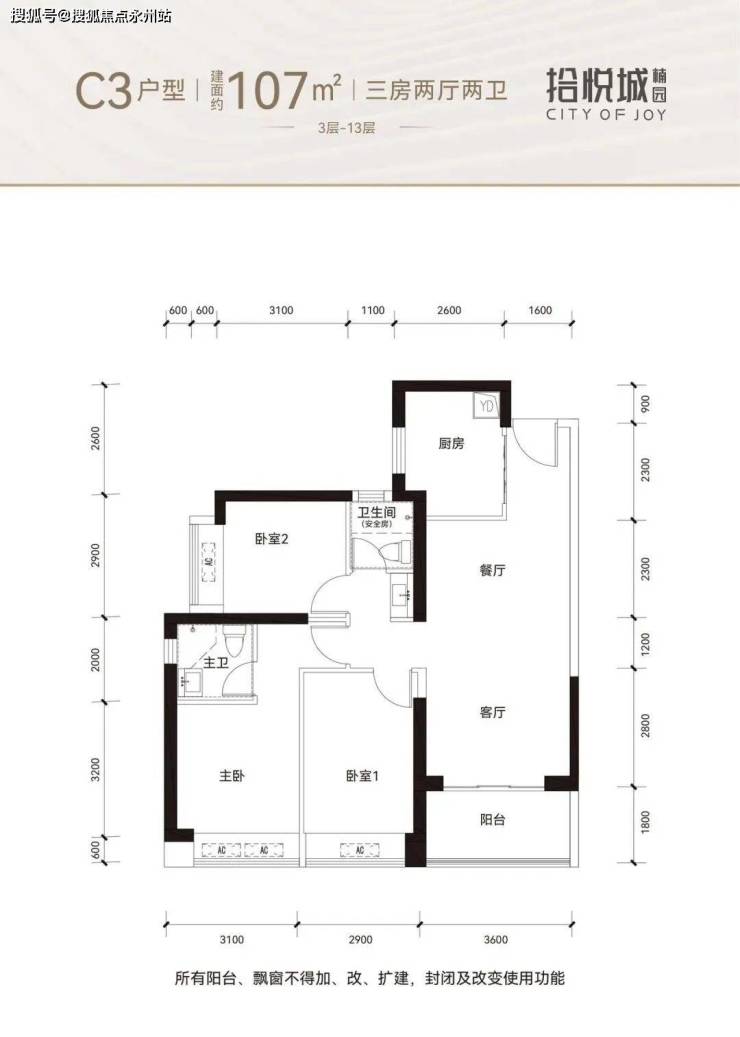
107㎡的3房2厅2卫:设计的竖厅格局,套内面积82.59㎡,得房率77.19%左右,客厅3.6米开间,西南朝向
115㎡的4房2厅2卫:设计的竖厅南北通透格局,套内面积88.51㎡,得房率76.97%左右,客厅3.6米开间,目前仅E座05户型有
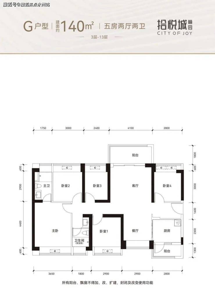
140㎡的5房2厅2卫:设计的竖厅南北通透格局,套内面积107.99㎡,得房率77.14%左右,客厅4.7米开间,目前仅B座05户型有
拾悦城楠园样板间鉴赏
作为拾悦城进阶归来的力作,楠园此次亮相的为建面约 86-140㎡全能3-5房,从对进阶生活方式的洞察出发,以 “舒居尺度” 为纽带,户型布局轻松适应不同家庭阶段及居家场景的变化,伴随着家庭成长的每一步,让生活一步到位。
86㎡硬核3房 刚需上车首选
餐客厅一体化设计,可根据喜好随心布局;动静分区的格局,让处于不同场景的家人各享所乐,又互不干扰;轩敞阳台空间,可根据家庭需求改造成不同区域,花园、茶室、健身室......让所有成员都能共享生活的美好从容。

100㎡升级3房 百变生长空间
三开间朝南设计,最大限度扩大室内采光面;创新户型布局,既保证了主卧的阔绰空间,也有pro max次卧,结构灵活百变,满足家庭不同阶段的不同需求;整体空间尺度大气舒适,为每位家庭成员提供了更多生活可能性。
118㎡宽阔4房 三代同堂优选
全明采光户型,四卧室、厨房、两卫、客餐厅等均设计超大采光面,带来明亮通透的舒适居感,客餐厅以横厅布局,让家庭居住空间的视野范围和活动区域扩大,加强家庭成员之间的情感交流;不论是三代同堂的天伦之乐,亦或是四口之家的温馨时刻,皆能一步到位。
交通:项目紧邻11号线沙井站约700米,前往宝中、南山和福田相对缘,到达科技园需要约1小时,自驾走宝安大道、广深公路或京港澳高速,到达宝中和南山需要约四五十分钟。
商业:自带部分商业,只能满足日常购物需求,随着旧改推进,会和招商雍和府形成一个小商圈。周边商业配套有百佳华MAX CITY(沙井店)、百佳华奥特莱斯、华润万家、西荟城购物广场,直线距离均在一公里范围内。
教育:项目自带一所18班的幼儿园,未来还将规划九年一贯制学校教育用地引进宝中集团合办分校;周边有壆岗小学、拾悦小学、万丰小学等学校,但对比宝安其余几个片区的教育资源,项目周边学校成色略显不足。
文娱:楼下步行可达约9.5万㎡占地的定岗湖湿地公园,茶余饭后散步的好地方,一公里范围有万丰羽毛球馆、大钟山公园新桥中心公园、新桥市民广场,这些可以作为日常休闲的去处。
拾悦城楠园售楼处电话:400-992-0669 售楼中心,项目全面介绍,包含楼盘简介、售楼电话、小区户型图片、营销中心位置、区位优势、交通、周边商业配套、户型图等楼盘详情以上全文就是【拾悦城二期楠园】楼盘详情,这篇文章的详细分析和点评,感谢您的阅读,希望为您的购房置业选择上提供帮助,开盘预售动态、价格走势资讯、项目最新消息,待定更新发布,敬请持续关注订阅。
如需了解更多本项目信息,请拨打售楼处电话,现场销售会为您详细介绍楼盘。
拾悦城楠园_开发商售楼处_Vip Tel:400 992 0669 (中介勿扰)
(更多项目动态| 欢迎来电咨询 | 请提前预约登记看房 | 1:1销售专业讲解)置业顾问一对一对接,来电尊享受额外优惠
声明:本文由入驻焦点开放平台的作者撰写,除焦点官方账号外,观点仅代表作者本人,不代表焦点立场。
