深圳盛合天宸(宝安)首页网站丨盛合天宸楼盘详情_房价_户型_详情
扫描到手机,新闻随时看
扫一扫,用手机看文章
更加方便分享给朋友
自粤港澳大湾区规划出台以来,深圳西部近“海”楼台先得月,宝安靠近机场一带近几年变化较大,政府提出海洋新城、大空港等概念,新的国际会展中心落户于此,产业发展方面有着较好的发展势头。海洋新城地处粤港澳大湾区核心地带,定位为湾区海洋门户、蓝色创新海湾,未来发展前景良好。到今天,深圳西部沿海地带形成了一条滨海发展轴。这条轴线上,海洋新城、大空港片区一跃成为粤港澳大湾区发展核心阵地。
➢ ➢深圳西部【 盛合天宸】开发商售楼处电话:400-992-0669 中介勿扰
➢ ➢深圳宝安【 盛合天宸】—「开发商售楼处」—「欢迎您!」
➢ ➢来电可了解楼盘最新动态、房价、在售房源、交楼时间等信息!
盛合天宸位于宝安区航城街道黄田路和航空路交汇处东北侧,处于前海·空港双核一级经济辐射圈,地铁一号线固戍站、十二号线(规划中)穗莞深城快线环伺,悦享多重成熟配套,千万级城市更新旧改,娱乐出行生活便捷,未来发展潜力巨大。
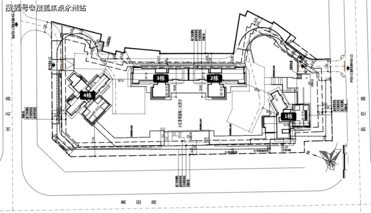
盛合天宸家园宝安区航城街道黄田路和航空路交汇处东北侧,据现场施工牌显示,项目用地面积约1.4万㎡,总建面约7.4万㎡,规划建设4座29层的住宅塔楼,竣工日期为2021年10月9日。
根据项目现场的工程概况牌上,写着项目竣工日期是2021年10月。

项目住宅主体部分已经接近封顶,与项目仅有一路之隔的便是建筑总体量约130万㎡的综合体领航城,项目3月份入市的五期北区已经是现楼状态。
作为整个片区内唯一的超大型社区,领航城社区内部配套相对完善,而且环境相对较好,宜居性也相对更高一些,再加上多年来分期开发,积攒了一定的人气和口碑。
———盛合天宸户型品鉴———

开发商介绍
施工许可证显示,项目发展商为<深圳市草围股份合作公司>和<深圳市永铭投资有限公司>,近些年像这种你有地我有钱,当地村委和房地产开发商共同合作开发项目的案例有很多,已经非常普遍了。
草围股份是由草围集体资产管理委员会和部分草围村民共同持股组建,是典型的村委型企业。
盛合天宸花园项目(宗地号:A116-0377)位于宝安区航城街道三围社区黄田路和航空路交汇处东北侧,与钟屋社区的知名小区--领航城一路之隔。项目于2019年11月8日取得基坑、土石方施工许可证,于2020年5月渠道建筑主体施工许可证,合同竣工日期为2121年10月9日。

盛合天辰花园项目共规划有426户,套内面积<90㎡有369户,占比86.61%,结合目前大部分新房公摊及实用率判断,预计3房会是主力户型,2房及4房会有少许货量。目前项目正在建设中,基本处于封顶阶段.

配套介绍
商业:项目自带有200㎡商业,体量非常小,无法满足社区日常生活购物,项目的商业配套主要依赖周边商业。项目临近建筑楼下分布有少量临街商铺,另外项目南侧的领航城小区配有航城里购物中心,距离项目直线约380米。周边临近商业完全可以满足项目日常生活购物娱乐所需。
除自带商业和临近商业外,项目1.5公里范围内还分布有嘉禧时代广场、新天地购物广场、置富购物广场等集中式商业。不过,这些商业基本都集中在项目南侧方向,距离项目距离稍远,如要享受这里的商业配套需要借助交通工具。

交通:轨道交通:项目1.5公里范围内覆盖有2条地铁线路,一个是1号线(罗宝线),另一个是在建的12号线(南宝线)。项目距离1号线最近的站点是固戍站步行约1.3公里,距离在建的12号线最近的站点步行约1.8公里。不论是现有地铁口还在在建地铁口距离项目都较远,需要借助交通换乘地铁。

项目周边道路交通路网非常完善,南有航城大道,北有机场南路+在建的深岑高速,西有宝安大道,东有广深高速+京港澳高速,以上主干道均在项目1.5公里范围内。导航显示,在不堵车的情况下,走机场南+京港澳高速到福田及罗湖中心区通勤时间预计在35分钟左右;走广深公路到南山中心区通勤时间预计在25分钟左右;走广深+南坪+福龙到龙华中心区通勤时间在40分钟左右;到龙岗中心区的通勤时间则在1个小时以上。

教育:项目周边教育资源丰富,1.5公里范围内分布有宝安航城学校、华胜实验学校、振兴学校、桃源居中澳实验学校、文康小学等。
根据宝安区教育局2020年度秋季招生学区划分,盛合天辰花园项目地块小学学区为宝安区航城学校;初中学区为宝安区航城学校、宝安区海湾学校。项目属于期房,届时可能会存在学区变动的可能,仅供参考。

项目附件有个航城学校
医疗:项目周边医疗配套资源目前比较欠缺,项目1.5公里范围内主要以社康和少量民营门诊部为主,缺少优质综合性公立医院。范围内有一所空海救援医院在建,该医院规划占地面积 5.03万平方米,建筑面积约 20.03万平方米,是一所中大型综合性三甲公立医院,预计2025年启用,届时将会成为片区最优质医疗配套资源。

文娱:项目周边缺少具备便利性的休闲娱乐(市政公园)配套,项目1.5公里范围内只有一个三围社区公园,规模较小。日常休闲娱乐如要享受优质市政公园或自然生态公园需要到2公里范围内的桃源居森林体育公园或者铁仔山自然生态公园。另外项目2公里范围内还一个航港湿地市政公园在建。

项目周边规划介绍
盛合天辰花园项目位于宝安区航城街道三围社区黄田路和航空路交汇处东北侧,与钟屋社区一路之隔。项目所在的三围社区内少有商品房分布,主要以历史小产权房村落或工业厂房/园区为主,项目旁边的整体环境和路况较为一般,有待于项目建成后进行改造和提升。项目对面的钟屋社区要比三围社区整体观感要好很多,较为知名的领航城小区旧想项目对面(南侧),对本项目而言最大的优势就是可以共享领航城这个综合社区的各项配套。

项目1.5公里范围内覆盖有2条地铁线路,一个是已经在运营的1号线(罗宝线),另一个是在建的12号线(南宝线),项目距离12号线桃源居站步行约1.8公里。12号线分两期建设,一期起于南山区左炮台东站,连接蛇口、南山中心区、宝安中心、航空城、大空港等地区,止于宝安区海上田园东站,已于2018年初开工,计划于2022年底开通运营。二期工程起于海上田园东站,终至松岗站,已于2020年底开工,计划2025年开通运营。
12号线从南至北沿途经过南山中心区、宝安中心区、福永片区、大空港及会展片区,又可与多条线路换乘,将极大提升深圳西部的地铁乘坐效率,还能带动会展中心宝安新馆的周边发展,开通后将直接缓解1号线和11号线早晚高峰客流过于密集的情况。同时南山区南北方向的路面交通也将有一定改善,特别是南山大道、南海大道的拥堵情况也将不复存在。
项目处在当前比较热门的行政区--宝安,位于航程街道三围社区,与钟屋社区一路之隔。三围社区内分布的商品房社区较少,主要以小产权房村落及部分工业厂房/园区为主,整体居住氛围尚可,但片区面貌观感较为一般。项目与钟屋社区的热门小区--领航城相邻,领航城是一个超大体量的综合社区,为周边环境和配套提升起到了重要的作用,对盛合天辰花园而言可以共享领航城会是它的一个大优点。
宝安【盛合天宸】盛合天宸开发商售楼处电话:400-992-0669(中介勿扰)
来电可了解楼盘最新动态、房价、在售房源、交楼时间等信息!让你买的放心,住的舒心!
盛合天宸开发商售楼处直销_欢迎来电预约享受内部折扣_恭迎品鉴
◆提前来电-预约登记尊享售楼处销售专业讲解〢一对一热情服务〢◆
盛合天宸开发商售楼中心〢预约可享内部优惠〢匠心钜制-恭迎品鉴〢
项目没有所谓的“分机号”注意保护个人隐私!谨防上当!看房请务必提前预约,避免临时无人接待,感谢您的配合!
免责声明🔉:以上所发布的楼盘相关信息仅供参考,所有图文资料及说明请以最终批文及双方在楼盘现场签署的买卖合同为准;本图文内容如无意中侵犯某方权益,请联系我们将会及时处理
声明:本文由入驻焦点开放平台的作者撰写,除焦点官方账号外,观点仅代表作者本人,不代表焦点立场。
