深圳聚焦丨华侨城四海华亭(售楼处)首页网站@华侨城四海华亭售楼处电话|楼盘评测-华侨城四海华亭最新价格|户型配套
扫描到手机,新闻随时看
扫一扫,用手机看文章
更加方便分享给朋友
龙华【华侨城四海华亭】售楼处24小时电话:400 992 0669(开发商直销)现场详细解答丨项目介绍丨户型图丨在售房源丨特价房丨学校丨交通位置丨样板房丨小区图片丨交房时间丨周边配套丨
—华侨城华南集团四海华亭— 曾经四海为家 如今家在四海
三地铁·学府旁·大城综合体 建面约87-121㎡公园美宅
华侨城四海华亭_Vip Tel:400-992-0669 中介勿扰
最新消息:项目将推出少量工抵房,单价4.5万起带装修,三房总价400万出头,在售约87-95-105-112-120三房与四房!
华侨城龙华城市更新大作,约56万㎡生态大城综合体---四海华亭,推出建面约87-121㎡公园美宅今年买今年住,带精装修交付,项目中小学学区为高峰学校,距离龙华地铁站约700米
【项目名称】华侨城·四海华亭·龙胜云坊
【占地面积】约54465㎡ 【建筑面积】约56万㎡
【推售产品】建面约87-96-106-112-121㎡3-4房
【交房时间】2024年12月 【交付标准】精装交付
【售楼热线】400-992-0669 【产权年限】70年
【房产性质】住宅 【可售套数】约1044套
【楼层高】一、二单元51层、三、四单元52层
【车位比】约1290个 【容积率】6.87
【绿化率】30% 【梯户比】3梯5户/4梯6户
【管理费】5.4元/平 【开发商】深圳市协跃房地产开发有限公司
【物业公司】深圳市盛世嘉物业管理有限公司
【项目地址】位于龙华区大浪街道龙胜社区龙胜路与和平路交汇处北侧
华侨城·四海华亭全新展厅&美学样板,现已华美绽放,恭迎悦赏,建面约87-121㎡公园美宅,建面约24-55㎡精装公寓,全城热销中。
24-55㎡精装公寓

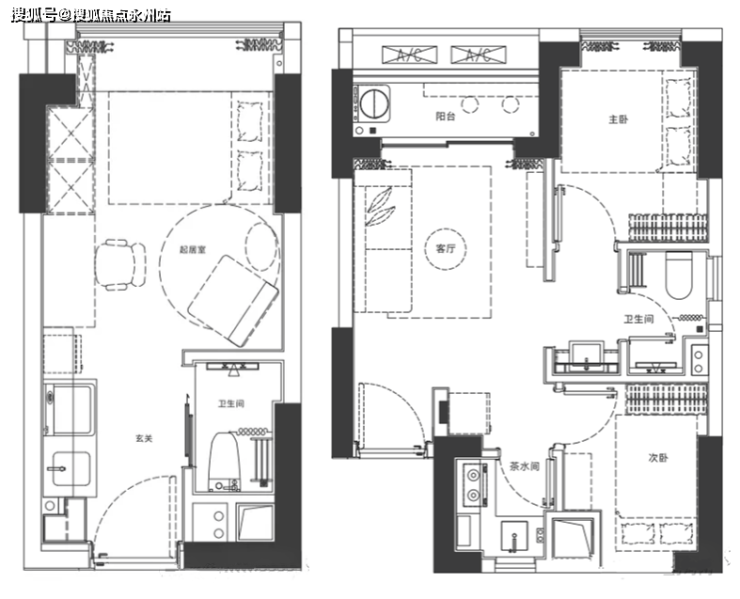
【建面约87㎡】 客餐厅一体化空间,动静分离式布局,超长玄关收纳柜体

【建面约96㎡】 家政阳台定位,6人位餐厅满足多人就餐,主卧独立卫生间

【建面约112㎡】 大横厅布局,超长观景阳台,卧室满面窗户,超强采光通风

【建面约121㎡】 大横厅布局,超长观景阳台,玄关柜餐边柜一体化设置,独立衣帽间,满足超强收纳需求
交通方面:项目距离4号线龙华站与龙胜站约700米,步行大约需要10分钟。
从该站出发,3站到达深圳北站,可在深圳北站换乘5/6号线,或搭乘高铁。
另外,未来还规划有地铁18、21、25、27号线,还有6号线支南线、17号线西延在规划建设中,未来可直通罗湖、福田、南山、前海。
教育方面:项目自带9班幼儿园,自身配建有九年一贯制弘毅学校、幼儿园,周边有龙华中心中小学、高峰学校等,且2km范围有和平实验小学、未来小学。
学校为规划开设36个班、提供1680个学位
项目自带约5万㎡欢乐情景商业,联动周边百万商业旗舰,构筑“超级活力中心”,拥享约200万㎡超级商圈,周边还有壹方天地、华南首个Costco、红山6979、天虹商场等超百万商业配套,咫尺之间,左右皆繁华。
双公园环绕,零距离享超20万㎡鲜氧吧龙胜公园:距离100m,是龙华群众文化活动公园,一年四季都是休闲放松好地方龙华公园:距离850m,占地20万㎡,登塔龙华全景尽收眼底2km范围内还有三联公园、上芬社区公园、龙塘公园、阳台山森林公园,组成城市生态圈
华侨城·四海华亭 工抵房,三房400万出头
三地铁 | 学府旁 | 大城综合体 建面约87-96-106-112-121㎡3-4房
如需了解更多本项目信息,请拨打售楼处电话,现场销售会为您详细介绍楼盘。
华侨城·四海华亭_营销中心_Vip Tel:400-992-0669 中介勿扰
(更多项目动态| 欢迎来电咨询 | 请提前预约登记看房 | 1:1销售专业讲解)置业顾问一对一对接,来电尊享受额外优惠
声明:本文由入驻焦点开放平台的作者撰写,除焦点官方账号外,观点仅代表作者本人,不代表焦点立场。
