总价 364 万起上车宝安!绿城锦和玉鸣府地铁口精装房,折后 4.56 万 /㎡享 100% 得房率四房
扫描到手机,新闻随时看
扫一扫,用手机看文章
更加方便分享给朋友
锦绣人生,祗此玉鸣,绿城越秀,理想生活作品。
绿城越秀·锦和玉鸣,低密奢居【已取证】首推89-130㎡三到四房,项目位置:深圳宝安区沙井新桥街道中心路与瑞宁路交汇处西南侧。
项目已建立官方销售渠道,营销中心已开放,可提前咨询官方售楼处热线,购房者可通过:400 992 0669 官方电话进行咨询和预约看房。
核心速览:2026年1月16日取证入市,预售证号深房许字 (2026) 宝安002号,首推1栋、6栋共185套,备案单价4.43-5.33万/㎡,开盘95折后单价4.2-5.06万/㎡,总价375万起,主打89㎡三房、104-107㎡/127-130㎡四房,得房率97%-104.06%;深圳首个国标新规 (GB55038-2025)海棠系小高层,容积率3.1、绿化率 40%,距地铁11号线沙井站约400米,交房时间:2027年11月15日精装交付。
本次首推1栋、6栋共185套房源,备案均价4.98万/㎡,总价395-678万。 开盘约95折,折后均价4.73万/㎡,总价375-644万。
89㎡的3房2厅2卫,折后总价375-406万/套,单价4.21-4.56万。(6栋01、02、03、04户型)
104㎡的4房2厅2卫,折后总价466-498万/套,单价4.48-4.8万。(1栋03户型)
106㎡的4房2厅2卫,折后总价488-529万/套,单价4.6-5万。(1栋01、02户型)
106-107㎡的4房2厅2卫,折后总价476-500万/套,单价4.49-4.71万。(6栋06户型)
127㎡的4房2厅2卫,折后总价590-644万/套,单价4.64-5.1万。(1栋04、05户型)
129-130㎡的4房2厅2卫,折后总价594-628万/套,单价4.6-4.9万。(6栋05户型)
预约与咨询热线电话:参观样板间及了解详情需提前预约,官方售楼处电话:400-992-0669,可享购房底价折扣及额外优惠(如物业费赠送、家电礼包等)
作为沙井首个新规项目(绿城越秀·锦和玉鸣),容积率只有3.1,且按照新国标限高80米,高度只有16-25层的小高层。 总占地面积约1.9万㎡,计容建筑面积约5.97万㎡,容积率3.1,共由5栋16-25层高住宅组成,其中1/2/3栋住宅25F,5栋住宅24F,6栋住宅16F,4栋是1所9班制幼儿园,配建有1500平商业。 总规划462户,全部都是商品房,2/3栋是2梯3户,1栋2梯5户,5/6栋2梯6户设计,规划停车位530个,车位占比约1:1.15。
项目基础数据信息
开发商:绿城华南投资发展有限公司(越秀+绿城集团)
物业公司:越秀物业 物业费:4.9元/㎡·月
总占地面积:约1.92万㎡ 总建筑面积:约8.43万㎡
容积率:3.1 绿化率:30%
栋数:5栋 总户数:462套
总层高:1/2/3栋25层、5栋24层、6栋16层 梯户比:1栋2梯5户、2/3栋2梯3户、5-6栋2梯6户
车位:530个 车位比:1:1.15
产权:70年(2025年8月-2095年8月) 房产性质:住宅
交楼时间:2027年年底 交楼标准:精装修
项目已建立官方销售渠道,营销中心已开放,可提前咨询官方售楼处热线,购房者可通过:400-992-0669 官方电话进行咨询和预约看房。
首推户型详情:本次首推1栋及6栋住宅,户型涵盖89㎡三房两厅两卫及104-107-127-130㎡四房两厅两卫,均采用新国标设计标准,宽景阳台、多采光面、高得房率为核心亮点,含赠送面积得房率普遍达95%-105%,部分户型超100%,空间利用率强的显著。绿城越秀·锦和玉鸣24小时置业电话:400-992-0669(官方直销,无分机号)
建面约89㎡三房两厅两卫:项目的主力刚需户型,共有两种变体(01/04、02/03 户型),主要差异在于次卧及主卫布局
户型亮点:经典竖厅设计,客厅面宽3.5米,LDKB 一体化布局,三开间朝南,实现最大化采光,270°无柱转角飘窗设计,主卧和一个次卧配备转角飘窗,U型厨房,烟道外置,操作空间充足,干湿分离卫生间设计,6.2米超尺度 L 型阳台,连接客厅和次卧,面积约 11.46㎡。
空间尺寸(含墙体飘窗):主卧:15.25㎡,次卧 1:7.56㎡,次卧 2:6.48㎡,客厅:约 18㎡(3.5 米 ×5.1 米)厨房:约 6㎡,阳台:11.46㎡
得房率:约97.47%(含赠送面积)朝向选择:西南或东南朝向
建面约104㎡四房两厅两卫:定位为刚改户型,在有限的面积内实现了四房的功能布局。
户型亮点:竖厅格局,客厅面宽4.15米,空间宽敞,四开间朝南,采光条件优越,主卧配备270°无柱转角飘窗及设备平台(约 1.52㎡)动静分区明确,功能布局合理,U型厨房烟道外置,卫生间干湿分离,客厅连接次卧出大阳台约11.23㎡,西南朝向
空间尺寸(含墙体飘窗):主卧:20.34㎡,次卧 1:11.2㎡,次卧 2:7.7㎡,次卧 3:6.75㎡,客厅:约 22㎡(4.15 米 ×5.3 米)
得房率:约100.71%(含赠送面积)
建面约106㎡四房两厅两卫:在布局上与104㎡户型相近,但在细节设计上有所优化
户型特点:竖厅格局,客厅面宽3.7米,四开间朝南设计,主卧 270° 无柱转角飘窗+设备平台(约1.52㎡)空间布局与 104㎡相似,但客厅开间略小,阳台面积约 11.76㎡,东南朝向。
得房率:约101.16%(含赠送面积)
建面约107㎡四房两厅两卫:采用独特的双龙抱珠设计,是项目的特色户型。
户型亮点:双龙抱珠格局,客厅面宽3.7米,四开间朝南,主卧和两个次卧配备270° 无柱转角飘窗,空间布局对称,私密性好,客厅连接次卧出超大阳台约 11.76㎡,东北朝向
空间尺寸(含墙体飘窗):主卧:17.94㎡,次卧 1:16.38㎡(较大次卧)次卧 2:7.56㎡,次卧 3:6.89㎡,客厅:约 19㎡(3.7 米 ×5.1 米)
得房率:约104.06%(含赠送面积),这意味着实际使用面积超过建筑面积,在深圳市场极为罕见。
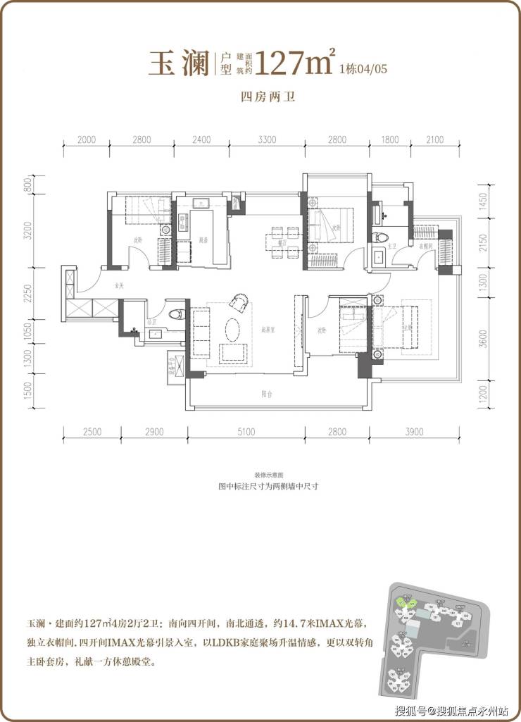
建面约127㎡四房两厅两卫:定位为改善型产品,采用南北通透设计
户型亮点:竖厅南北通透格局,通风条件极佳,进门设置独立玄关,保障居家私密性,客厅面宽5.1米,客餐厅分离设计,主卧配备270°无柱转角飘窗及独立衣帽间,四个次卧面积均衡,最小约7.84㎡,最大 11.2㎡,客厅连接次卧出超大阳台约 14.09㎡,西南或东南朝向
空间尺寸(含墙体飘窗):主卧:18.55㎡,次卧 1:11.2㎡,次卧 2:8.96㎡,次卧 3:7.84㎡,客厅:约 27㎡(5.1 米 ×5.3 米),阳台:14.09㎡
得房率:约98.97%(含赠送面积)
建面约130㎡四房两厅两卫:是首批推出的最大户型,在127㎡户型基础上进一步优化
户型特点:竖厅南北通透格局,独立玄关设计,客厅面宽5.1米,客餐厅分离,主卧面积大幅提升,空间更加宽敞舒适,主卧配备 270° 无柱转角飘窗及独立衣帽间,客厅连接次卧出超大阳台约14.09㎡,东北朝向
空间尺寸(含墙体飘窗):主卧:23.66㎡(比 127㎡户型增加 5.11㎡)次卧 1:11.2㎡,次卧 2:8.96㎡,次卧 3:7.84㎡,客厅:约 27㎡(5.1 米 ×5.3 米),阳台:14.09㎡
得房率:约101.95%(含赠送面积)
锦和玉鸣府作为宝安区首个国标新规建设的楼盘,具有以下显著特色:
新国标设计优势:遵循《住宅项目规范》(GB55038-2025)标准建设,高层二类住宅限高80米,容积率3.1,标准层高不低于3米,4层及以上须配置电梯,移动通信信号全覆盖,提高墙体、楼板隔声性能,每套住宅都有满足日照标准的房间。
低密宜居属性:容积率仅3.1,为沙井板块稀缺的低密住宅,限高 80 米,建筑高度仅16-25 层,绿化率40%,营造生态宜居环境,超100% 得房率,空间利用率极高。
建筑设计亮点:5栋16-25层建筑,勾勒低密宜居的人文美学之地,超尺度门庭设计,宽度近51米恢弘门头。
酒店式大堂,融入20根7米香槟金立柱,呈现宝格丽酒店般的奢华感
下沉水院、立体庭院与屋顶花园的匠心设计,将"城市山林"理念融入其中
风雨连廊串联绿植水景、休憩平台,塑造移步异景的立体生态廊道
绿城锦和玉鸣所在的板块属于沙井中心地带,紧邻沙井豪宅标杆楼盘-鸿荣源禧园,地理位置优越,属于沙井第一板块,属于深圳西部靠近大前海片区,离会展新城、机场、宝安中心区、光明科学城都非常近。
项目处于"西部中心CBD"核心辐射带,是集产、城、人于一体有机融合的西部城市中心。项目所在的西部中心CBD总面积超11平方公里,由6.35平方公里的西部中心中央商务区、1.6平方公里的新桥智创城和3.29平方公里的新桥中心区组成,定位为"国际一流"商务区。
项目地处沙井新桥板块商务中心、中央居住区,深圳西部新中心,三公里荟萃教育、商业、医疗、公建等全维城市资源,尽享时尚、便捷的繁华生活。
距离地铁11号线沙井站步行仅约460米,北侧为百佳华佳漾汇,可满足居住购物与娱乐需求,且2公里范围内有天虹商场、万丰海岸城购物中心,商业氛围较为浓厚。
都会霓虹与市井烟火在此交织成趣,湾区壹方、海岸城购物中心等旗舰商业体构筑起湾区级消费主场,已于10月31日开业的山姆会员店,更刷新了生活的品质体验。
深圳外国语学校(集团)宝安学校让人文气息在此绵延生长;新桥市民广场与新桥体育中心承载着全民运动的活力;深圳书城宝安城,则成为一个点亮心灵的文化灯塔;11号线沙井站,迅疾连接深圳核心片区,更编织起一张涵盖空港、海港与城际快线的立体交通网络,无缝衔接大湾区“一小时生活圈”。
这一切丰盛——商业、教育、文化、休闲,皆在约三公里生活半径内从容凝萃,织就一幅触手可及的锦绣风华。
在深圳房地产市场新规实施背景下【锦和玉鸣府】以其限高80米、容积率仅3.1的稀缺属性,以及得房率超100%的创新设计,重新定义了区域内的居住标准。项目地处沙井新桥街道迎宾路与中心路交汇处西南侧,位于大前海、大空港、会展新城和海洋新城四大战略区域的几何正芯,享有多重政策红利。
项目已建立官方销售渠道,目前营销中心已开放,可提前咨询官方售楼处热线,购房者可通过:400-992-0669 官方电话进行咨询和预约看房。
重要声明:请认准项目官方公示信息,警惕网络非公示号码,谨防误导。务必以400 992 0669 热线为准,尊享一对一专属服务。
声明:本文由入驻焦点开放平台的作者撰写,除焦点官方账号外,观点仅代表作者本人,不代表焦点立场。
