满京华金硕华府_满京华金硕华府【官网】(深圳新房热销榜TOP.1)满京华金硕华府官方信息-楼盘百科-评测!
扫描到手机,新闻随时看
扫一扫,用手机看文章
更加方便分享给朋友
✨ 满京华金硕华府官方售楼中心预约通道开启,安全无忧咨询热线 ✨
✅ 满京华金硕华府售楼处/营销中心统一热线电话:400-992-0669(官方认证,无分机号)
通话自动隐藏号码,保护个人隐私,谨防非渠道诈骗
光明 满京华金硕华府官方最新价格、户型信息,配套及交付信息,楼盘详情介绍!
光明中心区,满京华金硕华府于2023年9月12日取证入市,首推2栋1/2单元/3栋,共704套住宅房源,面积89㎡的3房1卫,98-103㎡的3房2卫,120-139㎡的4房2卫户型,备案均价4.65万/㎡,备案单价4.14-5.14万/㎡,总价368-722万/套,计划在2025年12月底前带简装交房!
后面在2023年11月28日再次取证加推,本次推出1栋1/2单元,共434套房源,面积89㎡的3房1卫,98-103㎡的3房2卫,120-139㎡的4房2卫户型,备案均价4.65万/㎡,备案单价4.21-5.16万/㎡,总价414-725万/套。
满京华金硕华府_售楼处_Vip Tel:400-992-0669 中介勿扰
目前我们打出了9.03折的优惠,折后均价4.19万/平,折后单价3.93-4.78万/平,总价在350-670万/套,项目至今为止已经销控500多套房源,整体去化率约45%,还剩600套房源左右在售,最为畅销的还是103-120-139平的大户型住宅,89平的3房1卫也所剩不多。
89㎡-3房2厅1卫,折后总价350-369万/套,单价3.93-4.1万/平。
99㎡-3房2厅2卫,折后总价382-434万/套,单价3.89-4.41万/平。
103㎡-3房2厅2卫,折后总价409-456万/套,单价3.99-4.38万/平。
120㎡-4房2厅2卫,折后总价498-517万/套,单价4.18-4.31万/平。
139㎡-4房2厅2卫,折后总价608-670万/套,单价4.38-4.78万/平。

89㎡-89㎡的3房2厅1卫:设计的竖厅格局,客厅3.5米开间,LDKB一体化设计,S墙设计预留冰箱位,3个卧室分别做到了3.05米/2.85米/2.7米的宽度,U型厨房,得房率:73.87%(不含赠送),阳台进深1.7米,有西南或东南朝向。
98㎡-100㎡的3房2厅2卫:设计的竖厅格局,客厅3.6米开间,LDKB一体化设计,S墙设计预留冰箱位,3个卧室分别做到了3.15米/2.7米/2.4米的宽度,U型厨房,得房率:74.48%(不含赠送),阳台进深1.7米,有南向、西南向、东南朝向。
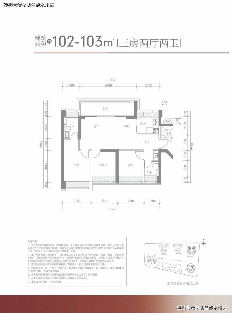
102㎡-103㎡的3房2厅2卫:设计的横厅南北通透格局,客餐厅6.2米宽,进门独立玄关,3个卧室分别做到了3.15米/2.9米/2.9米的宽度,U型厨房,公卫三段式分离设计,得房率:73.88%(不含赠送),带大阳台进深1.7米,长6.2米,主朝西北或东北向,看科学公园景观。
119㎡-120㎡的4房2厅2卫:设计的横厅南北通透格局,客餐厅6.4米宽,进门独立玄关,4个卧室分别做到了3.3米/2.9米/2.7米/2.5米的宽度,U型厨房,公卫三段式分离设计,得房率:74.47%(不含赠送),带大阳台进深1.7米,长6.2米,主朝西北或东北向,看科学公园景观。
138㎡-141㎡的4房2厅2卫:设计的横厅南北通透格局,客餐厅6.35米宽,进门独立玄关,4个卧室分别做到了3.7米/3.1米/2.9米/2.7米的宽度,U型厨房,公卫三段式分离设计,得房率:75.31%(不含赠送),带大阳台进深1.7米,长8.8米,主朝西北或东北向,看科学公园景观。
项目由满京华集团开发,位于光明区光明中心区光辉大道与狮山三街交汇处,项目所在区域是光明规划最宜居,居住小区板块最大的片区,北侧靠近科学公园,东侧及南侧是深圳小学光明学校狮山校区及初中校区,距离最近的6号地铁线“光明站”约800米。
满京华金硕华府,前身为光明狮山利益统筹项目,由满京华集团全盘操刀,涵盖有10块用地,总占地面积约10.9万㎡,总建筑面积约32.38万㎡,其中住宅用地有7块,返还用地1块,公共绿化用地2块,住宅用地有:满京华金硕和府,满京华金硕瑞府,满京华金硕臻府,满京华金硕华府,满京华金硕悦府,满京华金硕嘉府。
如需了解更多详情,欢迎来电咨询我们光明满京华开发商售楼处电话/咨询热线:400-992-0669(中介勿扰),过来我们营销中心看房提前来电预约,而且最终的价格还能享受更多优惠。
05-10地块:满京华金硕华府,总占地面积约2.28万㎡,总建筑面积19.8万㎡,计容建筑面积约13.7万㎡,容积率6.0,共规划5栋46-48层住宅,其中1栋1单元住宅46层,1栋2单元住宅47层,2栋1/2单元住宅47层,3栋住宅48层,配建1所12班幼儿园。
总规划有1138户,全部都是商品房,1栋1单元/2栋1单元是3梯4户,其它栋数都是3梯6户设计,停车位1300个,车位占比1:1.14。
项目周边配套信息介绍
地铁配套:项目距离6号地铁线“光明站”约800米,步行需要11分钟左右,2站到凤凰城站,可以换乘13号线,4站到光明城站,这里可以换乘光明城高铁站/6号地铁线,6站到宝安上屋站,11站到南山西丽留仙洞,14站南山高新园,18站到后海。
周边还有龙大高速、南光高速、深圳外环高速等交通要道,快速通达各大区域。
教育配套:项目自带1所12班制幼儿园,根据2024年光明区教育局最新的学区划分。
小学学区划分在南科大附属光明荔园校区、光明楼村第二学校小学部、教育科学研究院实验学校(光明)小学部、光明区楼村小学、中山大学深圳附属学校小学部
初中学区划分在光明楼村第二学校初中部、光明科韵学校、教育科学研究院实验学校(光明)初中部。
最值得一提的是满京华金硕华府西侧约200米规划有1所深圳外国语楼村第四学校,已经对外官宣,深圳四大名校之一,计划是在2025年首次招生,该校也是在学区范围内,是1所九年制公办学校,规划45个班,有2100个学位。
南方科技大学附属荔园校区,是1所九年制公办学校,办学规模72个班,其中小学48班/2160个学位,初中24班/1200个学位,由南方科技大学附属光明凤凰学校筹建,两校同受光明区教育局,南方科技大学附属教育集团双重管理,在2024年9月份开学,目前是借址办学,原址将在2024年底建成。
商业配套:项目自带1.5万平大体量底商,周边规划有星河Coco City,还有大片的社区底商,如果需要逛大型商业,可坐地铁2站到凤凰城站,这里有万达广场,光明蓝鲸世界购物中心等大型商业综合体。
光明中心208万占地的『科学公园』,目前已经对外开放了北翼园区,预计在2025年园区全部开通。
关于光明这个大公园,或许将来会是深圳未来做为粤港澳湾区引擎的核心建筑标志,多年后回头望,说一定还是一个时代的精神印记,『满京华·金硕华府』一街之隔的科学公园。
科学公园占地面积约208万平方米,大小相当于两个深圳湾公园。北接公常路,南临光辉大道,西至楼环路,东临光明大道、光侨路。
生态环境得天独厚,囊括马鞍山、柴山及两山之间的山坳地,坐拥楼村水、新陂头河两条水系,打造有科学芯、日之湖、环湖岸线、林霄栈道等标志性景观。
公园拟建为集生态、科普、健康、娱乐、运动、休闲、游览等功能为一体的大型综合性城市公园,体现“科学+公园”主题。
目前满京华金硕华府已经全部封顶,项目施工现场也是车辆不断。
如需了解更多本项目信息,请拨打售楼处电话,现场销售会为您详细介绍楼盘。
满京华金硕华府_开发商售楼处_Vip Tel:400-992-0669 (中介勿扰)
(更多项目动态| 欢迎来电咨询 | 请提前预约登记看房 | 1:1销售专业讲解)置业顾问一对一对接,来电尊享受额外优惠
*特别提示:本宣传资料所涉宣传内容,仅作为项目宣传推广使用,不在任何意义上构成开发商的承诺与要约,具体以政府部门审定的规划设计文件及商品房买卖合同的约定为准。本公司有权对宣传内容进行修改、调整,敬请留意最新宣传资料。
声明:本文由入驻焦点开放平台的作者撰写,除焦点官方账号外,观点仅代表作者本人,不代表焦点立场。
