南山前海瑧玺售楼处(欢迎您)深圳前海瑧玺|首页网站@售楼处楼盘详情
扫描到手机,新闻随时看
扫一扫,用手机看文章
更加方便分享给朋友
招商瑧玺(招商-瑧玺家园)位于前海妈湾片区19单元,南山振海路和前湾四路交汇处的东南方向,步行约500米是5号线妈湾站,步行约700米是铁路公园站;从铁路公园站A出口出来两边便是妈湾七子高端写字楼和前海印里步行商业等。
瑧玺是由央企招商蛇口在妈湾开发的又一品质新盘,一期为招商领玺,二期为招商嵘玺,一二期开盘均日光。
前海瑧玺(招商领玺三期)即前海妈湾片区19开发单元05街坊05-01、05-03地块,总占地面积为14347㎡,共规划了4栋高层住宅,5000㎡底商及一个幼儿园,建筑层数在20-23层,容积率3.27。
(更多项目动态| 欢迎来电咨询 | 请提前预约登记看房 | 1:1销售专业讲解)置业顾问一对一对接,来电尊享受额外优惠。前海瑧玺开发商售楼处咨询/预约热线:400-992-0669(中介勿扰)
项目简介:
开发商:招商局集团
占地面积:约1.4万m
建筑面积:约3.6万m
可售房源:320套
预计单价:10.25万/m(装配式简装)
户型面积:106m三房二卫、107m三房二卫、128平四房二卫
交楼时间:预计2025年
容积率:3.27
得房率:约88%
车位比例:414个,约1:1.29
楼层高度:20-23F
梯户比:2T4
交通配套:环中线(5号线)500米,穗莞深城际
商业配套:部分底商、印里
教育配套:南二外创新妈湾学校
环境配套:前湾公园、前海石公园、前海运动公园
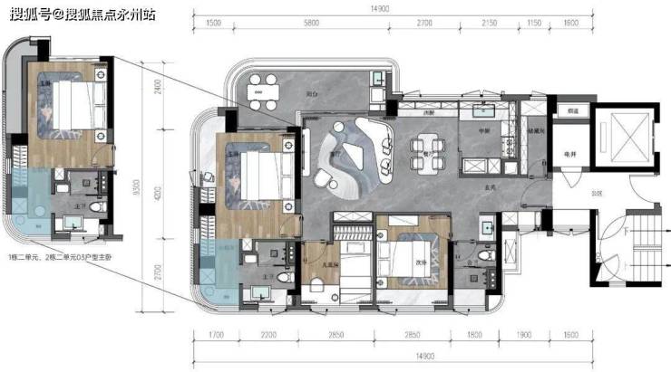
前海瑧玺户型介绍
前湾河公园景观可谓是招商瑧玺最大的卖点,规划为一字排开的四栋住宅,东北侧紧邻前湾河公园。在设计上,所有户型均做到了“阳台+主卧”朝向前湾河公园,“身临其境”体验一线河岸景观。
各户型均做到了“半包围式”飘窗赠送:“主卧+衣帽间”转角大飘窗设计,可利用一部分飘窗做衣柜扩大卧室使用面积。次卧、儿童房、卫生间、甚至厨房都有飘窗赠送,给购房者预留了扩展空间。
【106㎡ A户型】三房二厅二卫,朝向东北河岸景观,动静分区,竖厅设计。
【107㎡ B户型】三房二厅二卫,西南+东北“双朝向”,横厅设计。
【128㎡ C户型】四房二厅二卫,西南+东北“双朝向”,横厅设计。
前海瑧玺配套介绍:
交通配套
地铁:距离5号线妈湾站地铁口500米,离5号线铁路公园站约700米。
正在建设的15号线铁路公园站,可以四个站可以到达腾讯科技岛、4个站到深圳湾片区。
陆路:
地面和地下快速路结合(多层复合式设计),到达深圳湾、蛇口、科技园不超过20分钟。
靠近梦海大道,两个路口就能转到沿江高速,3个路口转到内环路,同时可以快速切到沙河西路和滨海大道,去往科技园,福田等产业中心
除此以外,附近300米还有在建的【深惠城际】的前保站点,未来将与深大城际、龙大城际互联互通,实现与西丽高铁站、南山科技园、深圳北站等区域的快速联系。
商业配套
500米范围内有自贸时代中心商业,自贸商业中心紧邻妈湾地铁站,地下2层,地上6层,是妈湾首个购物中心,预计2026年开业。
周边还有世茂52+、印里商业街、山姆会员店、万象前海、前海卓悦INTOWN、前海壹方汇(建设中)及K11(预计24年开业),开车十分钟左右到达。
目前附近的商业氛围感觉会比较冷清,等周边小区陆续入伙之后会有明显改善。
生态配套
妈湾两面环海,一面滨水,背靠大小南山,拥有270°滨海景观,所有的户型都能做到一线看河景。
前海石公园(大铲湾段、前湾段)落地提上日程,指日可待,下楼就是公园,站在楼上就能看到河景
距离大小南山、月亮湾公园、前海运动公园等2公里左右。
按照前海总体规划,整个前海的海岸线会连接,未来可以直接沿滨海长廊步行到欢乐港湾和腾讯岛。
教育配套
幼儿园:项目配建1所幼儿园;
中小学:家门口就是南二外(集团)九年制学校(在建),旁边还有一所新增的9年义务教学用地;10分钟步程内覆盖荟同学校,哈罗公学、中欧国际工商学院等国际化学校
最新消息:《招商-瑧玺家园》现推出1栋1/2单元,2栋1/2单元,共计320套房源,面积106㎡的3房2卫,107㎡的3+1房2卫,128㎡的4房2卫户型,备案均价10.2万/㎡,备案单价10.1-10.8万/㎡,总价934-1489万/套,2025年12月底带简装交房。
其中建面约106/107㎡3房(约240套)和128㎡4房(约80套),创新实用品质户型,传加上阳台半赠送飘窗全赠送拓展使用率高达约90%,3.27容积率,23层水岸住宅
如需了解更多详细楼盘资料和最新折扣价格,请拨打售楼处电话,现场销售会为您详细介绍楼盘。
招商前海瑧玺开发商售楼处咨询/预约热线:400-992-0669(中介勿扰)
(更多项目动态| 欢迎来电咨询 | 请提前预约登记看房 | 1:1销售专业讲解)置业顾问一对一对接,来电尊享受额外优惠。
注:本广告/宣传资料所涉及对项目周边环境、交通、商业、学校、规划设计及其他公共设施等介绍旨在提供相关信息,不构成开发企业的任何要约和承诺,买卖双方的权利义务以政府的最终批准文件及买卖合同所载内容及实际交付为准
声明:本文由入驻焦点开放平台的作者撰写,除焦点官方账号外,观点仅代表作者本人,不代表焦点立场。
