深圳拾悦城楠园-宝安拾悦城楠园楼盘详情-房价-在售户型-容积率-小区环境
扫描到手机,新闻随时看
扫一扫,用手机看文章
更加方便分享给朋友
✨ 拾悦城楠园官方售楼中心预约通道开启,安全无忧咨询热线 ✨
✅ 拾悦城楠园售楼处/营销中心统一热线电话:400-992-0669(官方认证,无分机号)
通话自动隐藏号码,保护个人隐私,谨防非渠道诈骗
2026【宝安】 拾悦城楠园官方最新价格、在售户型介绍,配套及交付信息详情解析!
深圳拾悦城二期楠园为什么价格相对较低?深圳市宝安区的拾悦城楠园是一个备受关注的楼盘,其以低总价、优质学区和优越的地理位置吸引了众多购房者的目光。然而,许多人对于【拾悦城二期】的低价感到疑惑,究竟是什么原因导致了它的价格相对较低呢?本文将为您解析拾悦城楠园的优缺点,并探讨其未来的发展潜力
优势:
1、项目户型可供选择较多,最小的86平,如果按照以前拾悦城一期价格或网传5万/㎡的吹风价作为参考,400多万的总价起步,首付100多万就可以上车西部,对于在南山、宝中工作的购房者还是比较吸引的;
2、项目规划了一所九年一贯制学校,据传将会和宝中集团合办学校;宝中作为深圳的八大名校之一,其合办的学校相信教学质量无需担心,未来该校如果能落地也将会成为拾悦城二期溢价的优质资本;
3、拾悦城二期楠园靠近地铁11号线沙井站约700米,出行方便;旁边还有定岗湖公园,建面约9.5万平,平时下班后放松散步锻炼很方便,生态环境蛮好,对周边居住环境有要求的人是个不错的选择;加上1:1.15的车位比,在停车这方面还是有一定的优势。
拾悦城楠园采用的是开发商直接在售楼处进行销售,并且通过网络平台进行推广。
宝安拾悦城楠园开发商售楼处咨询/营销中心预约热线:400-992-0669(中介勿扰)
劣势:
1、沙井城建等规划确实很丰富,但目前还处于发展中阶段,给人的第一感觉完全就是城乡结合部,周边拥有许多工业区和农民房,环境比较糟糕,附近要靠旧改改变城市面貌,也是一个漫长的过程;
2、项目只带了4000平左右的底商,周边没有商业和娱乐配套,距离到达京基百纳和天虹较远约2.7公里,近一点有1.5公里的万丰海岸城(年底开业),走路需要十来分钟才能到,商业资源并没有很丰富;
3、另外小区占地很大但是密度很高,而且户型得房率不高,绿化面积同样也不是很足;且二期的回迁房占比大,超过总房源的一半,影响项目的整体品质,有意买入的网友需要关注这一方面。

宝安拾悦城二期楠园时隔六年时间!终于要来了!户数约:2000套,可售约:1307套车位约:2300个,户型详细户型段:约86平(三房两厅一卫)约90平-107平(三房两厅两卫)约115平-125平(四房两厅两卫)约140平(五房两厅两卫)项目整体占地约3.54万㎡,总建面约17万㎡,共规划了14栋30-48层超高层住宅、4栋26-33F高端写字楼及部分商业配套组成,还规划了一所36班九年一贯制学校、一所18班幼儿园。
拾悦城楠园_开发商售楼处_Vip Tel:400 992 0669 (中介勿扰)
(更多项目动态| 欢迎来电咨询 | 请提前预约登记看房 | 1:1销售专业讲解)置业顾问一对一对接,来电尊享受额外优惠

拾悦城楠园价值点
2021年,前海扩容,将从宝安中心、到涵盖会展海洋城的沙井区域囊括其中,勾勒出一条黄金发展脉络。
扩容后的“大前海”,既坐拥高附加值、前沿发展产业,又享受着史无前例的政策利好,绝对是湾区时代的“新特区”
而沙井片区更独特的地方在于,它是深圳西部的发展重点。
早在宝安“十四五”规划中,就将沙井定位为“深圳西部城市中心”,与宝安中心并肩,成为发展核心区域。
未来,这里将成为集海洋、会展、文旅、休闲、购物一体化的深圳西部中心核心区。
而拾悦城楠园,正处于这一范围内。
两大重磅规划加持,沙井将在经济产业、居住配套、城市界面等层面,实现全方位的升级发展。
比如,仅会展海洋城就带来多个重磅项目:
全球最大会展中心、全球最大室内冰雪中心、海洋新城、4A级的海上田园等等

拾悦城二期占地约3.54万㎡,总建面约17万㎡,共规划了14栋30-48层超高层住宅、4栋26-33F高端写字楼及部分商业配套组成,还规划了一所36班九年一贯制学校、一所18班幼儿园。
楠园由8栋建筑主体组成,分为1栋、2栋,其中1栋由A-G座组成,总房源1682套,其中商品房有1202户,回迁房480户。楠园建设用地面积35412.81㎡,总建面322995.68㎡,计容建面235495.45㎡,其中住宅建面207970㎡,商业建面4500㎡,幼儿园建面5940㎡,容积率6.66,机动车位2396个。
作为拾悦城进阶归来的力作,楠园此次亮相的为建面约 86-140㎡全能3-5房,从对进阶生活方式的洞察出发,以 “舒居尺度” 为纽带,户型布局轻松适应不同家庭阶段及居家场景的变化,伴随着家庭成长的每一步,让生活一步到位。

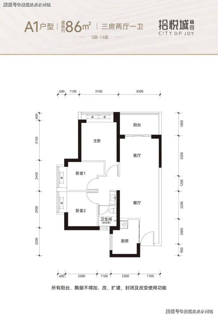
86㎡三房一卫,两种户型互为镜面,都是竖厅设计,套内面积66.26㎡,得房率77%左右。
100㎡三房两卫,两种户型互为镜面,传统的竖厅设计,套内面积77.24㎡,得房率77.24%左右。
103㎡三房两卫,套内面积79.4㎡,得房率77.09%左右。
107㎡三房两卫,套内面积82.59㎡,得房率77.19%左右。
115㎡通透四房两卫,套内面积88.51㎡,得房率76.97%左右。
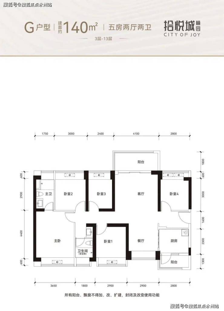
140㎡通透五房两卫,套内面积107.99㎡,得房率77.14%左右。
拾悦城二期楠园配套信息解析
交通出行:项目位于宝安沙井,步行约700米有11号线沙井站;距离宝安中心区约25公里,地出行铁前往南山、福田中心区通勤时长较久,接近1小时。
教育资源:项目自带一所18班的幼儿园,未来还将规划九年一贯制学校教育用地引进宝中集团合办分校;周边有壆岗小学、拾悦小学、万丰小学等学校,但对比宝安其余几个片区的教育资源,项目周边学校成色略显不足。
商业配套:项目自带部分商业,只能满足业主日常购物需求,直线距离1KM范围内有有百佳华MAX CITY(沙井店)、百佳华奥特莱斯、华润万家、西荟城购物广场等商业配套。
其它配套:在医疗和休闲娱乐上,项目周边有深圳市中西医结合医院、宝安区沙井坣岗医院、定岗湖湿地公园、大钟山公园、壆岗公园等配套。
拾悦城二期楠园分为“楠园”和“沁园”,两个全新的住宅社区。率先入市的为楠园,居住属性纯粹,占地面积约3.5万㎡,计容建面约23.5万㎡。楠园由8栋建筑主体组成,分为1栋、2栋,其中1栋由A-G座组成,总房源1682套,其中商品房有1202户,回迁房480户。
如需了解更多本项目信息,请拨打售楼处电话,现场销售会为您详细介绍楼盘。
拾悦城楠园_开发商售楼处_Vip Tel:400 992 0669 (中介勿扰)
(更多项目动态| 欢迎来电咨询 | 请提前预约登记看房 | 1:1销售专业讲解)置业顾问一对一对接,来电尊享受额外优惠
声明:本文由入驻焦点开放平台的作者撰写,除焦点官方账号外,观点仅代表作者本人,不代表焦点立场。
