壹湾府:龙华红盘户型、价格、配套硬核拆解,开盘时间/交付日期,官方发布!
扫描到手机,新闻随时看
扫一扫,用手机看文章
更加方便分享给朋友
龙华【壹湾府】售楼处24小时电话:400 992 0669(官方电话)现场详细解答丨项目介绍丨户型图丨在售房源丨特价房丨学校丨交通位置丨样板房丨小区图片丨交房时间丨周边配套丨
项目于2023年12月15日取证入市,推出215套房源,面积86㎡的3房1卫,96㎡的3房2卫,118㎡的4房2卫户型,备案均价6.6万/㎡,备案单价6.13-7.23万/㎡,总价525-861万/套!计划2025年12月底精装交房。
最新消息:目前该楼盘推出了限量单位房源,85折优惠,折后均价5.62万/㎡,折后单价5.21-6.15万/㎡,总价在446-731万/套区间,并且还送购房者豪车钜惠(奔驰E300,具体细节可来电咨询)最终成交价格还会有惊喜。

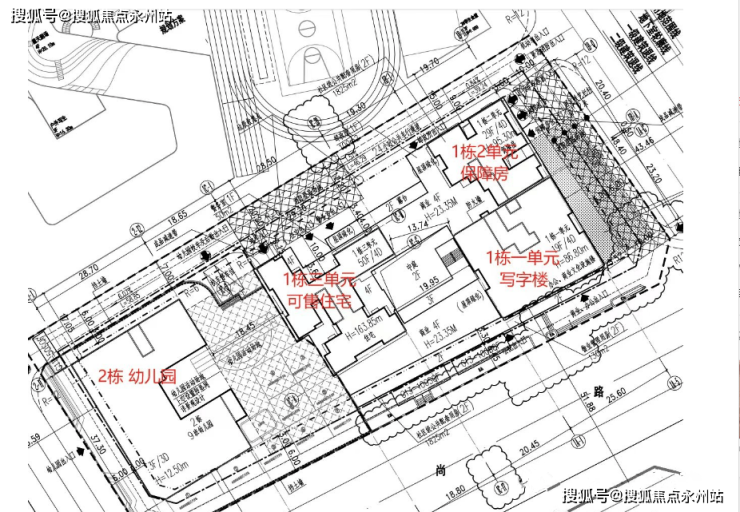
壹湾府,由星时代开发商操刀,总占地面积约0.8万㎡,总建筑面积约7.46万㎡,计容建筑面积约5万㎡,容积率5.76,绿化率40.04%,共由1栋3个单元+1所9班幼儿园组成,其中1栋1单元商业办公19层,1栋2单元保障房29层,1栋3单元商品房50层。
总规划335户,其中商品房215户,保障房120户,地下4层,停车位494个(车位比1:1.47)壹湾府_VipTel:400-992-0669 中介勿扰

壹湾府推出建面约86-96-118㎡住宅,三房至四房,均为南向户型,无论是刚需还是改善型需求都能满足。
B1户型,建面约86㎡,三房两厅两卫,传统竖厅,动静分区结构,客厅进深有点短,最小的那个卧室狭长有点不太好利用,其它功能间倒还好,空间尺度对得起这个建面,86㎡做三房两卫本身也算不易了。
B2户型,建面约96㎡,三房两厅两卫,传统竖厅,动静分区结构,这个户型是86㎡户型的plus版,最直观的感受就是客厅进深更长,公区部分空间感较为舒适,
B3户型,建面约118㎡,四房两厅两卫,横厅隐性过道,动静分区结构,动区空间尺度较为舒适,搭配宽景阳台很讨人喜欢。静区主卧通透且具备做套间的条件,几个次卧即使摆1.8米的床也不会觉得紧凑
项目所在的龙华超级商圈总面积16.83平方公里,包括壹方天地,龙华海岸城,龙华区商业中心,天虹等等,现在人气十分旺盛,未来这里将成为市级核心商圈和世界级未来消费体验中心。
龙华国际商圈是深圳重点发展的区域之一,具有无可复制的中芯地段优势。未来将有更多购物、文化、休闲、国际商务等功能聚集,成为与国际接轨的商业中心。
项目所处的龙华中心大区,是深圳地理位置上的中心区域,也是粤港澳大湾区发展中轴。“十四五”期间,龙华中心区被纳入都市核心区范围,并且区域南面与福田相邻,可以吸纳福田外溢的资源,使得片区发展迎来很大契机。
壹湾府_营销中心_Vip Tel:400-992-0669(中介勿扰)
周边最近的地铁是25号线(在建)【景龙站】,步行距离大约400多米,地铁通勤非常方便。
到地铁4号线【龙华站】步行距离大约700多米,也非常方便。
另外,还有一条22号线(在建)【油松站】,步行距离1.4公里。
自驾开车,靠近工业路、龙华大道、龙华和平路等多条城市主干道,快速接驳福龙路、新彩隧道、沈海高速、梅观高速等直达深圳各个重点区域。

超300万㎡商业体量,下楼即享万般繁华
项目自带约4800㎡商业配套,旁边是约60万㎡壹方天地商业,即买即享繁华商业,沉浸式体验吃喝玩乐购。
壹方天地超过1000家品牌商家,其中,娱乐潮玩超20家、网红轻奢餐饮超50家、潮流服饰超300家、品牌美食超90家、国际一线美妆超20家。
周边还有红山6979、华南首家Costco旗舰店、壹方系商圈、星河coco city,纵享繁华与便利,从此精彩无界限。
项目配套建设2400㎡幼儿园,配备足球场、环形跑道、滑梯等活动设施,家门口教育,目送孩子安全往返。
紧挨着公办九年一贯制龙华区创新实验学校,是一所新学校,在龙华属于第二梯队学校。
学校注重科教融合,聘任美国医学与生物工程院院士、深圳理工大学(筹)计算机科学与控制工程学院院长潘毅出任学校科学副校长。
壹湾府_Vip Tel:400-992-0669 中介勿扰
龙华壹湾府售楼处电话:400-992-0669 (1对1专线)欢迎咨询最新动态、房价、在售房源、交楼时间等信息,“请务必注意”甄别,我们营销中心只有一个号码,不需要转换分机。
看房请务必提前预约,避免临时无人接待, 感谢您的配合!
龙华中心区·壹湾府欢迎您-预约看房,置业顾问一对一对接在售户型图丨项目介绍丨房源丨_周边配套丨详细解答
温馨提示:项目没有所谓的“分机号”注意保护个人隐私!谨防上当!看房请务必提前预约,避免临时无人接待,感谢您的配合!
声明:本文由入驻焦点开放平台的作者撰写,除焦点官方账号外,观点仅代表作者本人,不代表焦点立场。
