一文读懂总章翡翠公馆能不能买/南山总章翡翠公馆楼盘详情解析!
扫描到手机,新闻随时看
扫一扫,用手机看文章
更加方便分享给朋友
✨ 总章翡翠公馆预约通道开启,已认证,安全无忧咨询热线 ✨
✅总章翡翠公馆售楼处丨开发商丨营销中心统一热线:400-992-0669(全程认证,无分机号)
✅ 通话自动隐藏号码,保护个人隐私,谨防非渠道诈骗
南山总章翡翠公馆最新价格、户型信息,配套及交付信息,楼盘详情解析!
【总章翡翠公馆】项目靠近5号线西丽站,背靠塘朗山,1公里内有南山文理实验学校、西丽小学等多所学校,教育资源丰富,大型商场天虹商场、益田假日广场约900米,
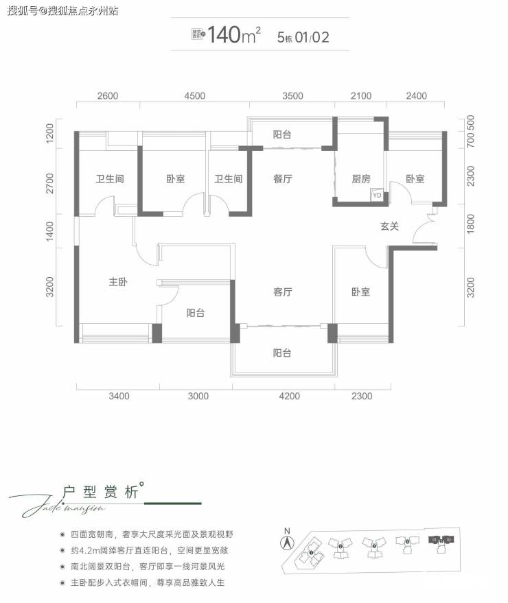
最新消息:项目将推售543套房源,预计将带装修交付,户型面积为80-100-115-140㎡3-4房产品,预估价8万/㎡起,传价格有惊喜。项目最大亮点,80㎡的上车三房户型!容积率仅4.5!
总章翡翠公馆_营销中心_Vip Tel:400 992 0669(中介勿扰)
总章翡翠公馆位于南山区珠光北路和留仙大道交汇处,是南山区大勘实业股份有限公司征地返还地的一部分。
项目整体为“一”字摆开型,且为点式布局,在保证建筑间距的前提下,塔楼布局形态错落有致,景观视线相互错开,为城市空间留出视线通廊,增加城市通透感。
项目位于南山区珠光北路和留仙大道交汇处,是南山区大勘实业股份有限公司征地返还地的一部分。
在售面积段为80-100-115-140㎡3-4房,将推售543套房源,预计将带装修交付
项目规划用地面积12892.98㎡,建设面积81761.81㎡,由5栋约百米高、2层地下室的高层住宅组成,预计提供住宅543套(包含回迁房),物业公司为深圳市总章物业管理有限公司。
项目距离7号线约600米,算是地铁口物业,在此亦可以乘坐5号线,4站可达深圳北,出行较为方便。
总章翡翠公馆位于大沙河东侧,珠光北路和留仙大道交汇处的南侧。
其地块西面紧邻珠光北路,东面触及塘朗山山麓,南面为规划中的城市道路,一路之隔为另一新建住宅社区——鼎胜金域阳光。
根据百度地图路径测距约800米可达地铁西丽站,当前为地铁5号线和7号线的双线换乘站;同时,可通过项目就近的沙河西路、留仙大道便捷连接周边板块,整体交通配套已较为成熟、稳定。

项目西侧为西丽留仙洞总部基地,东北侧为大学城,东侧为塘朗山,西南侧是西丽高铁站。
留仙洞总部基地,承接科技园北区高新技术产业北拓是全市重点开发片区,定位为国际一流的战略性新兴产业总部基地,规划占地面积135公顷,建筑面积550万㎡,以新一代信息技术、人工智能、智能制造、生物与生命健康产业为主导。
目前已经引进大疆、传音控股、天珑移动、优必选、普联、深信服等为代表的国内标杆企业研发和总部项目,正加速形成高端项目“高地”和总部型企业集聚区。
产业的汇聚,将会给片区带来高端人流的聚集,对居住的需求会增加,那么对于项目的居住价值和投资价值提升,都是有帮助的。
周边配套介绍:
交通:项目最近地铁为5/7号线的西丽站,步行距离为800米左右,地图显示步行所需时间约14分钟左右,此外,项目临近留仙大道、沙河西路,自驾出行还是相对便捷的。
教育:项目自带一所幼儿园,周边学校有南二外平山小学,西丽小学、南山文理实验学校,但整体教育质量相对一般。
商业:项目周边多为创业园,生活配套相对较少,后期只能依赖项目自带底商,大一点商业配套,需要步行前往一公里左右的天虹商场、益田假日里购物中心。
文娱:项目周边配套众多,有塘朗山、大沙河生态长廊、九祥岭湿地公园、体育中心,可以满足日常休闲娱乐需求
如需了解更多本项目信息,请拨打售楼处电话,现场销售会为您详细介绍楼盘。
总章翡翠公馆_开发商售楼处_Vip Tel:400 992 0669 (中介勿扰)
(更多项目动态| 欢迎来电咨询 | 请提前预约登记看房 | 1:1销售专业讲解)置业顾问一对一对接,来电尊享受额外优惠
*特别提示:本宣传资料所涉宣传内容,仅作为项目宣传推广使用,不在任何意义上构成开发商的承诺与要约,具体以政府部门审定的规划设计文件及商品房买卖合同的约定为准。本公司有权对宣传内容进行修改、调整,敬请留意最新宣传资料。
声明:本文由入驻焦点开放平台的作者撰写,除焦点官方账号外,观点仅代表作者本人,不代表焦点立场。
