2024华润润曦府(深圳)多少钱一平方,华润润曦府优缺点分析,一文读懂
扫描到手机,新闻随时看
扫一扫,用手机看文章
更加方便分享给朋友
深圳华润润曦府 光明城芯·双地铁旁·润系臻作 建面约89-110㎡三至四房 润系臻宅
温馨提示:看房请提前来电预约,感谢配合!预约来访成功,即享现场当天优惠折扣,可预约现场指定销售专员(中介勿扰)
华润润曦府开发商售楼处咨询/预约热线:400-992-0669(中介勿扰)
(更多项目动态| 欢迎来电咨询 | 请提前预约登记看房 | 1:1销售专业讲解)置业顾问一对一对接,来电尊享受额外优惠
光明华润润曦府占地面积约1.9万㎡,总建筑面积约8.9万㎡,推出建面89-110㎡三至四房备案均价无变化约4.7万/㎡,单价区间约4.4-4.9万/㎡,总价区间约394-544万/套,物业管理费4.5元/㎡。商铺建面约35-978㎡,备案均价与住宅差不多,约4.7万/㎡,单价区间约2.7-8.4万/㎡,总价区间约157-4108万/套。
【润曦府项目信息】
项目地址:深圳·光明-玉塘街道光侨路与规划路银塘路交汇处东南侧
户型面积:建面约89-110㎡三至四房
占地面积:约1.9万㎡
总建面:约8.9万㎡
容积率:约4.6
车位数:1304
【品质房企】华润置地,与深圳共澎湃
华润置地作为中国城市综合投资开发运营商,坚持“品质给城市更多改变”,深度参与城市建设与更新。
40年来华润置地与深圳同频共振,从罗湖到南山,从深圳湾到前海湾,深圳的每一个时代,都有华润置地同行,造就一个又一个品质人居范本。
【与光明共未来】
2018年,光明升级为行政区,打造光明科学城和深圳北部中心
2022-2023年,华润置地布局光明润系双子作品——润曦府&润晖府,润启光明,焕新光明品质人居新封面
PART2/区位篇
科创湾芯,光明价值再跃升
———————————————————
【湾区光明科创核】
“粤港澳大湾区+先行示范区”双区驱动下,光明将建设成世界一流科学城和深圳北部中心,定位为大湾区综合性国家科学中心先行启动区,打造“中国新硅谷”。
【光明门户区】
润曦府所在的光明门户区,占据凤凰城“一环两轴三核”发展格局中的“一轴一核”,玉塘片区集聚城市发展之势,打造面向大湾区独具魅力的“光明南大门”,一座光明门户宜居新主场跃然崛起。
一轴:光侨路——创新产业发展轴
光侨路被誉为光明版“深南大道”,沿线布局高新科技产业园,投资规模约600亿元,超5家500强高新科技企业,汇聚近10万高素质人才。
一核:长圳站综合体——TOD示范项目
长圳车站综合体作为凤凰城发展核之一,打造地铁6号线上盖,集住宅、酒店、商业、长圳车站于一体约110万㎡TOD综合体,规划约19.7万㎡大体量商业配套,将成为玉塘核心片区。
【光明南部城市中心】润曦府所在玉塘街道被政府赋予“加快玉塘核心片区建设,打造独具魅力的‘光明南大门”的发展定位,建设“一区一中心”,打造光明科学城的产业配套区和活力多元的光明南部城市中心。
【光明科创产业高地】润曦府所在的玉塘街道作为光明产业强街,是全区企业集聚度最高的街道,是先进制造业重要集聚地。2021年玉塘GDP总量为351.9亿元,全区占比27.5%,GDP连续三年排名全区第一,产业实力将带来海量高素质、高技术人才,驱动未来旺盛的居住需求,或将成为下一个南山科技园。

优渥资源,奢享醇熟生活圈
【双地铁旁物业,6/18号线交汇长圳站】
·地铁6号线(已通车):
7站即达深圳北站,途径龙华、福田、罗湖、福田四区
1站换乘地铁13号线,6站到南山,直达深圳湾
·地铁18号线(规划中):
深圳外环线,5站到宝安,接驳地铁11号线
1站换乘光明城高铁站,1站到深圳北,2站到福田
·3大高速路网(已通车):
龙大高速: 深圳龙华-东莞大岭山
南光高速: 南山-光明
外环高速 :宝安-大鹏
【超50万㎡商业体,荟萃万象繁华】K+广场、长圳N次方公园、长圳车站综合体商业(规划)等三大商业体环伺,地铁1站近享蓝鲸世界、万达广场醇熟商圈,举步一城繁华。
【多公园环伺,拥抱鲜氧生活】项目周边长圳儿童公园、长圳公园、甲子塘城市公园等三大公园环绕,地铁1站即达新城公园、虹桥公园等网红公园,咫尺鲜氧绿意。
【菁英成长高地,涵养书香气韵】项目周围汇聚有深大附属实验中学、华中师范大学附属学校、深圳中学光明校区、光明长圳学校等四大优质学府。(*开发商不对学位进行承诺)
【重点医疗奢配,护航健康人生】深圳中医院(光明院区)、中国科学院大学深圳医院、中山大学附属第七医院等优渥医疗资源,护航健康生活。
【人文艺术奢配,浓厚文化氛围】毗邻光明文化艺术中心、玉塘文体中心(在建中)、光明会展中心、光明文化馆等艺术设施,丰沛艺术生活。
润系臻作,光明品质人居范本
华润置地深耕光明,2023携“润系”高端产品系,汲取全球美学视野,遵循润系人居系统,打造光明城市人居封面——润曦府。
【归家礼序,岭南园艺】以“润系”特有的东方意境美学,承袭现代岭南园林的粤韵风华,营造5重精致归家礼序,奢享门第之尊的东方礼序。
【全龄社区,全配生活】全龄理想社区,覆盖阳光草坪、中央会客厅、儿童乐园、青年运动区,长者康体区等全龄配套,安放全家人的生活乐趣。
【万象生活,品质服务】华润万象生活有限公司作为世界500强企业华润集团旗下战略业务单元华润置地的成员公司,是中国领先的物业管理及商业运营服务商。
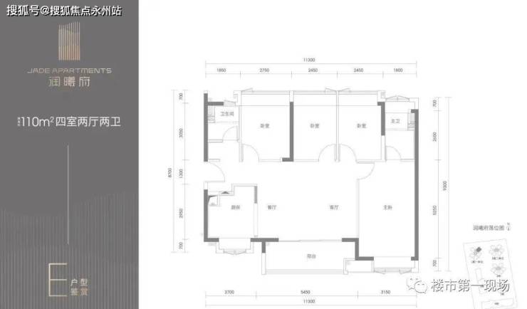
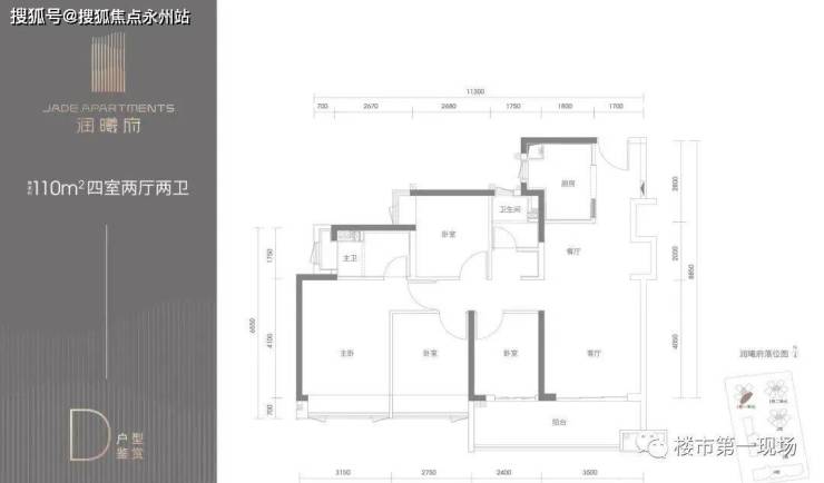
【润系美学,精研筑家】以东方简雅审美的润系精神,打造超80%得房率户型、高实用率空间、精细收纳系统,实现美感与实用并存,建面约89-110㎡三至四房,润系臻宅,盛载全家人的生活向往。
【超底门槛,惊喜交付】光明超低门槛上车润曦府,毛坯限价发售,轻松置业无压力,交付带惊喜,省心省力更省钱,光明超高性价比置业优选。
目前,市场主流刚需要买就买89㎡三房。理由主要有纳税合理可以省钱、空间利用率高又满足功能性、转手容易保升值。
89㎡做3房,一定是更考验设计的,尤其是更考验开发商的“诚意”。
华润润曦府,华润很有诚意直接在户型图标出尺寸和得房率,展现了一把自信,89㎡三房两厅两卫共有A01和A02两种户型。
A01户型是传统的三房二卫,户型方正,发挥稳定。贴心地预留了嵌入式玄关柜、冰箱位凹槽,U型厨房布局,好看又好用;约5米的阔景阳台,兼具晾晒和看风景的功能性双飘窗儿童房,通风采光都俱佳,主卧也带有约3米的大飘窗,可圈可点的户型设计。
A02户型是横厅三房两卫,当下年轻人比较喜欢的户型,户型本身的设计没有过多的浪费空间。入户处嵌入式玄关,转角隔断设计,兼具实用性、美观性、私密性;广角横厅增大客厅采光面积,空间设计合理得当,预留了不少位置做收纳。卫生间科学的干湿分离设计,保证使用便利性的同时大大增加了户型的整体舒适度,主卧自带对流双飘窗,通风采光都很不错。
得房率是润曦府产品的一大亮点,超80%。如果算上赠送面积,部分户型的实际使用率可能超90%。相较于市面上很多产品的得房率只有70多,大家千万不要小看这10个点的差距。
华润润曦府【华润润曦府】华润润曦府开发商售楼处电话:400-992-0669(中介勿扰)
来电可了解楼盘最新动态、房价、在售房源、交楼时间等信息!让你买的放心,住的舒心!
华润润曦府开发商售楼处直销_欢迎来电预约享受内部折扣_恭迎品鉴
◆提前来电-预约登记尊享售楼处销售专业讲解〢一对一热情服务〢◆
华润润曦府开发商售楼中心〢预约可享内部优惠〢匠心钜制-恭迎品鉴〢
温馨提示:项目没有所谓的“分机号”注意保护个人隐私!谨防上当!看房请务必提前预约,避免临时无人接待,感谢您的配合!
注:本广告/宣传资料所涉及对项目周边环境、交通、商业、学校、规划设计及其他公共设施等介绍旨在提供相关信息,不构成开发企业的任何要约和承诺,买卖双方的权利义务以政府的最终批准文件及买卖合同所载内容及实际交付为准。
声明:本文由入驻焦点开放平台的作者撰写,除焦点官方账号外,观点仅代表作者本人,不代表焦点立场。
