招商瑧玺售楼处电话:售楼处400电话丨招商瑧玺售楼中心24小时电话
扫描到手机,新闻随时看
扫一扫,用手机看文章
更加方便分享给朋友
招商瑧玺开发商售楼处电话:400-992-0669(中介勿扰)
预约看房,现场销售置业顾问一对一对接,享受额外优惠!
温馨提示:过来看房需提前来电预约销售,感谢您的配合!
臻玺家园位于前海自贸区妈湾片区,梦海大道与妈湾一路交汇处,临近地铁5号线妈湾站,跟前湾一河之隔,周边居住氛围浓厚
03
-商业配套-
臻玺家园自带约5149㎡商业,步行约10分钟可到约4.5万㎡印里商业,被誉为“mini版太古里”,自驾可去到万象前海、卓越intown、前海山姆旗舰店

04
-交通情况-
轨道交通:距离地铁5号线妈湾站约500米,步行约8分钟,距离深惠城际的前保站500米,连接鲤鱼门站、西丽枢纽、深圳北站等深圳重要交通枢纽
妈湾地下通道,10多分钟快速抵达后海、深圳湾
05
-教育资源-
臻玺家园配建一所幼儿园,隔壁是在建的南二外集团旗下9年制学校,旁边还有一所新增的9年义务教学用地
国际学校荟同学校就在附近
由于深圳超高层社区泛滥,户型使用率越来越低,很多新房只能做到70-73%,个别新房甚至不足70%,买家有苦难言。
而前海瑧玺的使用率非常高,赠送后使用率最高可达约97%!不仅是前海新盘的天花板,就连全市都难逢敌手,堪称炸裂级别。
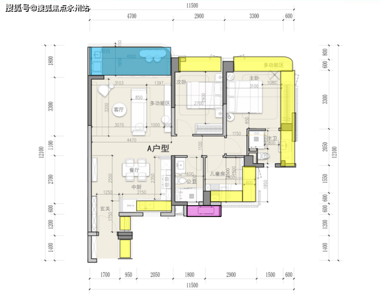
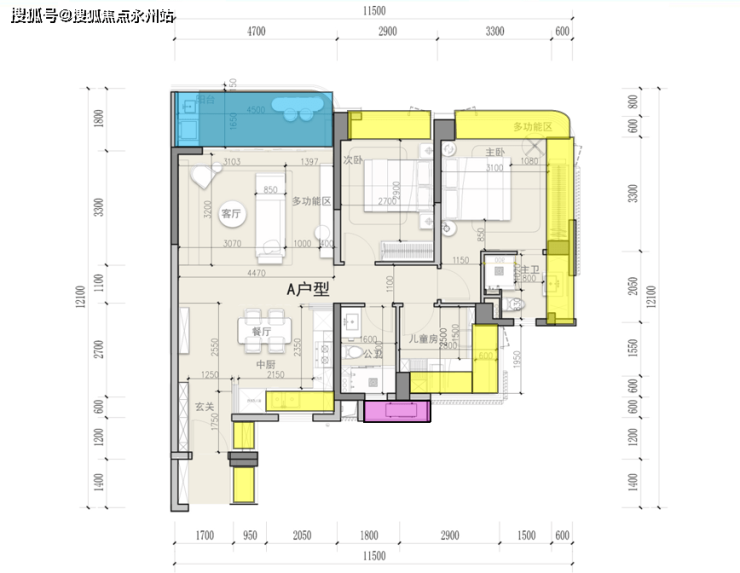
前海瑧玺建面约128平4房的户型图,每个空间不是凸窗就是阳台,有些还是两面凸窗,大幅扩展了实用空间,非常阔绰。

建面约128平户型示意图
阔绰到4个房间,实用面宽最小的卧室也有约2.8米,儿童房则达到了夸张的约4.4米,可以分隔成休息区+亲子娱乐区,非常灵动。
这意味着,这套户型,实际上能满足4+1房的功能使用。
客餐厅、阳台和主卧的尺度更加阔绰,客餐厅连为一体,面宽高达约7.2米,阳台面宽高达约6.2米,主卧面宽高达约3.9米、进深高达约7.4米。
建面约106/107平的3房2厅2卫,也是全屋凸窗设计,使用率也很高,实用尺度相当于市面上130-140平左右的户型。
其中建面约107平的3房,除了少一个卧室,整体设计和建面约128平的4房相差无几,都是格局方正、大面宽、大横厅设计,就算是三代同堂,也能很好地满足隐私性和独立性,非常舒适。
建面约107平户型示意图
建面约106平3房为经典的竖厅设计,动静分区、双玄关入户、客厅出阳台、LDK一体化餐客厅、主卧带转角飘窗,实用又不失阔绰,秒杀市面上一众同等建面的3房。

建面约106平户型示意图
单单凭借户型优势,前海瑧玺就能艳压一众豪宅新盘,超高使用率不仅能替购房者节省大笔成本,未来在二手流通市场,注定也会拥有更高的溢价空间,是打新必须要等待的项目。

深圳招商瑧玺开发商售楼处电话:400-992-0669(中介勿扰)
过来本项目营销中心看房,记得提前来电预约,感谢你的配合!
提前预约享受楼盘内场优惠折扣,并安排现场销售一对一服务!
来电可了解楼盘最新动态、房价、在售房源、交楼时间等信息!
免责声明🔉:以上所发布的楼盘相关信息仅供参考,所有图文资料及说明请以最终批文及双方在楼盘现场签署的买卖合同为准;本图文内容如无意中侵犯某方权益,请联系我们将会及时处理。
声明:本文由入驻焦点开放平台的作者撰写,除焦点官方账号外,观点仅代表作者本人,不代表焦点立场。
