满京华金硕华府最新动态2025丨光明满京华金硕华府项目深度测评与综合分析!

搜狐焦点永州站 2025-10-09 12:18:00
用手机看
扫描到手机,新闻随时看

扫一扫,用手机看文章
更加方便分享给朋友

满京华金硕华府于2023年9月12日取证入市,首推2栋1/2单元/3栋,共704套住宅房源,面积89㎡的3房1卫,98-103㎡的3房2卫,120-139㎡的4房2卫户型,备案均价4.65万/㎡,备案单价4.…

✨ 满京华金硕华府预约通道开启,已认证,安全无忧咨询热线 ✨

✅满京华金硕华府售楼处丨开发商丨营销中心统一热线:400-992-0669(全程认证,无分机号)

✅ 通话自动隐藏号码,保护个人隐私,谨防非渠道诈骗

科学公园满京华利益统筹项目一期——满京华金硕华府。

项目作为光明中心区的重点开发项目,从立项到动工,一直深受购房者关注,建面约88-98-118-139㎡,备案均价4.65万/㎡,备案单价4.14-5.14万/㎡,总价368-722万/套,计划在2025年12月底前带简装交房,该项目环境好,社区大,教育资源充沛,入学无忧。

满京华金硕华府_售楼处_Vip Tel:400-992-0669 中介勿扰

满京华狮山利益统筹项目(满京华一期金硕华府)位于6号线光明站、光明大街站1公里辐射范围内,交通便利,北面是规划中的光明新城市“绿肺”——科学公园。

【开发商】:深圳市满京华置业投资有限公司

【售楼处地址】:深圳·光明中心·光辉大道与狮山三街交汇处·6号线光明站D出口约800m【总占地面积】:约11万㎡

【总建筑面积】:约88万㎡

【一期占地面积】:约2.28万㎡

【一期建筑面积】:约19.80万㎡

【一期容积率】:6.0

【主力户型】:建面约88-141㎡3-4房

【售楼处电话】400-992-0669

满京华狮山利益统筹项目位于光明科学城核心区块,地块原为狮山工业园区,是光明区8个土整利益统筹试点项目之一,是光明中心区建设得重要组成部分。项目位于深圳市光明中心区中部,东临光明大道,北临光辉大道,与科学公园隔路相望。

项目范围涵盖10块用地,总用地109398㎡,总建筑面积约32.38万㎡,其中项目用地7块,返还用地1块,公共绿化用地2块。

05-03:科学公园首排,共计412套,户型为142㎡和208㎡,各206套。

05-05:商业地块。

05-09、05-10、05-13、06-04、06-06:商品房和人才房634套。

其中,商品房:88㎡605套,98㎡1739套,100㎡305套(横厅),118㎡486套,135㎡380套,合计3515套。

人才房:06-06地块,65㎡406套,85㎡228套,合计634套。05-03、05-05地块总建筑面积约222623㎡,具有国际、艺术、现代风格的高端住宅、办公、商业、配套等。其中主要包括1栋约180m超高层办公写字楼,3栋超高层住宅(住宅最高约150m)及其商业配套。

住宅05-03地块较为狭长,3栋塔楼一字排开获取最佳景观效果。

办公05-05地块塔楼建筑立面采用框架式幕墙,竖明横隐,高区塔楼层级叠退,强调建筑形象的向上拔升感,竖向线条加玻璃幕墙,虚实结合,视觉效果轻盈简洁。

如需了解更多详情,欢迎咨询满京华金硕华府开发商售楼处电话/咨询热线:400-992-0669(中介勿扰),过来我们营销中心看房提前来电预约,而且最终的价格还能享受更多优惠。

05-09地块:用地面积为8819.9㎡,总建筑面积73918.69㎡,共有2栋住宅楼和商业组成。

05-10地块:用地面积为22841.91㎡,总建筑面积196254.09㎡,由1栋1单元、1栋2单元、2栋1单元、2栋2单元、3栋住宅楼、幼儿园、物业服务用房、商业用房、等相关配套设施组成。

05-13地块:用地面积为11250.4㎡,总建筑面积98715.64㎡,由1栋、2栋、3栋住宅楼、幼儿园、物业服务用房、商业用房、等相关配套设施组成。

项目外立面采用现代风格设计手法,追求公建化立面,强调整体性。幕墙系统有系统窗、玻璃栏杆、石材幕墙+蜂窝石材、山墙面铝合金格栅系统、层间装饰线条、入口大堂玻璃幕墙、铝板幕墙、U型玻璃系统等。

裙楼立面采用竖隐横明玻璃幕墙,裙房与塔楼相呼应,形成兼具灵动性、内部秩序的简洁立面。

小区:借鉴新加坡园林,打造出温情向阳的社交场、有趣有料的互动空间。

儿童游乐场:打造主题性的多维儿童游乐空间

全龄泳池:在家就能享受日光浴SPA

社区会客厅:在社区会客厅里与邻里朋友自由畅谈

塔楼建筑立面采用框架式类幕墙,传统构件式设计概念,幕墙均以散件形式现场按次序安装。住宅山墙面采用密拼式铝合金格栅加塔楼层间铝合金装饰线条,视觉效果轻盈简洁。项目的立面幕墙设计由PAG朋格幕墙负责,具体以官方公布交付为准。满京华金硕华府_售楼处_Vip Tel:400-992-0669 中介勿扰

项目配套简介

交通/教育配套:周边分布有地铁6号线的光明、科学公园和楼村三个站点,距离约1公里左右,规划有另一条直达南山科技园的29号线,轨道交通便利。周边也分布有多所学校,包括有华师大附属星河小学、深实验光明学校、深圳小学等多所市属名校分校(具体学区范围以官方公布为准)。

商业/文娱配套:项目自带商业综合体外,1公里左右还有在建的星河cocopark,以及3公里处还有目前光明最繁华的凤凰城蓝鲸世界,万达广场等大型商业。

家门口规划有科学公园,占地面积约为208万㎡,公园内规划有科学岛、科技馆新馆、西方美术馆等,未来紧邻科技创新文化集群。

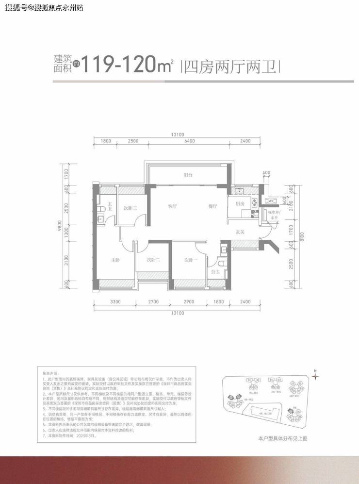
满京华金硕华府于2023年9月12日取证入市,首推2栋1/2单元/3栋,共704套住宅房源,面积89㎡的3房1卫,98-103㎡的3房2卫,120-139㎡的4房2卫户型,备案均价4.65万/㎡,备案单价4.14-5.14万/㎡,总价368-722万/套,计划在2025年12月底前带简装交房!

后面在2023年11月28日再次取证加推,本次推出1栋1/2单元,共434套房源,面积89㎡的3房1卫,98-103㎡的3房2卫,120-139㎡的4房2卫户型,备案均价4.65万/㎡,备案单价4.21-5.16万/㎡,总价414-725万/套。

项目除了4栋是12班幼儿园教学楼外,1栋1-2单元、2栋1-2单元、3栋都是可售商品住宅楼,有3梯6户、3梯4户两种梯户比,总货量约1138套。

满京华金硕华府_售楼处_Vip Tel:400-992-0669 中介勿扰

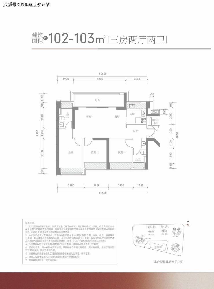
建面约88㎡三房两厅一卫,约98㎡三房两厅两卫,约103㎡三房两厅两卫、约118㎡四房两厅两卫、约141㎡四房两厅两卫,共计3大类,细分5个户型。

不管是三房还是四房、横厅还是竖厅,它们的户型都是比较常见的传统的结构,竖厅动静分区,横厅隐形式过道搭配宽景阳台,就结构本身和各功能间的尺度来说没啥特别想吐槽的。

项目88㎡及98㎡户型全部为西南、东南或南朝向,都是比较受欢迎的朝向;103㎡-141㎡户型客厅阳台都是西北或者是东北朝向,因为是横厅,且都是独立的一条腿,在另一侧开窗的情况下整个是可以实现整个室内空气对流、通透的。

如需了解更多本项目信息,请拨打售楼处电话,现场销售会为您详细介绍楼盘。

满京华金硕华府_开发商售楼处_Vip Tel:400-992-0669 (中介勿扰)

(更多项目动态| 欢迎来电咨询 | 请提前预约登记看房 | 1:1销售专业讲解)置业顾问一对一对接,来电尊享受额外优惠

*特别提示:本宣传资料所涉宣传内容,仅作为项目宣传推广使用,不在任何意义上构成开发商的承诺与要约,具体以政府部门审定的规划设计文件及商品房买卖合同的约定为准。本公司有权对宣传内容进行修改、调整,敬请留意最新宣传资料。

声明:本文由入驻焦点开放平台的作者撰写,除焦点官方账号外,观点仅代表作者本人,不代表焦点立场。