首页网站-拾悦城楠园宝安拾悦城楠园 (营销中心)2025营销中心欢迎您-楼盘详情-备案价-容积率-小区环境-户型图@售楼处
扫描到手机,新闻随时看
扫一扫,用手机看文章
更加方便分享给朋友
✨ 拾悦城楠园售楼中心预约通道开启,已认证,安全无忧咨询热线 ✨
✅ 拾悦城楠园售楼处丨开发商丨营销中心统一热线:400-992-0669(全程认证,无分机号)
✅ 通话自动隐藏号码,保护个人隐私,谨防非渠道诈骗
宝安拾悦城楠园最新价格、户型信息,配套及交付信息,楼盘详情解析!
若有中介报价过低,请及时与售楼中心核对真假,避免上当!开发商热线400-992-0669【售楼处首页已认证】
✅在售户型图丨项目介绍丨最新房源丨周边配套丨详细解答〢
◆开发商营销中心诚挚邀请,一键预约,尊享内部独家折扣!匠心独运的精品项目,恭候您的品鉴与选择。
拾悦城楠园,全沙井超高性价比南向三房一卫产品,折后总价约330-340万左右。提前抢购,先到先得❗❗❗
沙井正中心 一站式生活配套,家门口宝中外集团学校已开学,楼下举步可达定岗湖公园,地铁11号线沙井站700米,准现房,生活一步到位,计划2025年12月底简装交付。拾悦城_Vip Tel:400-992-0669 中介勿扰
总户数约:2015套,可售房源约:1307套,车位:2398个。
户型详细户型段:约86-95㎡(三房两厅一卫)约100-107㎡(三房两厅两卫)约115平-125平(四房两厅两卫)约140平(五房两厅两卫)
 
拾悦城楠园于2023年10月11号推出来B座、E座一共520套,面积86㎡~141㎡,备案均价50057元,备案总价374万~851万,折扣91折。后面直接85折+60万免息贷款。目前剩余298套,备案了222套,去化率42.69%。
2024年4月15号加推了A座、G座一共309套,面积94㎡~120㎡,备案均价50221元,备案总价456万~622万,打85折+60万免息贷款。目前剩余163套,剩余146套,去化率47.25%。
2024年8月8号加推了D座、F座一共406套,面积94平~126平,备案均价46528元,备案总价414万~702万。打85折+60万免息贷款。目前剩余94套,备案了312套,去化率76.85%。
如需了解更多详情,欢迎咨询拾悦城售楼处电话400-992-0669,过来我们营销中心看房提前来电预约价格还能更优惠。
拾悦城楠园售楼处400免费咨询/预约电话:400-992-0669,中介勿扰
温馨提示:过来营销中心参观样板间请记得提前拨打售楼处400热线预约,感谢您的配合!
 
项目整体分3期开发,此次入市的楠园、沁园属于项目2期,作为全国首批三星级绿色建筑住宅,安全耐久、健康舒适、节约资源的绿色健康人居空间。
拾悦城楠园,占地约3.54万㎡,总建面约17万㎡,共规划了14栋30-48层超高层住宅、4栋26-33F高端写字楼及部分商业配套组成,主力户型约86-140㎡ 全能3-5房,还规划了一所36班九年一贯制学校、一所18班幼儿园。(深圳宝安沙井拾悦城售楼处电话:400-992-0669)
 
赏景舒居 全能空间:匠造建面约86-140㎡三至五房,通透布局,敞阔尺度,收藏三代幸福时光,为每一个家庭定制纯粹舒居生活范本。
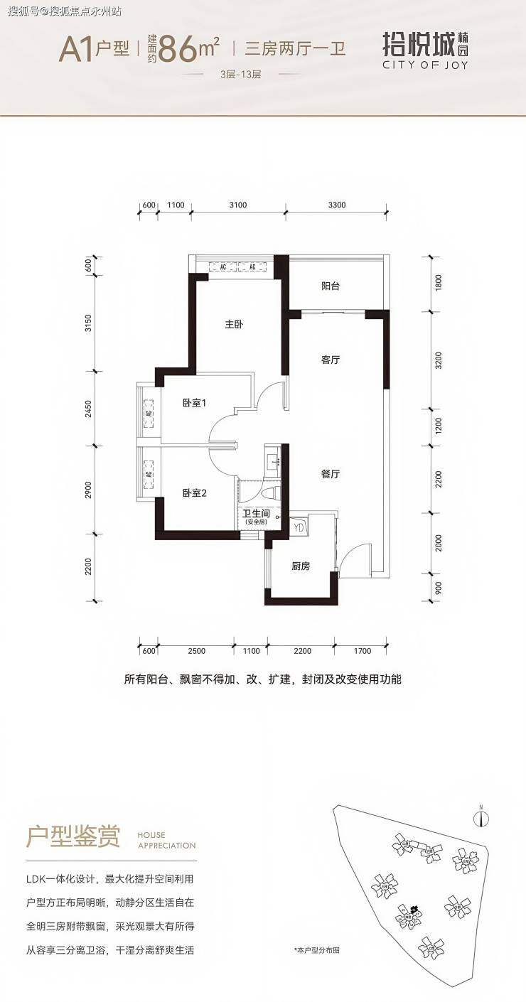
86㎡的3房2厅1卫,设计的是竖厅格局,进门入户玄关,客厅3.3米开间,LDKB一体化设计,3个卧室分别做到了3.1米/2.9米/2.45米的宽度,U型厨房,卫生间三段式分离,得房率:76.92%(不含赠送),阳台1.8米宽度,东北朝向。
 
100㎡的3房2厅2卫,设计的是竖厅格局,进门入户玄关,客厅3.4米开间,LDKB一体化设计,3个卧室分别做到了3米/2.9米/2.5米的宽度,U型厨房,公卫三段式分离,得房率:77.14%(不含赠送),阳台1.8米宽度,西南或东南朝向。
 
104㎡的3房2厅2卫,设计的是经典竖厅格局,进门入户玄关,客厅3.4米开间,LDKB一体化设计,3个卧室分别做到了3.1米/2.9米/2.5米的宽度,U型厨房,公卫三段式分离,得房率:76.21%(不含赠送),阳台1.8米宽度,西南或东南朝向。
 
118㎡的4房2厅2卫,设计的是横厅南北通透格局,进门入户玄关,客餐厅6.3米开间,无过道设计,4个卧室分别做到了3.55米/3米/3米/2.8米的宽度,U型厨房,公卫三段式分离,得房率:74.31%(不含赠送),阳台1.8米宽度,主朝西南或东南向。
 
120㎡的4房2厅2卫,设计的是竖厅南北通透格局,进门入户玄关,客厅3.8米开间,4个卧室分别做到了3.55米/2.8米/2.6米/2.5米的宽度,L型厨房带一个生活阳台,公卫三段式分离,得房率:74.31%(不含赠送),阳台1.8米宽度,主朝西北或东北向。
 
126㎡的4房2厅2卫,设计的是竖厅南北通透格局,进门入户玄关,客厅3.6米开间,4个卧室分别做到了3.6米/3.2米/3.1米/2.9米的宽度,L型厨房,公卫三段式分离,得房率:74.51%(不含赠送),阳台1.8米宽度,主朝东北向。
 
140㎡的5房2厅2卫,设计的是竖厅南北通透格局,进门入户玄关,客厅4.1米开间,5个卧室分别做到了3.65米/3米/2.9米/2.8米/2.4米的宽度,L型厨房,公卫三段式分离,得房率:76.92%(不含赠送),阳台1.8米宽度,主朝东北向。
 
小区配套及品质信息
拾悦城 纯粹大城 全维社区 圈层纯净:70万㎡纯居大城,围合式社区,圈层纯粹。
围合式建筑布局:7栋塔楼点式排布、楼间距舒适、景观视野优渥、安静纯粹。
宅标准一线品牌 筑就精工品质:以豪宅标准甄选知名品牌,采用高标准的skk真石漆涂料、国际认证级贝克洛系统门窗等。
 
1.4万平全龄段主题园林:1.4万平米中央园林,以“全维社区共享生活体系”为概念,打造全龄段、多元化、动静分明的沉浸式归家生活。
主题儿童区:670平米森系主题儿童乐园
环氧步道:356米环形健康步道,即能运动又能与家人一起享受幸福甜蜜的闲暇时光
社区活动广场:专属社区活动场地,满足全龄段业主活动需求
高品质公区:高品质入户大堂、停车场入户大堂,归家仪式与空间交融
社区会客厅:沉浸式社区会客厅,邻里关系更温馨
 
拾悦城,位于宝安区宝安大道与寮丰路交汇处西侧约200米,地处西部城市中心,在“双区”建设、前海扩区等多重战略机遇叠加下,宝安区致力于产业转型、城市转型,全面优化空间结构,提出“422133”战略主框架,谋划以南北双中心建设带动城市发展。
 
除了提升宝安中心区发展能级,加快打造设施更完善、功能更强大、品质更高端的现代化国际化创新型城市新中心;宝安区还将统筹沙井、新桥、松岗片区,建设人、产、城有机融合发展、品质卓越的西部城市中心,建设宜居宜业宜游的品质城区。
 
项目家门口就是宝安大道,可快速通达深圳外环高速、11号地铁线“沙井站”距离约700米,6站到机场,8站到宝中,9站到南山前海,13站到南山高新园。
自驾方面,项目呈现“一横四纵”的路网布局,包括深圳外环高速,广深沿江高速、宝安大道、广深公路(107)和京港澳高速等,轻松畅达全城。
当然,一脚油门,到宝安国际机场、福永码头,换种方式出行,也是相当方便。
住在这里,你的目的地,可以是全世界。
 
拾悦城,周边超490万㎡航母级城市更新,近享约140万㎡深圳最大旧改“华润金蚝小镇”利好辐射.大牌云集,助力城市蝶变升级。
约3公里内超48万㎡商荟集群.享天虹、沃尔玛、京基百纳广场核心商圈。
未来周边还会进驻山姆会员店(建设中)、百佳华Max City(建设中)、海岸城,潮流聚合尽享“十分钟购物生活圈”
 
项目自带1所18班制幼儿园,根据2024年宝安区教育局最新的学区划分,小学学区划分在壆岗小学、宝安中学外国语学校(集团)拾悦小学、宝安中学外国语学校(集团)博雅学校(小学部),初中学区划分在沙井中学,荣根学校。
 
宝安中学外国语学校(集团)博雅学校,是1所九年一贯制学校,总规划36个教学班,其中小学24个班,初中12个班,可以提供1680个学位,在2024年秋季首次招生,本次只招生了小一4个班级,录取积分是75.5分,按照宝安区的招生政策非深户+学区商品房就有75分,该校生源目前而言是没这么紧张的。
另外拾悦小学24年的录取积分是70.5分,沙井中学录取积分91.1分,荣根学校初一录取积分117分,该校生源是特别紧张的,读初中需要提前9年7个月买房才行。
 
生态配套方面,定岗湖公园占地面积约9.5万㎡,2023年荣获“最受市民欢迎奖”,公园包括水域、湿地、亲水平台、音乐喷泉、廊桥、儿童活动场地、足球场等,为周边市民提供了多样的公共活动空间。
 
拾悦城售楼处电话:400-992-0669 中介勿扰
拾悦城楠园营销中心电话:400-992-0669 中介勿扰
拾悦城二期售楼中心电话:400-992-0669 中介勿扰
温馨提示:本项目采用预约制,过来营销中心参观样板间请记得提前拨打开发商楼盘售楼处400热线电话在线预约,感谢您的配合!
➤➤➤➤VIP贵宾置业〢欢迎来电咨询〢品鉴!(24小时预约电话)
注意:本项目不收任何费用,售楼中心〢欢迎来电咨询〢安全通话隐藏真实号码
声明:本文由入驻焦点开放平台的作者撰写,除焦点官方账号外,观点仅代表作者本人,不代表焦点立场。
 
 
 