揭秘!深圳南山「绿景白石洲」官方最新消息,具体价格!户型解析请看以下图文!
扫描到手机,新闻随时看
扫一扫,用手机看文章
更加方便分享给朋友
✨ 绿景白石洲官方售楼中心预约通道开启,安全无忧咨询热线 ✨
✅绿景白石洲售楼处/营销中心统一热线电话:400-992-0669(官方认证,无分机号)
通话自动隐藏号码,保护个人隐私,谨防非渠道诈骗
南山绿景白石洲官方最新价格、户型信息,配套及交付信息,楼盘详情介绍!
绿景白石洲最新介绍:备案价、折扣、学区、地铁、交通、户型图、特价房、优缺点、得房率、优惠活动、小区图片、开盘时间、交房时间、周边配套、最新详情等咨询。
深圳绿景白石洲售楼处电话: 400-992-0669 预约来访下定当天更享折上折!!
(营销中心 | 欢迎来电咨询 | 请提前预约登记看房 | 1:1销售专业讲解)
南山绿景白石洲售楼中心热线: 400-992-0669(售楼处)【VIP贵宾专线】
温馨提示:过来营销中心参观样板间请记得提前拨打售楼处400热线预约,感谢您的配合!
「绿景白石洲」作为深圳的一个备受瞩目的项目,项目不仅地理位置优越,而且配套资源丰富,相信能够满足许多购房者的需求。
首先,让我们来了解一下绿景白石洲的显著优势:
核心地段:绿景白石洲位于南山区的华侨城片区,这里是深圳城市发展主轴——深南大道与大沙河创新走廊的交汇点。项目紧邻世界之窗和欢乐谷,无论是购物还是娱乐,都非常便利。
交通便利项目位于深南大道和北环大道之间,自驾出行极为方便。此外,地铁1号线白石洲站和2号线世界之窗站距离项目不远,未来还有地铁20号线和29号线规划经过,交通网络四通八达。
生态宜居绿景白石洲靠近大沙河湿地,周边还有多个公园,如华侨城国家湿地公园、燕晗山郊野公园等,空气质量优良,生态环境优美,是都市中的一片宁静绿洲。
稀缺住宅作为片区内为数不多的新盘,绿景白石洲的住宅供应较为稀缺,特别是小面积户型更是供不应求。这对于寻求高品质生活的购房者来说,无疑是一个难得的机遇。
强大配套项目自身规划了约40万平方米的商业空间,涵盖国际购物中心、立体生态街区等多种业态,未来将成为繁华的商圈。周边还有万象天地、益田假日广场等知名购物中心,生活便利度极高。
想了解更多我们项目近期动态、剩余楼层、底价信息与保留房源,请认准我们售楼处电话/预约热线:400-992-0669 中介勿扰
然而,项目也存在一些不足之处:
1.建设周期长:作为旧改项目,绿景白石洲的建设周期较长,短期内可能会有噪音和粉尘的影响。
2.高容积率:项目的容积率高达10.3,超高层建筑较多,高峰出行可能会受到一定影响。
3.户型设计:虽然户型面积多样,但整体设计相对中规中矩,没有特别惊艳的地方。
4.复杂业态:项目包含回迁、公寓、住宅等多种业态,居住环境可能不够纯粹。
近期,深圳优化房地产新政的实施为购房者带来了诸多实惠。放宽限购、取消取售、增值税征免年限由5年调整到2年、优化个人住房贷款等政策多箭齐发,使得购房门槛不断降低,市民安家成本大降。这些政策不仅激发了市场活力,还提升了购房者的信心。
具体来说,增值税征免年限的调整能够降低二手房交易税费,减轻购房成本。而个人住房贷款政策的优化则直接减少了购房者的利息支出,降低了还款压力。此外,新政还鼓励以旧换新进行房产置换,提升了二手房市场的活跃度。
在这样的政策背景下,绿景白石洲作为南山区的优质楼盘,无疑将受到更多购房者的关注。无论是自住还是投资,绿景白石洲都具备极高的性价比和潜在价值。
如果您对我们绿景白石洲有任何疑问或需要进一步了解,请随时与我们联系。将竭诚为您提供最专业的服务。谢谢大家!请认准我们售楼处电话/预约热线:400-992-0669 中介勿扰
项目占地面积30568.31㎡,建筑面积461830.21㎡,容积率10.3,是深圳大体量的城市旧改项目。由6座建筑组成,1栋1-2单元为26/59层塔楼商务公寓,1栋3-5单元为74层塔楼住宅;小区底部为3层裙楼商业,商业顶部是架空花园,1楼与12楼分别设置有通往“天悦花园”的连廊,与“天悦”商业及塔楼互通(深圳绿景白石洲售楼处电话:400-992-0669)
1栋3-5单元电梯分高低区,48以下为低区,以上为高区;3/4单元低区4梯7户,高区3梯6户,5单元低区3梯6户,高区3梯6户;标准层高3m,部分层高3.15m
基础信息介绍
【开发商】深圳市绿景天盛实业有限公司
【项目地址】深圳市南山区深南大道与沙河东路交叉口东北角
【占地面积】46万㎡(四期开发,一期占地3.06万㎡)
【总建筑面积】500万方,开发时长8-10年
【建筑类型】住宅,公寓,写字楼,酒店、商业
【物业公司】绿景物业【物业费】5.8元/㎡/月
【总户数】一期住宅1257户,公寓1489套,
【产品面积段】110-125-187平 【楼层高】住宅三栋都为74F
【梯户比】高区3梯6户、低区4梯7户
【容积率】10.3 【绿化率】30%
【使用率】70% 【车位比】1:0.73
【交楼时间】2026年年初 【交付标准】精装交楼(7000一平交标)
【产权年限】住宅70年,公寓40年
>>预约看房,赠送品牌家电大礼包,获取更多「绿景白石洲」资料数据和优惠
「绿景白石洲」折后价清单。需要高清表格的朋友可以预约热线:400-992-0669 中介勿扰
建筑面积约110m²I 三房/两厅/两卫
瞰景三房,卧室标配飘窗,观景阳台展开风景画卷|餐客一体化,连通阳台,畅享全家欢聚时刻,动静分区舒适化营造,休慎与家庭活动互不干扰|主卧私享化,独立卫浴、衣帽间,自在天地一隅
建筑面积约118㎡²三房/两厅/两卫
横向四开间设计,南向约13.4m奢华采光面,和光同悦南向观景C位,客厅、卧室随心眺望窗外城市风景,奢享主卧,生活阳台、衣帽间、私人卫浴,独享非凡领地,餐客一体贯通阳台,打造舒适、宽敞的家庭欢聚天地本户型所在位置示意
A户型建筑面积约125㎡|三房/两厅/两卫
瞰景三房,飘窗、阳台拉开居住视野,主卧私享功能产备 LDK一体化设计,打造无边界、社交化的餐客厨系统,动静分区舒适化营造,休慎与家庭活动互不干,双阳台设计,厨房连通生活阳台,延展更多空间,随心收纳
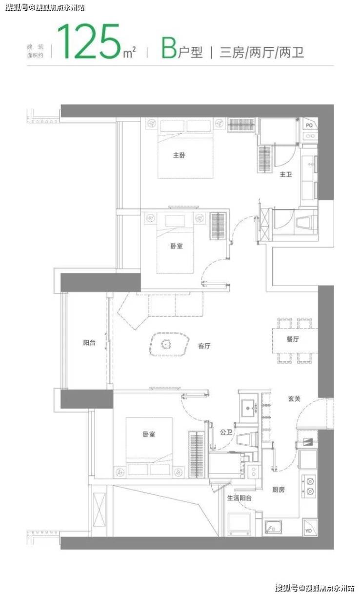
B户型建筑面积约125㎡三房两厅两卫
横向四开间设计,南向约14.1m奢华采光面,和光同悦|南向观景 C 位,客厅、卧室随处纵览非凡城市景观,奢享主卧,步入式衣帽间,私人卫浴,独享自我领地|双阳台设计,厨房连通生活阳台,延展更多空间,随心收纳
C户型建筑面积约125 m² |三房/两厅/两卫
卧室标配飘窗,引入丰沛阳光,全家尽情舒展餐客一体贯通阳台,打造舒适、宽敞的欢聚天地奢享主卧,独享衣帽间、私人卫浴,自我非凡领地,双阳台设计,厨房连通生活阳台,延展更多空间,随心收纳本
建面积约187.四房/两厅/两卫
横向创新户型,超宽向阳尺度,吸纳阳光新风,主卧私享化,独立卫浴、衣帽间,自在天地一隅四开间朝南,卧室大飘窗,在阳光中享受美好栖居,南北双阳台,一面晾晒收纳,一面休闲享受,精彩不止
超级十字轴 成就深圳价值之核
绿景白石洲位于深圳南山区的核心地段华侨城片区,深圳城市发展主轴——深南大道横轴和大沙河科创走廊纵轴交汇的超级十字轴心,依托华侨城人文艺术城区,链接后海总部基地、深圳湾超级总部基地、留仙洞总部基地、高新园总部基地四大总部基地。聚合城市发展能量,为未来总部基地规划的精英技术人才打造高端生活配套区(深圳绿景白石洲售楼处电话:400-992-0669)
多枢纽立体交 海陆空无界链接
地铁1、20(建设中)、29(规划中)号线,与项目无缝接驳,联合旁边2号线,形成四线三站两枢纽轨交体系,高效通达各域;近享深南大道、北环大道、沙河东路等城市主干道:快速畅达西丽高铁站(规划中)、福田高铁站、深圳北站、太子湾邮轮母港、宝安国际机场等。
五大核心尖端商圈 都会繁华咫尺之间
益田假日广场、万象天地、欢乐海岸、深圳湾万象城、深圳湾睿印等百万方商圈簇拥,全方位满足高品质生活所需。
自带超40万m²城市旗舰级商圈,涵盖国际购物中心、立体生态街区、地下步行街、高端社区 Mall 等全业态、全场景,一条1.2公里中央绿轴串联各业态空间,形成集购物、旅游、文娱为一体的城市新潮打卡地。(深圳绿景白石洲售楼处电话:400-992-0669)
超级配套群 深圳生活方式中心
高标准打造共计57班幼儿园和共计90班的九年一贯制学校,优质教育资源弥补片区短缺,更有约6.5万m2社康、文体中心等配套设施,满足全维度生活需求。
绿景白石洲南山外国语学校中标设计方案已确定(深化完善中),是南山外国语学校集团班制规模最大、规格最高的学校。且与大城首期约200m步行距离,真正的接送换目送;学校竣工计划与首期入伙同步(以最终政府落定时间为准);片区生源优质纯粹,精英氛围浓厚,城区居民子女起步即与精英同步。
规划63班(小学42班,中学21班),2940个学位
设计三重接送平台(规划中),涵盖人行/车行动线,校社共融、护航安全
校舍共享,学校的书吧、剧场、运动场、游泳馆等功能空间定期对社区开放,不仅是校园也是多功能社区共享中心
项目处于城市核心地段的低密超级公园带,承接城市“上山下海”规划,坐享家门口6大生态公园:
1座中央公园——约3.4平方公里深圳规划的唯一中央公园(规划中,包含大沙河公园、名商高尔夫、大沙河高尔夫)。
1条中央绿轴——约1.1公里中央绿轴,贯穿城区南北,南直至深圳湾,北接大沙河公园可至塘朗山。
4大公园环伺——约31.2万㎡大沙河公园、约24万㎡燕晗山郊野公园、约 68.5万㎡华侨城国家湿地公园、约15公里深圳湾滨海长廊。
绿景白石洲最新介绍:备案价、折扣、学区、地铁、交通、户型图、特价房、优缺点、得房率、优惠活动、小区图片、开盘时间、交房时间、周边配套、最新详情等咨询。
深圳绿景白石洲售楼处电话: 400-992-0669 预约来访下定当天更享折上折!!
(营销中心 | 欢迎来电咨询 | 请提前预约登记看房 | 1:1销售专业讲解)
南山绿景白石洲售楼中心热线: 400-992-0669(售楼处)【VIP贵宾专线】
温馨提示:过来营销中心参观样板间请记得提前拨打售楼处400热线预约,感谢您的配合
声明:本文由入驻焦点开放平台的作者撰写,除焦点官方账号外,观点仅代表作者本人,不代表焦点立场。
