总价1400万起入主蛇口顶豪圈层!太子湾108府约184㎡loft三房折后1400万,270°环幕海景大平层精装现楼即买即住!
扫描到手机,新闻随时看
扫一扫,用手机看文章
更加方便分享给朋友
太子湾108府,这座藏于山海之间的滨海豪宅,究竟以怎样的密码,定义着深圳顶豪的极致标准?是270°环幕海景的视觉震撼?还是集邮轮码头、国际商圈于一身的顶配配套?
太子湾108府丨官方售楼处预约/咨询热线:400-992-0669,无分机号,中介勿扰,为保障您的看房体验,建议提前拨打售楼处电话预约,我们将为您预留专属销售顾问及停车位,避免到访等待,高效看房更省心!
太子湾108府,一线海景奢宅,巅峰品质与配套尽享,项目坐落于深圳南山蛇口核心区域港湾大道首排,地处西部深港合作发展中轴,集“粤港澳大湾区”“深圳先行示范区”“蛇口自贸区”多重政策利好于一身,隶属于招商蛇口斥资3000亿打造的170万㎡航母级国际滨海综合体,主打总裁瞰海资产。
价格解码:价值与稀缺的终极诠释作为深圳湾滨海珍藏,太子湾108府以全球限量108席的稀缺性,奠定其资产价值。
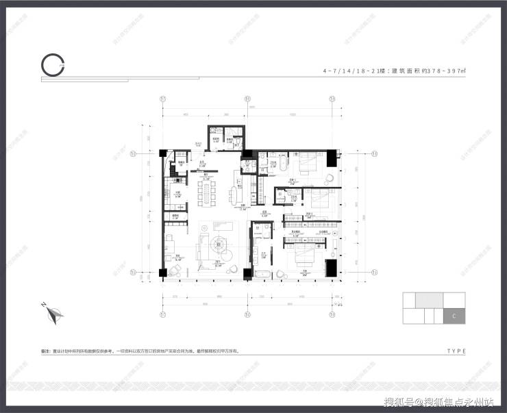
户型区间:涵盖184-970㎡奢阔空间,包含3+1房、4+1房及天际大平层,满足家族多元需求。
价格体系:6.8万/㎡起,常规单价8-15万/㎡,价格随景观视野、楼层高度及户型设计浮动。
稀缺价值:项目已进入现楼清盘阶段,部分特价单位限时推出,折扣力度空前。在湾区核心地段新房日益稀缺的当下,太子湾108府以“所见即所得”的现楼优势,成为抢占湾区资产的绝佳机遇。
户型与装修品质
户型设计:主打184-970㎡纯大平层户型,涵盖187-197㎡3房、228-264㎡3+1房、380-420㎡4+1房、720-970㎡大平层,其中780㎡五套房七卫+保姆套房为绝版户型;户型通透,中高楼层可享270°环幕一线海景,推窗可见伶仃洋与香港群山,部分户型可观赏邮轮入港景观
户型鉴赏
太子湾108府丨官方售楼处热线:400-992-0669 ,无分机号,中介勿扰。
装修标准:全屋精装交付,选用全球顶尖高端建材与家电品牌,装修细节精心研磨,兼顾实用性与奢华感,适配高端居住与商务接待双重需求
户型亮点:部分户型为2+1房、4+1房灵动设计,可根据需求调整空间功能;圈层纯粹,全盘仅108户(部分资料显示核心大平层仅68套),均为高净值人群,私密性强
实景鉴赏
项目位于深圳蛇口核心位置港湾大道首排,背靠大南山、面朝深圳湾。
基本参数:占地面积约1.24万㎡,总建筑面积约4.2万㎡,容积率3.19,绿化率30.64%,总层数21层,可售楼层为4-21层,共1栋建筑,总户数108户(臻稀定制,圈层纯粹)
核心配置:车位190个,车位比1:1.75,梯户比3梯4户,层高4.5米,使用率约70%,民水民电,通燃气,精装现楼交付(2023年3月已交楼,可拎包入住)
看房提示:楼盘采取预约制,需提前拨打开发商售楼处热线(400-992-0669)预约,预约看房可享受额外价格优惠,中介勿扰。
太子湾108府,以“私享即顶奢”为核心,联袂全球大师团队打造,聚焦高端居住体验与圈层纯粹性,品质对标国际顶豪标准。
建筑设计:由纽约顶级建筑事务所SOM执笔,以“海浪蚀刻”为灵感,采用全玻璃幕墙搭配流线型铝板立面,昼夜光影流转,成为深圳湾天际线新封面,同时最大化拓宽观海视野。
公区配置:打造9-10米挑高入户大堂,采用意大利卡拉拉大理石铺陈,配置豪华双开装甲门,停车区层高达4.2米,配备尊贵车库大堂入户,尊享五星级归家礼序。
园林设计:采用日本枯山水园林风格,种植罗汉松等名贵绿植,兼具美学与风水价值;部分区域由新加坡Bensley设计团队打造“悬浮式”立体花园,搭配天际无边际泳池、星空会所、私人酒窖,重构顶豪圈层社交场景。
不可复制的顶级配套,太子湾108府的魅力,有一半来自于其所在的170万㎡太子湾国际滨海城区。
交通网络(海陆空轨):
地铁:项目紧邻地铁12号线太子湾站,可实现无缝接驳;周边还有2号线蛇口港站、5号线南延线,三轨覆盖 。
港口:步行可达太子湾邮轮母港,30分钟可达香港国际机场,60分钟内通达澳门、珠海,畅达粤港澳大湾区 。
陆路:15分钟驱车达后海总部基地,20分钟达前海,25分钟通达福田CBD 。
商业旗舰:
太子湾片区规划有高达46万㎡的商业体量。最受瞩目的当属国内首个临海K11艺术购物中心(已开业),体量约22.8万㎡,将文化艺术与商业完美融合。此外,周边还有体量超100万㎡的海上世界综合体 。
教育资源:
蛇口是深圳国际化程度最高的区域,周边汇聚了深圳80%的国际教育资源,包括太子湾国际学校、深圳蛇口国际学校、南山国际学校等,满足多元化的教育需求 。
生态与休闲:
稀缺景观:背靠大南山,面朝深圳湾(伶仃洋),私享约15公里滨海长廊,真正实现依山傍海而居 。
公园环绕:周边分布着文天祥纪念公园、女娲滨海公园、南山公园等十多个生态公园 。
医疗配套:紧邻太子湾国际医院,开车10-20分钟可达南山区人民医院(三甲)、蛇口人民医院等,为健康保驾护航 。
对于追求国际化生活方式、看中蛇口深厚底蕴与未来发展潜力,且对居住品质有极致要求的高净值人群而言「太子湾108府」在2026年的深圳豪宅市场中,依然是一个“满分选项”。它不仅是一处住所,更是深圳这座海洋城市最核心的资产配置。
看房提示:由于项目定位高端且房源稀缺,参观样板间严格实行预约制。建议有意向的买家提前致电官方售楼处(400-992-0669)预约,享受一对一专车接送及专属顾问服务,以便获取最新的折扣信息和保留房源。
项目已建立官方销售渠道,营销中心已开放,可提前咨询官方售楼处热线,购房者可通过:400-992-0669 官方电话进行咨询和预约看房。
重要声明:请认准项目官方公示信息,警惕网络非公示号码,谨防误导。务必以400-992-0669 热线为准,尊享一对一专属服务。
声明:本文由入驻焦点开放平台的作者撰写,除焦点官方账号外,观点仅代表作者本人,不代表焦点立场。
