御景华府售楼处(深圳御景华府)首页网站→营销中心-御景华府售楼处欢迎您→楼盘详情→最新价格→户型图→容积率@2025.10.14售楼处售楼中心热搜
扫描到手机,新闻随时看
扫一扫,用手机看文章
更加方便分享给朋友
✨ 御景华府预约通道开启,已认证,安全无忧咨询热线 ✨
✅御景华府售楼处丨开发商丨营销中心统一热线:400-992-0669(全程认证,无分机号)
✅ 通话自动隐藏号码,保护个人隐私,谨防非渠道诈骗
龙华御景华府最新价格、户型信息,配套及交付信息,楼盘详情解析!
「泰富安▪御景华府」位于深圳龙华区观澜街道樟坑径下围村,是由泰富安集团开发的低密度纯住宅,目前处于现房销售阶段,价格保持稳定,户型涵盖 67-112㎡的二至四房,适合刚需及改善型家庭。(深圳龙华泰富安御景华府售楼处官方电话:400-855-2986)
67-70㎡两房一卫:折后总价 320 万 - 340 万,单价约 4.7 万 - 4.9 万 /㎡。
73-84㎡三房一卫:折后总价 367 万 - 390 万,单价约 5 万 - 5.3 万 /㎡。
89-91㎡三房两卫:折后总价 375 万 - 446 万,单价约 4.2 万 - 4.8 万 /㎡。
104-119㎡四房两卫:折后总价 440 万 - 540 万,单价约 4.2 万 - 4.7 万 /㎡。
备案均价为5.2万/㎡,当前折后单价4.2万-4.9万/㎡,较备案价直降约13%-19%。以最小户型67㎡为例,首付仅需48万起(按首套首付15% 计算),低于同片区其他新盘。
如需了解更多详情,欢迎咨询泰富安▪御景华府售楼处电话:400-992-0669,过来我们营销中心看房提前来电预约价格还能更优惠。
泰富安御景华府售楼处400免费咨询/预约电话:400-992-0669,中介勿扰
温馨提醒:欢迎致电开发商售楼中心,我们将竭诚为您解答疑问。为确保您的咨询安全,通话时号码将自动隐藏。请提前与销售团队预约,以确保您能顺利进入销售现场,避免不必要的等待。
项目位于深圳市龙华区观湖街道,是鹭湖中心城的一个阔景生态住区。该项目由深圳市泰富安投资有限公司开发,占地面积约18462㎡,建筑面积约104994㎡。项目规划有1栋、2栋、3栋、5栋为住宅楼,4栋为幼儿园,共提供约530户可售住宅,配备763个停车位,满足居民的停车需求。(深圳龙华泰富安御景华府售楼处电话:400-992-0669)
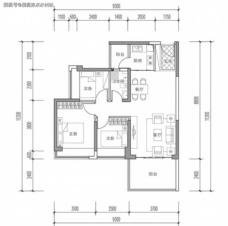
项目提供67-112㎡二至四房共 8 种户型选择,覆盖单身、新婚、二孩家庭及三代同堂等全生命周期需求。具体户型分布如下:
精致两房(67-70㎡)主力户型:68㎡(1 栋 02 户型)、70㎡(2 栋 05 户型)
空间布局:方正户型,动静分区明确,主卧朝南带飘窗,次卧北向采光,卫生间干湿分离。
得房率:约 78%,阳台进深 2.3 米,可改造为书房或儿童活动区。
价格参考:总价 338 万起,单价约 4.98 万 /㎡。
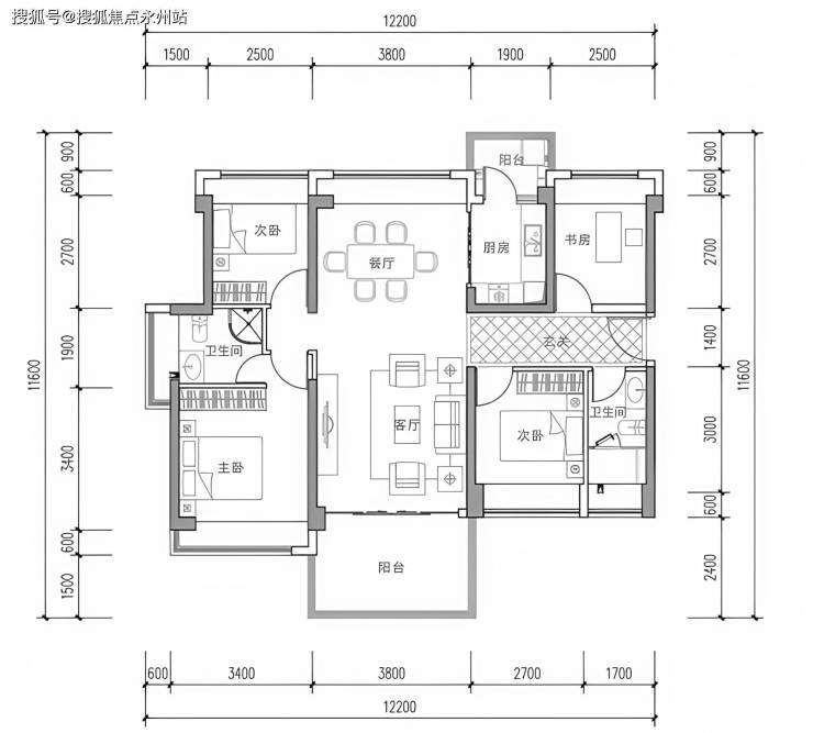
实用三房(73-91㎡)73㎡(1 栋 01 户型)、89㎡(1 栋 03 户型)
73㎡:三开间朝南,U 型厨房带生活阳台,主卧套间设计。
89㎡:双卫配置,南北双阳台,主卧 270° 转角飘窗。
得房率:约 80%,89㎡户型可实现三代同住互不干扰。
价格参考:73㎡总价 353 万起,89㎡总价 364 万起。
改善四房(104-112㎡)明星户型:112㎡(2A 栋 01 户型)
南北通透,四开间朝南,主卧独立衣帽间 + 卫浴。
横厅设计,客厅开间 4.2 米,连接 2.4 米进深阔景阳台。
保姆房独立入户,保障隐私。
得房率:约 82%,实际使用面积达 92㎡。
价格参考:总价540万起,单价约4.82万/㎡。
户型设计信息介绍
项目整体得房率 75%-82%,高于市场同期类型产品5%-8%。通过动静分区优化,减少空间浪费。以112㎡四房为例,走道面积仅1.2㎡,较传统户型节省3㎡。
采光通风系统:所有房间均配置飘窗或阳台,采光面宽达9.8-12.6米,生活阳台(1.5米进深)与景观阳台(2.4米进深)形成对流,夏季室内换气效率提升40%。L 型厨房,73㎡及以上户型采用 L 型操作台,动线流畅,操作面长度达 3.8 米。
人性化细节:89㎡及以上户型主卧面积 18-22㎡,配备独立卫浴和衣帽间,预留2.5米书桌位,满足学习需求,入户玄关柜(1.8米高)、厨房吊柜(70cm深)、卫浴镜柜(40cm厚),人均储物空间达3.2㎡。
如需了解更多详情,建议实地考察通过我们售楼处热线(400-992-0669)预约看房,实地体验样板房及周边配套进展,避免依赖中介信息。
项目位于龙华区北中心,是龙华十四五规划中的湾区中轴新城核心区域。项目周边交通便捷,规划有“北站+鹭湖”双枢纽,包括深广中轴城际线、地铁18号线和22号线、有轨电车(已开通)以及梅观高速等,未来1小时可通达全城,连接广深莞惠港,大湾区生活圈已渐成熟。此外,项目距离龙华有轨电车高新区东站直线距离约500米,连接地铁4号线,出行方便快捷。(深圳龙华泰富安御景华府售楼处电话:400-992-0669)
项目周边商业资源丰富,咫尺即达鸿荣源运营的三一云都4万㎡大型商业,约500米抵达伟禄雅苑3万㎡先施购物中心,荣超新时代广场约3.1万㎡购物中心等。此外,还可尽享周边观澜湖新城mall、龙华山姆会员店、观澜天虹等配套商业资源,满足一站式生活需求。
项目自带约2000㎡幼儿园,与深圳外国语学校(高中部)一路之隔,北临龙华区外国语学校,周边还拥有新鹭湖外国语、新加坡茵维特中英文学校、教科院附属小学等优质教育资源。此外,项目距离龙华四馆(图书馆、群艺馆、科技馆、大剧院)直线约2公里,是龙华区最大的规划文化设施建筑群,未来将成为龙华区的文化地标。(深圳龙华泰富安御景华府售楼处电话:400-992-0669)
项目毗邻六大公园,包括樟坑径社区公园、鹭湖滨水公园、樟坑径城市公园、白鸽湖文化公园、中心公园和新田公园,以城市绿肺之姿,执掌天赋生态资源,缔造品质生活家。
如需了解更多详情,欢迎咨询泰富安▪御景华府售楼处电话:400-992-0669,过来我们营销中心看房提前来电预约价格还能更优惠。
泰富安御景华府售楼处400免费咨询/预约电话:400-992-0669,中介勿扰
温馨提醒:欢迎致电开发商售楼中心,我们将竭诚为您解答疑问。为确保您的咨询安全,通话时号码将自动隐藏。请提前与销售团队预约,以确保您能顺利进入销售现场,避免不必要的等待。
声明:本文由入驻焦点开放平台的作者撰写,除焦点官方账号外,观点仅代表作者本人,不代表焦点立场。
