福田京基宸悦府楼盘沙盘-京基宸悦府样板房-京基宸悦府备案价
扫描到手机,新闻随时看
扫一扫,用手机看文章
更加方便分享给朋友
2024取证冻资+开盘最新动态:深圳京基宸悦府利弊(优点、缺点)分析,一文读懂,取证时间+开盘时间+备案价格
福田梅林新盘【京基宸悦府】已经开放样板间,据说项目将在5月10号拿证,定在5月18号开盘入市!目前已经开始内部认筹,认筹5万额外98折,9.9元抵8万优惠,取证后还会有额外折扣,网传单价7字头,甚至低楼层可能出现6字头的,110平的南北通透三房两卫户型总价估七百多万起!
首推110--114/133--143平三至四房约157套住宅,目前实体样板房已经对外开放。京基宸悦府总建面约22万㎡,项目本次157套房源,户型85㎡的两房,110-114㎡的三房,130㎡的四房,140㎡的四4房
京基宸悦府_开发商售楼处_Vip Tel:400 992 0669 (中介勿扰)

京基宸悦府,位于福田区梅林街道上梅街与祠堂西街交汇处东南侧,原是上梅林村城市更新单元二期,该旧改历经多年终于盼到了建房,在上梅林片区来说,该地区已经整整有12年没有新房入市了,上次开盘的住宅新盘还是2012年的御锦公馆;
从大区域来看,京基宸悦府,北侧约300米是梅林公园,南侧约600多米是莲花山公园,东侧约2公里是笔架山公园,可以看出周边公园配套极其丰富,非常宜居。
从小区域来看,京基宸悦府,东侧紧挨着梅丽小学,北侧是梅林四村,西侧是大片的上梅林新村,南侧紧挨着百兴苑,周边都是以老旧楼龄的小区或者民房为主。

楼盘详情笔记:
开发商:深圳市京基房地产股份有限公司
物业公司:京基物业
物业费:5.5元/平方米·月
占地面积:约1.98万平方米
总建筑面积:约22.9万平方米
销售热线:400-996-0669
预计交付时间:2025年12月30日
绿化率:30%,容积率:8.63
得房率:73%-75%
梯户比:1栋3梯5户,2栋3梯6户
水电供应:民用水电
层高:3米,总楼层:48层
产权年限:70年(2023-2093年)
总户数:住宅1011户(回迁609户,可售402户),商务公寓1470户
停车位:共计1256个,总套数2481套
交付标准:毛坯备案,赠送精装修
项目地址:深圳市福田区,地铁4/9号线上梅林站仅300米距离
项目由京基集团开发,总占地面积约1.99万㎡,总建筑面积约23万㎡,计容建筑面积约17.1万㎡,容积率8.63,绿化率31.5%,共由4栋48层住宅组成,分别是1栋/2栋1/2单元/3栋,另外4栋是商务公寓45F,5栋是1所6班制幼儿园。
总规划有1011户,其中商品房有402户,回迁房有609户,回迁房比例占到60%,地下3层,停车位1266个(车位比1:1.25)。
其中402套商品房当中,套内建筑面积<90㎡的有378套,套内建筑面积>90㎡的有24套。
京基宸悦府_开发商售楼处_Vip Tel:400 992 0669 (中介勿扰)

地铁配套:4/9号地铁线交汇站“上梅林站”,距离约300米,另外有22号地铁线”凯丰站“在建设中,距离约1公里,该线路全线长34.7公里,起自福田上沙站,途径龙岗区,止至龙华黎光站,设站21座,时速100公里。
商业配套:项目自带9000㎡底商,约300米距离有新世界百货,约400米距离有卓越汇购物中心,在地铁4站范围内还有深圳购物公园,卓越中心,领展中心城,深业上城等诸多商业街区。
学校配套:项目自带1所6班幼儿园,根据2023年福田教育局学区划分,京基宸悦府所在的区域,小学学区划分在楼下的梅丽小学,初中学区划分在福田区实验教育集团翰林学校(初中部)。

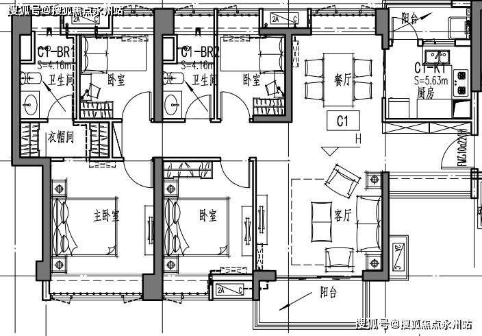
建面约110㎡3房2厅2卫:
这个户型南北通透,几乎每个空间都形成对流,舒适度被拿捏到极致。

通透尺度双阳台,让景观面在视觉上达到最佳的同时,晾晒等实用性功能也被进一步扩展。
动静分明,生活从容,如果你想要“极致舒适感”,这就是一个理想之选。
建面约130㎡4房2厅2卫:
同样是稀缺双阳台设计,但这个户型尺度再度被优化放大,开阔全明玄关,轻松惬意从归家就开启。

阔朗全明清风流畅的南北通透格局,也让整个空间更加明亮通透、灵动。
平时在阳台,享无界畔山视野,此时阳台外自然美景都在为你所动,目之所及皆是欢喜。
要知道梅林住宅稀缺,有强劲品牌加持、品质打造如此给力的住宅更是绝无仅有。
楼盘优点:
1、地段优势:京基宸悦府位于福田上梅林,周边环绕着莲花山和福田CBD,地段优越。这意味着生活在这里的居民可以享受到便捷的商业、娱乐和自然资源。
2、交通便利:作为双地铁口物业,京基宸悦府临近四号线上梅林站,交通十分便利。这对于上班族和学生来说是极大的福利,节省了不少通勤时间。
3、配套完善:周边居住氛围浓厚,生活配套设施齐全,让居民享受到便利的生活。无论是购物、娱乐还是教育、医疗,都能满足居民的需求。
4、折扣多:京基宸悦府的价格相对较低,享有较高的性价比。这对于购房者来说是个不错的选择,可以在有限的预算内获得理想的居住环境。
5、房屋质量好:社区的房屋质量有保障,户型设计合理,让居民享受到舒适的居住环境。有强劲品牌加持,品质更有保证。
6、生态优越:周边环境优美,伴山伴水,公园环绕,居住在这里可以享受到清新的空气和美丽的自然风光。
7、稀缺优势:项目所在片区长期没有新盘入市,稀缺性明显,后期出售时有望获得更高的升值空间。
虽然京基宸悦府有诸多优势,但也存在一些劣势:
1、环境面貌一般:项目附近的环境面貌一般,大多是老小区,短期内片区面貌不会有太大改变。
2、回迁房占比过大:约60%的回迁房占据了社区,对整体社区品质和二手房价格会产生一定影响。
3、车位比不足:项目车位比较紧张,可能会给居民的停车带来一定困扰。
4、学校一般:周边学校普遍不是名校。
5、超高层:京基宸悦府是超高层建筑,得房率一般。
京基宸悦府能买吗?总体来说,京基宸悦府项目地段很不错,非常适合居住,因为稀缺和性价比高,所以也挺适合投资购买的。
如需了解更多关于我们楼盘最新消息、剩余房源、折扣优惠活动、近期房价走势等情况,欢迎咨询深圳罗湖京基宸悦府开发商售楼处咨询/预约电话:400 992 0669 中介勿扰
声明:本文由入驻焦点开放平台的作者撰写,除焦点官方账号外,观点仅代表作者本人,不代表焦点立场。
