总章翡翠公馆售楼处电话→售楼中心首页网站→楼盘百科详情→24小时热线电话
扫描到手机,新闻随时看
扫一扫,用手机看文章
更加方便分享给朋友
「总章翡翠公馆」近期动态:已取证,首推307套80-100-115-140㎡3-4房,备案均价8.17万/㎡,开盘折扣93折,还送精装,折后单价6.85万/㎡,总价554万起上车80平3房,2025年底精装交楼!
项目占地约1.29万方,建面约8.18万方,容积率4.5,项目整体由5栋塔楼所组成,采用一字点式布局,户型设计户户朝南,最大化呈现河景观,同时也最大化保证每一户的采光时长和开阔的视野。以公建类设计手法,2T3 2T4阔绰的梯户比,对标豪宅打造
总章翡翠公馆_开发商售楼处_Vip Tel:400 992 0669 (中介勿扰)
(更多项目动态| 欢迎来电咨询 | 请提前预约登记看房 | 1:1销售专业讲解)置业顾问一对一对接,来电尊享受额外优惠
项目总建面约8.2㎡,主要由5栋百米超高层住宅塔楼及商业配套组成,其中2-4栋32层,1/5栋31层,1、2栋为回迁房。容积率约4.5,梯户比为2T3和2T4,使用率在78-80%左右(不含赠送,含的话能到85-90%)

总章翡翠公馆价格区间
80㎡2+1房1卫547-615万 单价6.75-7.59万
100㎡3+1房2卫716-803万 单价:7-8.1万
114-117㎡3+1房2卫791-918万单价:6.9-7.85万
140㎡4+1房2卫998-1145万 单价:7.12-8.18万
总章翡翠公馆_营销中心_Vip Tel:400 992 0669(中介勿扰)
80平2+1房1卫:最小面积户型,南朝向,传统的竖厅户型动静分区格局,餐客厅18.72㎡,客厅开间3.4米,整个动区的观感应该还蛮阔绰。其中的阳台和过道需要改造成房间;主卧大小为10平米,空间算比较大,两个次卧比较平均,没有特别小的卧室,不足的地方是只有一个卫生间,客厅没有设计S墙,冰箱真不好放。厨房只有3.68平米左右,操作空间有点小整体使用率在78%左右,是南山门槛较低的上车户型。
100平3+1房2卫:阳台一样可以改成次卧,做到4房,双阳台设计,南朝向,使用率也在78-79%左右,4房2卫,传统的竖厅户型,动静分区格局,传说中的‘双龙抱珠’户型,双阳台设计;这种户型设计很合理,卧室在客厅的两边,卫生间的布局也很科学,减少了过道,空间利用率特别高。主卧不包括卫生间大小为11.5平米,比较适中,不过朝东的卧室只有4平米左右,做成卧室稍小,比较适合做成书房或者储藏室;这个户型的厨房利用空间大很多,还带有一个生活阳台。
115平3+1房2卫:这个面积段是套数最多的,有四条腿、有两个户型。3栋两条腿对称,一个东南、一个西南朝向;4栋两条腿都是南北通透。这两个户型设计和布局都还不错,
想要做4房,这两种户型都需要简单的改造,其中3栋的01/02户型,主卧的衣帽间和主卧的阳台可以改成房间;4栋的01/02户型,储藏室和阳台可以改成一个房间。两种户型客厅右手边的卧室不需要的时候都可以打通,改成宽敞明亮的大客厅。
总的来说,这两个户型都没有明显的缺点,设计和布局都还不错,特别是这种通透的户型,在深圳很受欢迎的,深圳是一个夏长冬短的城市。
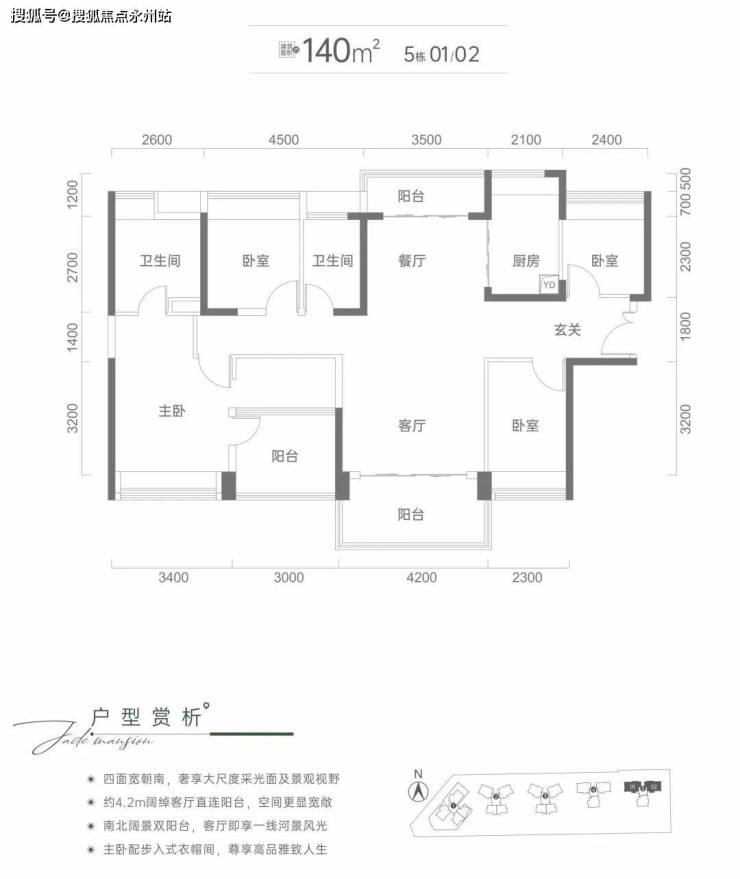
140㎡4+1房2卫:南山少有的5房户型,双阳台设计;不过厨房只有5平米,相对有点小。该户型是「总章翡翠公馆」的最大面积户型,实际上可以做到五房二卫。这种户型同样需要改造,主卧的储藏室和主卧的阳台打通后就是一个标准的房间,南山区很少有140㎡面积段做得出五房双阳台的设计,实际使用率也接近80%,户型非常舒服。
总章翡翠公馆配套信息解析
交通:项目最近地铁为5/7号线的西丽站,步行距离为800米左右,地图显示步行所需时间约14分钟左右,此外,项目临近留仙大道、沙河西路,自驾出行还是相对便捷的。
教育:项目自带一所幼儿园,周边学校有南二外平山小学,西丽小学、南山文理实验学校,但整体教育质量相对一般。
商业:项目周边多为创业园,生活配套相对较少,后期只能依赖项目自带底商,大一点商业配套,需要步行前往一公里左右的天虹商场、益田假日里购物中心。
文娱:项目周边配套众多,有塘朗山、大沙河生态长廊、九祥岭湿地公园、体育中心,可以满足日常休闲娱乐需求
总章翡翠公馆价值介绍
总章翡翠公馆位于大沙河东侧,珠光北路和留仙大道交汇处的南侧。
其地块西面紧邻珠光北路,东面触及塘朗山山麓,南面为规划中的城市道路。
根据百度地图路径测距约800米可达地铁西丽站,当前为地铁5号线和7号线的双线换乘站;同时,可通过项目就近的沙河西路、留仙大道便捷连接周边板块,整体交通配套已较为成熟、稳定。
西丽,地处大沙河创新走廊上游,以“三轴、三心、多组团”重大规划,打造南山区北部重要的生产生活服务中心。项目占据西丽芯,聚合四大发展引擎,实现人居更高未来价值。
大沙河创新走廊——虹吸全市2/3高端研发人才,约40%高新技术企业。
西丽湖国际科教城——创新驱动,构建“一心、两轴、三区、六大创新组团”的功能布局结构。汇聚深圳大学、南方科技大学、清华大学深圳研究生院、北京大学深圳研究生院、哈工大深圳研究生院等7所高校,超1100家的国家高新技术企业。
留仙洞总部基地——深圳七大总部之一,集聚大疆创新、乐普医疗、传音、优必选等世界名企;未来将形成超3000亿元产业集群。
西丽综合交通枢纽(规划中) ——汇集4高铁(赣深客专、深茂铁路、深汕高铁、深珠高铁)、2城际(深惠、深莞增城际铁路)、4地铁【地铁13号线(在建中)、15/27/29号线(规划中)】的湾区枢纽。
如需了解更多本项目信息,请拨打售楼处电话,现场销售会为您详细介绍楼盘。
总章翡翠公馆_开发商售楼处_Vip Tel:400 992 0669 (中介勿扰)
(更多项目动态| 欢迎来电咨询 | 请提前预约登记看房 | 1:1销售专业讲解)置业顾问一对一对接,来电尊享受额外优惠
声明:本文由入驻焦点开放平台的作者撰写,除焦点官方账号外,观点仅代表作者本人,不代表焦点立场。
