龙华鸿荣源壹成中心·十区开发商售楼处电话:
扫描到手机,新闻随时看
扫一扫,用手机看文章
更加方便分享给朋友
➢ ➢龙华鸿荣源壹成中心·十区开发商售楼处电话:400-992-0669 中介勿扰
➢ ➢深圳龙华【鸿荣源壹成中心】—「售楼处」—「欢迎您!」
➢ ➢来电可了解楼盘最新动态、房价、在售房源、交楼时间等信息!让你买的放心,住的舒心!

龙华壹成中心,项目规划总占地约41万平米,总建面达320万平米,是深圳北部片区建设规模最大的住宅社区之一!

我们这个项目分为11个区域建设
鸿荣源·壹城中心10区,是整个大工程的最后一个项目

壹城中心备案名叫做 壹城时尚花园
壹城时尚花园是该项目第9个开盘的住宅小区
在此之前的8期住宅都是瓷砖的外立面,终于在最后一期,换上了最流行、最时尚的铝板外立面;而且还带装修(之前的都不带装修)

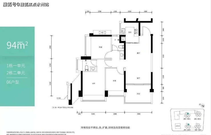
不仅如此,本项目也是户型面积最小的一区,全部在100㎡以内

鸿荣源壹城中心户型分布平面图
户型图欣赏以及房价说明

该户型西南向
单价区间:69860.52-73560.52元/㎡
总价区间:588-625万

该户型正南向
单价区间:71650.51-76700.52元/㎡
总价区间:663-712万

该户型正南向
单价区间:69710.51-73100.52元/㎡
总价区间:652-679万

该户型西北向
单价区间:65320.51-71600.51元/㎡
总价区间:547-603万

该户型正南向
单价区间:70960.51-76000.52元/㎡
总价区间:656-705万

该户型东北向
单价区间:67160.51-70760.52元/㎡
总价区间:628-678万

关于学校:
有孩子需要上学的话,这里非常方便,东边的幼儿园和小学已经建好。

南边的初中和另外一所幼儿园正在施工!

龙华实验学校附属幼儿园

龙华实验学校小学部
龙华创新实验学校初中部效果图

该初中投资约2.3亿元
建设24班
提供1200个初中学位

深圳龙华-龙华人民路-工业路-梅龙路-东环一路-建设路围合而成—鸿荣源壹城中心
【鸿荣源壹城中心开发商售楼处电话:400-992-0669(中介请勿扰)】
来电可了解楼盘最新动态、房价、在售房源、交楼时间等信息!
温馨提示:看房请务必提前预约,避免临时无人接待,感谢您的配合!
温馨提醒:常识性知识普及,为了客户方便拨打楼盘电话,开发商通常都会采用直通热线,因此售楼处电话不会专门设置所谓的“分机号”,看过一些楼盘宣传海报或去过楼盘现场的朋友都应该明白这一点,所以请您在拨打电话之前认真识别,注意保护个人隐私!谨防上当!
免责声明🔉:
1、本宣传资料仅作为客户邀约邀请,不作为要约或者承诺,对本楼盘配套、交通、学校(建设)规划或者产品介绍,旨在提供相关信息,不意味着本公司对此作出承诺,相关内容不排除因政府相关规划、规定及开发商未能控制原因而发生变化,最终以政府相关部门审批文件为准。
2、户型图与样板间实拍图所示平面仅供参考,具体因楼栋、楼层的差别,局部结构、面积等存在不同,不构成要约内容。户型图与样板间内部实拍图所示家具和电器配置仅供参考,不作为交付标准,最终以买卖合同为准。
3、双方权利义务以双方签订的相关合同为准。
4、相关公共配套设施及规划条件以政府审批的文件为准
声明:本文由入驻焦点开放平台的作者撰写,除焦点官方账号外,观点仅代表作者本人,不代表焦点立场。
