深圳龙岗(融湖盛景花园)楼盘详情-融湖盛景花园房价-户型-容积率-小区环境
扫描到手机,新闻随时看
扫一扫,用手机看文章
更加方便分享给朋友
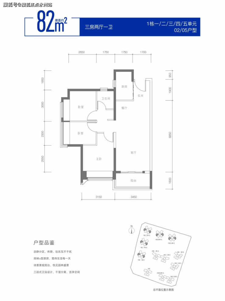
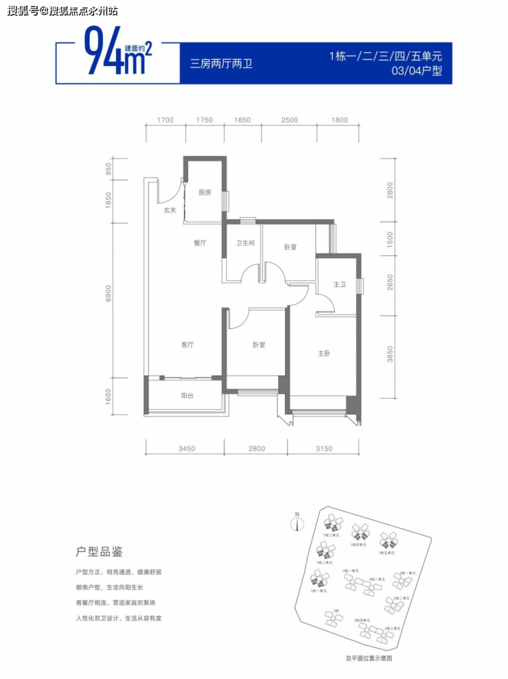
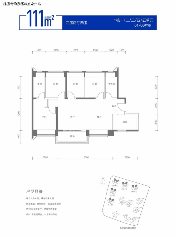
龙岗-平湖,融湖中心城五期(备案名:融湖盛景花园)是融湖中心城的住宅收官之作!项目首推1栋1-5单元,目共规划有1801套住宅,首批推约900套住宅房源,面积82㎡的3房1卫,94㎡的3房2卫,111㎡的4房2卫三个户型,价格折后约4.2万左右,均价约340万左右上车三房。
融湖盛景花园开发商售楼处电话:400-992-0669(中介勿扰)
预约看房,现场销售置业顾问一对一对接,享受额外优惠!
温馨提示:本项目看房需提前来电预约,感谢您的配合!
融湖盛景花园位于阳光路与辅岐路交汇处,项目总占地面积约23万㎡,总建面约100万㎡,项目分为五期开发。开发整个项目的运作已经有10余年的时间,一期的融湖世纪花园和二期的融湖时代花园前几年已入市,本次推出的融湖盛景为5期地块,三期已于2020年6月12日交楼,四期(规划4万平集中商业体)还处于建设阶段,五期收官之作住宅开发中,本次将推出五期共1801套房源,首推约900套左右。
地理位置:平湖街道辅岐路与辅城坳阳光路交叉口东北侧

融湖盛景花园项目位于龙岗区平湖街道辅岐路与辅城坳阳光路交叉口东北侧,距离地铁10号线禾花站约660米。融湖盛景花园东侧是三期融湖居,北侧是一期融湖中心城,西北侧在建保障房项目。
【项目名称】融湖盛景花园(融湖中心城五期)
【开发商】深圳市鼎宏投资发展有限公司
【物业公司】岗宏城拓物业管理有限公司
【项目地址】位于平吉大道与平龙路交汇处
【占地面积】约5万㎡
【建筑面积】约27万㎡
【容积率】3.96
【推售产品】82㎡-94㎡-111㎡3房-4房
【总户数】1805
【车位比】1:0.88
首先来看看融湖盛景花园的户型图,本期共有三个户型,82㎡3房、94㎡3房2卫、111㎡4房2卫。延续融湖中心城一贯的风格,户型主要以刚改户型为主。




交通:

项目附近有建设中的10号线地铁“禾花站”,从项目步行至地铁站的距离约500米(根据百度地图测距),属于地铁口物业,轨道交通出行非常便捷。另外,10号线“平湖站”距离也较近,步行可达,平湖汽车站、火车站都集聚于此,是平湖的交通枢纽中心。

项目旁边就是平吉大道,这条路是平湖产业升级的龙头典范,也就是平湖的第大道,上每条高速都是非常方便的。走清平可以20分钟到罗湖、25分钟到福田;清平转北环/南坪,35分钟到南山;平吉大道上沈海高速/机荷高速,25分钟到龙
商业:

目前融湖中心城一期底层临街商铺可满足日常生活休闲所需,三期融湖居底层商业目前也逐渐发展起来。未来四期将建成集中商业,将极大的的改善项目和周边的商业环境。目前4期已经封顶,预计2023年可投入使用,五期也规划有1.17万㎡临街底商。据悉,四期及五期的商业均为开发商自持。
项目周边商业配套高度聚合,不仅有华南城、煕璟城、海源城等商圈环绕,更有中国首个24小时商业中心万达广场入驻平湖;
教育:

项目紧邻九年一贯制公立信德学校,作为片区优质学府。信德学校以“立信立德,好学尚美”的办学理念和优质教育高效管理的教学模式著称是龙岗区影响力卓著的先进学校。

目前学位略紧张。目前信德学校扩建工程相关告示已经公示,未来学位紧张的局面或能得到缓解。
融湖盛景花园开发商售楼处电话:400-992-0669(中介勿扰)
过来营销中心看房,记得提前来电预约,感谢你的配合!
提前预约享受楼盘内场优惠折扣,并安排现场销售一对一服务!
来电可了解楼盘最新动态、房价、在售房源、交楼时间等信息!
免责声明🔉:以上所发布的楼盘相关信息仅供参考,所有图文资料及说明请以最终批文及双方在楼盘现场签署的买卖合同为准;本图文内容如无意中侵犯某方权益,请联系我们将会及时处理。
声明:本文由入驻焦点开放平台的作者撰写,除焦点官方账号外,观点仅代表作者本人,不代表焦点立场。
