深圳满京华金硕华府花园,为实现高赠送、宽视野实际使用率高达97%
扫描到手机,新闻随时看
扫一扫,用手机看文章
更加方便分享给朋友
满京华金硕华府售楼处位于光明中心光辉大道与狮山三街交汇,距离6号线光明站直线距离约850米作(百度地图测距),
满京华金硕华府_营销中心_Vip Tel:400 992 0669(中介勿扰)
项目是位于光明中心区,原狮山利益统筹项目,由七个地块组成的大型城市更新,地理位置极其优越,未来光明中心区无出其右的大社区楼盘,楼盘周边多所学校环绕,包括南科大附属,光明实验小学部,深圳小学,更有多块教育用地储备,同时项目部分地块还可享受科学公园一线景观资源,地理位置不过多阐述,大多关注光明新房的朋友都不陌生。周边有地铁6号线,6号支线光明站,29号线科学公园南站都可以在500-800m范围内。

深圳光明中心区满京华狮山项目取名为——金硕华府,首推1100套建面约88-138㎡
光明满京华金硕华府开发商售楼处咨询电话/预约热线:400-992-0669(中介勿扰)
(更多项目动态| 欢迎来电咨询 | 请提前预约登记看房 | 1:1销售专业讲解)置业顾问一对一对接,来电尊享受额外优惠
满京华项目沿光辉大道从西到东设计范围涵盖10块用地,总用地面积约109398㎡。其中项目用地7块,返还用地1块,公共绿化用地2块。
整个工程进度最快的为05-05地块「楼村商业大厦」和05-10地块「金硕华府」。
其中05-10地块占地约22842㎡,计容建面约137050㎡,住宅121894㎡,商业6416㎡,菜市场1000㎡,幼儿园4200㎡,社区管理用房300㎡,便民服务站500㎡,警务室50㎡,社康中心2000㎡。
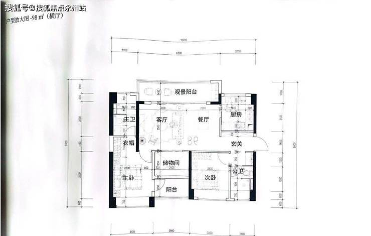
首推1144套建面约88-138㎡ 3-4房,其中建面约88㎡ 3房1卫 132套,建面约98㎡ 3房2卫 572套,建面约103㎡ 3房2卫 132套,建面约118㎡ 4房2卫 132套,建面约138㎡ 4房2卫 176套。

项目分为两个单元,为3梯4户,户型为89㎡镜面户型各1户,118㎡、135㎡各1户;3梯6户,其中88㎡3户,98㎡竖厅1户,98㎡横厅两户
3梯6户,户型为88㎡1户,98㎡横厅1户、竖厅3户,118㎡1户;
满京华金硕华府临近有6号线光明站/光明大街站,附近还有建设中的地铁13号线、规划中的18号线、29号线,届时可直达南山科技园、深超总、西丽等高价值片区地。发达的轨道交通,将形成对人才、资金的虹吸效应。
项目周边有光明大道、科学大道、光辉大道等城区大道,龙大高速、南光高速直通福田、南山核心区。乘坐6号线还可达光明城高铁站(广深港高铁),轻松畅享大湾区生活圈。

项目所在片区教育配套密度高,周边3所幼儿园(规划中)、6所小学、4所中学、5所九年一贯制学校(规划中)环绕,轻松实现15年目送式教育。 (具体入学政策以教育局当年公示为准)
项目自带超3.19万㎡商业,下楼就能逛街。1公里左右约30万㎡旗舰级商业环伺,如星河COCO CITY、万达广场、蓝鲸世界等大型商圈,日常生活、娱乐休闲、吃喝玩乐等需求尽可满足。
满京华金硕华府精准抉址绝佳地段,近享光明国家级重点配套——科学公园首排 ,步行即可抵达,生态资源无可比拟。
不仅如此,还有5大公园环绕,坐享光明优异的自然资源。稀缺的公园生态资源,居住优势愈发明显,也将给房产带来更高的附加值。
纵观深圳的高品质住宅,无一不是既位于城市核心地段,拥有丰富的交通、商业、人文配套,同时还享有稀缺的生态资源。

满京华金硕华府作为光明中心区标杆品质大盘首发产品,科学公园头排物业,学校、市政等配套都是整个光明的顶级配套,产品力强,高性价比,项目街区作为科学环廊示范段,以线性绿地有机串联,打造城市形象展示窗口、生活主场和艺术街区,同时布局多个idea空间,独具特色又有温度。
园林打造也颇具匠心,借鉴了新加坡园林,做到出则繁华,入则宁静,内部打造了儿童游乐场、游池、社区会客厅等,满足全龄、健康等生活多样趣味空间需求,双入户大堂设计,从进门那一刻起,就让人体验到尊贵与仪式感。
对于首次置业的购房者来说,这是上车深圳的好机会,入住高品质大社区,实现一步到位。
凭借着中心区位+光明科学城+科学公园+配套优势等多重价值加持,满京华金硕华府很大概率将成为光明中心区未来的置业风向标。
满京华在光明重点打造的优质大盘,项目一期满京华金硕华府预计推售建面约88-141㎡3-4房,产品看点十足,非常值得期待!
温馨提示:看房请提前来电预约,感谢配合!预约来访成功,即享现场当天优惠折扣,可预约现场指定销售专员(中介勿扰)
满京华金硕华府开发商售楼处咨询/预约热线:400-992-0669(中介勿扰)
(更多项目动态| 欢迎来电咨询 | 请提前预约登记看房 | 1:1销售专业讲解)置业顾问一对一对接,来电尊享受额外优惠
注:本广告/宣传资料所涉及对项目周边环境、交通、商业、学校、规划设计及其他公共设施等介绍旨在提供相关信息,不构成开发企业的任何要约和承诺,买卖双方的权利义务以政府的最终批准文件及买卖合同所载内容及实际交付为准
声明:本文由入驻焦点开放平台的作者撰写,除焦点官方账号外,观点仅代表作者本人,不代表焦点立场。
