玺玥麓坊售楼处-深圳宏发玺玥麓坊网站【楼盘详情】玺玥麓坊房价详请
扫描到手机,新闻随时看
扫一扫,用手机看文章
更加方便分享给朋友
玺玥华府位于宝安区创业二路与新安三路交汇处,是深圳前海湾芯地标综合体:集高端住宅、商务公寓、甲级办公、集中商业、保障房及多类型配套为一体的区域标志性项目。

项目基本信息:
宏发地产开发:注册名(玺玥麓坊)
产权年限:40年
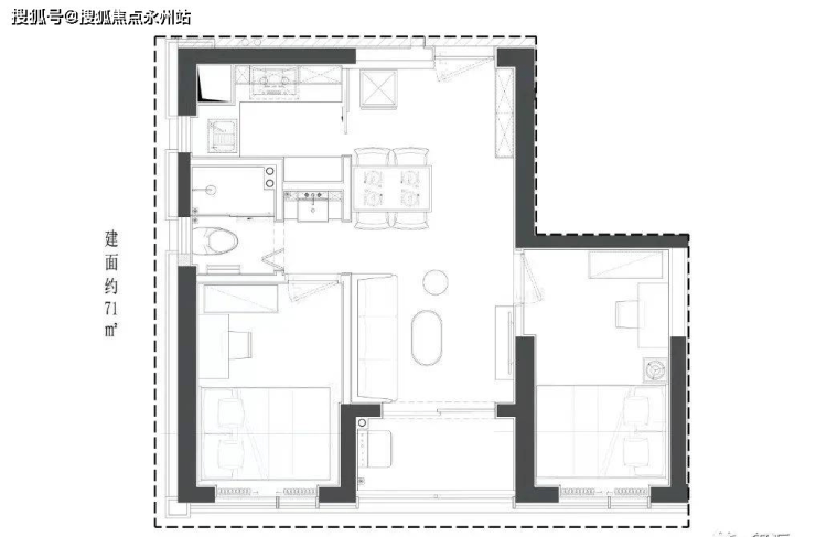
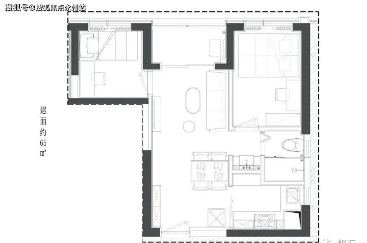
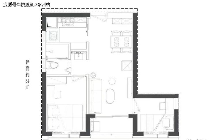
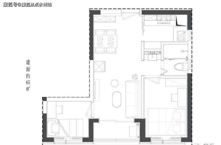
商务公寓户型:44平米、53-56平米、63-65平米、71平米1-2房
总套数:529套
梯户比:6梯13户、高46层
批地时间:2018年12月21日
交楼标准:毛坯交付
交楼时间:2024年3月30日
户户有阳台,户户通天然气
宏发物业有限公司:7.8/平米
售楼处电话:400-992-0669
地铁口物业:5号线洪浪北D出口

【世界前海核“芯”版图,擎领湾区增长极】
大湾区国际门户枢纽地位,大前海总体发展规划,共推区域统筹、功能统筹、陆海统筹、岸线统筹,共建全球先进城区,宝安中心区成为国际化城市新中心,宝安都“芯”强势崛起,全面接轨前海标准。

【城“芯”所在稀贵之地,新安都市核心区】
项目位于西部黄金中轴发展线上——新安,与前海共同打造湾区商业中心,沿创业一路、二路,打造创业路“宝安中央商务带”。
前海+宝安中心区双中芯辐射,城市核芯资源尽皆于此,再启生活新想象。
【人贵于邻 居奢于圈】
玺玥华府在旁,千万级大社区共享,形成互联互通的全龄活动空间。
高净值人群聚集地(中洲、华联、大悦城、勤诚达等),共鸣圈层向往。
高新科技产业及总部汇聚于新安,与众多高科技巨头为邻(如腾讯、vivo、亚太卫星、欣旺达、顺丰等集团),与万亿级市值大铲湾相近,时代菁英比邻而居。
【执掌城芯主轴,多维交通畅达各区】
项目紧邻地铁5号线洪浪北站、主干道—宝安黄金发展中轴创业二路,近107国道,与深圳宝安国际机场直线距离约11公里,链接万象都会生活。
人文配套:国家级市政配套群,纵享人文艺术高地
【多元醇熟配套,纵享人文艺术高地】
生态资源:灵芝公园、新安公园、洪浪公园、宝安公园和尖岗山公园等生态绿境;
休闲配套资源:纵享宝中的休闲配套,如海滨广场、宝安体育馆、宝安图书馆、宝安青少年宫、欢乐港湾等地方休闲娱乐;
商业资源:中洲πmall、勤诚达K+广场、海雅缤纷城等大型购物中心环伺;
医疗资源:距离深圳宝安中医院(三甲医院)约1公里,距离深圳市宝安人民医院(三甲医院)约1.5公里,距离宝安妇幼保健院约3.5公里,医疗资源丰富;
教育资源: 宝安中学、孝德学校、灵芝小学、12班幼儿园等教育资源围绕。

【麓生活·尊崇服务体系,考究精致维度】
宏发物业——国家一级资质物业服务企业
针对玺玥麓坊业主量身打造——麓生活·尊崇服务体系
优享5感日常服务(尊重感、愉悦感、优享感、舒适感、安全感)
10重尊享增值服务+12大星级定制化服务,礼遇峯层的生活和文化格调

【登峰作品,献给人生玺玥时】
【湾区时代著作,立序城市封面】
【双入户大堂,至臻归家礼遇】
【出入尊崇有序,品味从容生活】
【全龄化社区,幸福生活主场】
【建面约44-71㎡登峰作品,致敬时代峯层】






深圳玺玥麓坊开发商售楼处电话:400-992-0669(中介勿扰)
过来本项目营销中心看房,记得提前来电预约,感谢你的配合!
提前预约享受楼盘内场优惠折扣,并安排现场销售一对一服务!
来电可了解楼盘最新动态、房价、在售房源、交楼时间等信息!
免责声明🔉:以上所发布的楼盘相关信息仅供参考,所有图文资料及说明请以最终批文及双方在楼盘现场签署的买卖合同为准;本图文内容如无意中侵犯某方权益,请联系我们将会及时处理。
声明:本文由入驻焦点开放平台的作者撰写,除焦点官方账号外,观点仅代表作者本人,不代表焦点立场。
