花样年好时光-深圳坪山花样年好时光楼盘详情|花样年好时光房价-户型-学区
扫描到手机,新闻随时看
扫一扫,用手机看文章
更加方便分享给朋友
花样年好时光售楼处电话:400-992-0669【售楼热线】✅
花样年好时光售楼中心电话:400-992-0669【营销热线】✅
花样年好时光营销中心电话:400-992-0669【24小时电话】✅
温馨提示:因本楼盘现场参观样板间采用预约制,过来之前请记得拨打售楼处电话:400-992-0669 进行预约,谢谢配合!
为给您更好的看房体验请提前来电预约(给您预留现场销售和停车位)
注意:本项目不收任何费用,售楼中心〢欢迎来电咨询〢安全通话隐藏真实号码
花样年好时光,是坪山老城区域为数不多在售的新盘,且是现房即买即住,一路之隔就是坪山最有名的益田假日广场,周边居住氛围浓厚,商业配套完善,14/16号双地铁线交汇。
项目于2021年10月27日取证入市,推出1栋A/B/C/D/E/F座,共777套房源,面积有70㎡的2房2厅1卫,80㎡的3房2厅1卫,95-100-110㎡的3房2厅2卫,118㎡的4房2厅2卫户型,备案均价4.21万/㎡,备案单价3.7-4.54万/㎡,总价303-539万/套,现房精装交付。(深圳坪山花样年好时光售楼处电话:400-992-0669)
项目从21年开盘至今03+04地块住宅加在一起1289套房源,已经销控超850套房源,整体去化率达到了66%,还有约400多套房源在售,项目在近期也做了价格调整,整体折后均价约2.73万/㎡,折后单价2.5-2.97万/㎡,总价在191-335万/套,现房精装即买即住!
70㎡的2房2厅1卫,折后总价191-195万,单价2.72-2.78万/㎡。
80㎡的3房2厅1卫,折后总价221-226万,单价2.76-2.82万/㎡。
96-110㎡的3房2厅2卫,折后总价250-286万,单价2.5-2.97万/㎡。
121㎡的4房2厅2卫,折后总价325-335万,单价2.68-2.76万/㎡。
更多详情,欢迎咨询花样年好时光售楼处电话400-992-0669,过来我们营销中心看房提前来电预约价格还能更优惠。
花样年好时光售楼处400免费咨询/预约电话:400-992-0669,中介勿扰
温馨提示:过来营销中心参观样板间请记得提前拨打售楼处400热线预约,感谢您的配合!
项目由花样年集团打造,总占地面积约3.87万㎡,总建筑面积约33.44万㎡,计容建筑面积约23.95万㎡,容积率约6.18,绿化率约40%,分03/04两个地块开发,有连廊相连,共9栋住宅。
目前在售的是03地块,总占地面积约2.25万㎡,总建筑面积约18.61万㎡,计容建筑面积约13.31万㎡,容积率5.49,绿化率40%,共由6栋43-46层高的住宅组成,其中1栋A/B/E座住宅44F,1栋C座住宅46F,1栋D/F座住宅43F,2栋规划1所九班制幼儿园。
04地块,总占地面积约1.61万㎡,总建筑面积约14.81万㎡,计容建筑面积约10.64万㎡,容积率6.32,绿化率30%,共由3栋43层高的住宅组成,其中1栋A/B/C座住宅43F,1栋D座写字楼21F。
总规划1696户,其中商品房1289户,回迁房407户,1栋B座3梯4户,其它全部3梯5户设计,规划停车位2321个,其中可供业主使用车位1770个,车位占比约1:1.4。
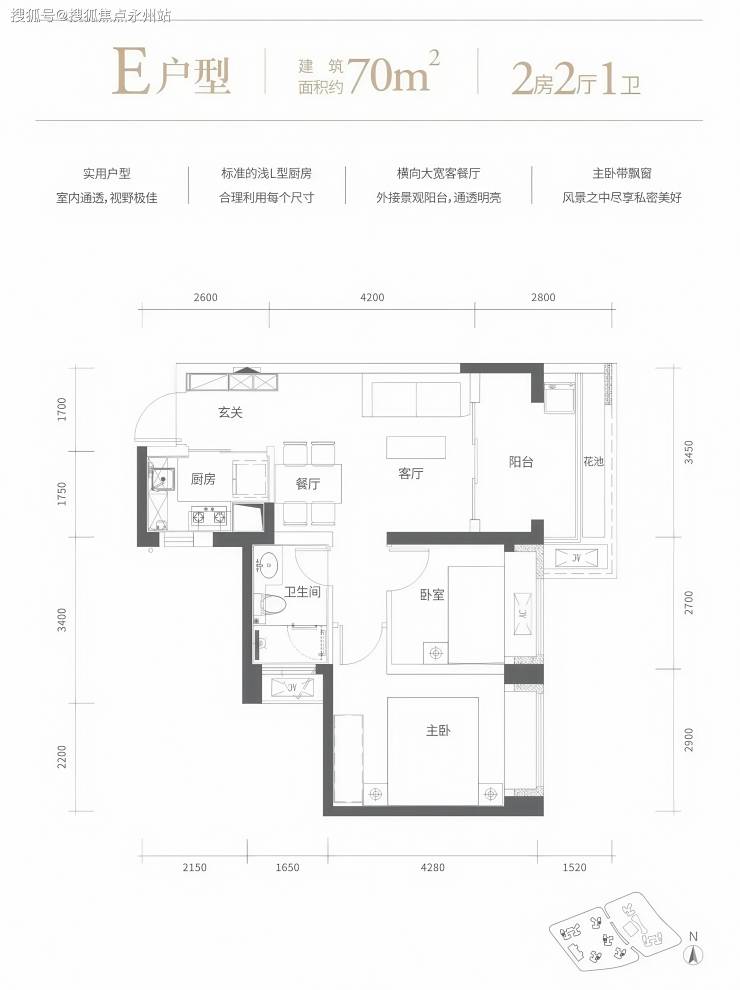
70㎡的2房2厅1卫,设计的是竖厅格局,客厅3.45米开间,进门玄关,LDKB一体化设计,2个卧室分别做到了主卧13.2㎡/次卧8.64㎡(包含墙体飘窗),L型厨房,卫生间干湿分离,得房率72.47%(不含赠送),有朝东向或西向。
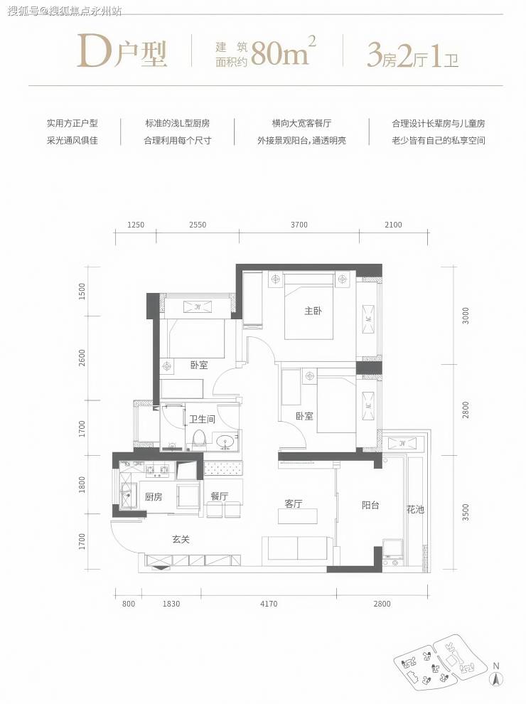
80㎡的3房2厅1卫,设计的是经典竖厅格局,客厅3.5米开间,进门玄关,LDKB一体化设计,动静分区,3个卧室分别做到了主卧12.9㎡/次卧8.96㎡/次卧8.16㎡(包含墙体飘窗),L型厨房,卫生间干湿分离,得房率72.48%(不含赠送),有朝东向或西向。
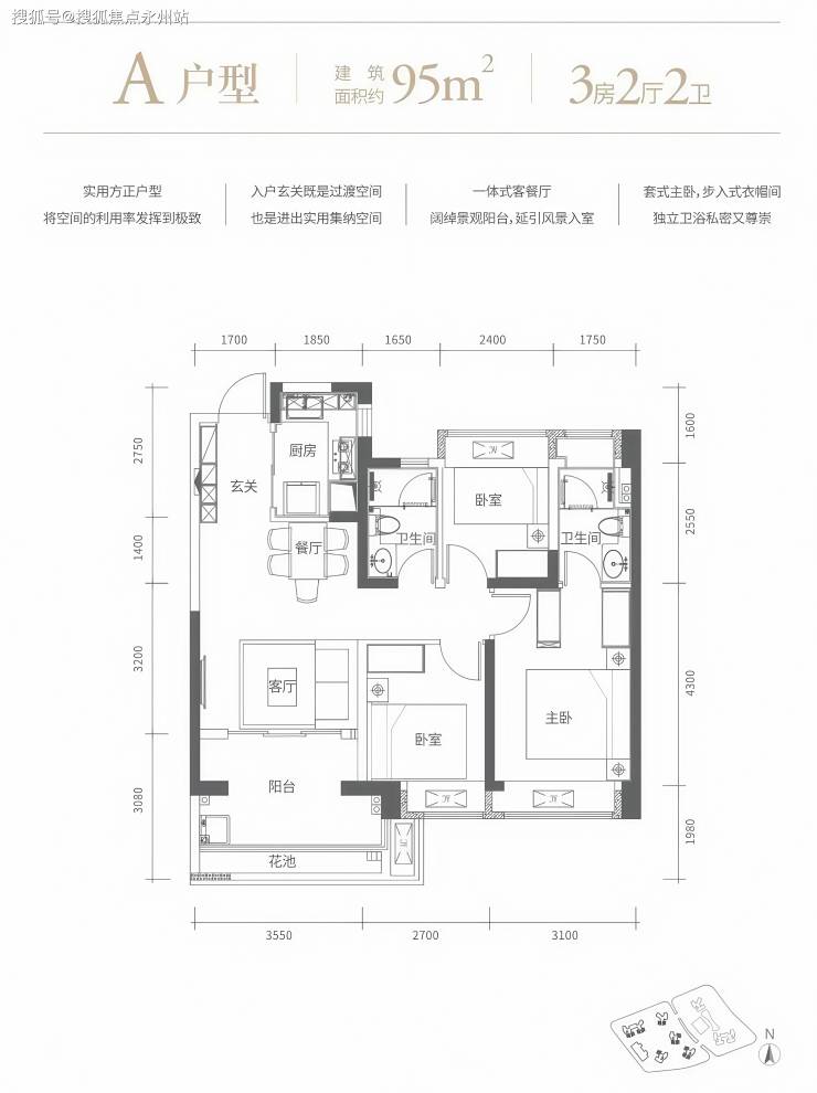
95㎡的3房2厅2卫,设计的是经典竖厅格局,客厅3.55米开间,进门玄关,LDKB一体化设计,动静分区,三开间朝南,3个卧室分别做到了主卧15.19㎡/次卧8.64㎡/次卧7.56㎡(包含墙体飘窗),L型厨房,卫生间干湿分离,得房率72.48%(不含赠送),有东南、西南或正南朝向。
100㎡的3房2厅2卫,A1户型,设计的是竖厅格局,客厅3.55米开间,进门玄关,LDKB一体化设计,动静分区,3个卧室分别做到了主卧15.19㎡/次卧8.64㎡/次卧7.93㎡(包含墙体飘窗),L型厨房,卫生间干湿分离,得房率72.63%(不含赠送),阳台主朝西北向。
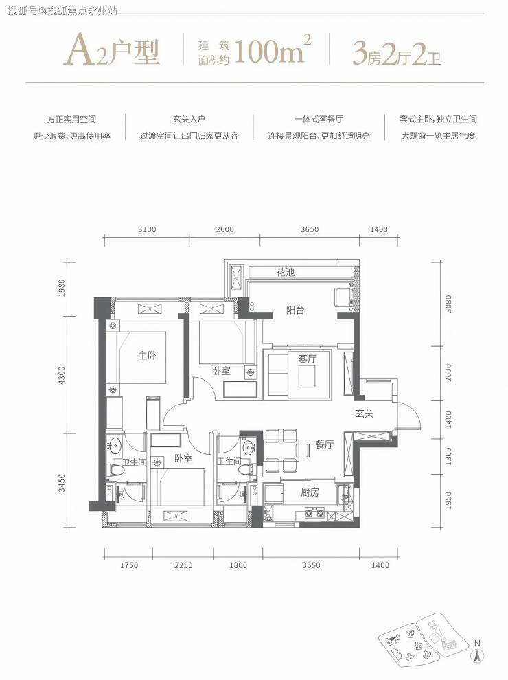
100㎡的3房2厅2卫,A2户型,设计的是竖厅格局,客厅3.65米开间,进门玄关,LDKB一体化设计,动静分区,3个卧室分别做到了主卧15.19㎡/次卧8.32㎡/次卧7.76㎡(包含墙体飘窗),L型厨房,卫生间干湿分离,得房率72.63%(不含赠送),阳台主朝东北向。
110㎡的3房2厅2卫,A2户型,设计的是经典竖厅格局,客厅3.8米开间,进门玄关,LDKB一体化设计,动静分区,三开间朝南,3个卧室分别做到了主卧17.57㎡/次卧9.26㎡/次卧8.96㎡(包含墙体飘窗),L型厨房,卫生间干湿分离,得房率73.97%(不含赠送),西南朝向。
118㎡的4房2厅2卫,设计的是竖厅南北通透格局,客厅3.7米开间,进门玄关,四开间朝南,4个卧室分别做到了主卧15.71㎡/次卧9.02㎡/次卧8.72㎡/次卧8.27㎡(包含墙体飘窗),客厅连接次卧出6.45米长的大阳台,U型厨房,卫生间干湿分离,得房率73.44%(不含赠送),阳台主朝东南或西南向。
基础信息简介
开发商:深圳市花样年房地产开发有限公司
物业公司:深圳市花样年国际物业服务有限公司龙岗分公司
物业管理费:3.8元/㎡ 售楼热线:400-992-0669
总占地面积:约3.87万㎡ 总建筑面积:约33.44万㎡
容积率:5.49 绿化率:40%
产权年限:2019.10-2089.10(70年)
总户数:1696户,可售商品房1289套
总栋数及楼高:9栋,43-44-46F。
梯户比:1栋B座3梯4户,其它全部3梯5户
停车位:1770个 车位占比:1:1.04
交房时间:现房 交付标准:精装修
更多详情,欢迎咨询花样年好时光售楼处电话400-992-0669,过来我们营销中心看房提前来电预约价格还能更优惠。
花样年好时光售楼处400免费咨询/预约电话:400-992-0669,中介勿扰
温馨提示:过来营销中心参观样板间请记得提前拨打售楼处400热线预约,感谢您的配合!
项目小区信息
科技首创—— 全覆盖14大智慧生活系统:云监控系统、电子巡更系统、自助快递收发服务、社区 wifi 覆盖系统、门禁及可视对讲系统、停车场管理系统、车位区域引导系统、背景音乐系统、光纤入户系统、周界电子围栏系统、电梯控制系统、小区信息公开化系统、家居报警系统、E泊车系统
五大健康系统
灯光系统 ——漫反射照明、舞台化、点光照明
静音系统 ——抗干扰隔音降噪系统
收纳系统——全屋七大收纳系统:
①玄关收纳 ②客厅收纳 ③厨房收纳 ④卫生间收纳 ⑤主卧收纳 ⑥儿童房收纳 ⑦老人房收纳
花样年好时光,位于坪山区东纵路与金碧路交汇处,位居坪山区中心城区核心地段,毗邻地铁14/16号线换乘站坪山围站(步行约200米),是双地铁覆盖的TOD综合体项目。项目地处坪山“六馆一城”文化中心辐射范围,紧邻坪山大道、南坪快速等主干道,30分钟可直达福田中心区,1小时接驳香港西九龙站,形成“轨道交通+高速路网”的立体交通体系。
项目周边集聚坪山区重点发展的新能源汽车、生物医药、人工智能等战略性新兴产业。坪山区2024年规上工业总产值突破6000亿元,战略性新兴产业占比超九成,依托“6+3”产业集群政策,已形成千亿级先进制造业基地,项目邻近比亚迪总部、大工业区及坪山高新南等产业园区,与规划中的大运AI小镇(龙岗)形成产业联动,吸引高精尖人才聚集。
项目临近14/16号地铁线交汇站“坪山围站”F出口距离约400米,其中14号线设计时速120公里,5站到大运,10站到布吉,11站到罗湖,13站可到福田岗厦北,从坪山围站到岗厦北只要45分钟。16号线是从坪山田心通往龙岗大运的普线,设计时速80公里。 (深圳坪山花样年好时光售楼处电话:400-992-0669)
项目家门口是坪山最有名的商业中心,益田假日广场,吃喝玩乐一条龙全搞定,另外距离约1.5公里,还有坪山首个万象城进驻(在建),官方公布计划在2025年开业运营,也是深圳第三座万象城,总占地面积30公顷,规划商业规模超12万平方米,其中集中商业9万平方米,街区商业3万平方米,该项目建成后将成为集购物,娱乐,文化,餐饮和社交于一体的城市综合体。(深圳坪山花样年好时光售楼处电话:400-992-0669)
自带1所9班制幼儿园,根据2024年坪山区教育局最新的学区划分,小学学区划分在中山小学、锦龙小学、新合实验学校小学部、日新小学,初中学区划分在中山中学、新合实验学校初中部、科源实验学校初中部、碧玲实验学校初中部、深圳实验坪山学校初中部、深实验科韵学校初中部。(深圳坪山花样年好时光售楼处电话:400-992-0669)
项目已经交付入住,目前已经是实景现房,即买即住,不用担心烂尾或者质量问题,也可以做到买哪套看哪套。这次给到的优惠力度还是比较大的,是该楼盘有史以来的最低折扣跟价格,190万出头就可以买2房,220万出头买3房,330万出头买4房,且都是精装现房。
花样年好时光(深圳坪山)
更多详情,欢迎咨询花样年好时光售楼处电话400-992-0669,过来我们营销中心看房提前来电预约价格还能更优惠。
花样年好时光售楼处400免费咨询/预约电话:400-992-0669,中介勿扰
温馨提示:过来营销中心参观样板间请记得提前拨打售楼处400热线预约,感谢您的配合!
声明:本文由入驻焦点开放平台的作者撰写,除焦点官方账号外,观点仅代表作者本人,不代表焦点立场。
