桑泰·丹华公馆售楼处电话_地址_层高_详情_容积率_几梯几户_产权_批地时间
扫描到手机,新闻随时看
扫一扫,用手机看文章
更加方便分享给朋友

备案价格表


01
项目基础信息
【项目名称】桑泰丹华公馆
【占地面积】约40346.08㎡
【建筑面积】约319013.64㎡
【推售产品】约58-101㎡1房-3房
【交付标准】精装交付
【交房时间】25年4月
【开发商电话】4009920669
【产权年限】70年
【房产性质】住宅
【绿化率】30%
【开发商】深圳市桑泰房地产开发有限公司
【物业公司】深圳市厚德物业服务有限公司
【项目地址】广东省深圳市南山区留仙洞打石一路西南侧
02
创新走廊 | 价值高地
大沙河创新走廊中游 价值高地
“产学研”创新增长极,产业生态良性交互。

西丽湖国际科教城 学府聚集
清华、北大、哈工大、深大、港大等国际知名学府环绕,营造超一流的人文氛围。

西丽高铁新城 湾区枢纽门户
湾区特大综合枢纽,规模远超深圳北站,规划13站台25条线路,坐享区域价值腾飞。

留仙洞总部基地
以战略性新兴产业为主导产业,大疆创新、乐普医疗、天珑移动等世界 500 强总部已入驻。

南山科技创新中心
城市产业高地,打造“全生命周期“众创平台,聚集创新性企业、未来产业和高层次人才。

03
无忧交通 | 畅达湾区
紧邻西丽高铁站 通勤无忧
4高铁+2城际+6地铁 出行效率大大提升

04
生活配套 | 商圈环绕
3公里内 满足日常生活所需
楼下即是西丽生态公园,西丽天虹、云城万科里、366 大街、益田假日里等大型商业环绕。

05
无忧菁英 | 全龄教育
优质教育环伺 坐享全龄教育
自带18班幼儿园,紧邻深中南山创新学校和科创学校,周边还有在建及规划教育资源。

06
精工品质人居
精工匠心打造品质人居范本
对标世界建筑,采用香槟金铝板外立面。

归家礼序 独创三进制合院 享受回家路途


前瞻设计 生态光苑与泳池联通互动
600米风雨连廊 无缝衔接大堂主入口


社区型全龄段乐园 重新定义社区生活方式
07
桑泰集团 | 进化美好人居
桑泰集团深耕南山,秉承“诚信谦恭、开拓务实”的经营理念,推动城市发展,创造美好人居,截至目前已开发超 200 万㎡面积。
08
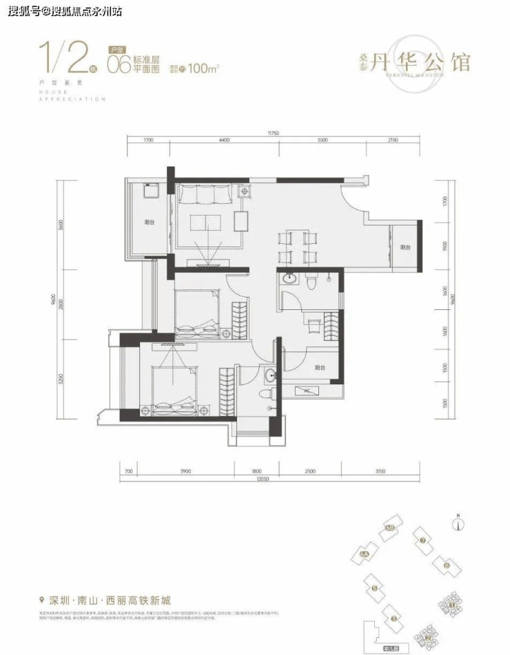
项目户型图






【桑泰·丹华公馆开发商售楼处咨询/预约电话☎️ 400-811-3080(中介勿扰)】
✅ 本项目暂不接受临时到访,过来参观样板房请记得提前来电预约!
✅ 为您安排楼盘现场销售全程接待并讲解,给您更贴心的看房体验!
温馨提醒:我们南山桑泰丹华公馆楼盘售楼部400电话没有设置任何所谓的“分机号”,拨打前请仔细甄别,注意保护个人隐私!谨防上当!
免责声明🔉:
以上所发布的关于深圳西丽丹华公馆楼盘信息仅供参考,所有图文资料及说明请以最终批文及双方在楼盘营销中心现场签署的买卖合同为准;本图文内容如无意中侵犯某方权益,请联系我们将会及时处理。
声明:本文由入驻焦点开放平台的作者撰写,除焦点官方账号外,观点仅代表作者本人,不代表焦点立场。
