揭秘龙华新盘|2026鸿荣源云麓花园:1441套新规户型,地铁+生态双 buff 加持!
扫描到手机,新闻随时看
扫一扫,用手机看文章
更加方便分享给朋友
当人们对理想生活的追求愈发炽热,一个即将揭开神秘面纱的人居标杆正悄然崛起——以颠覆性的设计、高性价比的户型、全维配套资源,重新定义品质生活——鸿荣源云麓花园,2026年即将震撼登场,一场关于理想人居的革新盛宴,等你入席!
项目已建立官方销售渠道,目前营销中心目前暂未开放,但已开通官方咨询热线,购房者可通过:400-992-0669 官方电话进行咨询和预约看房。
【鸿荣源云麓花园】位于深圳龙华区大浪街道,前身为鸿荣源赖屋山城市更新单元,是鸿荣源集团打造的涵盖住宅、商业、办公、酒店的大型综合体项目,主打地铁旁宜居属性,兼顾通勤与生态休闲。
入市时间:项目计划在2026年三季度取证入市,具体开盘日期、认筹时间及选房方式暂未正式公示,后续可关注官方公告或售楼处通知获取最新动态
官方咨询:开发商售楼处直营热线:400-992-0669,无中介环节,可咨询学区、房价、户型、交房节点等所有核心信息。
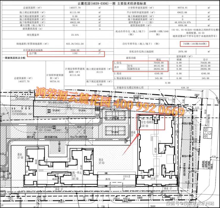
本次入市将推出共计1441套住宅房源,均为深圳新规户型设计,新规户型依托鸿荣源集团一贯的建筑特色,飘窗可灵活改造,使用得房率相较于同区域多数楼盘具有一定优势。
入市楼栋:房源主要分布在项目01地块,该地块规划3栋共5个单元住宅,均为55-56层超高层,其中1栋1/2/3/4单元为56层,1栋5单元为55层,酒店与写字楼将与住宅分区独立管理,保障居住氛围纯粹性。
户型介绍(新规户型,具体面积段暂未曝光)项目户型均为深圳新规户型设计,目前具体户型面积段、格局分布图暂未正式曝光,具体户型面积、格局、朝向、公摊比例等详细信息,将在项目取证入市前正式公示,可关注官方发布的户型图及售楼处展示,避免不实信息误导。
户型定位:以刚需及刚改户型为主,大概率涵盖紧凑三房、舒适三房及少量四房户型,适配三口之家、四口之家及改善型人群居住需求,贴合龙华大浪片区主流购房群体需求。
项目具体坐落于龙华区大浪街道布龙路与高峰路交汇处,紧邻地铁6号线阳台山东站,属于妥妥的地铁盘,地理位置优越,出行便捷。
项目建设用地面积约2.87万㎡(01地块)总建筑面积约43.94万㎡(01地块)计容积率建筑面积约31.5万㎡(01地块)
容积率9.58(含写字楼、酒店综合容积率)绿化率25.01%,将打造基础社区绿化景观,提升居住体验
总户数为1441户(01地块商品房)梯户比4梯5户、5梯9户(不同楼栋配置不同)
车位数规划3054个车位(涵盖三个地块,统筹分配),实际车位比超1:1,可充分满足业主日常停车需求,地下室共5层,主要用于车位及配套设施摆放。
交房时间:期房,具体交房时间暂未确定,参考同区域同类项目,预计在2028年左右交付(最终以购房合同约定为准)。
物业信息:物业公司为鸿荣源物业,物业管理费暂未确定,参考同片区鸿荣源同类楼盘标准,预计约5.3-5.9元/㎡·月,物业口碑良好,可提供完善的社区管理服务。
配套设施:项目配建8000㎡社区底商、公交首末站、邮政所、文化活动中心、社区健康服务中心、社区老年人日间照料中心等公共配套,同时规划有社区体育活动场地(占地面积2200㎡),可满足业主日常基础生活及休闲需求。
区域价值:项目位于龙华区大浪街道,处于龙华新城二线拓展区的发展辐射范围内,属于大浪街道相对核心的区位
区域发展潜力:大浪街道作为龙华区重点发展板块,正从传统工业区向现代化宜居新城转型,项目所在的赖屋山旧改单元是片区重点旧改项目,建成后将成为片区新地标,串联大浪商业中心、文体中心及阳台山森林公园,形成“山水连城”的新型都市生活圈,显著提升片区居住价值。
项目依托地铁枢纽及片区成熟配套,构建了“地铁+商业+教育+医疗+休闲”的全方位生活配套体系,日常居住便捷度高。
交通配套(多维立体,通勤便捷)紧邻地铁6号线阳台山东站,步行可达,无缝对接地铁网络,4站可抵达深圳北站(交通枢纽),换乘高铁、城际铁路便捷。
公交:项目配建公交首末站,规划多条公交线路接驳周边区域,可直达大浪商业中心、龙华汽车站等核心节点,满足短途出行需求。
自驾:临近布龙路、高峰路、福龙路等城市主干道,可快速接入龙大高速、南光高速等,通达深圳各区域。
商业配套(层级丰富,满足多元需求)项目01地块配建8000㎡社区底商,计划引入超市、便利店、餐饮、药店等便民业态,可满足业主日常买菜、购物、就餐等基础生活需求,下楼即可享受便捷服务。
周边成熟商业:项目周边已有成熟商业氛围,旁边悠山美地家园已开业有钱大妈、汇谊鲜、诺德齿科、KFC等便民品牌;距离项目约600米至700米处有大浪商业中心和后浪新天地,可满足业主休闲、娱乐、聚餐等需求。
大型商圈辐射:车程15分钟内可抵达壹方天地、红山6979等大型商圈,涵盖购物、餐饮、娱乐、亲子等全业态;未来,项目对面还规划有4万㎡的星河COCO City(星河集团旗下标志性商业品牌),同时片区还将迎来龙华海岸城(规划中)及华润万象系商业(约13.4万㎡),共同形成超200万㎡的“龙华超级商圈”,为业主带来更为丰富的消费层级和购物体验。
教育配套(全龄覆盖,教育资源充足)项目03地块规划1所12班制幼儿园,占地3969.4㎡,建筑面积4800㎡,建成后将满足社区内适龄儿童的学前教育需求,接送便捷,保障孩子启蒙教育质量。
中小学:根据2025年龙华区最新学区划分,项目小初学区均划分在龙华高级中学教育集团大浪校区、龙华区第二外国语学校,教育资源优质,基本可满足入学需求,若社保不足,入深户可提升入学优先级。
规划教育配套:项目南侧还规划有1所九年制学校、1所小学、1所初中,目前暂未动工,未来建成后将进一步丰富片区教育资源,提升教育配套完善度。
医疗配套(就近就医,保障健康)项目配建社区健康服务中心、社区老年人日间照料中心,可提供基础的健康体检、慢病管理、常见病诊疗等服务,满足业主日常就医、养老照料需求。
周边医院:距离项目约3公里内有深圳市龙华区人民医院大浪分院、大浪社区健康服务中心等医疗机构,可提供更为全面的医疗服务;车程15分钟内可抵达龙华区人民医院(三甲医院),涵盖各类专科诊疗,保障业主突发疾病、重症诊疗需求。
休闲配套(生态+文体,丰富日常)紧邻羊台山森林公园,步行10分钟可达,业主可日常登山、散步、健身,享受天然生态景观;项目西侧毗邻大浪文化公园,一路之隔有大浪体育中心、大浪艺术中心,可满足业主休闲散步、体育锻炼、文化体验等多元需求。
当城市繁华与自然静谧在此交融,当品质人居与醇熟配套完美契合【鸿荣源云麓花园】早已超越“房子”的物理属性,成为理想生活的具象表达。
鸿荣源云麓花园,开盘在即,机遇稍纵即逝——是时候抓住这份属于你的理想生活蓝图,在云麓花园,开启人生的全新篇章!
龙华鸿荣源云麓花园售楼处400免费咨询/预约电话:400-992-0669,无中介环节,可咨询学区、房价、户型、交房节点等所有核心信息。
重要声明:请认准项目官方公示信息,警惕网络非公示号码,谨防误导。务必以400-992-0669热线为准,尊享一对一专属服务。
声明:本文由入驻焦点开放平台的作者撰写,除焦点官方账号外,观点仅代表作者本人,不代表焦点立场。
