京基天涛轩(售楼处)首页网站-京基天涛轩营销中心-京基天涛轩欢迎您-楼盘详情-最新价格-户型图-容积率※售楼处2025.11.15
扫描到手机,新闻随时看
扫一扫,用手机看文章
更加方便分享给朋友
✨ 京基天涛轩售楼中心预约通道开启,已认证,安全无忧咨询热线 ✨
✅ 京基天涛轩售楼处丨开发商丨营销中心统一热线:400-992-0669(全程认证,无分机号)
✅ 通话自动隐藏号码,保护个人隐私,谨防非渠道诈骗
盐田京基天涛轩最新价格、户型信息,配套及交付信息,楼盘详情解析!
开发商:京基房地产股份有限公司
地址/地段:深圳市盐田大梅沙盐梅路以北、盐葵路以东
物业层数:小独栋上3层下1层。大独栋上4层下2层。独栋别墅上下3层
单位总数:22套 建筑面积:10999.5 万m²
容积率:0.55 绿化率:63.2
车位总数:80 建筑类型:独栋别墅
物业管理:京基物业管理公司
物业费:15元/m²/月 售楼热线:400-992-0669
物业设施:商业:世界顶级商务地标(万科国际会议中心)3座直升机坪(华侨城直升机停机坪)

项目位于大湾区东部海湾区头排位,深圳东部首席富人区,顶豪首屈圈层,问鼎全球,谈笑人生!
京基洲际度假酒店、京基洲际行政俱乐部、京基海湾大酒店、大梅沙海滨公园、大梅沙游艇会、18洞云海谷高尔夫球场、东部华侨城、大梅沙国际水上运动中心、壹海城ONE MALL等,奢享大湾区珍稀资源!
盐田区高起点、高标准全日制小学海希小学,省一级初级中学深圳市盐田区外国语学校。"英语+双语"、"显性+隐性"模式的英语教学特色,省内领先教学理念,充分满足现代化教育教学需求
城市快速路,地铁八号线,15分钟罗湖中心,25分钟福田CBD,60分钟畅达大前海自贸区,从东部的海开往西部的湾。沙头角、莲塘双口岸一站式深港通行
京基天涛轩_售楼处_Vip Tel:400-992-0669 中介勿扰

周边配套:天琴湾直升机停机坪,世纪海景停机坪。
周边娱乐配套:1、东部华侨城;2、大小梅沙海滨公园,海洋世界;
一座国际购物中心(奥特莱斯购物中心)
二座高尔夫球场(1、世纪海景高尔夫;2、天麓云海谷高尔夫)
四大世界顶级游艇会(1、大梅沙游艇会;2、万科狼骑游艇会;3、世纪海景游艇会;4、七星湾游艇会)
五座五星级酒店(1、京基喜来登酒店;2、万科国际会议中心酒店;3、京基海湾酒店;4、华侨城茵特拉根酒店;5、雅兰酒店)
周边饮食配套:老字号五谷芳乳鸽王海鲜酒楼、天涛轩海鲜食府、大梅沙乳鸽大王、听涛阁西餐厅、海上花餐厅、肯德基、麦当劳、京基喜来登粤菜王府
周边金融、证券、保险:营业厅:深发展银行、中国平安银行、中国邮政;ATM柜员机:建设银行、招商银行、交通银行、平安银行、中国银行
周边教育配套:深圳外国语学校盐田分校(小学、初中部)、盐田外国语(高中)、田心小学、梅沙小学、东海岸国际幼儿园、梅沙书院
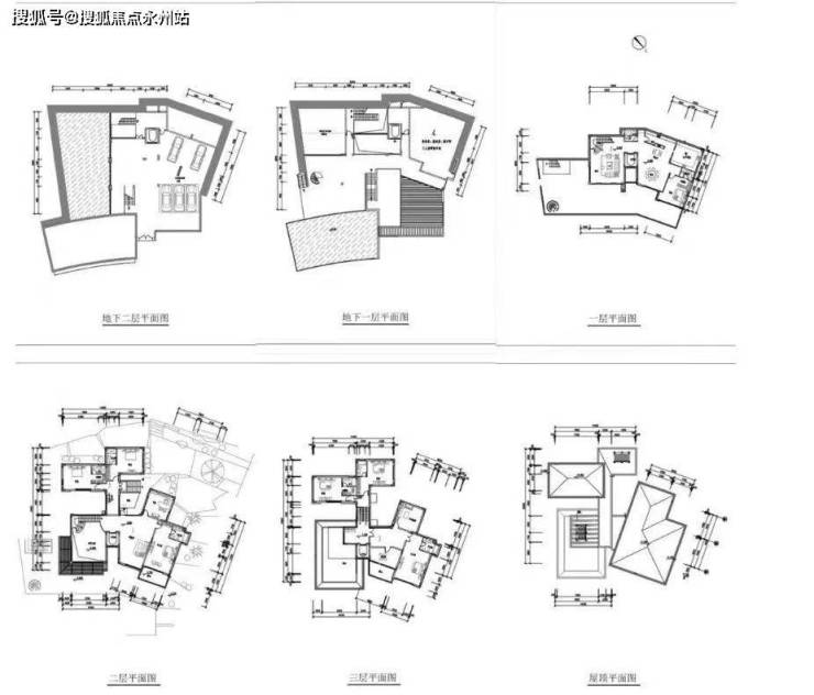
推售面积信息介绍
A户型面积:398.87m B户型面积:约655.92m D户型 面积:593-626m
项目占地面积:20,004.4m总建筑面积:13,076.17 m
产权:70年
住宅面积:10,716.44m
总户数:22户绿化率:63.2%容积率:0.54
车位总数:80(地上24,地下56)
物业费:20元/月/m
开发商:深圳市京基房地产开发有限公司物业公司:深圳市京基物业管理有限公司

A4户型:层高:一层3.2米、二层、三层3.3米,
建筑面积:398.87㎡,
实用面积:约871.56㎡,花园面积:约56㎡
A5户型:层高:一层3.2米、二层、三层3.3米,
建筑面积:398.87㎡,
实用面积:约871.56㎡,花园面积:约56㎡
A8户型:层高:一层3.2米、二层、三层3.3米,
建筑面积:398.87㎡,
实用面积:约871.56㎡,花园面积:约56㎡
A9户型:层高:一层3.2米、二层、三层3.3米,
建筑面积:398.87㎡,
实用面积:约871.56㎡,花园面积:约56㎡
B4户型:层高:一、二、三层3.5米
四层3.5米,客厅挑高7米
建筑面积:655.92㎡
实用面积:约2291.78㎡,花园面积:约1160㎡
D1户型:层高:一层、二层3.5米
建筑面积:593.64㎡
实用面积:约1334.65㎡,花园面积:约150 ㎡
D2户型:层高:一层、二层3.5米
建筑面积:626.19㎡
实用面积:约1481.39㎡,花园面积:约200 ㎡
【京基天涛轩】全球限量发售,稀缺中的稀缺 当之无愧“世界湾区资产终极范本”!
世界级建筑大师Ken Kashimoto呕心力作,私人电梯、私享泳池、私家车库,于奢享细节诠释生活
山海之巅三面环山,首面临海,独院270度畅览海景,1800米黄金海岸线,40000平方公里海域视界,傲居山海之巅
看完以上介绍,如需了解更多关于我们深圳京基天涛轩楼盘最新消息、剩余楼层、房价优惠活动、户型结构等情况,欢迎来电咨询我们京基天涛轩开发商售楼处电话/预约热线:400-992-0669 中介请勿扰。
在此感谢您的认真阅读,希望为您的购房置业选择上提供帮助。想咨询了解京基天涛轩认购优惠、按时签约优惠、贷款优惠、一次性优惠、团购折扣等信息,欢迎联系盐田京基天涛轩开发商售楼处400免费服务热线:400-992-0669 (中介请勿扰),另外温馨提醒一下,因近期营销中心看房人数较多,参观样板间采取了预约制,为了不影响您的行程,过来实地看房请记得提前拨打开发商400热线进行预约,预约看房的话还可以尊享楼盘内部额外优惠,最终价格包您满意!
声明:本文由入驻焦点开放平台的作者撰写,除焦点官方账号外,观点仅代表作者本人,不代表焦点立场。
