2025龙岗亚钢壹号公馆楼盘详情/户型解析与价格体系公告!
扫描到手机,新闻随时看
扫一扫,用手机看文章
更加方便分享给朋友
亚钢壹号公馆(深圳龙岗)
亚钢壹号公馆售楼处电话:400-992-0669【24小时电话热线】
亚钢壹号公馆营销中心电话:400-992-0669【24小时电话热线】
亚钢壹号公馆售楼中心热线:400-992-0669【24小时电话热线】
来访提前咨询预约,欢迎致电开发商售楼处热线:400-992-0669,专业销售顾问将竭诚为你服务,感谢您的配合!
在售户型图丨项目介绍丨最新房源丨周边配套丨详细解答〢
深圳龙岗亚钢壹号公馆售楼处电话☎:400-992-0669楼盘最新介绍、楼盘开盘时间、交房时间、房价、在售户型、学校、地铁、备案价、层高、样板房、折扣、周围配套、楼盘地址、优缺点、梯户比、最新优惠、得房率、售楼处、营销中心、售楼中心、开发商、最新动态等详情咨询
亚钢壹号公馆基础信息
【总建面】:约13万㎡ 【业态】150m甲级写字楼
【业态】独栋商墅 花园公寓 【业态】自带2万㎡商业街
【车位比】1:1.65 三层停车场 【总套数】159套
【面积】:33-80m² 【户型】:1-2-3房
【绿化率】30% 【容积率】4.07
亚钢壹号公馆_Vip Tel:400-992-0669 中介勿扰
注意:本项目不收任何费用,售楼中心〢欢迎来电咨询〢安全通话隐藏真实号码

在售户型
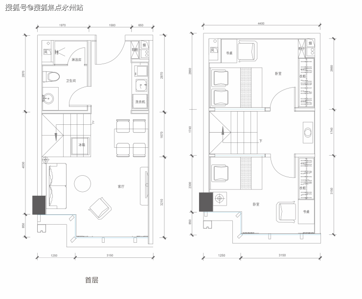
【1房户型,建面约37.74~47.91㎡】开放式设计、尺度优越、采光优良



项目价值信息:
1.【政策红利】平湖享多项政策利好,区域发展潜力无穷
在粤港澳大湾区与先行示范区“双区驱动”下,平湖携手前海享千万政策红利,并以东进桥头堡战略位置,打造现代金融科技与服务业基地。
随着深圳十四五,龙岗“一芯两核多支点”发展战略的出炉,西核发展之“罗山芯谷”平湖地段计划将引进华为等上下游企业。
区域规划超240万㎡城市旧改,推动平湖改头换面,聚势腾飞。

2.【平湖地标】一站式地标商务综合体,与万豪国际酒店集团强势联手,共筑标杆
荟萃甲级写字楼、总部独栋商墅、丛林艺术商业街、高端酒店式菁英公寓等高端业态,据揽平湖城芯资源,以超150m地标高度,致献城市天际。
更与万豪国际酒店集团强强联合,打造区域内顶级星级酒店,以标杆姿态,革新城市想象。 (深圳龙岗亚钢壹号公馆售楼处电话:400-992-0669)
3.【通达交通】10号线华南城站、禾花站双地铁口物业
立足全方位战略交通体系,定位罗湖、深圳北、福田之后的第四大交通枢纽,为城市带来巨大潜力,5大高速路+3条地铁线+2条城际铁路+1个平湖枢纽中心,于此,构建多维立体交通,1小时贯通脉动广深港经济圈。
广深城际(已开通)、惠深城际(规划中)等城轨完善,加速一体化发展,为深圳打造“全球标杆城市”添砖加瓦;
10号(2020年8月已开通)/17号(规划中)/18号(规划中)3条地铁线交汇,5大高速纵横,约20分钟直抵罗湖中心;
深圳综合交通“十四五”规划,优化平湖南国家物流枢纽功能组织,建设平湖南内陆港,提升综合交通枢纽功能。
4.【城芯都荟】万达、天虹、华南城奥莱、佳兆业佳纷广场等商业环伺,出门即享万象繁华
傲据平湖城芯,临近总筑面30.5万㎡的万达广场,更与天虹商场一路之隔,为壹号主人提供区域内顶级奢尚配套,聚集人群,更能提升资产价值。
自带约2万㎡主题商业街,已引进潮州新晶合私房菜、农商行、华祥苑、嘉旺、鸵鸟便利店等知名品牌商家,打造沉浸式丛林艺术商业街,全方位匹配高端商务生活。 (深圳龙岗亚钢壹号公馆售楼处电话:400-992-0669)

5.【稀缺产品】全市唯一墅级生态公寓
小户型藏纳大空间,低密花园小户私享墅级生态资源,更精心打造16套私院mini墅,于城央繁华之处,奢享一方园地,出则繁华入则宁静,仅159套珍席典藏,市场难寻。

6.【百变空间】一层投入,双倍回馈
建面约33-80㎡全能资产,空间灵动,约5.1m层高,高拓实用,一层面积,双倍空间。
更配品质优装,贴心打造舒适体验,严选用材,以人性化的细节考量运用于每个精雕细琢的空间,打造内外兼修的品质享受。
✅亚钢壹号公馆
亚钢壹号公馆售楼处电话:400-992-0669
亚钢壹号公馆营销中心电话:400-992-0669
温馨提示:本项目采用预约制,过来营销中心参观样板间请记得提前拨打开发商楼盘售楼处400热线电话在线预约,感谢您的配合!
➤➤➤➤VIP贵宾置业〢欢迎来电咨询〢品鉴!(24小时预约电话)
注意:本项目不收任何费用,售楼中心〢欢迎来电咨询〢安全通话隐藏真实号码
声明:本文由入驻焦点开放平台的作者撰写,除焦点官方账号外,观点仅代表作者本人,不代表焦点立场。
