深圳鸿荣源胤璞(前海项目)鸿荣源胤璞首页网站丨鸿荣源胤璞楼盘动态+价格
扫描到手机,新闻随时看
扫一扫,用手机看文章
更加方便分享给朋友
深圳鸿荣源胤璞(前海项目)鸿荣源胤璞首页网站丨鸿荣源胤璞楼盘动态+价格占地面积约5万㎡,建设用地面积约3.8万㎡,总建筑面积超34万㎡,商务公寓约5.3万㎡,商务办公约17.2万㎡,酒店约5万㎡,商业约6.4万㎡,是集办公、商业、公寓和酒店等一体开发的项目。地面主要由5栋塔楼构成,包括2栋甲级办公楼、1栋酒店,以及2栋服务式公寓组成。公寓部分命名为“胤璞”,位于项目整体地块的西侧。建面86-130-166-366㎡(1房-2房-3房-4房)户型,产权年限40年(2013年-2053年)
深圳南山前海鸿荣源胤璞开发商售楼处电话:400-992-0669(中介勿扰)
项目没有所谓的“分机号”注意保护个人隐私!谨防上当!看房请提前预约,避免临时无人接待,感谢您的配合!
大家都比较看好前海的未来发展,尤其是胤璞所在的桂湾片区。桂湾这边单政府配套就有前海交易广场、前海国际金融交流中心、行政服务中心、前海商务秘书室等,资源集中,对国际人才很有吸引力。周边还有汇丰银行南方总部、万象前海等金融、商务配套,十分便捷。我认为3-5年后,前海不弱于深圳湾。”

目前,前海桂湾片区定位为前海合作区集中展示整体城市形象的金融核心商务区,在建设国际金融科技中心、全球总部中心的目标下,金融服务业和商务服务业都会是前海桂湾发展的重中之重。
,国内热点城市核心板块的高品质稀缺产品,才是更好的资产选择。

“因为海外不动产的房产税高达5-8%,相对来说,国内环境会更好。”

2021年深圳拍地时,胡女士再次关注到,鸿荣源成为了仅有的两家拿地私企开发商之一,这无疑是品牌实力的绝佳彰显。
胤璞的大堂、用材、设计、品质都非常突出。”是胤璞对建筑无处不在的苛刻要求。逾12.5米挑高入户大堂,超千平米的空间尺寸,以对空间感的极致把握,映射着城市的高度。地面使用劳伦斯黑金大理石配以错落的金色线条进行点缀,如同梵高星空画作般的视觉艺术,构成了高贵优雅的空间气质。
“买公寓当然要买最好的,无论是从产品品质方面考虑,还是后期置换方面。这个户型功能性很强,有储物间的设计,能满足居住需求,持有成本不高,以后置换也方便。”


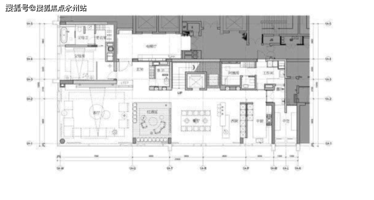
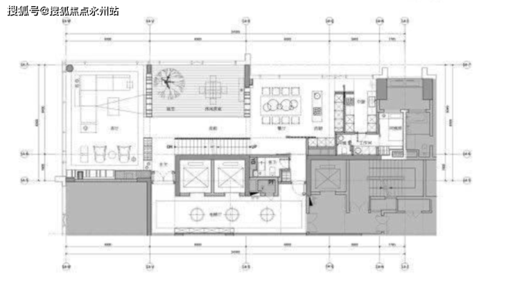
项目户型介绍
T2栋(41层2梯4户,人脸识别到层)
86㎡ 1套房+1书房,客厅、卧室全朝东南,看花园和城市夜景;
130㎡ 两房两厅两卫,客厅和两间卧室都朝东南向,4.5米客厅开间,7.5米大阳台,看桂湾河、部分海景和城市景观;
135㎡,两房两厅两卫,户型亮点:双龙抱珠,厅出阳台;两卧室和客厅相同景观,都可享受一线海景、18万演绎公园景观;
166㎡平层,三房、两厅、三卫,户型亮点:7.8米超大开间,大横厅转角270℃无敌一线海景及18万演绎公园景观,可以说除了卫生间全是海景、公园景观及摩天轮景观


T1栋楼王(27层3梯2户,人脸识别,专梯入户)
366㎡平层,4房3厅4卫4阳台+工人套房+洗衣间,户型亮点:主佣电梯分离入户,10米开间超大横厅设计,71万㎡双公园环抱、270度一线无敌海景、多变的城市景观以及大小南山复合景观汇聚一身,除了电梯,全是景观

整个项目在颇具艺术气息的同时,物业服务也可圈可点。“其实一开始看到项目大堂地面就喜欢上了,明亮精致的空间布置,高尚优雅的装饰艺术,比其他项目还有一些奢牌酒店更加精致。下午树影映在窗帘,像别致的水墨画,或优雅别致或玲珑飘逸。软装、硬装搭配都到位,设计感强,住起来当然也舒服。”
“胤璞的物业服务我个人体验是超过前海其他项目的, 尤其是个性化的服务, 让我留下深刻印象。”

前海鸿荣源中心·胤璞引入了康莱德旗舰店,作为希尔顿旗下奢华五星级酒店品牌,全球仅有30余家,高端性溢于言表,预计将于2023年开业。

同时,胤璞规划有鸿荣源集团最顶尖商业品牌——逾6万㎡壹方汇高端体验式商业,以深圳首个精品定制主题型商业空间为定位,无缝衔接康莱德酒店、前海桂湾河公园、前海卓越壹号的廊桥,满足塔尖圈层的生活所需。
随着时代的推进,选择世界级城市的稀缺恒产,已然成为了全球财富的共识。而生活在前海鸿荣源中心·胤璞的自在惬意,不仅在于区域前景,也源于从品质到服务,面面俱到的层峯礼遇。

居于此,在前海湾世界级湾区城市会客厅的海天繁华间,享受远见的价值,慢品生活的真意。
前海鸿荣源中心·胤璞,约86-366㎡海景现楼公寓,仅余少量臻席,封藏不待。

鸿荣源中心·胤璞【鸿荣源胤璞】 前海首排一线永久海景 稀缺资源,高奢品质,身份象征 在售:85-130-160-360㎡1-4房
南山【鸿荣源中心·胤璞】鸿荣源胤璞开发商售楼处电话:400-992-0669(中介勿扰)
来电可了解楼盘最新动态、房价、在售房源、交楼时间等信息!让你买的放心,住的舒心!
鸿荣源胤璞开发商售楼处直销_欢迎来电预约享受内部折扣_恭迎品鉴
◆提前来电-预约登记尊享售楼处销售专业讲解〢一对一热情服务〢◆
鸿荣源胤璞开发商售楼中心〢预约可享内部优惠〢匠心钜制-恭迎品鉴〢
温馨提示:项目没有所谓的“分机号”注意保护个人隐私!谨防上当!看房请务必提前预约,避免临时无人接待,感谢您的配合!
免责声明🔉:以上所发布的楼盘相关信息仅供参考,所有图文资料及说明请以最终批文及双方在楼盘现场签署的买卖合同为准;本图文内容如无意中侵犯某方权益,请联系我们将会及时处理。
声明:本文由入驻焦点开放平台的作者撰写,除焦点官方账号外,观点仅代表作者本人,不代表焦点立场。
