深圳玖玖颂阁售楼处电话(宝安玖玖颂阁)2024首页网站_价格_户型_营销中心
扫描到手机,新闻随时看
扫一扫,用手机看文章
更加方便分享给朋友
➢ ➢深圳宝安【 玖玖颂阁】售楼处电话:400-992-0669 中介勿扰
➢ ➢深圳宝安【 玖玖颂阁】—「售楼处」—「欢迎您!」
➢ ➢来电可了解楼盘最新动态、房价、在售房源、交楼时间等信息!让你买的放心,住的舒心!
玖玖颂阁位于深圳市宝安区新安街道新安四路与建安一路交汇处,与招商臻府相邻。属于新安老城区,距离在建地铁12号线上川站约有500米的距离,与5号线灵芝站、15号线(在建中)流塘站距离较近,可一站换乘。玖玖颂阁和招商臻府原属于宝城34-2片区城市更新,该旧改于2015年被纳入城市更新单元第三批计划,原拆除用地范围4万㎡,开发建设用地3.4万㎡,计容积率总建面16.9万㎡。

项目含保障性住宅3.06万㎡),商业、办公及酒店建筑面积8000㎡,公共配套设施建筑面积8750㎡,不过从用地面积看,项目的体量比较小,是一个小型综合体社区。

玖玖颂阁项目概况
开发商:深圳市俊弘星实业有限公司
项目位置:宝安区新安街道新安四路与建安一路交汇处
总占地:约1.4万㎡
总建面:约10.41万㎡
可售套数 :379
推售面积段:83-133平方米3-4房
梯户比:A-C座2梯4户,D座2梯5户
容积率:5.04
车位数:752
物业公司:中熙物业
物业费:住宅6.00元/平方米·月
开发商热线:400-992-0669
产权年限:70年
交楼标准:精装交付

玖玖颂阁价值介绍
【享受千亿醇熟配套,成中央核心居住区】项目地处前海核心区域,位于城市发展动力最强劲的前海核心轴上。新安与宝中已经正式一体化,近享大湾区时代前海的超级发展红利。目前,新安片区,尤其是在沿前进路正在进行着大规模的城市更新,分布着众多城市更新项目,超千万的更新体量,其中超过400万平米的城市综合体,拥有逾100万平米的商业,周边价值腾飞在即。

【全维路网链动世界,半小时通达全城】项目周边目前已开通的地铁5号线,同时享受在建12、15号线(规划中)共三地铁线环绕,自驾由广深公路行、宝安大道,30分钟可达福田、南山、宝安中心区。

目前距离项目最近的地铁站是灵芝地铁站,约1.9公里,步行距离较远;2022年年底预计开通的地铁线12号线(南宝线)上川站距离项目大约600米,此外,地铁15号流塘站也近。此外,项目周边有建安四路、前进二路、广深公路等多条交通要道,住在这里的人前往南山、福田等区域都很方便。

【出入公园环绕,优享丰富自然生态资源】项目周边配备13大公园:流塘公园、宝安公园、碧海湾公园、西乡公园、灵芝公园、新安公园、滨海文化公园等,项目距离宝安公园直线距离仅1.5公里,距离流塘公园直线距离仅607米,出入公园环绕,宜居属性高。

【全成长生活场,优质教育举步即达】项目2公里范围内拥有9所中小学,是宝安区内的高密度教育资源片区、其中有两所广东省一级学校:弘雅小学、文汇学校(初中部),文汇学校作为新安片区的黑马学校,一跃成为宝安区第二。项目目周边还拥有大量优质的少儿培训机构,满足孩子成长教育的多样化需求。

【万千精彩聚场,享步行可达的奢侈】项目1公里范围内有天虹商场,万达广场、沃尔玛等商业配套。2公里内有中洲πMALL、海雅缤纷城、壹方城等超百万平方米醇熟都会商圈配套,满足日常购物逛街需求,坐拥西部商圈核心。

【超千万旧改,焕新片区人居生活】新安片区,尤其是在沿前进路正在进行着大规模的城市更新,分布着共20个旧改项目,超千万的旧改体量,相当于新安整个片区重建。仅我们项目2公里范围内就汇聚了8个旧改项目,分别是沃尔玛购物广场片区旧改、安华工业东区旧改,卓越翻身旧改、宝城碧海花园旧改、公路局西侧旧改、甲岸村旧改、宏发新领域、中洲中央公园二期。

【全球顶尖景观设计AECOM,营建穿越花园的旅行】聘请设计“深圳湾一号”、“深圳华润悦府”的全球顶尖景观设计AECOM团队,对标城市一线豪宅,斥巨资打造项目空中花园,充分运用入户景观、中央水院、迎宾广场、喷泉水景等景观营造手法,呈现完美的视觉体验和移步换景之美,让业主的每次归家,一步一景之间,都是一场穿越花园的旅行。开发商售楼热线 400-811-3080 (中介勿扰)

【新锐设计团队“诗意空间”精心设计,品质见微知著】对标深圳核心区域一线豪宅设计理念,由设计过深圳华润悦府、深圳华润润府、深圳万科臻系高端项目的“诗意空间”设计团队担纲本项目的公共空间设计,在用材用料、审美艺术等方面,参照南山、前海的一线豪宅;入户大堂均设置会客区,满足社区入户的自然社交功能,空间布局充分考虑社交功能与迎接宾客的用户需求,在保留阔绰的大堂空间的基础之上满足客户大堂会客的第一重礼仪;打造轻奢电梯厅作为入户前的一道风景,给予业主全方位的荣耀体验,呈现非凡礼仪序列感,造就无与伦比的居住体验,鼎成生活至高礼遇。

【“熙管家”全方位服务,护航品质生活】本项目由深圳市中熙物业管理有限公司进行物业服务,所服务的项目曾获深圳市住宅示范小区、南山区住宅示范小区等荣誉,同时在管项目达十几个,均在深圳、东莞两地,深谙本土客户的需求,设立“栋管家”一站式服务机制,经过十几年的运营,培养了一批具有丰富管理经验的“熙管家”,为业主提供全方位贴心服务。

【整体围合式布局,外立面打造现代化品质美学】采用围合式布局,接续中国传统建筑布局精髓,强调建筑围绕中心环境而设计,从而让景观共享最大化,实现户户有景的均好布局,不仅通风、采光效果好之外,楼间距也得以拉大,私密性也得到了更好的保护;更重要的是,围合出的园林,将可打造更多样的立体景观空间。

【均好性强且奢适实用,打造雅而奢的生活】玖玖颂阁复兴生活之雅,践行“奢适实用”的生活方式,打造约83-133㎡雅奢空间,全动静分区,设计更人性化,精心设计多种实用功能,打造舒适生活空间,全南向通透户型打造全采光户型。83-90平米户型均为3房2厅2卫,主卧都搭配了套间,128-133平米4房户型以陪伴为主设计概念,打造实用家庭厅,空间尺度合理。

【深耕莞深20多年,所到之处皆繁华】中熙集团先后开发了香缇湾、香缤山、君南山、君墅湾、玖颂江湾、香缇公馆、珑湾等品质用心之作,以户型创新实用得到业界好评,有较好的市场影响力及业主口碑。深莞开发项目十几个,皆占踞城市中心绝佳位置,坐拥醇熟完善配套,推动一方繁华发展。

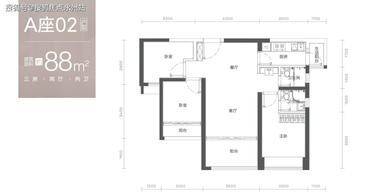
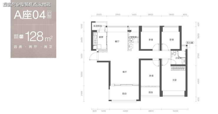
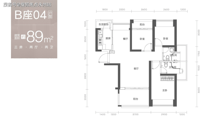
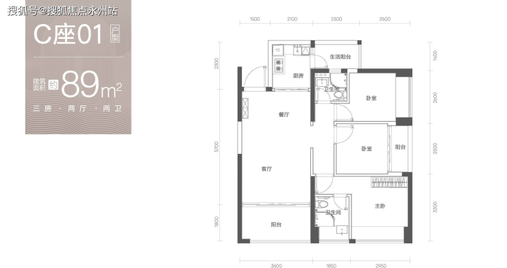
玖玖颂阁户型品鉴





玖玖颂阁推出住宅379套,其中83㎡(3房1卫)4套、89㎡(3房2卫)318套、128-130㎡57套,均为精装交房,预计单价在9万左右。
深圳玖玖颂阁开发商售楼处咨询/预约电话: 400-992-0669(中介勿扰)
来电可了解楼盘最新动态、房价、在售房源、交楼时间等信息!让你买的放心,住的舒心!
温馨提示:项目没有所谓的“分机号”注意保护个人隐私!谨防上当!看房请务必提前预约,避免临时无人接待,感谢您的配合!
免责声明🔉:以上信息仅供参考,所有图文资料请以政府最终批文及双方签署的买卖合同为准。本图文内容如无意中侵犯某方权益,请联系我们将第一时间处理。
声明:本文由入驻焦点开放平台的作者撰写,除焦点官方账号外,观点仅代表作者本人,不代表焦点立场。
