中洲迎玺花园(深圳)中洲迎玺花园楼盘详情|周边配套/户型/房价/交通/售楼处
扫描到手机,新闻随时看
扫一扫,用手机看文章
更加方便分享给朋友
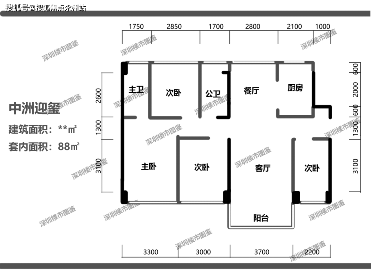
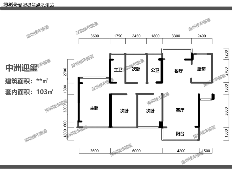
中洲迎玺花园售楼处电话:400-992-0669 售楼中心,项目全面介绍,包含楼盘简介、售楼电话、小区户型图片、营销中心位置、区位优势、交通、周边商业配套、户型图等楼盘详情以上全文就是【中洲迎玺花园】楼盘详情,这篇文章的详细分析和点评,感谢您的阅读,希望为您的购房置业选择上提供帮助,开盘预售动态、价格走势资讯、项目最新消息,待定更新发布,敬请持续关注订阅。
龙华中洲迎玺花园开发商售楼处电话:400-992-0669(中介勿扰)提前来电-预约登记尊享售楼处销售专业讲解
〢一对一热情服务〢可了解楼盘最新动态、房价、在售房源、交楼时间等信息!〢预约可享内部优惠〢匠心钜制-恭迎品鉴〢
温馨提示:项目没有所谓的“分机号”注意保护个人隐私!谨防上当!看房请务必提前预约,避免临时无人接待,感谢您的配合!
深圳北站新盘中洲迎玺花园一期规划出炉。
龙华中洲黄金台项目已经改名为中洲迎玺花园,将首推售644套92-136㎡三到四房产品,项目容积率约4.16,预计整体会提供近3000套商品房住宅,又将是龙华一次大的供应!
项目原中洲黄金台,目前定名为中洲迎玺花园。根据规划,一期建设1栋住宅,层高47、地下2层,规划共644 户(其中保障性住房 0 户),户型套内建筑面积<90㎡有615 户,占比95.5%。
除此之外,一期规划有商业建筑建面约3128.38㎡、社区老年人日间照料中心1500㎡、社区服务中心400㎡,机动车位451个。

项目位于龙华民治街道,宗地号为A806-0397,该地块由两部分组成,总用地面积7.73万㎡,总建筑面积50.7万㎡。据悉,共分三期5个批次进行开发,一期开工建设近4万㎡,规划面积16.9万㎡,计划在今年9月入市(具体入市时间请以开发商公示为准)。




中洲迎玺花园地块由两部分组成,总建面约32万㎡。项目分三期5个批次开发,一期开工建设的是3.998万㎡,规划面积16.9万㎡。预计明年9月份一期一批次入市,24年3月份2批次,二期一批次24年9月份,二批次25年3月份,三期27年。容积率4.16,预计会提供3000套住宅。
从位置上来看,中洲迎玺花园是西北毗邻中海珑悦理家园,东北毗邻超核中心润府。示意图
居住价值方面,这片区在接下来估计有几千套住房陆续供应,可形成一大居住区,会是龙华接下来最适合居住的片区。
工程进度还在土地基坑中,预计最快3季度入市。示意图
项目距离深圳北站约400米,深圳北站交通枢纽不止有通往全国各地的高铁,还有4/5/6号线三条地铁线直接在此接驳。

通过4号线深圳北站向南抵达福田中心区,或直接换乘地铁5号线到南山、罗湖中心区,到那个区都不远。
地处深圳中轴,自驾出行各个片区比较便捷,到深圳北乘坐高铁出行步行可达。
周边学校
目前规划在深圳外国语龙华初中学区范围(目前在其初中学区划分范围内,后期存在不确定性因素),周边还有玉龙学校和龙腾学校共3所九年一贯制学校,教育资源非常丰富。(注:具体学区划分,以入学当年教育局公布信息为准)深圳外国语学校(集团)龙华学校实拍图
据我们了解,4所学校中的深外龙非常厉害,去年首次初三学子参加中考,就在龙华区一举夺魁,比肩龙华TOP学府-“深高北”。

商业配套
项目将建龙华首家五星级万象系商业,后期周边人流或将汇集于此。步行可达深圳北站缤果空间、星河Coco City等集中商业,邻近龙华版欢乐海岸-红山6979、龙华天虹购物中心以及在建的华南首家Costco旗舰卖场。

项目区位介绍
深圳北站枢纽片区具备湾区门户、深港联动的独特优势,规划定位为联动湾区、协作区域的城市门户和枢纽都市核心区,展现深圳先行示范区特质和魅力的国际中央活力区。为高标准推动规划蓝图落地实施,采取综合开发的模式,发挥一体化设计、建设的优势,通过空中连廊、地面绿谷、地下联通将片区各组团紧密联系,活化复合型城市功能,形成立体连续、复合多元,集创新、服务、文化、体验、休闲于一体的城市会客厅。华润万象天地

迎玺花园预约在线看房,参与团购,置业顾问一对一介绍,安排看房专车
中洲迎玺花园怎么样?价格多少?楼盘详情介绍,包含售楼处电话、地址、户型图、小区图片、区位优势、交通、周边商业配套等楼盘详细资料;更详细楼盘资料和最新折扣价格,请拨打售楼处电话,销售会为您详细介绍楼盘。
宝安中心城·中洲迎玺花园开发商售楼处电话:400-992-0669【营销中心】售楼处最新详情/地址/户型/价格
在售户型图丨项目介绍丨房源丨_周边配套丨详细解答—开发商售楼处电话_欢迎来电预约享受内部折扣_恭迎品鉴〢
免责声明🔉:以上信息仅供参考,所有图文资料以政府最终批文及双方签署的买卖合同为准。本文内容如果无意中侵犯某方权益,请联系我们将第一时间处理。
声明:本文由入驻焦点开放平台的作者撰写,除焦点官方账号外,观点仅代表作者本人,不代表焦点立场。
