中粮福田大悦广场售楼处(营销中心)中粮福田大悦广场_福田区_中粮福田大悦广场楼盘详情
扫描到手机,新闻随时看
扫一扫,用手机看文章
更加方便分享给朋友
✨ 中粮福田大悦广场售楼中心预约通道开启,已认证,安全无忧咨询热线 ✨
✅ 中粮福田大悦广场售楼处丨开发商丨营销中心统一热线:400-992-0669(全程认证,无分机号)
✅ 通话自动隐藏号码,保护个人隐私,谨防非渠道诈骗
福田中粮福田大悦广场最新价格、户型信息,配套及交付信息,楼盘详情解析!
欢迎访问中粮福田大悦广场最新信息
作为福田核心地段的标杆商务综合体,中粮福田大悦广场由央企中粮集团开发,项目集高端办公、总部基地、商业配套于一体,现以现楼交付,助力企业即买即用。
项目户型与产品细节
配套宿舍:1室1厅1卫:建面约 49-51㎡,户型方正,动静分离,3.1 米层高,带阳台。
2室1厅1卫:建面约 78㎡,双卧朝南,明厨明卫,预留燃气管道。
研发办公:标准层面积约 2099㎡,可分割为 486-562㎡单元,4.2 米层高,满足企业定制需求。
空间设计:围合式布局保障采光与景观,高层可俯瞰莲花山、塘朗山。
办公空间配备1500㎡大堂、高速电梯、双路供电系统,提升商务效率。
如需了解更多详情,欢迎咨询中粮·福田大悦广场售楼处电话400-992-0669,过来我们营销中心看房提前来电预约价格还能更优惠。
中粮·福田大悦广场售楼处400免费咨询/预约电话:400-992-0669,中介勿扰
温馨提示:过来营销中心参观样板间请记得提前拨打售楼处400热线预约,感谢您的配合!
中粮·福田大悦广场综合信息
区域位置:项目位于深圳市福田区梅林梅彩智谷片区,具体地址为梅华路与梅秀路交汇处,紧邻北环大道,属于福田CBD北延核心区域。
交通优势:地铁:距离9号线下梅林站约900米,规划中的22号线梅丰站(建设中)位于附近,可快速换乘2、4、10号线。
公路:毗邻北环大道、新洲干道,自驾便捷;福田站、深圳北站双高铁枢纽,联动福田、皇岗双口岸,通达深港及湾区。
周边配套:商业:4公里范围内覆盖卓悦汇、皇庭广场、领展中心城等超百万商圈,15分钟车程可达CBD北区繁华商业。
教育:幼儿园梅林小学附属幼儿园、深圳市莲花北幼儿园、深圳市福田区小太阳幼儿园、深圳市第九幼儿园
生态:被塘朗山、梅林山、银湖山环绕,近梅林水库、莲花山公园等,自然景观资源丰富
项目由中粮集团开发,定位为高端商务综合体,总建筑面积约20万㎡,涵盖研发办公、菁英公寓、商业街区多元业态。
建筑规划:
3栋主体:T1(41层)、T2(23层)为研发办公,T3(30层)为配套公寓,含2-3层商业配套。
产权年限:公寓50年(2019年起算),办公物业产权同属工改性质。
产品类型:
公寓:精装交付,建面约49-78㎡,主力为1-2房,层高3.1米,使用率72%,总价区间186-296万。
写字楼:T2栋整栋出售(总建面3.2万㎡,总价约13亿),毛坯交付,标准层面积1829㎡,层高4.2米,适合企业总部。
物业配套:
物业费:公寓6.6元/㎡·月,写字楼19元/㎡·月。
车位:共1400个(公寓600个,办公800个)
如需了解更多详情,欢迎咨询中粮·福田大悦广场售楼处电话400-992-0669,过来我们营销中心看房提前来电预约价格还能更优惠。
中粮·福田大悦广场售楼处400免费咨询/预约电话:400-992-0669,中介勿扰
温馨提示:过来营销中心参观样板间请记得提前拨打售楼处400热线预约,感谢您的配合!
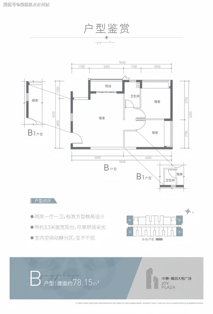
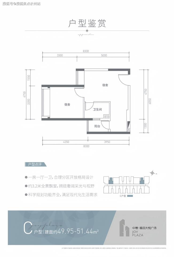
项目公寓户型详情
面积与布局:主推49-50㎡一房及78㎡两房户型,均为精装修交付。户型设计方正,部分带阳台,明厨明卫,兼顾实用性与舒适性。
基础参数
层高:3.1米,空间通透性较好。
梯户比:6梯20户,兼顾效率与私密性。
使用率:约70%-72%,高于市场平均水平。
交付时间:现楼即买即用。
配套优势:公寓位于T3栋,为商办综合体配套宿舍,周边1公里内覆盖地铁9号线、22号线(规划中)及北环大道等交通枢纽,同时毗邻卓悦汇、皇庭广场等商圈,生活便利,中粮福田大悦广场_Vip Tel:400-992-0669 中介勿扰。
A户型:户型布局方正典雅,彰显格调生活,明厨明卫设计,带阳台望城市山林,俯瞰楼下商街繁华,缤纷乐活场景。
B户型:户型布局方正典雅,彰显格调生活,明厨明卫设计,双飘窗带阳台配备,俯瞰楼下商街繁华,缤纷乐活场景。
C户型:整体格局类住宅设计,彰显尊贵感,明厨明卫设计,超大阳台俯瞰万千,空间百变随心,更多美好想象可能。
项目写字楼详情
T1栋研发办公(云端总部)
基础信息
高度:187米,为片区地标建筑。
标准层面积:约2099㎡,主力面积段为486-2107㎡,可灵活分割。
层高:4.2米,空间开阔;柱距达9米,便于布局。
使用率:约66%-70%,高于市场同类产品。
配套设施
大堂:15米挑高设计,面积约1500㎡,彰显企业形象。
电梯:18部高速电梯分区运行,提升通行效率。
生态景观:北向可览梅林山、莲花山等自然景观,南向俯瞰福田CBD。
T2栋独栋总部(整栋出售)
基础信息
总建面:约3.26万㎡,总价约13亿元。
标准层面积:1829㎡,可分割为4本产权证/层。
层高:4.2米,大堂挑高10.8米,面积650㎡。
使用率:71%,配备11部迅达电梯。
核心价值
企业定制:支持楼体冠名、独立大堂及电梯,满足总部形象需求。
融资优势:独栋资产可作为优质抵押物,降低企业融资成本。
交付时间:现楼实景呈现
如需了解更多详情,欢迎咨询中粮·福田大悦广场售楼处电话400-992-0669,过来我们营销中心看房提前来电预约价格还能更优惠。
中粮·福田大悦广场售楼处400免费咨询/预约电话:400-992-0669,中介勿扰
温馨提示:过来营销中心参观样板间请记得提前拨打售楼处400热线预约,感谢您的配合!
中粮福田大悦广场核心卖点
地段与交通
福田CBD北门户:紧邻北环大道,双地铁(9号线梅村站+规划22号线梅丰站),10分钟直达福田CBD、深圳北站及河套深港科创区。
配套资源:步行10分钟覆盖卓悦汇、佐阾虹湾等六大商圈,莲花山、梅林水库环绕,商务与生态兼具。
产品硬实力
甲级地标:T1栋高187米,配备15米挑高大堂、LOW-E玻璃幕墙及71%-75%超高使用率。
智能办公:预装13厘米网络架空地板、18部迅达电梯、24小时中央空调,满足科技企业高效需求。
央企保障
开发实力:中粮集团操盘,物业费19元/㎡(含24小时空调),低于周边30%。
现楼交付:2023年竣工,企业可零等待入驻,产权50年
限时优惠与福利
额外折扣:通过开发商直购可享折上折+内部保留房源,免中介费。
企业补贴:整层购买可申请政府重点企业补贴,并附赠专属车位。
现楼红利:对比周边5万+/㎡二手写字楼,价差红利显著,资产配置性价比高
如需了解更多详情,欢迎咨询中粮福田大悦广场售楼处电话400-992-0669,过来我们营销中心看房提前来电预约价格还能更优惠。
中粮·福田大悦广场售楼处400免费咨询/预约电话:400-992-0669,中介勿扰
温馨提示:过来营销中心参观样板间请记得提前拨打售楼处400热线预约,感谢您的配合!
声明:本文由入驻焦点开放平台的作者撰写,除焦点官方账号外,观点仅代表作者本人,不代表焦点立场。
