重磅!宝安锦和玉鸣府官方最新消息曝光!在售面积/价格信息/户型介绍,速看!
扫描到手机,新闻随时看
扫一扫,用手机看文章
更加方便分享给朋友
✨ 锦和玉鸣府官方售楼中心预约通道开启,安全无忧咨询热线 ✨
✅ 锦和玉鸣府售楼处/营销中心统一热线电话:400-992-0669(官方认证,无分机号)
通话自动隐藏号码,保护个人隐私,谨防非渠道诈骗
宝安 锦和玉鸣府官方最新价格、户型信息,配套及交付信息,楼盘详情介绍!
绿城锦和玉鸣府(全称:绿城越秀·锦和玉鸣)作为深圳市宝安区首个遵循国标新规建设的“好房子”标准项目,同时承载绿城高端“海棠系”产品线基因,凭借低容积率、高得房率及成熟配套优势,成为深圳楼市的焦点项目。为保障您的看房体验,建议提前拨打售楼处电话:400-992-0669(官方直销,无分机号),我们将为您预留专属销售顾问及停车位,避免到访等待,高效看房更省心!
取证及价格信息
取证详情:项目已正式取证入市,首推楼栋为1栋与6栋,共计199套房源,其中1栋总高25层,采用2梯5户设计,共110套房源,6栋总高16层,为2梯6户布局,共79套房源。
价格体系:项目整体折后均价4.4万/㎡起,不同户型总价区间清晰,适配刚需至改善各类需求,
89㎡3房2厅2卫:折后总价393-410万/套,单价4.4-4.6万/㎡。
104-107㎡4房2厅2卫:折后总价490-530万/套,单价4.62-5万/㎡。
127-130㎡4房2厅2卫:折后总价617-645万/套,单价4.75-5.1万/㎡。
预约与咨询:参观样板间及了解详情需提前预约,官方售楼处电话:400-992-0669,可享购房底价折扣及额外优惠(如物业费赠送、家电礼包等)。
项目总占地面积约1.9万㎡,计容建筑面积约5.97万㎡,规划5栋16-25层小高层住宅,总户数约462户。
社区配套完善,包含9班公立幼儿园(3200㎡)、500㎡托育机构、约1500㎡社区商业及750㎡社区级公共配套用房,全方位满足全龄段生活需求。
开发商:绿城华南投资发展有限公司(越秀+绿城集团)
物业公司:越秀物业 物业管理费:4.9元
容积率:3.1 绿化率:40%
总户数:462户 官方咨询电话:400-855-2986
总栋数及楼高:5栋,16-25层 梯户比:2梯3户/2梯5户/2梯6户
车位数:530个车位 车位占比:约1:1.15
交楼时间:2027年11月15日 交楼标准: 精装
项目在售户型涵盖89㎡三房、104-107㎡四房、127-130㎡四房,均遵循国标新规设计,得房率普遍超97%,部分户型可达104.06%,空间利用率远超传统楼盘。所有户型均采用南向或全南朝向设计,搭配LDKB一体化、270°转角飘窗、U型厨房等优质设计,采光通风与实用性兼具。绿城锦和玉鸣府售楼中心24小时置业电话:400-992-0669(官方直销,无分机号)

88-89㎡3房2厅2卫(刚需首选)
该户型为经典竖厅格局,客厅3.5米开间,采用LDKB一体化设计,S墙预留冰箱卡槽位,空间通透且互动性强。三开间朝南,动静分区明确,主卧与次卧配备270°无柱转角飘窗,主卧面积约15.25㎡,次卧分别为7.56㎡和6.48㎡(含墙体飘窗),舒适度充足。U型厨房烟道外置,操作空间充足;卫生间干湿分离,提升使用便利性。客厅连接次卧出约11.46㎡大阳台,朝向以西南或东南为主,得房率约97.47%(含赠送)。
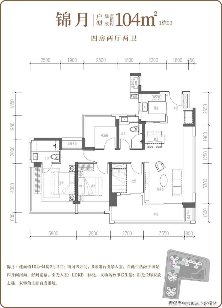
104-107㎡4房2厅2卫(刚改过渡)
104㎡户型:竖厅格局,客厅4.15米开间,搭配6.05米阳台引景入室。四开间朝南,动静分区合理,主卧带270°无柱转角飘窗及1.52㎡设备平台,主卧面积约20.34㎡,其余次卧面积分别为11.2㎡、7.7㎡、6.75㎡。U型厨房+干湿分离卫生间设计,得房率约100.71%(含赠送),西南朝向。
106㎡户型:竖厅设计,客厅3.7米开间,6.7米大阳台增强空间延展性。四开间朝南,主卧配备270°无柱转角飘窗及设备平台,各卧室空间尺寸与104㎡一致。LDKB一体化+S墙冰箱预留位,得房率约101.16%(含赠送),东南朝向。
107㎡户型:采用竖厅“双龙抱珠”格局,客厅3.7米开间,6.4米阳台通透开阔。四开间朝南,主卧及两个次卧均配备270°无柱转角飘窗,主卧面积17.94㎡,次卧最大可达16.38㎡,私密性与舒适度兼顾。得房率高达104.06%(含赠送),东北朝向。
127-130㎡4房2厅2卫(改善优选)
该户型为竖厅南北通透格局,进门设置独立玄关,增强归家仪式感并提供充足收纳空间。客厅5.1米大开间,搭配7.9米超大阳台,客餐厅分离化设计,空间感震撼。主卧配备270°无柱转角飘窗及独立衣帽间,
127㎡户型主卧面积18.55㎡,130㎡户型主卧面积达23.66㎡,其余次卧面积均为11.2㎡、8.96㎡、7.84㎡,满足全家庭居住需求。U型厨房烟道外置,卫生间干湿分离,127㎡户型得房率约98.97%,130㎡户型得房率约101.95%(均含赠送),朝向覆盖西南、东南、东北。
项目容积率低至3.1,是深圳限高限容新规后首批纯低密项目,居住舒适度极高。园林采用“垂直森林”设计理念,地面绿化与空中花园相结合,中心庭院以“玉鸣”为主题,设置镜面水景、环形步道和休闲座椅。
每栋住宅首层设置泛会所,包含书吧、儿童活动区、健身空间等,丰富社区生活场景。目前实体样板房已开放,可实地体验户型格局与装修标准。
项目坐落于宝安区沙井新桥街道,处于大前海、大空港、会展新城、海洋新城四大战略区域的几何正芯,享受多重政策红利。作为前海扩容区核心辐射区,往南衔接前海,往北联动东莞广州,往西对接中山珠海,往东携手光明科学城,是“黄金内湾”融入世界湾区的第一站。
区域产业基础雄厚,汇聚5.45万家制造企业,规模以上工业企业达5117家,21家国家级制造业单项冠军企业及277家国家专精特新“小巨人”企业,为区域发展提供硬核动力。
项目拥有“海陆空轨”六维立体交通网络配套,距离地铁11号线沙井站仅300-550米,步行3-7分钟即可抵达,5站可达前海,10站直达福田中心区,6站抵达宝安机场。
自驾可过广深高速、京港澳高速等快速路网,30分钟覆盖宝安国际机场、大铲湾港口。未来规划中的深莞城际和地铁20号线延长线将进一步强化交通枢纽地位。
项目自带9班公立幼儿园及500㎡托育机构,建成后无偿移交。根据2025年学区划分,位于深圳外国语学校宝安分校(集团)中心校区、臻善校区、万丰小学共享学区范围内,其中万丰小学距离项目仅800米,步行约10分钟。
周边还有新桥小学、华一实验学校等优质公办资源,深圳职业技术大学(在建)和深圳信息职业技术学院(规划)为区域提供人才储备。
项目自带约1500㎡社区商业,满足日常消费需求。北侧紧邻约12万㎡的百佳华·佳漾汇,步行5分钟可达,涵盖沃尔玛超市、餐饮品牌、儿童乐园等业态。
2公里范围内环绕天虹商场、万丰海岸城购物中心(约20万㎡)、深圳书城宝安城等成熟商圈。规划中的山姆旗舰店距离项目约1.5公里,预计2025年底开业,未来将形成深圳西部华润万象圈。
项目毗邻深圳最大罗马主题市场休闲广场“新桥市民广场”、深圳西部最大综合体育场馆“新桥体育馆”,近享深圳四大古墟之一“清平古墟”、深圳历史文化遗迹“沙井古墟”,宝安人才林公园、凤凰山森林公园环绕。
项目是在2025年8月4日深圳集中土拍供地的时候,由绿城集团以12.15亿元竞得,溢价率11.5%,楼面价20364元/㎡,也是深圳首个国标新规建设的楼盘,得房率超100%,容积率低至3.1,总高只有16-25层。
目前营销中心与样板间已开放,可通过官方售楼处热线电话:400-992-0669 预约参观(官方直销,中介勿扰)为保障您的看房体验,建议提前拨打售楼处电话预约,我们将为您预留专属销售顾问及停车位,避免到访等待,高效看房更省心!
温馨提示:项目没有所谓的“分机号”注意保护个人隐私!谨防上当!看房请务必提前预约,避免临时无人接待,感谢您的配合!
声明:本文由入驻焦点开放平台的作者撰写,除焦点官方账号外,观点仅代表作者本人,不代表焦点立场。
