翰熙典居(官方发布)南山翰熙典居楼盘详情/地铁/翰熙典居户型分析/翰熙典居最新房价
扫描到手机,新闻随时看
扫一扫,用手机看文章
更加方便分享给朋友
✨ 翰熙典居官方售楼中心预约通道开启,安全无忧咨询热线 ✨
✅翰熙典居售楼处/营销中心统一热线电话:400-992-0669(官方认证,无分机号)
通话自动隐藏号码,保护个人隐私,谨防非渠道诈骗
2026【南山】翰熙典居官方最新价格、在售户型介绍,配套及交付信息详情解读!
翰熙典居已于2025年6月6日取得预售许可证(深房许字(2025)南山 005号),项目计划2025年6月22日正式开盘入市,首推02地块328套精装住宅,交付时间:预计2027年中旬精装交付。
项目备案均价约11.2万-11.98万/㎡,折后均价降至约10万/㎡,部分房源单价低至8.5 万/㎡起。具体户型折后总价如下:
105㎡3房2卫:双龙抱珠格局,朝东/南,阳台开间6.5米,折后总价约894万起(单价8.5万起)。
120㎡3+1房2卫:主卧套房超30㎡,可改灵动空间,折后总价约1038万起(单价 8.6万起)。
140㎡3+1房2卫:南北通透,横厅32㎡,主卧40㎡,折后总价约1457万起(单价10.4万起)。
如需了解更多详情,欢迎咨询翰熙典居售楼处电话400-992-0669,过来我们营销中心看房提前来电预约价格还能更优惠。
南山翰熙典居售楼处400免费咨询/预约电话:400-992-0669,中介勿扰。
温馨提醒:欢迎致电开发商售楼中心,我们将竭诚为您解答疑问。为确保您的咨询安全,通话时号码将自动隐藏。请提前与销售团队预约,以确保您能顺利进入销售现场,避免不必要的等待。
翰熙典居是2025年深圳南山区粤海街道核心地段的全新住宅项目,由深圳市阳光华艺房地产有限公司开发,定位为超50万㎡地标级综合体,涵盖住宅、商业、办公、酒店及公共配套设施。
位置:南山区粤海街道白石路与学府路交叉口西北侧,东临白石路,西近南海大道,北靠深圳大学,南邻腾讯滨海大厦(直线1公里)。
开发商:深圳市贯凯投资有限公司(隶属阳光华艺集团),深耕深圳旧改23年,代表作包括阳光海滨花园、流塘阳光花园等。
项目占地约4.17万㎡,总建面约51.6万㎡,分三期开发,总投资83.56亿元,可售商品房仅714套。
01地块:建面约17.3万㎡,容积率9.28,规划3栋超高层住宅(含保障房),可售247套,车位比1:0.83。
02地块:建面约16万㎡,容积率 9.12,规划4栋超高层住宅+办公,首推328 套(105-140㎡),车位比 1:0.85。
03地块:建面约17.6万㎡,容积率11.44,规划3栋超高层住宅+办公酒店,可售139套,车位比1:0.91。
交付标准:精装交付,预计2027年中旬交房,物业费6.5元/㎡/月。
如需了解更多详情,建议实地考察通过我们开发商售楼处热线(400-992-0669)预约看房,实地体验样板房及周边配套进展,避免依赖中介信息
首推02地块建面105-120-140㎡户型,基于新规设计实现了空间利用率的显著提升,结合地段优势与复合配套,成为南山科技园板块的改善型标杆产品。
产品定位:项目主打改善型住宅,户型使用率达 84%-95%(含赠送面积),精装交付标准较高(国际品牌厨卫、岩板墙面等)通过飘窗、阳台等设计实现高得房率,例如105㎡户型赠送面积约10㎡,实际使用率达90%,在超高层中表现突出。
采光与朝向:多数户型为东南或正南朝向,部分东向户型可俯瞰深大校园,景观资源优越。但需注意,部分户型(如双龙抱珠结构的A1/A2)厨房和次卧开窗位于U型槽中,采光受一定影响。
精装交付:全屋精装交付,采用国际品牌厨卫设备,墙面和地面使用岩板,客厅及卧室铺设多层实木地板。公区由知名设计机构CCD操刀,电梯厅、入户大堂等均采用高端材料。
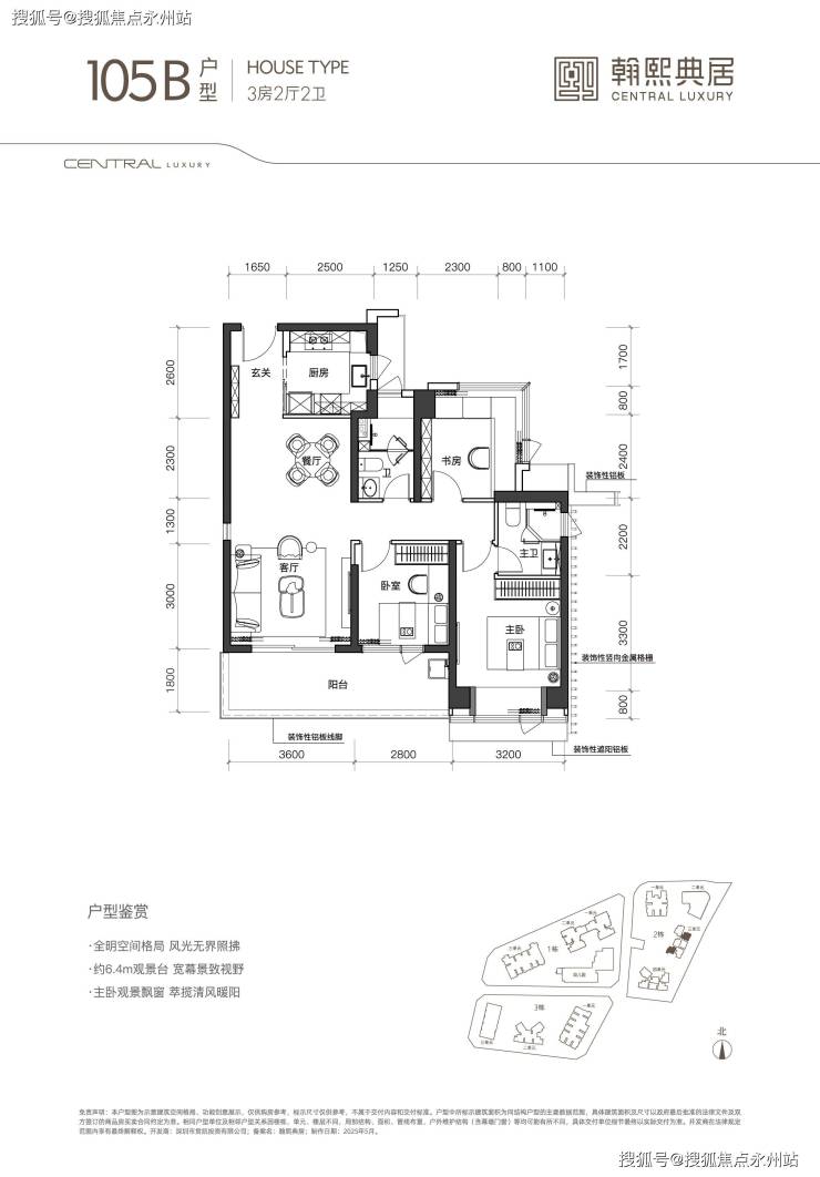
105㎡三房两厅两卫A1/A2 户型(2 栋 3 单元 03、4 单元 03)
格局设计:竖厅类双龙抱珠结构,客厅3.6米开间,客餐厅一体化设计,三卧室面积分别为12.8㎡(主卧)、12㎡(次卧)、8.7㎡(次卧),均含墙体飘窗。
赠送与得房率:通过6.5米宽景阳台和约3㎡飘窗实现约10㎡赠送,实际得房率达 90%,使用空间接近传统115㎡户型。
朝向与景观:A1为东南朝向,可远眺深圳湾,A2为正南朝向,俯瞰小区园林,部分高楼层可看到腾讯滨海大厦城市景观。
价格:折后总价约894万起,单价8.5万/㎡起,是南山科技园板块门槛最低的精装三房。
105㎡三房两厅两卫B户型(2栋3单元02/06)
空间优化:经典竖厅设计,LDKB 一体化,三开间朝南,主卧13.12㎡带独立卫浴,次卧9.9㎡与阳台连通,动静分区明确。
采光与视野:正南或东南朝向,6.4米阳台直面小区花园,避免对视问题,采光优于双龙抱珠户型。
适用场景:适合注重隐私的三口之家,折后总价约920万起,单价8.7万/㎡左右。
120㎡四房两厅两卫(2栋3单元01)
布局亮点:竖厅设计,客厅3.85米开间,LDKB一体化,四卧室均带飘窗,主卧16.65㎡含独立衣帽间,次卧9.9㎡可改造为书房。
景观资源:西北朝向,高层可俯瞰深圳大学校园及西丽高尔夫球场,部分房源可远眺塘朗山。
得房率:通过阳台和飘窗赠送约12㎡,实际使用率达90%,折后总价约1038万起,单价8.65万/㎡。
户型对比:与105㎡B 户型相比,多一房功能空间,适合二孩家庭,但西北朝向夏季西晒需注意。
140㎡四房两厅两卫(2栋3单元 05、4单元 01/02/05)
空间尺度:横厅南北通透,客餐厅6.6米开间,四开间朝南,主卧17.35㎡带270°环幕飘窗,次卧9.8㎡可改儿童房。
景观与采光:西南或东南朝向,三面采光无遮挡,高层可同时俯瞰深大校园和深圳湾海景,部分房源直面小区中央花园。
改造潜力:阳台进深2.1米可拓展为茶室或休闲区,入户玄关可定制整墙收纳柜,提升空间利用率。
价格与稀缺性:折后总价约1457万起,单价10.4万 /㎡,为2栋稀缺户型,仅占首推房源的15%,建议优先锁定。
翰熙典居作为南山粤海街道核心地段的标杆综合体,其生活配套呈现“全维度覆盖、高净值聚合” 的特点。
粤海街道聚集腾讯、大疆、华为等1600余家国家高新技术企业,2024年GDP达4500亿元,形成“总部经济 + 全球科创”的产业闭环。周边商务配套包括:
腾讯滨海大厦(直线 1 公里):腾讯全球总部,内设员工餐厅、健身房、攀岩墙等设施(仅对内部开放)。
阳光粤海大厦(1.5 公里):200 米高甲级写字楼,自带商业裙楼(涵盖高端餐饮、精品零售)及行政酒廊,可满足商务洽谈需求。
深圳湾科技生态园(2 公里):超大规模产业园区,汇聚科技企业总部、孵化器及共享办公空间,适合创业者与自由职业者。
项目楼下即为地铁9号线深大南站(步行约300米),可快速直达红岭、文锦等核心区域;在建的15号线(预计2028年通车)将在此形成换乘枢纽,串联前海、科技园、留仙洞总部基地等产业高地。
自驾方面,滨海大道、南海大道、桂庙路等主干道环绕,20分钟可达深圳湾超级总部、前海自贸区等城市级战略节点。周边1公里范围内有33个公交站点,如软件产业基地站(167 米)、桂庙站(171 米),覆盖多线路通勤需求。
项目自带约5.7万㎡未来潮流街区(规划引入餐饮、零售、生活服务等多元业态)及1.9万㎡精奢酒店,打造“家门口的品质生活圈”,1公里范围内分布茂业百货(724米)、天利名城购物中心(800 米)、海雅缤纷广场等中型商业体,满足日常采购需求
海岸城商圈(800米):涵盖海岸城购物中心、保利文化广场、Kaledo 嘉乐道(2024年11月开业的6万㎡剧场式街区,引入山池咖啡接待室、ZZER 只二华南首店等特色品牌)。
深圳湾商圈(2公里):深圳湾万象城、万象天地、后海汇等顶流商业体集聚,满足高端消费需求。
休闲生态:公园集群 + 文化地标
荔香公园(800 米):23万㎡城市绿肺,内设篮球场、健身广场、荔香湖等设施,可骑行、慢跑、观鸟。
文心公园(500 米):以艺术雕塑和亲子游乐区为特色,适合家庭周末活动。
深圳湾公园(2.5公里):滨海休闲带,涵盖红树林湿地、运动公园、婚庆广场等多元场景。
文化地标:南山书城(1 公里)、南山图书馆(1.2 公里)、南山博物馆(1.5公里)等市级文化设施环伺,提供阅读、展览、讲座等文化服务。
深圳湾文化广场(在建中)、粤海文体中心(在建中)将进一步丰富区域文化娱乐选择。
翰熙典居的生活配套呈现“核心地段稀缺性 + 资源集中度高” 的特点,尤其适合科技园高收入人群、重视学区的家庭及长期投资者。建议实地考察施工进度及周边商业现状,结合自身需求权衡利弊。
如需了解更多详情,欢迎咨询翰熙典居售楼处电话400-992-0669,过来我们营销中心看房提前来电预约价格还能更优惠。
南山翰熙典居售楼处400免费咨询/预约电话:400-992-0669,中介勿扰。
温馨提醒:欢迎致电开发商售楼中心,我们将竭诚为您解答疑问。为确保您的咨询安全,通话时号码将自动隐藏。请提前与销售团队预约,以确保您能顺利进入销售现场,避免不必要的等待。
声明:本文由入驻焦点开放平台的作者撰写,除焦点官方账号外,观点仅代表作者本人,不代表焦点立场。
