揭秘!深圳龙华「鸿荣源尚云」官方最新消息,具体价格!户型解析请看以下图文!
扫描到手机,新闻随时看
扫一扫,用手机看文章
更加方便分享给朋友
✨ 鸿荣源尚云官方售楼中心预约通道开启,安全无忧咨询热线 ✨
✅鸿荣源尚云售楼处/营销中心统一热线电话:400-992-0669(官方认证,无分机号)
通话自动隐藏号码,保护个人隐私,谨防非渠道诈骗
龙华鸿荣源尚云官方最新价格、户型信息,配套及交付信息,楼盘详情介绍!
⬛◾深圳鸿荣源尚云花园⬛◾龙华鸿荣源尚云
⬛◾深圳鸿荣源尚云售楼处电话:400-992-0669【☎售楼处已认证】⬛◾
⬛◾深圳鸿荣源尚云售楼中心电话:④⓪⓪-⑨⑨②-⓪⑥⑥⑨【☎展示中心已认证】⬛◾
⬛◾深圳鸿荣源尚云营销中心电话:400-992-0669【☎售楼处已认证】⬛◾
⬛◾深圳鸿荣源尚云销售中心电话:④⓪⓪-⑨⑨②-⓪⑥⑥⑨【☎售楼处已认证】⬛◾深圳鸿荣源尚云
深圳鸿荣源尚云开发商售楼处24小时电话:400-992-0669(售楼部)楼盘详情介绍:房价、价格、折扣、学区、学校、地铁、交通、户型图、备案价、特价房、优缺点、得房率、优惠活动、小区图片、开盘时间、交房时间、周边配套、售楼处位置、最新详情等咨询;
龙华超级商圈·双地铁口·准现楼红盘「鸿荣源尚云」82-120精装3-4房,今年买,今年住。项目位于龙华超级商圈壹方天地旁,区域配套设施完善,临近上塘-红山片区。计划在2025年12月之前带精装交房。鸿荣源尚云_Vip Tel:400-992-0669 中介勿扰
项目在2023年7月21日首次获批预售,首次推出「鸿荣源尚云·南区」面积段有82-89-90-109-120㎡的住宅3-4房,备案均价6.8万/㎡,备案单价6.26-8.07万/㎡,总价在516-900万/套。
后于2024年3月1日再次取证,加推北区2栋1/2单元,共612套房源,面积82㎡的3房2厅1卫,89㎡的3房2厅2卫户型,备案均价6.21万/㎡,备案单价5.53-6.69万/㎡,总价459-601万/套,
现在可享受备案价*99*99*99*97折优惠,综合下来约94.11折,折后下来均价5.84万/㎡,折后单价5.21-6.29万/㎡,总价在432-565万/套。相对于南区,这次推出来的北区整体价格下调了近50万/套。(深圳鸿荣源尚云售楼处电话:400-992-0669)
82㎡-3房2厅2卫,设计的是竖厅南北通透格局,客厅3.3米开间,3个卧室分别是3米/2.6米/2.4米的宽度,主卧南北通透设计,L型厨房,得房率:75.42%(不含赠送),01户型是西北朝向,07户型是东北朝向。
89㎡-3房2厅2卫,设计的是经典竖厅格局,客厅3.4米开间,三开间朝南,3个卧室分别是3米/2.8米/2.4米的宽度,L型厨房,得房率:75.42%(不含赠送),02-03户型是东南朝向,05.06户型是西南朝向。
90㎡-3房2厅2卫,仅3栋2单元02户型,设计的是经典竖厅格局,客厅3.8米开间,三开间朝南,3个卧室分别是3.2米/2.95米/2.85米的宽度,L型厨房,得房率:75.97%(不含赠送),东南朝向。
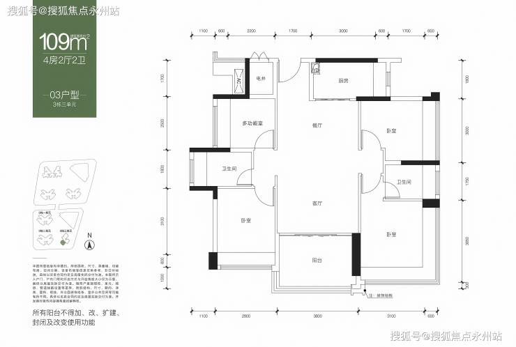
109㎡的4房2厅2卫,仅3栋3单元的01户型,设计的是横厅南北通透格局,客餐厅5.5米开间,4个卧室分别做到了3.7米/2.775米/2.55米/2.4米的宽度,L型厨房,得房率:75.98%(不含赠送),阳台主朝西北向。
109㎡的4房2厅2卫,仅3栋3单元的03户型,设计的是竖厅双龙抱珠格局,客厅3.8米开间,4个卧室分别做到了3.1米/3米/2.9米/2.5米的宽度,L型厨房,得房率:75.98%(不含赠送),西南朝向。
120㎡的4房2厅2卫,设计的是竖厅竖厅格局,客厅4米开间,4个卧室分别做到了3.3米/2.85米/2.5米/2.45米的宽度,L型厨房,得房率:75.34%(不含赠送),西南朝向。
项目占位龙华超级商圈核芯,壹方城旁,紧邻9年一贯制学校,以“城无界,自从容”为理念,打造集住宅、办公、商业于一体的高品质住区,位于龙华超级商圈壹方天地旁,距离地铁4号线龙华站约1.1公里,步行约15分钟,区域配套设施完善
项目基本信息
【占地】:约3万㎡ 【建面】:约27万㎡
【产权年限】:70年(2022-2092)
【总栋楼】:共8栋 【总户数】:1278户
【面积】:约82-89㎡3房2卫 【总楼层】:54-57层
【使用率】:85% 【梯户比】:3梯6户
【停车位】:1732个 售楼热线:400-992-0669
【交房标准】:简装 【交房时间】:2025年12月前
【管理费】:5.9元 【物业管理】:鸿荣源物业
【开发商】:鸿荣源集团开发
更多详情,欢迎咨询鸿荣源尚云售楼处电话400-992-0669,过来我们营销中心看房提前来电预约价格还能更优惠。
鸿荣源尚云售楼处400免费咨询/预约电话:400-992-0669,中介勿扰
温馨提示:过来营销中心参观样板间请记得提前拨打售楼处400热线预约,感谢您的配合!
鸿荣源尚云以“城无界,自从容”为理念,打造集住宅、办公、商业于一体的高品质住区
唯一核心地段:龙华区政府推动打造,全国级商圈“龙华国际商圈”
唯一超大规模:超200万商业集群,重塑商业格局,未来前景可期
唯一密集路网:坐拥6条地铁线(含建设中),家门口双地铁(景龙站、油福站)
唯一旗舰商业:60万平‘壹方天地,超千家品牌,全国客流Top1
唯一王炸产品:市场王炸户型,82平做3房2卫,主卧南北通透
唯一实力品牌:2023年深圳更新商品房销售金额/销售面积双冠王
龙华超级商圈,世界级消费中心:龙华六大重点片区之一,以人民路为中轴,规划承载中洲龙商旧改、龙华海岸城旧改为核心,打造人民路龙华超级商圈。
世界级消费中心:未来龙华超级商圈将成为规模超200万㎡、产值超500亿的市级核心商圈和世界级未来消费体验中心。
多维联通,站城一体:通过探索地下+地面+地上多层立体交通网络,打造无界都市生活圈。
千万级旧改汇聚,品牌房企布局:鸿荣源、中洲、卓越、华润、华侨城等品牌开发商抢滩登陆龙华中心,区域定位以及发展潜力得到了各大优质开发商的一致认可。
龙华商业中心旧改、海岸城旧改、华润上塘旧改、德业基旧改四大百万级旧改汇聚,打造龙华区规模最大、业态最全、档次最高的居住区域
鸿荣源前瞻落子,龙商旧改首发:百万级旧改蓄势,世界级商圈落位。鸿荣源抢占城市发展先机,率先布局,打造龙华商业中心城市更新单元首发人居臻品。
六地铁汇聚,打造全新城市枢纽
4号线(已开通):龙华站直线距离约1000m,深圳纵向城市交通中轴。
6号线(已开通):上芬站距离约1200m,链接光明、龙华、福田。
25号线(建设中):景龙/油福站直线距离约400m,打通城市东西走向核心动脉。
27号线(建设中):油福站直线距离约400m,拥抱前海,覆盖各大高新人才聚集地。
22号线(建设中):油松站直线距离约1km,连接福田-龙华各大核心产业区。
15min醇熟生活圈,路网纵横,一站式生活体验
龙华对标福田南山,各项市政配套、高端生活配套、生态配套及交通配套等目前均处在成果兑现期,未来将打造成为全新的城市级服务中心。
3km内,包含红山四馆、深圳书城、龙华文体中心、文化艺术中心、简上体育馆、龙华文化广场、文化馆新馆等多元文体配套环伺。
通过福龙路、新彩隧道、沈海高速、梅观高速等城市主干道,可直达福田、罗湖、南山以及关外各个区域,已形成醇熟便捷的深圳生活圈。
约60万㎡旗舰商业,省级示范商圈
深圳最大体量城市集群型商业,云集超1000家品牌商家,其中网红轻奢餐饮超50家、品牌美食超90家、娱乐潮玩超20家、国际一线美妆超20家、潮流服饰超300家。
项目自带约1.25万㎡商业,对面就是深圳最大商业综合体60万㎡的鸿荣源壹方天地购物中心,内含1000米华南最长商业步行街,ABCDE五大主题商业区,超1000家品牌商家,开车10分钟可达天虹购物中心、红山6979、Costco、AT MALL上塘荟等大型购物中心。
作为全国引领级商圈之一的龙华超级商圈,壹方天地成为“核心中的核心”,不仅是商圈内最大体量的综合体,更以首店经济、夜间经济、赛事经济、展会经济、儿童经济、微旅游经济等六大发展体验业态,成为龙华乃至深圳展示商业形象的主要窗口,不断引领城市消费的新风向。(深圳鸿荣源尚云售楼处电话:400-992-0669)
临近九年一贯制学校,目送式上下学:项目一路之隔即为九年一贯制学校,目送式上下学,定位示范性国际化学校,全校可提供学位2520个,2023年已开始招生。
小学学区划分在龙华区第二实验学校小学部,人民路学校小学部,华育小学,作为小学共享学区,中学学区划分在人民路学校初中部,龙华区第二实验学校初中部,作为初中共享学区。
家门口的龙华实验高级中学集团民治学校(在建),该校是一所54班学校,小学36班,初中18班,将提供2520个学位,小学1620个,初中900个,未来也将划入尚云花园学区范围内。(深圳鸿荣源尚云售楼处电话:400-992-0669)
附近有德逸公园,龙塘公园,绿廊公园,北站中心公园,西头社区公园,油松滨水公园,龙胜公园,阳台山森林公园,龙华公公园,黄金山公园,清华文化公园等
开车10-15分钟可达红木山水库、红木山郊野公园,生态绿氧环绕。政府斥资16亿打造生态绿谷之城,全长9公里的绿谷景观轴,中轴景观地标。
鸿荣源尚云医疗配套环伺,健康养老有“医”靠
新华医院(在建中):深圳市首座超大型医疗综合体总建筑面积50.9万平方米,规划床位2500张是一家集医疗、科研、教学为一体的三级甲等综合医院。
深圳第二儿童医院(在建中):总建设用地面积约40072.95 m2,规划床位1500张集儿科医疗、教学、科研、健康体检于一体定位为区域性中心医院,服务范围辐射深圳全市。
鸿荣源尚云(深圳龙华)
更多详情,欢迎咨询鸿荣源尚云售楼处电话400-992-0669,过来我们营销中心看房提前来电预约价格还能更优惠。
鸿荣源尚云售楼处400免费咨询/预约电话:400-992-0669,中介勿扰
温馨提示:过来营销中心参观样板间请记得提前拨打售楼处400热线预约,感谢您的配合!
声明:本文由入驻焦点开放平台的作者撰写,除焦点官方账号外,观点仅代表作者本人,不代表焦点立场。
