中心天元(2025年中心天元)首页网站|中心天元最新房价|小区规划-户型配套
扫描到手机,新闻随时看
扫一扫,用手机看文章
更加方便分享给朋友
福田【中心天元】售楼处24小时电话:400 992 0669(开发商直销)现场详细解答丨项目介绍丨户型图丨在售房源丨特价房丨学校丨交通位置丨样板房丨小区图片丨交房时间丨周边配套丨
项目是由金地、卓越、大百汇三大投资商投资建设的城市综合体,占地约22万平米,建筑面积约140万平米,包括约29万平米商业——one avenue,800米中央大街,两座超甲级写字楼——金地中心、大百汇广场,城市豪宅——岗厦天元花园,文天祥学校,文天祥纪念馆,设计艺术中心等部分。每个部分都由国际顶级设计团队操刀设计,包括KPF、SOM、Aedas、Lasivt、NEO、SWA、LPA、凯里森等大师团队,可谓是世界上独一无二的孤品级艺术作品。
岗厦天元花园是其中的城市豪宅部分,总建面约21万平米,由7栋约150米高的超高层建筑组成,目前在售为楼王T7。售楼部_Vip Tel:400-992-0669 中介勿扰

项目位于福田CBD核心区域,占地面积约22.3万㎡,总建筑面积约140万㎡,共由6栋住宅与公寓组成,总套数约795套,产品面积主要以200-450㎡的超高层大平面户型为主。
其中包含了约21万㎡住宅及公寓;约17万㎡2栋甲级写字楼;30万㎡都会商业;超过7500个停车位。
单从体量上看,该项目既是福田区重点城市更新项目,也是深圳中心区规模最大的商业综合体项目。
项目位于深圳中心综合体位于深圳中心区核心地段,占据整个中心区的1/9,汇聚了8条地铁线路,2大综合交通枢纽(其中福田高铁站距项目700米,方便快捷抵达香港西九龙,可直达北京,一天通达全球)
中心天元位于福田CBD核心区域,深圳市中心,虽然深圳是多中心布局,但是福田无论是从地理位置、配套资源还是经济政治上都有无可替代的地位。

这里汇集了10所市级政府机关单位、353家总部企业、98家世界500强、86座纳税过亿楼宇。以深交所为核心,全市67%持牌金融机构总部,近六成外资银行机构、六成头部券商汇聚于此,构建中国三大金融聚集地之一。政治、经济、文化全方位布局,全面发展,拥有深圳顶级资源。

在寸土寸金的都会中心,深圳中心·天元北望莲花山公园,南瞰深圳湾,东看地王大厦、京基100,近览平安金融中心、市民中心、深交所……连绵起伏的城市地标成为一幅映照屋脊的“动画”,他人追寻的独家风景,不过是中心人物每天从容尊享的生活日常。
坐拥高档住宅、奢华公寓、两栋甲级写字楼和约29万㎡“街区+购物中心”体验式高端商业——One Avenue卓悦中心以及世界级城市会客厅,深圳中心·天元兑现着独属于城市中心之地的极致繁华。
中心天元_售楼部_Vip Tel:400-992-0669 中介勿扰
户型鉴赏1栋C座39-40F
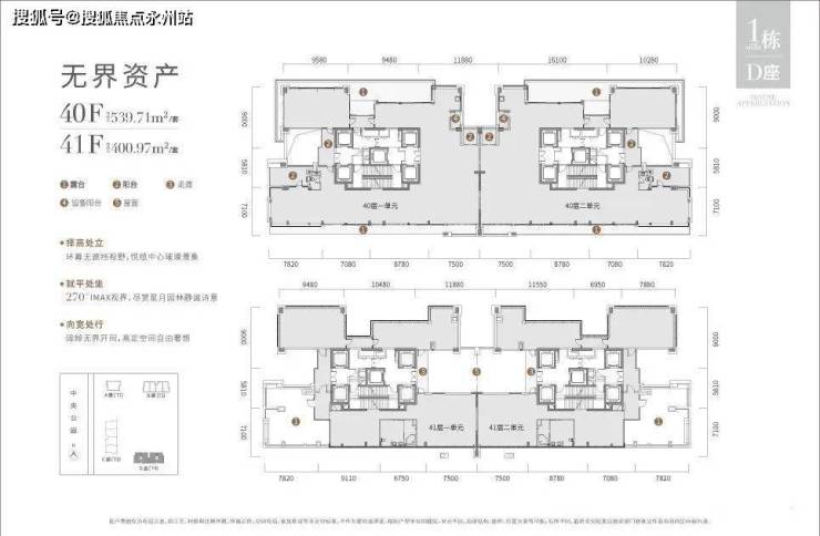
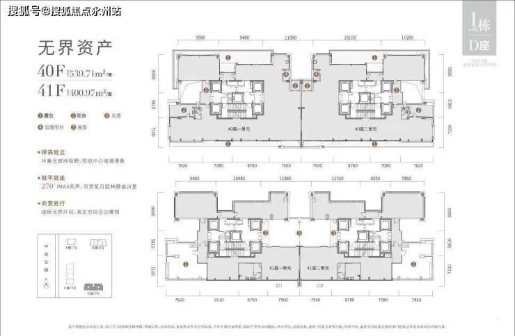
1栋D座40-41F
深圳中心天元售楼处电话:400-992-0669 (1对1专线)欢迎咨询最新动态、房价、在售房源、交楼时间等信息,“请务必注意”甄别,我们营销中心只有一个号码,不需要转换分机。
看房请务必提前预约,避免临时无人接待, 感谢您的配合!
福田·中心天元欢迎您-预约看房,置业顾问一对一对接在售户型图丨项目介绍丨房源丨_周边配套丨详细解答
温馨提示:项目没有所谓的“分机号”注意保护个人隐私!谨防上当!看房请务必提前预约,避免临时无人接待,感谢您的配合!
声明:本文由入驻焦点开放平台的作者撰写,除焦点官方账号外,观点仅代表作者本人,不代表焦点立场。
