京基宸悦府首推多少套(深圳)京基宸悦府折后多少_福田京基宸悦府 欢迎您
扫描到手机,新闻随时看
扫一扫,用手机看文章
更加方便分享给朋友
京基宸悦府首推多少套(深圳)京基宸悦府折后多少_福田京基宸悦府 欢迎您
福田梅林,京基宸悦府推出402套商品房,梅林片区已经有12年没有新房入市了,价格方面仅作参考预计折后在9万左右/㎡,目前营销中心暂未开放,同期附近还有新世界上梅林雅苑在建,也会推出704套房源
京基宸悦府总建面约22万㎡,推售建面约85-143㎡舒适2-4房住宅,是福田中轴之上为数不多的项目
京基宸悦府_开发商售楼处_Vip Tel:400 992 0669 (中介勿扰)

京基宸悦府,位于福田区梅林街道上梅街与祠堂西街交汇处东南侧,原是上梅林村城市更新单元二期,该旧改历经多年终于盼到了建房,在上梅林片区来说,该地区已经整整有12年没有新房入市了,上次开盘的住宅新盘还是2012年的御锦公馆;
从大区域来看,京基宸悦府,北侧约300米是梅林公园,南侧约600多米是莲花山公园,东侧约2公里是笔架山公园,可以看出周边公园配套极其丰富,非常宜居。
从小区域来看,京基宸悦府,东侧紧挨着梅丽小学,北侧是梅林四村,西侧是大片的上梅林新村,南侧紧挨着百兴苑,周边都是以老旧楼龄的小区或者民房为主。

项目由京基集团开发,总占地面积约1.99万㎡,总建筑面积约23万㎡,计容建筑面积约17.1万㎡,容积率8.63,绿化率31.5%,共由4栋48层住宅组成,分别是1栋/2栋1/2单元/3栋,另外4栋是商务公寓45F,5栋是1所6班制幼儿园。
总规划有1011户,其中商品房有402户,回迁房有609户,回迁房比例占到60%,地下3层,停车位1266个(车位比1:1.25)。
其中402套商品房当中,套内建筑面积<90㎡的有378套,套内建筑面积>90㎡的有24套。
京基宸悦府_开发商售楼处_Vip Tel:400 992 0669 (中介勿扰)

地铁配套:4/9号地铁线交汇站“上梅林站”,距离约300米,另外有22号地铁线”凯丰站“在建设中,距离约1公里,该线路全线长34.7公里,起自福田上沙站,途径龙岗区,止至龙华黎光站,设站21座,时速100公里。
商业配套:项目自带9000㎡底商,约300米距离有新世界百货,约400米距离有卓越汇购物中心,在地铁4站范围内还有深圳购物公园,卓越中心,领展中心城,深业上城等诸多商业街区。
学校配套:项目自带1所6班幼儿园,根据2023年福田教育局学区划分,京基宸悦府所在的区域,小学学区划分在楼下的梅丽小学,初中学区划分在福田区实验教育集团翰林学校(初中部)。

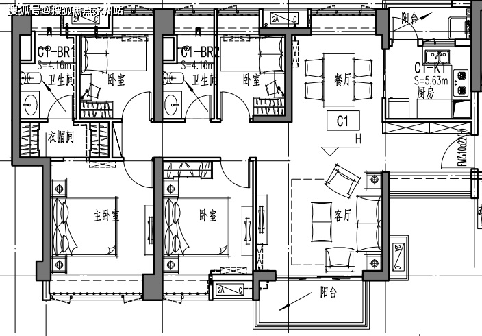
建面约110㎡3房2厅2卫:
这个户型南北通透,几乎每个空间都形成对流,舒适度被拿捏到极致。

通透尺度双阳台,让景观面在视觉上达到最佳的同时,晾晒等实用性功能也被进一步扩展。
动静分明,生活从容,如果你想要“极致舒适感”,这就是一个理想之选。
建面约130㎡4房2厅2卫:
同样是稀缺双阳台设计,但这个户型尺度再度被优化放大,开阔全明玄关,轻松惬意从归家就开启。

阔朗全明清风流畅的南北通透格局,也让整个空间更加明亮通透、灵动。
平时在阳台,享无界畔山视野,此时阳台外自然美景都在为你所动,目之所及皆是欢喜。
要知道梅林住宅稀缺,有强劲品牌加持、品质打造如此给力的住宅更是绝无仅有。
如需了解更多关于我们楼盘最新消息、剩余房源、折扣优惠活动、近期房价走势等情况,欢迎咨询深圳罗湖京基宸悦府开发商售楼处咨询/预约电话:400 992 0669 中介勿扰
声明:本文由入驻焦点开放平台的作者撰写,除焦点官方账号外,观点仅代表作者本人,不代表焦点立场。
