深圳宝安会展湾雍境花园66㎡/79㎡/89㎡/110㎡2-4房户型图鉴赏!
扫描到手机,新闻随时看
扫一扫,用手机看文章
更加方便分享给朋友
宝安【会展湾雍境花园】招商雍境花园开发商售楼处电话:400-992-0669(中介勿扰)
来电可了解楼盘最新动态、房价、在售房源、交楼时间等信息!让你买的放心,住的舒心!
招商会展湾雍境花园开发商售楼处直销_欢迎来电预约享受内部折扣_恭迎品鉴
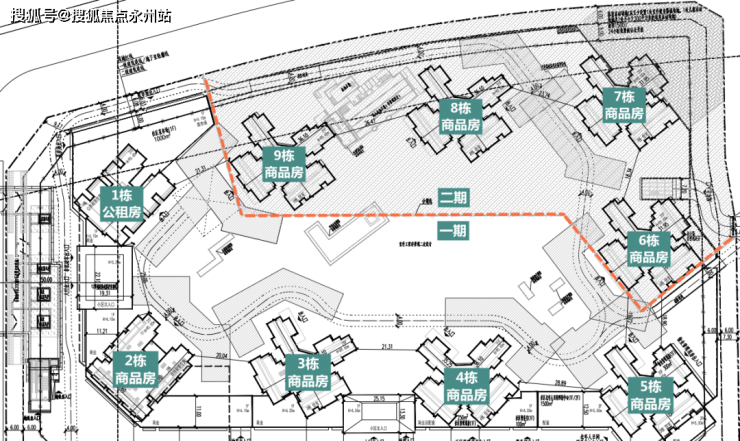
项目位于深圳市宝安国际会展片区的招商A301-0586宗地取名为—会展湾雍境花园,项目由9栋28-31层住宅围合组成,普通商品房源有1331户,毛坯限价4.79万/㎡,

项目简介
会展湾雍境花园前身原为宝安沙井A301-0586宗地,在2022年8月4日的深圳第二轮集中供地上,由招商以31.02亿+竞配1.9万平拍下,在拍下的当天,项目就已经动工。

根据规划,会展湾雍境花园总建筑面积154163㎡,计容建面86867㎡,其中住宅80896㎡,商业1500㎡,公共配套设施3150㎡,机动车位1908,容积率4.08,由9栋建筑主体组成,总房源2043户(含712户保障房),可售房源有1331套,项目分为一二期开发,其中一期由1/2/3/4/5栋组成,其中1栋为公租房(靠近地铁),2-4栋均为商品房,共1263户(含保障房712户);二期由6/7/8/9栋组成,共780户,二期均为商品房。

户型鉴赏
建面约66㎡ 2房2厅1卫:南北通透,全凸窗设计,开放式U型厨房

建面约79㎡ 3房2厅1卫:南北通透3房,功能分区合理,全凸窗设计,三分离卫生间

建面约89/90㎡ 3房2厅2卫(竖厅):南北通透3房,全凸窗设计,动静分区合理


建面约89/90㎡ 3房2厅2卫(横厅):经典宽阔横厅打造,客餐厅一体化设计,通风采光俱佳,全凸窗设计


建面约110㎡ 4房2厅2卫:设阔尺度横厅打造,阔绰景观阳台,动静分区合理,U型厨房操作使用,居住舒适度高。

招商会展北项目效果图
项目所在片区的规划相对较多,离地铁近,楼下就是12号线的海上田园南站,算得上是地铁口,但目前所在片区正在开发中,整体配套不足,商品房极少,缺乏各项生活配套,相对荒凉,居住舒适度较差,加上周边也没有什么学校,需要等规划中的。

54班九年制学校和36班小学,而这些配套需要一个较长的时间周期去兑现。
同片区还有十月份入市的恒兴御景园和待入市的云海臻府,这两个项目的房源体量加起来都有一千套房源,加上会展湾雍境花园的1300多套房源,按照当下的行情,展湾雍境花园如此大体量的项目预计会有一定的营销手段和折扣优惠,要不然会有一个较长的去化周期。
恒兴御景园在今年10月初入市,直线距离会展湾雍境花园约一公里左右,其推售532套房源,面积段64-182㎡,备案均价4.79万/㎡(毛坯),冻资入围157批,据了解,开盘当天销售113套房源,但恒兴御景园距离地铁比较远,前往12/20号线的国展北步行距离约2.3公里左右。
会展湾雍境花园南侧的云海臻府总房源有1448套,其中商品住宅有744套房源,面积段105-120㎡,毛坯限价4.61万/㎡。
两个项目一南一北紧挨着,周边整体配套都相同,但招商会展北项目限价4.79万/㎡,而云海臻府限价4.61万/㎡,从价格上来看,云海臻府更具有价格优势,两者之间单价相差1800元/㎡,以一套面积100㎡房源为例,云海臻府总价为461万,招商会展北总价为479万,总价相差18万左右。


交通地铁:项目最近地铁为刚开通运营的12号线海上田园南站,算得上是地铁盘,12号线起于南山区左炮台东站,止于宝安区海上田园东站,将在本月底开通,此外,项目直线距离已开通的20号线会展城站约750米左右。


教育资源:项目周边目前并无教育资源,不过项目周边规划有3所学校,其中包括2所九年一贯制学校,但目前尚未有看到相关动工迹象。
商业配套:项目自带部分体积,但体量相对较小,目前整个片区并无商业配套,周边多为建设施工中地块,整体商业氛围较差,后期有冰雪文旅城(在建)商圈。
文娱配套:项目周边有海上田园、深圳冰雪文旅城(在建),其中海上田园位于项目的北侧,距离相对较近,直线距离深圳冰雪文旅城约600米左右。
区域展望:
项目位于宝安沙井国际会展中心北部,邻近建设中的 12 号线海上田园南站,受深圳国际会展中心、海洋新城两大重要规划。示意图


项目旁边就是深圳国际会展中心。地块与融创华发深圳冰雪文旅城项目(开发单元二)地块相邻,文旅城将作为未来项目联系最为紧密的配套。
户型多选择,有小户型,会展新城少有的新盘,12号线地铁约200多米,海上田园也近,限价4.79万,周边空地较多,好规划。
如果看完以上关于我们宝安会展湾雍境花园项目的介绍后,您还对如下问题想要深入了解的话:
问题如:最新推出的房源备案价格,小区在售的有多少栋楼,各个楼栋户型具体是什么朝向,每一层楼规划的是几梯几户,这一期卖的房小区里面有多少户,容积率多少,楼栋总共多少层,现在卖的户型具体交楼时间,这几种户型剩下的还有那些,小区门口离地铁近吗,该社区是怎么划分学校的,可以申请哪些小学和初中,交房后物业费怎么收?物业管理费每平米每月多少元,交房是精装修还是毛坯,停车位够吗?停车位有多少个?,小区周边未来有什么规划,楼盘展厅、营销中心在哪里?具体什么时候开盘?开盘多少钱一平米,周边配套,楼盘详情,值得买吗,潜力升值如何,升值空间大不大,营销中心地址怎么导航,坐地铁到哪个站下车过来楼盘比较近,周边近期有什么规划,周边商业配套怎么样,拿地批地时间,这几天楼盘现场最新优惠活动情况等。
建议您可以拨打我们楼盘内场400免费咨询电话与售楼处现场销售直接了解。
招商会展湾雍境花园开发商售楼处电话: 400-992-0669(中介勿扰)
来电可了解楼盘最新动态、房价、在售房源、交楼时间等信息!让你买的放心,住的舒心!
温馨提示:项目没有所谓的“分机号”注意保护个人隐私!谨防上当!看房请务必提前预约,避免临时无人接待,感谢您的配合!
免责声明🔉:
以上所发布的关于深圳会展湾雍境花园楼盘相关图文信息仅供您买房前参考,以上所有关于本楼盘的图文资料及说明请以最终以项目批文及双方在楼盘营销中心现场签署的买卖最终合同为准;本图文内容如无意中侵犯到某方权益,请联系我们将会及时处理。
声明:本文由入驻焦点开放平台的作者撰写,除焦点官方账号外,观点仅代表作者本人,不代表焦点立场。
