2025松茂御城售楼处(光明松茂御城)首页网站|松茂御城欢迎您-楼盘详情-备案价-交楼时间-容积率
扫描到手机,新闻随时看
扫一扫,用手机看文章
更加方便分享给朋友
松茂御城项目位置:深圳市光明区·13号线月亮路站西侧
光明凤凰塘尾【松茂御城二期】已于2025年8月28日取证入市,本次拿证1栋A座-H座,共874套房源,面积有81㎡的3房2卫,89-109㎡的4房2卫,135m²的5房2卫户型,备案均价4.42万/m²,备案单价3.79-5.09万/m²,总价在304-685万/套,预计在2027年2月份带精装交付,不过合同约定是在2026年底,是为了保证26年业主们申请学位问题,另付送装修协议到27年2月份。
到访预约优惠:提前通过开发商售楼处电话预约看房(400 992 0669),可享专车接送+折上98折+额外家电礼包(限量房源先到先得)
预售证取得时间:二期(雅苑)已于2025年8月27日取得预售许可证,8月28日开放实体样板房,8月28日启动认筹,计划9月初正式开盘入市。
备案价格:备案均价约4.44万/㎡,但实际销售折扣力度显著,折后单价低至3.2万/㎡起,总价280万起即可入手精装三房。
81㎡三房两厅两卫:折后总价280万起,单价3.2万 /㎡起(原备案价约4.44万/㎡,折扣率约7.2折)。
89㎡四房两厅两卫:折后总价317万起,单价3.56万/㎡起。
135㎡五房两厅两卫:折后总价420万起,单价3.11万/㎡起(备案价约4.44万/㎡,折扣率约7折)
松茂御城位于深圳市光明区公明街道松白路与碧塘路交汇处,由深圳市松茂房地产集团有限公司开发,是集住宅、公寓、商业于一体的综合体项目。(深圳光明松茂御城售楼处电话:400 992 0669)
项目总占地面积约4.53万㎡,总建筑面积约29.78万㎡,分两期开发,共规划13栋高层建筑,容积率4.67,绿化率40%,总户数2130户,车位比约1:1.09。
二期为纯商品房社区(无回迁房),由8栋31-32层住宅组成,总规划1225 户,得房率高达100%,是光明区目前得房率最高的楼。
松茂御城二期以“光明户型天花板”为核心竞争力,通过极致空间设计与实用功能的结合,打造了覆盖全生命周期的居住方案。
首推1栋B/G/H/E 座共333套房源,主力户型为81-135㎡三至五房,涵盖81㎡三房(280万起)、89㎡四房(317万起)、135㎡五房(420万起)
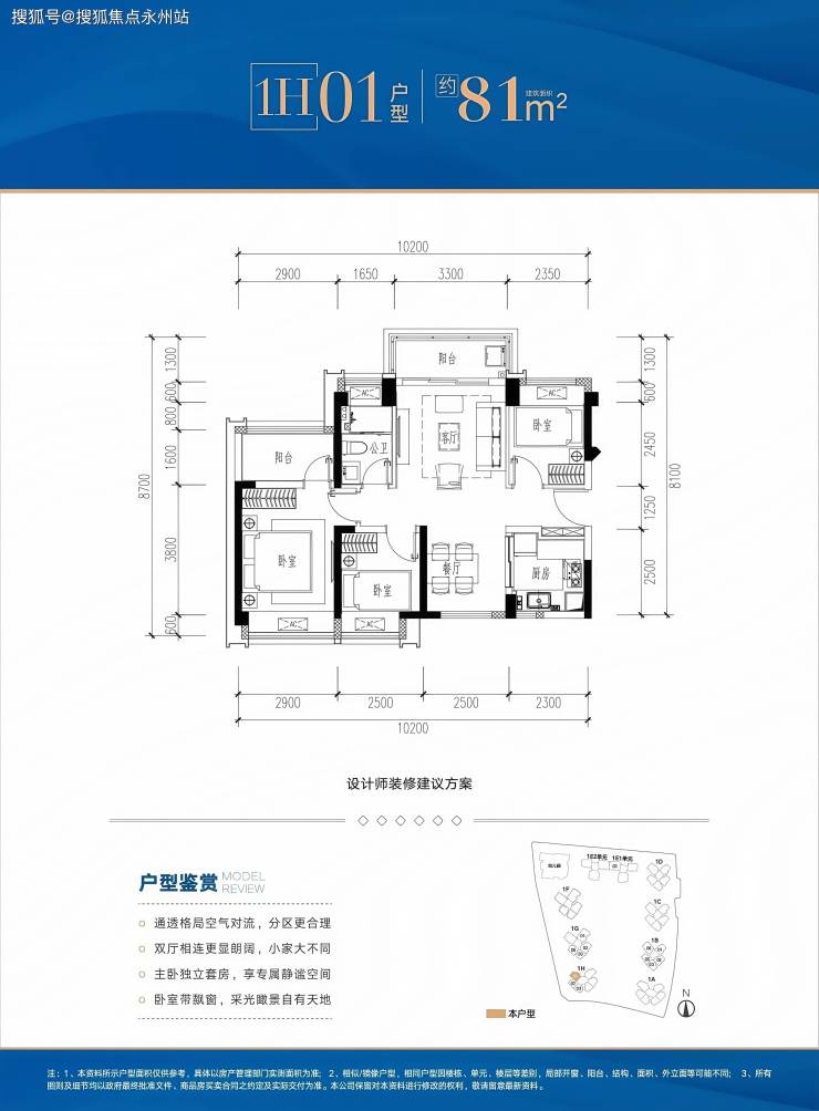
建面约81㎡三房两厅两卫(实用率93.49%)
空间设计亮点:零公摊魔法,通过凸窗全赠送(约4.29-5.61㎡)与阳台半赠送设计,实际使用面积与建面相等。以1H栋01户型为例,套内面积64.48㎡+ 赠送 11.25㎡,实用面积达75.73㎡,相当于同区域传统户型的95㎡空间。
南北通透版:竖厅设计,三开间朝南,主卧套房带独立卫浴,客卫干湿分离,阳台东北向直面社区园林,采光通风俱佳。厨房采用 U 型布局,预留双开门冰箱位,动线流畅。
经典竖厅版:东南向阳台俯瞰花园,玄关可增设家政柜提升收纳效率。适合首次置业的年轻家庭,总价280万起即可入手。
细节优化:次卧飘窗可拓展为书桌,主卧 L 型飘窗增加采光面,部分房源通过改造可实现“3+1”房功能。
建面约89㎡四房两厅两卫(实用率96.48%)
功能革命突破:四房格局创新,突破常规89㎡三房设计,通过赠送阳台(约6.43㎡)与设备平台,实现四房布局。以1B栋01户型为例,套内70.85㎡+赠送15.02㎡,实用面积达85.87㎡,可灵活改造为“3+1”房,满足二孩家庭或三代同堂需求。
双阳台配置:生活阳台连通厨房,可放置洗衣机与杂物柜;景观阳台开间3.5米,可改造成阳光书房或榻榻米茶室。主卧套房带步入式衣帽间与独立卫浴,L 型飘窗设计提升居住私密性。
对比优势:较同区域华润润臻园 89㎡三房,多出 1 间房且总价低约 20 万,性价比显著。
建面约109㎡四房两厅两卫(实用率94.67%)
改善型全能户型:南北通透格局,客厅开间3.9米,双阳台设计实现“生活+景观”分离,主卧套房带270°转角飘窗,可将园林景观尽收眼底。套内86.77㎡+赠送16.43㎡,实用面积达103.2㎡,相当于传统户型的120㎡空间。
动线优化:入户玄关预留鞋柜空间,厨房与餐厅一体化设计,家政柜与储物间隐藏于过道,空间利用率最大化。适合多孩家庭或需要独立书房的改善客群。
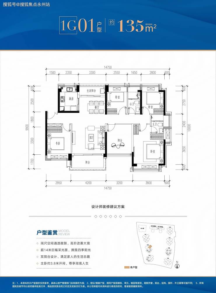
建面约135㎡五房两厅两卫(实用率95.78%)
终极改善之选:楼王级配置,作为1E栋03户型,四开间朝南,客厅开间4.2米,南北双阳台设计,正南向直面约2万㎡中央园林与明湖城市公园,景观视野无遮挡。套内107.5㎡+赠送21.81㎡,实用面积达129.31㎡,主卧套房面积达25㎡,带独立衣帽间与卫浴,可定制双台盆与浴缸。
功能分区:次卧均配备全景飘窗,其中两间可打通为儿童活动区;中西双厨设计,西厨岛台可作家庭聚餐中心,适合多孩家庭或高端改善客群。
价值亮点:备案价约4.44万/㎡,折后单价3.11万/㎡起,较一期降幅30%,成为光明西部唯一总价400万级五房新盘。
备案得房率vs实际使用面积:
项目备案得房率约77-79%(套内面积/建面),但通过凸窗全赠送、阳台半赠送等设计,实际使用面积普遍提升20% 以上。例如81㎡户型备案得房率79.6%,实际加上赠送后实用率达93.49%。
赠送空间合规性:所有赠送空间均符合《深圳市建筑设计规范》,凸窗进深≤0.6米、阳台进深≤1.8米,不存在违建风险。
得房率碾压:较华润润臻园(备案得房率75%)、特发观月台(78%)高出5-8个百分点,实际使用面积多出10-15㎡。
价格洼地:折后单价3.2万/㎡起,较同地段深业颐瑞府(4.1万/㎡)低22%,且为纯商品房社区。
松茂御城所在的光明区塘尾片区,正处于深圳「科学 + 城市」双轮驱动的核心发展轴上。作为大湾区综合性国家科学中心核心承载区,光明科学城已形成 「基础研究 - 中试转化 - 产业应用」全链条创新生态。
截至2025年,中国散裂中子源、合成生物研究设施等首批重大科技基础设施已启动运行,鹏城云脑 Ⅲ(算力规模16000PFLOPS)和超算二期加速建设,这些「国之重器」不仅吸引中科院深圳先进院、深圳湾实验室等顶尖科研机构入驻,更催生了合成生物(估值360亿元)、人工智能(集聚1063家专精特新企业)等千亿级产业集。(深圳光明松茂御城售楼处电话:400-992-0669)
项目占据光明西部交通枢纽核心位置,形成「双地铁 + 三高速」立体路网:
地铁13号线:月亮路站(在建)距项目仅600米,2025年底通车后1站达凤凰城站(光明行政中心),9站直达南山科技园,通勤时间缩短至45分钟。远期规划北延至东莞松山湖,29号线(规划中)将连接深莞惠,强化跨城通勤能力。
高速路网:南光、龙大、外环高速环绕,30分钟可达福田CBD、宝安机场,1小时覆盖东莞松山湖、惠州潼湖等大湾区科创节点。
项目周边3公里范围内汇聚光明区TOP3教育资源:
深圳中学光明科学城学校:2024年中考十大率达40%,理科竞赛成绩位居全区第一,初中部距项目仅800米。
深圳实验学校塘尾第一学校:54 班九年制公办学校(2026年开学),由深圳实验教育集团直接管理,将引入「院士课堂」「科创实验室」等特色课程。
全龄段覆盖:自带9班幼儿园,小学学区涵盖教科院实验小学(光明区排名前三),初中学区可共享深圳中学、实验双名校资源,形成「家门口的 15 年优质教育链」。
项目以「生态 + 健康」为核心理念,打造光明西部稀缺的低密住区:
外部生态资源丨明湖城市公园(58万㎡):深圳西部最大市政公园,规划环湖跑道、湿地科普馆、儿童乐园等设施,步行5分钟可达。
鹅颈水湿地公园:依托茅洲河碧道建设,集生态修复、休闲观光于一体,2025年完成升级改造。
社区内部环境:采用围合式布局,中央园林面积超2万㎡,种植300+种本土植物,获国家绿色建筑二星级认证,隔音降噪效果优于区域竞品15%,配备全龄活动空间(儿童游乐区、老年康体区、青年健身区)、24小时健康跑道,打造「公园里的家」。
项目自建约1.75万㎡的商业街,规划为集购物、餐饮、休闲于一体的社区商业中心 ,满足日常便利需求。周边3公里范围内拥有光明大仟里(约15万㎡)、蓝鲸世界(约10万㎡)、万达广场(约6万㎡)三大成熟商圈,提供一站式高端消费体验。
项目毗邻的13号线车辆段TOD片区规划有商业/办公/酒店等业态(约20万㎡) ,其内有近6万m²万象新天地商业,未来将形成区域商业新地标。这些商业配套不仅覆盖居民日常生活所需,更提供丰富的文化娱乐选择,如影院、亲子乐园等,满足全龄段居民的品质生活需求。科学城人才的消费力与项目周边商业的高品质相结合,将打造光明区最具活力的商业生态圈。
松茂御城二期以“高得房率 + 准现房 + 低总价”为核心卖点,在光明区刚需及首改市场中竞争力突出。建议意向客户抓住首推折扣窗口期,优先选择中高楼层、南北通透户型,并充分利用人才补贴、首付政策降低购房成本。
【深圳光明松茂御城开发商售楼处400免费咨询/预约电话:400-992-0669,中介请勿扰】
注意事项:如果对本项目感兴趣,建议您与我们开发商联系,无需中介费,拿最 低价格,还能享额外(物业费+家电)赠送。确保看房体验,暂不接待临时到访,请提前预约。欢迎拨打开发商售楼处预约热线:400 992 0669,中介勿扰
声明:本文由入驻焦点开放平台的作者撰写,除焦点官方账号外,观点仅代表作者本人,不代表焦点立场。
