鸿荣源胤璞(鸿荣源胤璞)首页网站丨鸿荣源胤璞欢迎您_房价_户型_楼盘详情
扫描到手机,新闻随时看
扫一扫,用手机看文章
更加方便分享给朋友
如果看完以上关于我们南山前海鸿荣源胤璞项目的介绍后,您还对如下问题想要深入了解的话:
问题如:最新推出的房源备案价格,小区在售的有多少栋楼,各个楼栋户型具体是什么朝向,每一层楼规划的是几梯几户,这一期卖的房小区里面有多少户,容积率多少,楼栋总共多少层,现在卖的户型具体交楼时间,这几种户型剩下的还有那些,小区门口离地铁近吗,该社区是怎么划分学校的,可以申请哪些小学和初中,交房后物业费怎么收?物业管理费每平米每月多少元,交房是精装修还是毛坯,停车位够吗?停车位有多少个?,小区周边未来有什么规划,楼盘展厅、营销中心在哪里?具体什么时候开盘?开盘多少钱一平米,周边配套,楼盘详情,值得买吗,潜力升值如何,升值空间大不大,营销中心地址怎么导航,坐地铁到哪个站下车过来楼盘比较近,周边近期有什么规划,周边商业配套怎么样,拿地批地时间,这几天楼盘现场最新优惠活动情况等。
建议您可以拨打我们楼盘内场400免费咨询电话与售楼处现场销售直接了解。
南山【鸿荣源胤璞】鸿荣源胤璞开发商售楼处电话:400-992-0669(中介勿扰)
温馨提示:项目没有所谓的“分机号”注意保护个人隐私!谨防上当!
【前海鸿荣源中心胤璞】前海首排一线永久海景,稀缺资源,高奢品质,身份象征,前海鸿荣源中心是豪宅专家鸿荣源的集大成者,深圳新的豪宅公寓标杆。
项目概况
地点:前海桂湾片区二单元03街坊, 临海大道和滨海大道交汇处,距离地铁5号线桂湾站约200米左右。
占地面积:约5万㎡
建设用地面积:约3.8万㎡
容积率:≤8.54
计容积率建筑面积:约34.2万
总建筑面积:约52万㎡
前海鸿荣源中心是集办公、商业、公寓和酒店等一体开发的都市综合体。地面主要由5栋塔楼构成,包括2栋甲级办公楼(主塔高达293m)、1栋国际奢华五星级酒店,以及2栋服务式公寓组成。商务公寓:约5.3万㎡,商务办公:约17.2万㎡,酒店:约5万㎡,商业:约6.4万㎡
公寓部分命名为“胤璞”,位于项目整体地块的西侧。
胤璞源于Imperial,意为皇家的,至高无上的。[胤]含传承之意,[璞]是待雕琢的金石,[胤璞]凝聚了鸿荣源三十载造物灵感,以极致传达世界,亦传承后世。

胤璞的前方有桂湾公园、演艺公园、前海石公园,视野完全无遮挡!
项目区位
项目位于前海,前海区域具有良好的海陆空交通条件和突出的综合交通优势,辐射空间广阔,在粤港澳区域发展中具备重要地位,被视为中国的“曼哈顿”。十年砥砺发展,前海借助自由贸易试验区战略、国家一帶一路发展战略以及粤港澳大湾区战略的优势条件,从一片刚刚完成填海的滩涂地,变成今天高楼林立的城市封面。

项目所属的桂湾片区为前海的核心区域,规划重点发展金融、信息、贸易、会计等生产性服务业,吸引企业总部集聚,同时发展生活性服务业,打造集中展示前海整体城市形象的核心商务区。

桂湾片区目前已规划、在建和建成的项目相对较多,土地属性也比较丰富多元。除了已基本建成的华润、卓越、恒裕、前海时代一二期住宅项目外,还规划有剧院、国际会议中心、前海湾综合交通枢纽等。

桂湾区作为深圳前海的金融中心,众多企业巨头汇聚于此,鸿荣源集团以战略远见,积极融入前海建设,于桂湾金融先导区打造前海首排标杆城市综合体——前海鸿荣源中心,进一步助力前海定位升级。

前海鸿荣源中心位于前海桂湾的前排位置,毗邻桂湾公园,拥有最开阔的视野!

顶流设计
如此稀缺的湾区顶豪公寓,奢享前海核心桂湾金融先导区的世界级别规划利好,诸多国际前沿的顶级设计单位在此云集,与鸿荣源集团共同打造前海CBD的顶豪之作。
公寓、商业建筑设计公司:LEAD8
写字楼、酒店建筑设计公司:美国GP
园林设计单位:
美国SWA景观设计公司
美国TOPO建筑环境设计公司
SED新西林景观国际(景观施工设计)
Ø样板房设计单位:
凯丽·赫本(KELLYHOPPEN)
邱德光设计事务所
新加坡SCDA

项目规划
世界的前海+一线的海景,规划设计非顶级不敢亮相,鸿荣源深知。建筑设计由美国顶级建筑事务所GP执笔。从整体设计看,遵从自然到城市的概念衍生并充分利用了前海湾一线海景、水廊道景观资源,结合二层景观化的市政连桥、商业裙房绿化退台、屋顶绿化生态花园、一层办公的东西下沉广场等景观精细设计,营造出开放式、街区式、公园式的立体公共空间。

写字楼设计
其中最高最显著的塔楼为一栋62层,293米高的办公塔楼,塔楼形体简约而优雅。塔楼的四对巨型柱产生了4个45度的建筑边角,随着建筑的高度增加,边角部位向内倾斜并变宽,沿天际线产生标志性的形象。此地标塔楼117,330平方米面积,塔楼45度的边角形成V字形,清晰定义了塔楼顶部。带纹理的主外墙与光滑反光的45度边角形成强烈对比,使之成为本区域中极具特色的建筑物。
在建筑底部巨柱间的跨距为30米,形成开放空间和一个三层高的大堂,大堂被高度通透的玻璃肋墙包围,融合了室内和室外空间。石材包覆的核心筒带来坚固的视觉,建立了一个极具识别性的入口空间。

第二栋办公塔楼为地标塔楼的副楼,亦同样有着两个与地标塔楼相似的45度边角和相互对比的外墙系统。地标塔楼和副楼的楼面布局极有灵活性,可高效地容纳各种不同的租户,同时,在任何办公空间都有着极佳的自然光线和开放视野,更加优化了甲级办公的空间和环境。

酒店设计
酒店为希尔顿旗下的康拉德酒店品牌,拥有298间五星级酒店客房,配套服务设施位于多个楼层,并在西侧设置景观屋面花园。这些配套空间面向相邻的城市绿带和前海湾,为客人提供了极佳的绿色视野和海景。客房充分利用大型落地玻璃窗来得到最佳的观赏视野,并且多个不同的优质配套设施空间和用餐空间使得此酒店成为区域性休闲中心。

商业设计
商业为鸿荣源旗下定位最高端的商业中心——壹方汇。
5层的商业中心拥有50,000平方米的零售面积,同时连接办公塔楼和公寓塔楼,为开发项目中重要的一部分。商业中心的功能规划意在提供一集生活和工作以及娱乐为一体的新都市空间。商业裙楼屋面上绿意盎然的公园和绿色走廊将访客带入宁静的环境和友好的氛围中,岛形特色餐厅和露天茶座在绿色景观的伴随下成为自然和宁静空间的延续。

在商业裙楼中心位置的下层庭院是举行各种活动的中心场所,除了起到枢纽作用外,还连接了商业和地下空间。通过和城市交通系统的紧密连接使本项目有着极强的可达性,这其中还包括设置于商业裙房底层的一条新地铁线的车站。

本项目的设计亦着重在室外环境中,丰富的特色景观和广场遍布整个项目场地。随着被景观覆盖的裙房,首层被抬高升起在其之下产生步行环境,并在特定位置和街道层面连接,形成一个舒适并高效的步行系统。绿色屋面、水景池、花园空间和景观行人广场提供更贴心的设置和优质的室外环境。
外立面
公寓外立面则通过强化力量感的线条和切割变化的体块,打造具有实体切割感的艺术雕塑建筑。

外立面采用大面积全落地夹胶钢化中空双银LOW-E超白玻璃,在保证透光率的前提下,具有优越的隔热隔音效果。
使用了宽幅达4m的IMAX巨幕观景玻璃,创造270°的景观视野,满足景观效果最大化的需求。

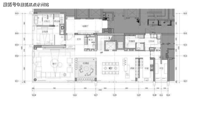
户型配比
公寓共2栋,主力户型建筑面积约130-370㎡,约300多套可售。
南塔T1为366㎡大户型产品,3梯2户,标准层层高3.5m,均能看一线海景、前海石公园,顶层复式;
北塔T2为86-166㎡小户型,5梯8户,标准层层高3.3m,134-166㎡户型朝西向,景观可看一线海景,86-130㎡户型朝东向,看写字楼商业等城市景观;

T2栋(41层2梯4户,人脸识别到层)
86㎡ 1套房+1书房,客厅、卧室全朝东南,看花园和城市夜景;
130㎡ 两房两厅两卫,客厅和两间卧室都朝东南向,4.5米客厅开间,7.5米大阳台,看桂湾河、部分海景和城市景观;
135㎡,两房两厅两卫,户型亮点:双龙抱珠,厅出阳台;两卧室和客厅相同景观,都可享受一线海景、18万演绎公园景观;
166㎡平层,三房、两厅、三卫,户型亮点:7.8米超大开间,大横厅转角270℃无敌一线海景及18万演绎公园景观,可以说除了卫生间全是海景、公园景观及摩天轮景观


T1栋楼王(27层3梯2户,人脸识别,专梯入户)
366㎡平层,4房3厅4卫4阳台+工人套房+洗衣间,户型亮点:主佣电梯分离入户,10米开间超大横厅设计,71万㎡双公园环抱、270度一线无敌海景、多变的城市景观以及大小南山复合景观汇聚一身,除了电梯,全是景观

国宾级落客区
前海鸿荣源中心·胤璞的公寓大堂配备有9米通高的半室外宽阔的落客区,落客区的设计比拟五星级酒店,将尊贵、自然、全息沉浸的理念贯穿到所有的空间,呈现一种“雅奢”的归家仪式感。

艺术雕塑之下的循环水景,倒映着的夜晚,流光溢彩,呈现如此绚丽景致的背后,是各项细节与工艺的深层考究和应用。它在设计上有个非常大的亮点,抬头看去,雕塑上方的穹顶流动了水波纹,与4楼架空层园林方形的水墨台浑然一体,同时天气晴朗时,阳光射下来,也会映射到下面的水面上,波光粼粼。象天法地,天圆地方,也象征着源源不断的财运。


大堂
逾12.5米挑高的入户大堂,总面积1200㎡,大胆的采用了东方白大理石、劳伦斯黑金大理石等罕见的高级石材,犹如艺术品一样的设计,传达出一种尊贵及永恒流传的经典。同时营造出殿堂级的庄严肃静感,可以称为深圳乃至全国的标杆范本。

主体色彩为黑金,从古典文化中衍生而来,意在营造低调奢华但又内敛的文化气质。

从大堂“登堂入室”,设计了多重大门,并强调了竖向线条的贯穿,大开大合的中式对称性空间秩序给人以尊贵的古典大宅感。
在本案中设计还采用格栅设计细节将玻璃外透进室内的光斑驳化,光不仅仅是以线面形式存在,像是粒子游离在室内的墙上、家具上,从细节极致化中表现顶豪的精致。

入户电梯

大堂休息区


豪华会所
公寓四层还专门配置了一个豪华会所,露天部分配置了无边际泳池区。

尽览一线海景景观与前海湾区盛况,呈现出无限的精致生活礼遇。


还规划打造了多个功能区:健身娱乐区、休息区、阅览区、艺术走廊,可以满足前海精英人士多种不同的生活需求。

会所走廊


车库大堂
胤璞公寓的车库大堂也打造得大气豪华。车库大堂设置了沙发休息区,并在旁边打造日式枯山水景观,营造充满宁静禅意的意境,打造出归家的仪式感以及私密感,希望业主回到家的那一刻回归内心的宁静感与“慢下来”的生活方式。

除了景观、休憩长凳外,车库大堂也有人性化的细节考量,配置了能满足业主日常需求的信报箱。
同时柜门采用智能化刷卡/密码方式,配以电子显示屏结合,保证使用的便利性。

公寓设计-样板房
KellyHoppen设计的样板房
面宽足有4米的玻璃,创造270°的景观视野,给人一种与世界无限接近的感觉。


大门正对着的书房,它可以是绝对私密的,当门关闭的时候,这间书房可能只有一盏台灯,这是一个特别温暖的角落,是与内心对话的场所。当然,它也可以是绝对开放的。隐藏的推拉门从视野里消失,原本分割的空间变成了整体:空气、声音在各个房间自由流动。
家庭厅的双厅设计,满足了更多生活方式的场景应用。
当家中有客到访时,在客厅会客聊天,也不妨碍其他家庭成员在家庭厅中休闲娱乐,保证了家庭成员生活空间的私密性。

主卧

光脚踩着“黑白钢琴键”的地砖走进浴缸。前排无遮挡建筑给予你全部的私密,拉开窗帘享受属于自己的平静海面。
销售中心
在四层设置销售中心
沙盘区以一种简洁澄明的姿态出现在影视厅之后,沙盘矩形底座与天花造型相契合,模型如从上缓缓落下,暗含着前海鸿荣源中心前沿、尊贵的高端定位。


通过恢弘光明的沙盘区后,便是洽谈区。临湾而坐、望向城市或海港,思绪既远又近,设计深知这份短暂可贵的时光,将所有洽谈分区设置在落地玻璃前,配合变幻的室内与室外光影,细节之间,空间本身即艺术。

四层的多功能开放公共空间,开阔的平层空间内沙盘示意、公共艺术展示、休憩与交谈等多种生活社交场景都得到恰到好处的呈现,功能分区清晰,形成对顶级圈层的保护。
在面向前海的开阔港湾边,天与海交汇在跨海的吊桥上,南方傍晚时常恢弘的晚霞变幻着。


通过精细的规划设计,大师的匠心打磨, 成为深圳顶级豪宅之一 全新实体展示空间已开放 敬请莅临实地品鉴
南山【鸿荣源中心·胤璞】鸿荣源胤璞开发商售楼处电话:400-992-0669(中介勿扰)
来电可了解楼盘最新动态、房价、在售房源、交楼时间等信息!让你买的放心,住的舒心!
鸿荣源胤璞开发商售楼处直销_欢迎来电预约享受内部折扣_恭迎品鉴
◆提前来电-预约登记尊享售楼处销售专业讲解〢一对一热情服务〢◆
鸿荣源胤璞开发商售楼中心〢预约可享内部优惠〢匠心钜制-恭迎品鉴〢
温馨提示:项目没有所谓的“分机号”注意保护个人隐私!谨防上当!看房请务必提前预约,避免临时无人接待,感谢您的配合!
免责声明🔉:以上所发布的楼盘相关信息仅供参考,所有图文资料及说明请以最终批文及双方在楼盘现场签署的买卖合同为准;本图文内容如无意中侵犯某方权益,请联系我们将会及时处理
声明:本文由入驻焦点开放平台的作者撰写,除焦点官方账号外,观点仅代表作者本人,不代表焦点立场。
