承翰湾尚国际售楼处丨深圳热销楼盘【承翰骏玺】户型图丨电话丨楼盘详情丨位置
扫描到手机,新闻随时看
扫一扫,用手机看文章
更加方便分享给朋友
➢ ➢深圳福田【承翰骏玺】项目介绍
➢ ➢深圳福田【 承翰骏玺】开发商售楼处电话:400-992-0669 中介勿扰
➢ ➢深圳福田【承翰骏玺】—「售楼处」—「欢迎您!」
➢ ➢来电可了解楼盘最新动态、房价、在售房源、交楼时间等信息!让你买的放心,住的舒心!

关于福田区水围村,相信很多朋友都不陌生。水围村位于福田中心区和福田口岸之间,该区域居住人口集中,商业、医疗、教育、交通配套成熟。距离福田会展中心CBD、华强北商业中心、香蜜湖片区等重大区域半小时生活圈。福田口岸、皇岗口岸等深港口岸的距离近,是不少深圳人置业或落脚的选择,甚至吸引了不少香港人集聚。
福田CBD为邻,荔园外国语加持,水围村旧改——承翰湾尚庭玺家园,2022年下半年首期推出122-128㎡的3-4房。
承翰·湾尚国际庭玺,项目前身为水围村旧改,主要是对原片区内的工业建筑进行拆除重建,使得该片区的社区氛围更为纯粹。

2014年被列入深圳市城市更新单元计划第四批计划,2018年启动拆迁,2019年宣布动工,目前正进行基坑建设。作为旧改项目,进展算比较快速!
水围村旧改项目拟拆除重建用地面积3.14万㎡,将建成为总建筑面积近24万㎡集住宅、商业等功能于一体的综合社区。

项目主要由三个地块构成,分别是位于水围街和水围二街西南交汇处的01-01;福强路和皇岗公园街东北交汇处的02-01和02-02两地块。

01-01为二类居住用地R2+商业用地C1 ,用地面积0.67万㎡,计容建面约3.8万㎡,容积率5.6。包含约2.3万㎡住宅(含保障房9640㎡),2500㎡商业,2370㎡的商务公寓(全部为人才公寓),公共配套1.01万㎡(9班幼儿园、便民服务站、社区体育活动场地等社区配套)。由此可知,水围村旧改项目需配建的保障房指标均在01-01地块中,共计200套保障房房源,全为人才住房,由福田人才安居公司负责分配。

开发建设用地面积约2.44万㎡,计容建面约15.5万㎡,容积率6.3,其中:
住宅7.34万㎡(含保障性住房9640㎡);
商业、办公及旅馆业建筑合计5.4万㎡;
商务公寓1.18万㎡(含人才公寓2370㎡);
公共配套设施1.6万㎡(9班幼儿园建筑面积3000㎡,文化活动中心8000㎡)。
建设成为集住宅、商业、公寓、酒店、写字楼一体的高端综合社区。
工程建设进度实拍图如下

备案价格
项目基础信息

项目名称:承翰·湾尚国际庭玺
占地面积:24480.45㎡
建筑面积:240182.20㎡
预售产品:住宅
产权年限:70年
绿 化 率:40.2%
容 积 率:6.36
主推产品:庭玺119-175㎡3-4房
开发商电话:400-992-0669
交付标准:精装交付
可售套数:住宅372套

湾尚庭玺家园,住宅区梯户比2梯3户,41层高层建筑。面积段为122-128㎡的三到四房!

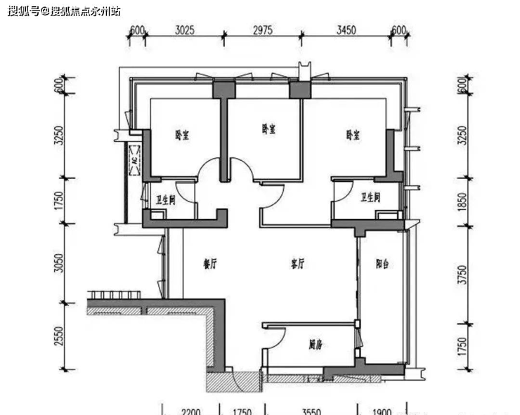
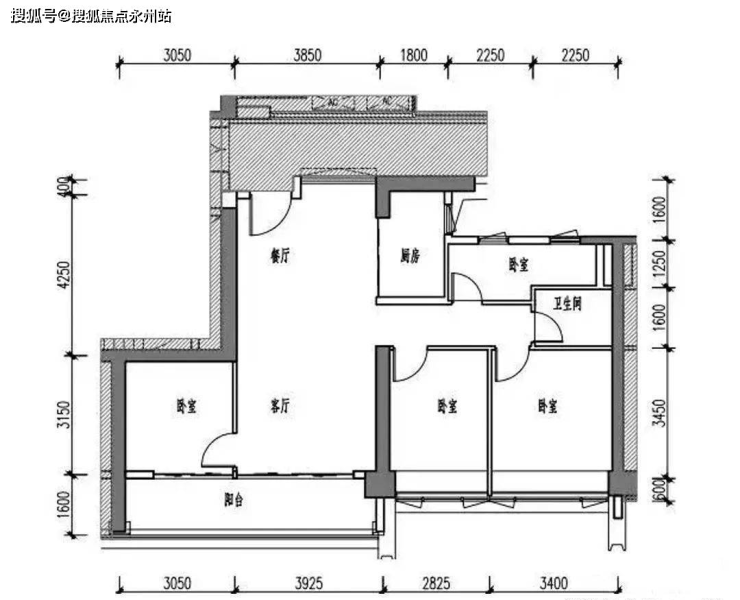
项目户型图一览

119平3房2厅2卫户型,户型通透,1.65m观景阳台

123平3房2厅2卫户型,户型上看设计了1.9米进深阳台

124平4房2厅2卫户型,8m观景阳台

128平4房2厅2卫户型
交通配套
项目距离地铁4、7、10号线福民站850米,步行约12分钟
距离4号线福田口岸站约800米
临近福田口岸,来往香港极其方便,皇岗口岸距离稍远一些
建设中的穗莞深城际轨道直达深圳湾超总、前海、深圳机场
自驾方面,项目东侧是金田路,南面福强路,直连京港澳高速

商业配套
楼下即是时尚个性ForC购物中心
周边商业氛围浓厚,最美水围1368文化街区,满满的怀旧风,已然成为俊男靓女的打卡地,享受繁华慢时光
2公里内8.5万㎡星河COCO Park,深圳唯一公园版情景式购物中心
皇庭广场等超级shopping mall

教育配套
家门口即享一站式12年无忧教育
项目自建9个班的幼儿园
最近的荔园外国语小学(水围校区)、福民小学、皇岗中学

区域价值
福田CBD作为含金量最高的中央商务区+河套深港科技创新合作区—科技创新平台
最牛道路”金田路”号称“黄金一公里”,金田路位于双龙起舞带上,与深南大道相交汇,位置显赫。金田路是深圳CBD最具昭示性,也是最具代表性的一条路。
金田路以金融业主导,高端产业云集,有多家大型集团总部扎堆,比如卓越、平安保险、富德生命人寿、地铁集团、安信证券、五矿证券、凤凰卫视等多家大型集团总部位于金田路上
河套深港科技创新合作区—科技创新平台
深港携手共建的河套深港科技创新合作区已成为促进科技创新合作和创新要素高效便捷流动的重要平台。在香港回归25周年之际,将目光瞄准河套深港科技创新合作区,呈现深港开创的共同发展新局面。
在深港联动发展的背景下,该片区的发展实践更是备受瞩目

项目价值
福田CBD土地稀缺,近几年很少有住宅新房入市,承翰湾尚国际住宅的入市一定备受关注
承翰湾尚国际总建面240182.20㎡,涵盖住宅、ForC购物中心、万豪AC酒店、公寓、甲级办公等业态的城市综合体。
承翰湾尚国际住宅样板房开放中,119-175㎡3-4房户型,户型设计更偏向于改善,精装交付,欢迎前来现场品鉴!


项目地块属于旧改,前身是水围村旧改,不属于招拍挂地块(拍地时就确定预售价格),项目是带精装修交楼,根据深八条新规定,住宅备案价8万-10万/㎡之间的,装修费收费标准不得超过6000元/㎡

承翰湾尚国际周边二手次新房指导价在7.2-7.8万/㎡,真实成交价在8-10万,一二手基本没有价差,同等的价格买了配套更完善、装修标准更高的项目综合体住宅。

福田承翰骏玺开发商售楼处电话:400-992-0669(中介勿扰)
来电可了解楼盘最新动态、房价、在售房源、交楼时间等信息!让你买的放心,住的舒心!
温馨提示:项目没有所谓的“分机号”注意保护个人隐私!谨防上当!看房请务必提前预约,避免临时无人接待,感谢您的配合!
免责声明🔉:
以上所发布的关于深圳福田水围承翰湾尚国际楼盘相关图文信息仅供您买房前参考,以上所有关于本楼盘的图文资料及说明请以最终官方批文及双方在楼盘营销中心现场签署的买卖最终合同为准;本图文内容如无意中侵犯到某方权益,请联系我们将会及时处理。
声明:本文由入驻焦点开放平台的作者撰写,除焦点官方账号外,观点仅代表作者本人,不代表焦点立场。
