君临芯公馆售楼处(欢迎您)深圳【君临芯公馆】首页网站_售楼处|楼盘详情
扫描到手机,新闻随时看
扫一扫,用手机看文章
更加方便分享给朋友
福田君临天下·君临芯公馆怎么样,好不好,优点缺点分析,下面为大家全面讲解下。
优势:
1、福田中心区,罕见的小户型住宅,小户型280万可以上车;
2、户型使用率赠送非常多,使用率可达95-140%;
3、周边居住类配套齐全,学校为中上。
4、高楼层可以看高尔夫园林的景观。
劣势:
1、密度偏高,4梯22户梯户比也不是很友好,早晚高峰电梯是个问题。
2、停车位不足,在福田停车是个问题。
3、地铁800多米不远不近吧。
4、楼龄已有9年,土地已过约19年剩余51年
5、新洲这个片区,整体趋于老化阶段,规划发展空间有限
【君临·芯公馆】位于福田中心区核心地段,深圳特发高尔夫南端,福田区新沙路与新沙街交汇处。项目占地7379.07㎡,总建面90098㎡,容积率6.5。君临芯公馆品质超群,产品线丰富,在售70年产权的住宅、公寓,主力面积36-76㎡,享福田第二大城心生态及136万㎡的高尔夫生态景观。
项目位于滨河大道与新洲路交汇口附近,位置是非常适合居住的,无论是在福田CBD上班或者南山科技园上班通勤都是很方便的,项目高楼层还可以看福田高尔夫的景观,项目户型使用率更是约95%左右,目前已经拿证,可以随时认购,样板也已经开放,推出住宅约66套,公寓198套,面积36-76㎡!君临天下·君临芯公馆_营销中心_Vip Tel:400 992 0669(中介勿扰)

君临天下·君临芯公馆距离地铁3号线益田站1.1公里、福保站1.3公里,贯纵地铁1/3/7号线,畅通深港滨河大道、新洲路城市主干道等等,畅通全城。
规划引入20\22\24\14号西延\6号线支线南延及广深港高速磁悬浮线,汇聚10线8站,实现轨道500米全覆盖。
【2口岸】:临近福田口岸与皇岗口岸,无缝接驳深港两地。
【1轨道】:穗莞深城际轨道2站直达前海,联通两大深港合作区。

项目地处福田CBD核心,集萃行政、会展、金融、文化、酒店、购物、公园、交通等八大功能;5min 即达周边商圈怡景中心城、皇庭广场、星河cocopark、购物公园、卓越INTOWN、卓越中心等。。
学区是明德实验学校五洲校区以及新洲中学,旁边更有深圳市贝塞思双语学校,是一所美国排名前三的国际学校,距离项目300米

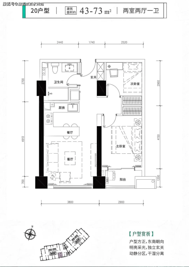
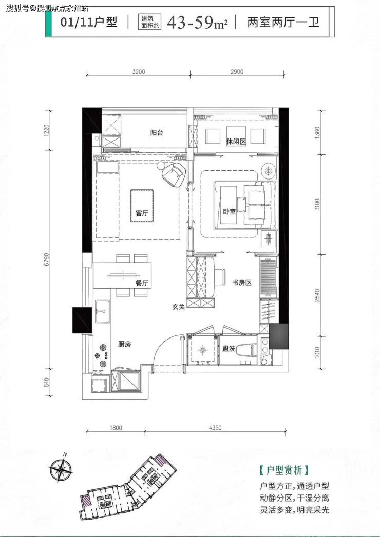
福田即小户型住宅现房——君临天下·君临芯公馆,66套住宅和198套公寓,面积段均为34-76平(一房两厅一卫、两房两厅一卫、三房两厅一卫),使用率高达100%多(每个户型使用率均会有区别)
项目是一栋住宅、公寓混合式的高层建筑,分为A座、B座,17楼以上是大户型住宅。
这批要买的房源有住宅和公寓,其中,66套住宅分布在15-17楼,公寓则分布至6-14楼,6梯22户。
产品建面约36-76㎡,最大的一个卖点就是使用率高。

42㎡做两房,次卧还能有8㎡,你心动了吗?
它就是建成快9年,拿地近19年,位于福田车公庙片区的君临天下,即将推出66套住宅和198套公寓。
每个户型根据实用程度不同,价格也存在差异,公寓单价7-9万/㎡,总价260万起,住宅单价8-10万/㎡。总价300万起
拥有绝佳使用率、建面约42㎡的住宅房源,预计总价要在4字头。几乎都超过100%,其中42㎡的户型更是近130%,以至于不仅做了两房,连次卧都有8个平方。






君临天下·君临芯公馆售楼处电话:400-992-0669 售楼中心,项目全面介绍,包含楼盘简介、售楼电话、小区户型图片、营销中心位置、区位优势、交通、周边商业配套、户型图等楼盘详情以上全文就是【君临天下·君临芯公馆】楼盘详情,这篇文章的详细分析和点评,感谢您的阅读,希望为您的购房置业选择上提供帮助,开盘预售动态、价格走势资讯、项目最新消息,待定更新发布,敬请持续关注订阅。
君临天下·君临芯公馆开发商售楼处咨询电话/预约热线:400-992-0669(中介勿扰)
(更多项目动态| 欢迎来电咨询 | 请提前预约登记看房 | 1:1销售专业讲解)置业顾问一对一对接,来电尊享受额外优惠
温馨提示:看房请提前来电预约,感谢配合!预约来访成功,即享现场当天优惠折扣,可预约现场指定销售专员(中介勿扰)
声明:本文由入驻焦点开放平台的作者撰写,除焦点官方账号外,观点仅代表作者本人,不代表焦点立场。
