2026荣超新时代广场官方户型大全/龙华荣超新时代广场户型介绍/最信房价信息/荣超新时代广场时尚户型抢鲜体验!
扫描到手机,新闻随时看
扫一扫,用手机看文章
更加方便分享给朋友
龙华【 荣超新时代广场】售楼处24小时电话:400 992 0669(官方电话)现场详细解答丨项目介绍丨户型图丨在售房源丨特价房丨学校丨交通位置丨样板房丨小区图片丨交房时间丨周边配套丨
荣超新时代广场,观澜唯一可售商业写字楼,龙华北部新中心,鹭湖中心城新地标,观澜未来唯一可售商业办公准现楼,
唯一专业写字楼开发商,荣超打造面积:约123-1035㎡ 热销中!地铁口•购物中心上•带阳台/上下水(深圳荣超新时代广场售楼处电话:400-992-0669)
龙华产核——鹭湖中心城地处龙华万亿级数字经济圈、梅观创新走廊的交汇中心,亦是龙华六大重点片区的核心枢纽
城市新核——鹭湖中心城定位为深圳北部新中心,龙华区“行政+科技+文化+生活”综合服务中心,城市精华配套、产业要素完善。作为区政府所在地,其低密度生态环境、文体设施齐全[鹭湖四馆:龙华区图书馆、群艺馆、大剧院和科技馆]、豪宅小区聚集,非常宜居宜业,价格抗跌
总部中心,科创集群引领区域价值腾飞:观澜高新园——鹭湖中心城定位最前沿、发展最成熟、实力最强劲区域:上市企业数量占龙华区50%,占鹭湖中心城70%,是龙华上市公司最密集区域
观澜高新园将构建 “BT+IT” (生物技术和信息技术)融合发展示范区,并依托上述龙头企业,吸引龙头企业及上下游企业,持续提升商务氛围与区域价值(深圳荣超新时代广场售楼处电话:400-992-0669)
枢纽中心 立体交通加速商务通勤效率:鹭湖枢纽——2地铁1城际1电车交汇,与深圳北站形成一南一北双枢纽
时代中心,首排封面助力企业屹立前沿:观澜高新园主入口首排,标准商务综合体 大气双塔,360度无遮挡昭示 视野开阔舒心
商务中心 纯粹甲级营造舒适高效办公:全玻璃幕墙 彰显不凡气魄,两层挑高大堂 大气通透 企业尊崇会客厅
10部三菱电梯,配比3000:1 引领高效商务,50:1超高车位配比 畅享无忧出行,带双阳台+开启扇 24小时鲜氧环绕
稀缺商办,鹭湖唯一可售商业写字楼:鹭湖中心城唯一可售商业写字楼/准现楼,可个人名义购买,转让灵活,持有期间无需缴纳房产税
顶尖配套,鹭湖唯一大型购物中心:片区唯一大型购物中心,建面约3.1万㎡,提升整体形象的同时,可满足企业商务接待与员工就餐等一站式需求
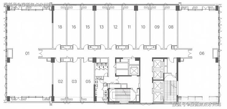
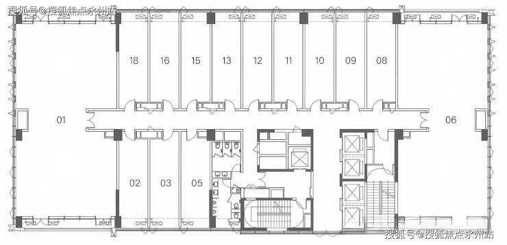
轻松进阶,鹭湖唯一1035㎡享整层权益:建面1035㎡区域内最低整层门槛,独立整层,不受外部干扰,办公形象高端且实用率高达75%,14个独立红本单位,单套41㎡起,户型方正可任意组合,融资变现更灵活
特色配置,鹭湖唯一带上下水办公产品:带上下水,[ 办公+ ] 组合更丰富多元
荣超新时代广场(深圳龙华)
荣超新时代广场售楼处电话:400-992-0669【营销中心】(24小时电话)
预约看房,置业顾问一对一对接,享受额外优惠!
在售户型图丨项目介绍丨房源丨周边配套丨详细解答
开发商售楼处直销_欢迎来电预约享受内部折扣_恭迎品鉴!!
注意:本项目不收任何费用,售楼中心〢欢迎来电咨询〢安全通话隐藏真实号码
声明:本文由入驻焦点开放平台的作者撰写,除焦点官方账号外,观点仅代表作者本人,不代表焦点立场。
