花样年好时光:坪山红盘户型、价格、配套硬核拆解,开盘时间/交付日期,官方发布!
扫描到手机,新闻随时看
扫一扫,用手机看文章
更加方便分享给朋友
坪山【花样年好时光】售楼处24小时电话:400 992 0669(官方电话)现场详细解答丨项目介绍丨户型图丨在售房源丨特价房丨学校丨交通位置丨样板房丨小区图片丨交房时间丨周边配套丨
花样年好时光售楼处电话:400-992-0669【售楼热线】✅
花样年好时光售楼中心电话:400-992-0669【营销热线】✅
花样年好时光营销中心电话:400-992-0669【24小时电话】✅
温馨提示:因本楼盘现场参观样板间采用预约制,过来之前请记得拨打售楼处电话:400-992-0669 进行预约,谢谢配合!
为给您更好的看房体验请提前来电预约(给您预留现场销售和停车位)
注意:本项目不收任何费用,售楼中心〢欢迎来电咨询〢安全通话隐藏真实号码
花样年好时光,是坪山老城区域为数不多在售的新盘,且是现房即买即住,一路之隔就是坪山最有名的益田假日广场,周边居住氛围浓厚,商业配套完善,14/16号双地铁线交汇。
项目于2021年10月27日取证入市,推出1栋A/B/C/D/E/F座,共777套房源,面积有70㎡的2房2厅1卫,80㎡的3房2厅1卫,95-100-110㎡的3房2厅2卫,118㎡的4房2厅2卫户型,备案均价4.21万/㎡,备案单价3.7-4.54万/㎡,总价303-539万/套,现房精装交付。(深圳坪山花样年好时光售楼处电话:400-992-0669)
项目从21年开盘至今03+04地块住宅加在一起1289套房源,已经销控超850套房源,整体去化率达到了66%,还有约400多套房源在售,项目在近期也做了价格调整,整体折后均价约2.73万/㎡,折后单价2.5-2.97万/㎡,总价在191-335万/套,现房精装即买即住!
70㎡的2房2厅1卫,折后总价191-195万,单价2.72-2.78万/㎡。
80㎡的3房2厅1卫,折后总价221-226万,单价2.76-2.82万/㎡。
96-110㎡的3房2厅2卫,折后总价250-286万,单价2.5-2.97万/㎡。
121㎡的4房2厅2卫,折后总价325-335万,单价2.68-2.76万/㎡。
更多详情,欢迎咨询花样年好时光售楼处电话400-992-0669,过来我们营销中心看房提前来电预约价格还能更优惠。
花样年好时光售楼处400免费咨询/预约电话:400-992-0669,中介勿扰
温馨提示:过来营销中心参观样板间请记得提前拨打售楼处400热线预约,感谢您的配合!
项目由花样年集团打造,总占地面积约3.87万㎡,总建筑面积约33.44万㎡,计容建筑面积约23.95万㎡,容积率约6.18,绿化率约40%,分03/04两个地块开发,有连廊相连,共9栋住宅。
目前在售的是03地块,总占地面积约2.25万㎡,总建筑面积约18.61万㎡,计容建筑面积约13.31万㎡,容积率5.49,绿化率40%,共由6栋43-46层高的住宅组成,其中1栋A/B/E座住宅44F,1栋C座住宅46F,1栋D/F座住宅43F,2栋规划1所九班制幼儿园。
04地块,总占地面积约1.61万㎡,总建筑面积约14.81万㎡,计容建筑面积约10.64万㎡,容积率6.32,绿化率30%,共由3栋43层高的住宅组成,其中1栋A/B/C座住宅43F,1栋D座写字楼21F。
总规划1696户,其中商品房1289户,回迁房407户,1栋B座3梯4户,其它全部3梯5户设计,规划停车位2321个,其中可供业主使用车位1770个,车位占比约1:1.4。
70㎡的2房2厅1卫,设计的是竖厅格局,客厅3.45米开间,进门玄关,LDKB一体化设计,2个卧室分别做到了主卧13.2㎡/次卧8.64㎡(包含墙体飘窗),L型厨房,卫生间干湿分离,得房率72.47%(不含赠送),有朝东向或西向。
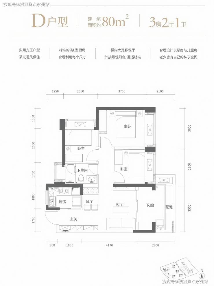
80㎡的3房2厅1卫,设计的是经典竖厅格局,客厅3.5米开间,进门玄关,LDKB一体化设计,动静分区,3个卧室分别做到了主卧12.9㎡/次卧8.96㎡/次卧8.16㎡(包含墙体飘窗),L型厨房,卫生间干湿分离,得房率72.48%(不含赠送),有朝东向或西向。
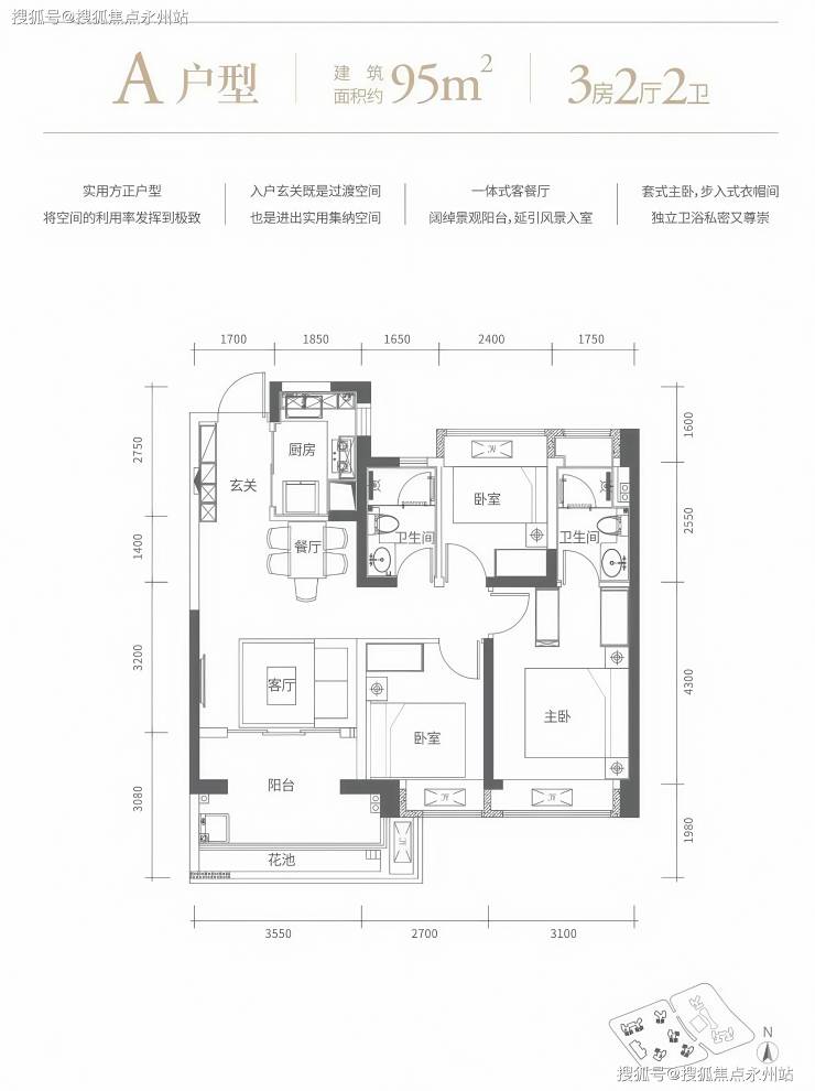
95㎡的3房2厅2卫,设计的是经典竖厅格局,客厅3.55米开间,进门玄关,LDKB一体化设计,动静分区,三开间朝南,3个卧室分别做到了主卧15.19㎡/次卧8.64㎡/次卧7.56㎡(包含墙体飘窗),L型厨房,卫生间干湿分离,得房率72.48%(不含赠送),有东南、西南或正南朝向。
100㎡的3房2厅2卫,A1户型,设计的是竖厅格局,客厅3.55米开间,进门玄关,LDKB一体化设计,动静分区,3个卧室分别做到了主卧15.19㎡/次卧8.64㎡/次卧7.93㎡(包含墙体飘窗),L型厨房,卫生间干湿分离,得房率72.63%(不含赠送),阳台主朝西北向。
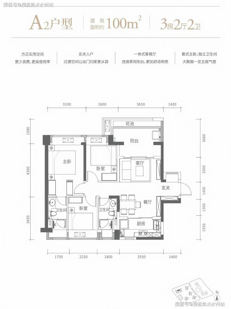
100㎡的3房2厅2卫,A2户型,设计的是竖厅格局,客厅3.65米开间,进门玄关,LDKB一体化设计,动静分区,3个卧室分别做到了主卧15.19㎡/次卧8.32㎡/次卧7.76㎡(包含墙体飘窗),L型厨房,卫生间干湿分离,得房率72.63%(不含赠送),阳台主朝东北向。
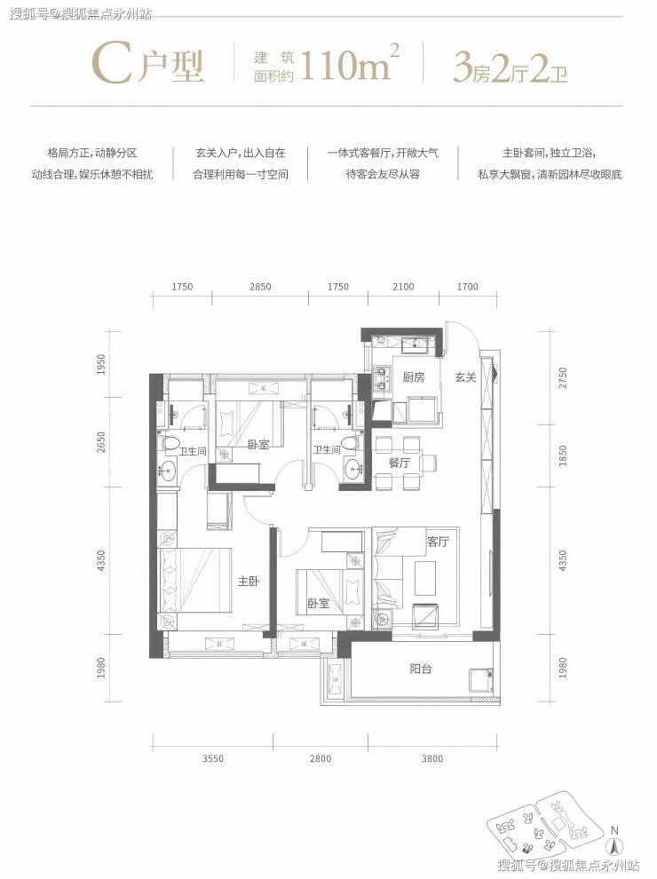
110㎡的3房2厅2卫,A2户型,设计的是经典竖厅格局,客厅3.8米开间,进门玄关,LDKB一体化设计,动静分区,三开间朝南,3个卧室分别做到了主卧17.57㎡/次卧9.26㎡/次卧8.96㎡(包含墙体飘窗),L型厨房,卫生间干湿分离,得房率73.97%(不含赠送),西南朝向。
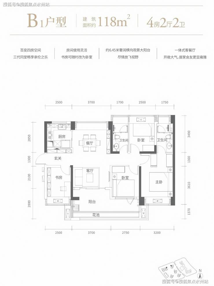
118㎡的4房2厅2卫,设计的是竖厅南北通透格局,客厅3.7米开间,进门玄关,四开间朝南,4个卧室分别做到了主卧15.71㎡/次卧9.02㎡/次卧8.72㎡/次卧8.27㎡(包含墙体飘窗),客厅连接次卧出6.45米长的大阳台,U型厨房,卫生间干湿分离,得房率73.44%(不含赠送),阳台主朝东南或西南向。
基础信息简介
开发商:深圳市花样年房地产开发有限公司
物业公司:深圳市花样年国际物业服务有限公司龙岗分公司
物业管理费:3.8元/㎡ 售楼热线:400-992-0669
总占地面积:约3.87万㎡ 总建筑面积:约33.44万㎡
容积率:5.49 绿化率:40%
产权年限:2019.10-2089.10(70年)
总户数:1696户,可售商品房1289套
总栋数及楼高:9栋,43-44-46F。
梯户比:1栋B座3梯4户,其它全部3梯5户
停车位:1770个 车位占比:1:1.04
交房时间:现房 交付标准:精装修
更多详情,欢迎咨询花样年好时光售楼处电话400-992-0669,过来我们营销中心看房提前来电预约价格还能更优惠。
花样年好时光售楼处400免费咨询/预约电话:400-992-0669,中介勿扰
温馨提示:过来营销中心参观样板间请记得提前拨打售楼处400热线预约,感谢您的配合!
项目小区信息
科技首创—— 全覆盖14大智慧生活系统:云监控系统、电子巡更系统、自助快递收发服务、社区 wifi 覆盖系统、门禁及可视对讲系统、停车场管理系统、车位区域引导系统、背景音乐系统、光纤入户系统、周界电子围栏系统、电梯控制系统、小区信息公开化系统、家居报警系统、E泊车系统
五大健康系统
灯光系统 ——漫反射照明、舞台化、点光照明
静音系统 ——抗干扰隔音降噪系统
收纳系统——全屋七大收纳系统:
①玄关收纳 ②客厅收纳 ③厨房收纳 ④卫生间收纳 ⑤主卧收纳 ⑥儿童房收纳 ⑦老人房收纳
花样年好时光,位于坪山区东纵路与金碧路交汇处,位居坪山区中心城区核心地段,毗邻地铁14/16号线换乘站坪山围站(步行约200米),是双地铁覆盖的TOD综合体项目。项目地处坪山“六馆一城”文化中心辐射范围,紧邻坪山大道、南坪快速等主干道,30分钟可直达福田中心区,1小时接驳香港西九龙站,形成“轨道交通+高速路网”的立体交通体系。
项目周边集聚坪山区重点发展的新能源汽车、生物医药、人工智能等战略性新兴产业。坪山区2024年规上工业总产值突破6000亿元,战略性新兴产业占比超九成,依托“6+3”产业集群政策,已形成千亿级先进制造业基地,项目邻近比亚迪总部、大工业区及坪山高新南等产业园区,与规划中的大运AI小镇(龙岗)形成产业联动,吸引高精尖人才聚集。
项目临近14/16号地铁线交汇站“坪山围站”F出口距离约400米,其中14号线设计时速120公里,5站到大运,10站到布吉,11站到罗湖,13站可到福田岗厦北,从坪山围站到岗厦北只要45分钟。16号线是从坪山田心通往龙岗大运的普线,设计时速80公里。 (深圳坪山花样年好时光售楼处电话:400-992-0669)
项目家门口是坪山最有名的商业中心,益田假日广场,吃喝玩乐一条龙全搞定,另外距离约1.5公里,还有坪山首个万象城进驻(在建),官方公布计划在2025年开业运营,也是深圳第三座万象城,总占地面积30公顷,规划商业规模超12万平方米,其中集中商业9万平方米,街区商业3万平方米,该项目建成后将成为集购物,娱乐,文化,餐饮和社交于一体的城市综合体。(深圳坪山花样年好时光售楼处电话:400-992-0669)
自带1所9班制幼儿园,根据2024年坪山区教育局最新的学区划分,小学学区划分在中山小学、锦龙小学、新合实验学校小学部、日新小学,初中学区划分在中山中学、新合实验学校初中部、科源实验学校初中部、碧玲实验学校初中部、深圳实验坪山学校初中部、深实验科韵学校初中部。(深圳坪山花样年好时光售楼处电话:400-992-0669)
项目已经交付入住,目前已经是实景现房,即买即住,不用担心烂尾或者质量问题,也可以做到买哪套看哪套。这次给到的优惠力度还是比较大的,是该楼盘有史以来的最低折扣跟价格,190万出头就可以买2房,220万出头买3房,330万出头买4房,且都是精装现房。
花样年好时光(深圳坪山)
更多详情,欢迎咨询花样年好时光售楼处电话400-992-0669,过来我们营销中心看房提前来电预约价格还能更优惠。
花样年好时光售楼处400免费咨询/预约电话:400-992-0669,中介勿扰
温馨提示:过来营销中心参观样板间请记得提前拨打售楼处400热线预约,感谢您的配合!
声明:本文由入驻焦点开放平台的作者撰写,除焦点官方账号外,观点仅代表作者本人,不代表焦点立场。
