华侨城四海华亭(深圳龙华)首页售楼处网站/24小时在线售楼处电话/楼盘详情
扫描到手机,新闻随时看
扫一扫,用手机看文章
更加方便分享给朋友
华侨城四海华亭·龙胜云坊 龙华高质精装住宅二手倒挂2万+ 龙华网红神盘央企品质 龙华最具性价比
四海华亭·龙胜云坊 龙胜旧改 尽享超速规划红利 建面约87-96-106-121㎡主力3-4房
龙华华侨城四海华亭龙胜云坊开发商售楼处咨询/预约热线:400-992-0669 中介勿扰
温馨提示:过来电可了解楼盘最新动态、房价、在售房源、交楼时间等信息!让你买的放心,住的舒心!

最新动态:华侨城四海华亭项目位于龙华区,前身原为龙胜村旧改项目。本项目本次开盘推出5个面积段,为建面87-96-106- 112-121平的3-4房住宅,项目总房源约1044套,预计将一次性推出,

项目基本信息:
【开发商】深圳市协跃房地产开发有限公司
【物业】深圳市盛世嘉物业管理有限公司
【产品面积】住宅约29万㎡,商务公寓约3.7万㎡,商业5.1万㎡
【占地面积】54465㎡
【在售产品类型】住宅、公寓
【建筑面积】56.3万㎡
【绿化率】30%

项目️七大价值点
1【城市运营商 央企华侨城匠心打造】
千亿央企品牌,匠心37载,专注城市标杆缔造
运营波托菲诺、欢乐海岸等城市标杆作品,布局全国100余座城市

2【占位粤港澳大湾区 全球不动产配置首选】
粤港澳大湾区成为全球投资不动产的首选
全球财富人群主要居住城市中,粤港澳大湾区占首位

️3【旧改首发 投资头等舱】
华侨城旧改首发原始股,龙华投资头等舱,增值指日可待
片区旗舰级旧改云集,区域规划全面快速

4️【地铁环绕 通勤无忧】
三地铁环绕,举步即达,全市通勤无压力

️5【千亿公建配套】
八大场馆:人文殿堂,绘就湾区中轴核心最高规格生活
全龄教育举步达:高峰学校、龙华中心小学、龙华第三小学、项目配建(幼儿园)、龙华中学弘毅校区(九年一贯制)等5学府,一站式书香配套环绕

6【双公园环绕,零距离享超20万㎡鲜氧吧】
龙胜公园:距离100m,是龙华群众文化活动公园,一年四季都是休闲放松好地方
龙华公园:距离850m,占地20万㎡,登塔龙华全景尽收眼底
2km范围内还有三联公园、上芬社区公园、龙塘公园、阳台山森林公园,组成城市生态圈

7【超百万城市中心商业配套】
项目自带5万㎡艺术风情商业街区,联动周边商业巨舰,构建“超级活力中心”
周边深圳最大型商业壹方天地、华南地区Costco(在建中)、红山6979、天虹商场等


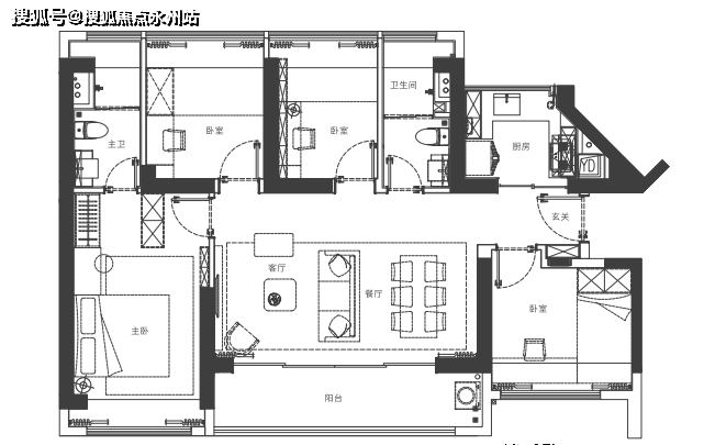
四海华亭户型鉴赏
【C2-建面约87㎡】
客餐厅一体化空间,动静分离式布局,超长玄关收纳柜体

【C3-建面约96㎡】
家政阳台定位,6人位餐厅满足多人就餐,主卧独立卫生间

【C5-建面约112㎡】
大横厅布局,超长观景阳台,卧室满面窗户,超强采光通风

【E-建面约121㎡】
大横厅布局,超长观景阳台,玄关柜餐边柜一体化设置,独立衣帽间,满足超强收纳需求

龙华【华侨城四海华亭】华侨城四海华亭开发商售楼处电话:400-992-0669(中介勿扰)
来电可了解楼盘最新动态、房价、在售房源、交楼时间等信息!让你买的放心,住的舒心!
华侨城四海华亭开发商售楼处直销_欢迎来电预约享受内部折扣_恭迎品鉴
◆提前来电-预约登记尊享售楼处销售专业讲解〢一对一热情服务〢◆
华侨城四海华亭开发商售楼中心〢预约可享内部优惠〢匠心钜制-恭迎品鉴〢
温馨提示:项目没有所谓的“分机号”注意保护个人隐私!谨防上当!看房请务必提前预约,避免临时无人接待,感谢您的配合!
免责声明🔉:以上所发布的楼盘相关信息仅供参考,所有图文资料及说明请以最终批文及双方在楼盘现场签署的买卖合同为准;本图文内容如无意中侵犯某方权益,请联系我们将会及时处理
声明:本文由入驻焦点开放平台的作者撰写,除焦点官方账号外,观点仅代表作者本人,不代表焦点立场。
